深圳罗湖美术馆升级改造 / reMIX临界工作室
愿景:开放的艺术公园VISION: An Open Art Park
在过去40年的快速城市化过程中,深圳的城市景观发生天翻地覆的变化。而作为特区最早开发的高密度城区,罗湖区已率先来到城市更新阶段的前沿:文体设施、城市绿化与公共空间品质亟待改造提升。上世纪80-90年代,罗湖曾经是艺术、文学创作极其活跃的文化高地。而今天,随着越来越多的文体设施落户城市西侧,新兴文化与创新中心逐渐远离罗湖。
Over the past 40 years of rapid urbanization, Shenzhen’s urban development has undergone dramatic changes. As the earliest developed high-density urban area in the city, Luohu District is now at the forefront of urban regeneration: cultural and sports facilities, urban greening, and the quality of public spaces urgently need enhancement. In the 1980s and 1990s, Luohu was once a vibrant cultural hub for art and literary creation. Today, however, with more cultural and sports facilities being established in the western part of Shenzhen, emerging cultural and innovation centers are gradually moving away from Luohu.
▼效果图 从南极路看向美术馆,main elevation along Nanji Road

▼效果图 从春风路望向美术馆,view from Chunfeng Road

一个成熟的城市文化生态,不只需要大型,超大型的文化设施,也更需要容纳社区公共生活的场所。在这样的背景下,罗湖美术馆的升级改造,将是一次重新发现罗湖的重要机遇,为在地与国际艺术家创造新舞台、为片区注入新生活,也为中型片区型文化机构的探索和突破提供新的样板。
A mature urban cultural ecology requires not only large and super-large cultural facilities but also spaces that accommodate community public life. In this context, the upgrading and renovation of the Luohu Art Museum present a significant opportunity to rediscover Luohu, creating a new stage for local and international artists, injecting new vitality into the district, and providing a new model for the exploration and breakthrough of medium-sized, district-level cultural institutions.
▼效果图 鸟瞰,bird’s-eye view

作为片区五分钟步行圈内的宝贵公共绿地,我们将为城市提供一个真正开放的活力艺术公园。作为创新之都的艺术新地标,美术馆空间主动激发实验性新艺术,开放与通透的空间邀请公众进入艺术与它幕后的世界。重新发现罗湖,将涝渍频发的水文风险,转化为与水共存的宜居空间,和多姿多彩的文化新景观。
Our design provides the city with a truly vibrant and open art park, a precious public green space within a five-minute walking distance from many residential neighborhoods. As a new artistic landmark in the city of innovation, the museum’s spaces actively stimulate new experimental creations, while its open and transparent design invites the public into the world of art and its behind-the-scenes. Rediscovering Luohu means transforming areas under threat by the frequent hydrological risks of waterlogging into livable spaces that coexist with water, and into new diverse cultural landscapes.
▼效果图 夜间的美术馆和艺术广场,art museum and plaza at night

场地策略:每个人的城市舞台SITE STRATEGY: A City Stage for Everyone
和大多数屹立于空旷场地中的美术馆不同,罗湖美术馆周边高层环绕,扩建五倍建筑规模的同时保持55%绿地率是一个艰巨的挑战。我们的策略是变挑战为机遇,塑造一个充分融入公园中的美术馆;与社区近距离的交融,使得美术馆更方便的实现公共教育使命,服务片区与城市的混合业态将为美术馆更可持续的运营提供支撑。我们将绿地置于西侧道路旁,使其具备最大的公共性和可达性,也为美术馆带来一个富有想象力的前场空间。
▼历史背景,historical context

▼场地现状,current site conditions

▼城市策略 绿地,urban strategy and green ratio

▼分析图 场地周边平面,site surroundings

Unlike most art museums standing in open spaces, the Luohu Art Museum is surrounded by high-rises. Expanding the building scale fivefold while maintaining a 55% green ratio is a great design challenge. Our strategy turns this challenge into an opportunity by creating an art museum fully integrated into the park. A close connection with the local community allows the museum to better fulfill its public education mission, while mixed-use programs serving the district and the city will support the museum operations, making them more sustainable. We position the green space next to the western road, ensuring maximum public accessibility and creating an imaginative forecourt for the museum.
▼体型生成,massing process

▼全天候艺术街区,all-day art community

▼三位一体,three-in-one museum

▼功能分布,program distribution

▼基本动线,circulation systems

▼功能分布,program organization

在剖面上,美术馆分为漂浮画廊与地景画廊两个部分,中间嵌入城市舞台,舒缓的绿坡将人们自然带入美术馆的入口大厅。入口上方倾斜的镜面巨幕面向艺术草坪,每个人都可以看到自己,让日常的生活场景转化为艺术本身。艺术不再是高高在上曲高和寡,而是融入生活的日常,最大程度的激发公众对艺术的好奇和参与感。镜面亦是大屏幕,可以完全打开的建筑立面,室内台地和室外绿坡形成的双面舞台,可激发多种有想象力的使用场景,草坪音乐节、露天电影院、实验性新媒体艺术都可以在此发生。立体通高无柱的大厅空间,舞台式天花设计,为大型艺术装置展示、展览开幕式、演出等多种场景提供理想的空间和设施。在平面上,整个美术馆分为三个部分。除新的画廊体量外,北侧保留建筑成为公共教育中心,南侧三角地容纳文化设施。三者各有独立入口,又彼此相连,提供灵活的运营可能。
▼城市舞台 开幕式,the stage: opening ceremony

▼城市舞台 多场景分析,the stage: functional scenarios

▼城市舞台 多场景分析,the stage: functional scenarios

▼城市舞台 镜面巨幕,the stage and its screen/mirror

In section, the museum is divided into two parts: the Floating Gallery and the Landscape Gallery, with an urban stage embedded in-between them. Gentle green slopes naturally guide visitors into the museum’s entrance hall. Above the entrance, an inclined giant mirror screen faces the art lawn, allowing everyone to see their own reflection and transforming daily life scenes into art itself. Art is no longer aloof and inaccessible but integrated into everyday life, maximizing public curiosity and engagement. At night the mirror also functions as a large screen. The fully openable building facade, combined with the indoor terraces and outdoor green slopes, forms a dual-sided stage that inspires various imaginative uses—lawn music festivals, open-air cinemas, and experimental new media art can all take place here. The volumetric, column-free hall space with a stage-like ceiling design provides an ideal setting and facilities for large art installations, exhibition openings, performances, and more. In plan, the entire museum is divided into three parts. In addition to the new gallery volumes, the retained building to the north becomes a public education center, while the triangular plot to the south accommodates cultural facilities. Each part has independent entrances yet remains interconnected, offering flexible operational possibilities.
▼效果图 从南极路看向美术馆,view from Nanji Road

▼艺术绿坡,the Art Lawn

▼纵向功能布局,vertical program stacking

▼剖透视 具备不同空间条件的画廊,sectional perspective: galleries with diverse spatial conditions

▼实体模型,physical model

建筑空间THE EXHIBITION SPACES
七个尺寸、净高、光照条件各不相同的展厅,垂直布置于丰富多变的剖面空间内。一部蓝绿渐变的半透明楼梯将一天一地两个画廊串联起来,形成令人耳目一新的参观体验。半透的表皮包裹下,渗透出的流光溢彩,如同水彩画一般。
Seven exhibition halls of varying sizes, clear heights, and lighting conditions are vertically arranged within a rich and varied sectional layout. A semi-transparent staircase in a gradient of blue and green connects the upper and lower galleries, creating a refreshing visitor experience. Beneath the translucent envelope, the permeating light and colors resemble a watercolor painting.
▼漂浮画廊与地景画廊,the Floating Gallery and the Landscape Gallery

▼尺度分析 不同空间条件的画廊,exhibition halls with diverse conditions

漂浮画廊由南北两个核心筒通过空间桁架托起,展览空间平面由顶层10*20轴网和其他层10*10构成,不同楼层间视线通透,彼此交互。立面的U型玻璃立面形成薄纱般表皮塑造柔和的基础光环境,顶层的大型画廊具有2000单层面积,模块化的空间方便划分成不同的艺术展览空间,顶部的天窗剖面设计利用漫反射引入间接光,可变滤光帘幕为不同艺术形式进一步提供精准适宜的光环境。
The Floating Gallery is supported by two structural cores at the north and south ends via spatial trusses. The exhibition space plan consists of a 10×20 grid on the top floor and 10×10 grids on other floors, allowing visual transparency and interaction between different levels. The U-glass facade creates a veil-like skin, providing diffused natural lighting. The large gallery on the top floor has a single-layer area of 2000 square meters, with a modular space easily divisible for different art exhibitions. The sectional design of the skylight introduces indirect light, and variable light-filtering curtains further provide variable lighting settings for different art forms.
▼大型画廊,F5 hall

▼中型画廊,F2 hall

地景画廊通过对3米覆土空间的起伏和刻画,提供三个净高不同的展厅,并在三处适宜的位置以天窗引入自然光,满足更多的展陈需求。三个展厅通过开放展示区与南侧文化设施中的多功能厅和与书吧结合设计的美术馆商店相连。整个地景画廊多变动态的空间体验,与通透简洁的漂浮画廊形成鲜明反差。
The Landscape Gallery, through the undulation and carving of the 3m deep soil cover, offers three exhibition halls with different clear heights. Skylights are strategically placed to introduce natural light, meeting diverse exhibition needs. These three halls connect to the multifunctional hall in the southern cultural facilities and the museum shop integrated with a book café via an open display area. The varied and dynamic spatial experience of the Landform Gallery contrasts sharply with the transparent and simple Floating Gallery.
▼展厅结构形式,the Floating Gallery: structural system

▼首层、二层展厅,the Floating Gallery: F1–F2 hall

▼五层大型展厅,the Floating Gallery: F5 hall (large size)

在动线设计方面,多样的动线设计允许不同长度的参观路径。我们特别关注美术馆运营时间范围内外的不同动线场景,允许文化设施和公共教育中心拥有不同的运营时间,甚至7天24小时开放。此外,资深的艺术爱好者还可前往漂浮画廊三层研究室观摩研讨,并可以在相邻的沙龙咖啡厅和艺术研究者互动交流。美术馆办公区设置在四层临近研究区域,工作人员可以从漂浮画廊北侧的独立入口和专属电梯到达。
In terms of circulation, diverse routes allow for visits of different durations. We paid special attention to circulation scenarios both during and outside museum operating hours, enabling cultural facilities and the public education center to have different schedules, even operating 24/7. Additionally, seasoned art enthusiasts can visit the research room on the third floor of the Floating Gallery for observation and discussion, and interact with art researchers in the adjacent café. The museum office area is located on the fourth floor near the research zone, accessible via an independent entrance and dedicated elevator on the north side of the Floating Gallery.
▼向公众开放的研究中心,research and office areas open to the public

考虑到场地的内涝风险,我们将最重要的展览空间和珍品库房置于漂浮画廊中。便捷的货运流线,将卸货区与地上地下的各个馆藏和备展间连接起来。
Considering the site’s waterlogging risk, the most important exhibition spaces and precious storage rooms are placed in the Floating Gallery. Efficient cargo flow connects the loading area with collection storage and preparation rooms both above and below ground.
▼B1层地景画廊,the Landscape Gallery

景观设计LANDSCAPE DESIGN
艺术公园被精心设计为四个区域,一并激活连接地块东南侧的闲置空间。阅读平台与图书馆联通,通透的界面,室内外充分渗透;艺术草坪是城市舞台的重要组成,舒缓的草坡既是观看演出的看台,又是周末休闲野餐或瑜伽的圣地;活力山丘为社区活动和前来美术馆的亲子家庭设计;共享广场则与周边地块共享共建,可以举办艺术市集,布置临时艺术装置。
The art park is meticulously designed into four zones, collectively activating the idle space connecting the southeastern part of the plot. The Reading Platform connects with the library, featuring transparent interfaces that blend indoor and outdoor spaces. The Art Lawn is a key component of the urban stage; its gentle slopes serve as stands for viewing performances and as ideal spots for weekend picnics or yoga. The Fun Hill is designed for community activities and families visiting the museum. The Shared Plaza, developed in collaboration with the surrounding plots, can host art markets and temporary art installations.
▼作为城市公园的美术馆,the museum as an urban park

▼活力山丘,the Fun Hill

▼雨洪管理策略,stormwater management strategy

▼降雨量应对,rain scenarios

改造后的美术馆通过建筑与景观一体化的整合设计,重建与水更友好的连接:多级生态与海绵措施,蓄滞净用相互结合,巧妙利用各类空间发展出蓝绿结合的雨水适应性景观,确保所有建筑空间的水安全。地下工程中还预留足够的额外蓄涝设施,以应对类似2023.08.26高标准暴雨事件带来的风险。作为新的城市公共空间,给大众带来水与自然的过程体验,让艺术与生态构成日常生活的新图景。
Through an integrated architectural and landscape design, the renovated museum reestablishes a more water-friendly connection: multi-level ecological and sponge measures combine storage, retention, purification, and utilization, cleverly using various spaces to develop blue-green combined rain-adaptive landscapes, ensuring water safety for all building spaces. Sufficient additional waterlogging storage facilities are reserved in the underground engineering to address risks from extreme storm events similar to the 2023.08.26 incident. As a new urban public space, Luohu Art Museum offers the public an experiential process of water and nature, integrating art and ecology into a new vision of daily life.
▼总平面图,master plan

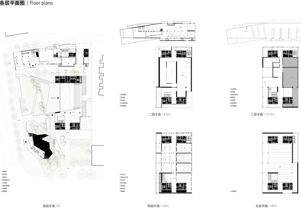
▼各层平面图,floor plans

▼剖面图,sections

项目信息
Project Data
Project: Luohu Art Museum Upgrading and Renovation Project – Full-Process Design
Year: 2023
Size: 26,288 m2
Type: Public Cultural Building
Status: Competition Finalist (top 5)
Location: Shenzhen, Guangdong Province, China
Client: Shenzhen Luohu District Government Investment Project Preliminary Work Management Center
Design Team: reMIXStudio
Partners in charge: Chen Chen, Nicola Saladino, Lyu Shoutuo
Team members: Zheng Xinran, Marco Navarro, Xiao Siqi, Liu Yi, Cheng Litian, Wang Xinyi, Wang Guoyi
Collaborative Design Institute: China Architecture Design & Research Group
Art Museum Exhibition Design Consultant: dUCKS scéno
Landscape and Water Specialist Consultant: WADI Engineering Design & Consulting (Beijing) Co., Ltd.














