长沙陈宅,湖南 / 以靠建筑
建筑学始终在回答两个最古老的问题:我们如何建造,以及我们为何如此建造。阿道夫·路斯在二十世纪初给出了一个充满道德感的答案:剥去外在的浮华装饰(“装饰即罪恶”),让建筑以其体量的“形体自身之美”直面世界,而将所有关乎舒适、情感与私密性的丰饶,都向内折叠进“空间体积规划”的复杂内部宇宙之中。这是一种“外部的克制”与“内部的满足”的辩证法。稍晚的勒·柯布西耶则提供了另一条路径,他将建筑视为一部引导身体的“机器”,一条精心编排的“漫步”路径,空间的价值在于其序列、光影与视野的动态体验。
Architecture has always been concerned with answering two of humanity’s oldest questions: how we build, and why we build in the way we do. In the early twentieth century, Adolf Loos offered an answer imbued with moral conviction. By stripping away superficial ornament—famously declaring that “ornament is crime”—he allowed architecture to confront the world through the beauty of its pure mass, while folding all matters of comfort, emotion, and privacy inward, into the rich and complex interior universe of spatial volumetric planning. This constitutes a dialectic between external restraint and internal fulfillment. Somewhat later, Le Corbusier proposed another path. He regarded architecture as a machine that guides the body, a carefully choreographed promenade architectural, in which spatial value emerges from sequences, light, shadow, and the dynamic experience of movement and vision.
▼外观概览,overall of exterior

而在东方,中国古典园林早已实践着另一套空间哲学:在有限的“壶中天地”里,通过“可行、可望、可居、可游”的布局,以“借景”之眼与“游观”之足,营造出无限的心灵宇宙。这三条思想脉络——路斯的伦理克制、柯布西耶的动态体验、东方园林的观游智慧——如同三束光,共同照亮了我们陈宅设计时的思考。
In the East, however, Chinese classical gardens had long practiced a different spatial philosophy. Within the limited realm of a “world contained in a pot,” they create an infinite mental universe through layouts that are walkable, viewable, inhabitable, and explorable, employing the eye of “borrowed scenery” and the feet of the wandering observer. These three intellectual lineages—Loos’s ethical restraint, Le Corbusier’s dynamic experience, and the contemplative wisdom of Eastern garden traditions—converge like three beams of light, illuminating the design thinking behind the Chen Residence.
▼室内概览,overall of interior

一、 场地的馈赠与“克制”的形体1. The Gift of the Site and a Restrained Form
项目始于一次决绝的告别:业主在找到我们前两年便推倒了场地上一栋欧陆风旧宅,这一行为本身即是对无根形式与消费符号的摒弃。我们面对的,是一片清空的场地、一个严格沿用旧宅红线的轮廓限定,以及几棵原地生长的树木。这一轮廓限定定义了创作的边界。在约2000平方米的限定范围内,我们的首要策略是“让”与“留”:以紧凑姿态将风雨廊与宅院入口贴边布置,从而在用地中央“让”出开阔草坪,为家庭生活预留活动场地。
The project began with a decisive farewell. Two years before commissioning us, the client demolished an existing Euro-style villa on the site—an act that itself signified a rejection of rootless formalism and consumerist symbols. What remained was a cleared site, a strict building envelope defined by the former red-line boundary, and several mature trees that had grown in place. This predefined footprint established the limits of creation. Within the approximately 2,000-square-meter boundary, our primary strategy was one of yielding and preserving. By compactly placing the covered walkway and main entrance along the site edge, we were able to “yield” a generous central lawn, reserving open ground for family activities. Under the constraints of the envelope, the external form of the building was almost passively generated—humbly responding to planning regulations and internal functional logic.
▼鸟瞰,aerial view


▼鸟瞰,aerial view

在轮廓限定下,建筑外部形体近乎“被动”生成——以谦逊姿态回应规划规则与内部功能逻辑。红砖作为一种回应的“表皮”对原有装饰风格的摒弃,让我们在材料的选择上尤为审慎。我们选择了赭红色的手工黏土砖。这一选择具有多重的意味:其一,砖是一种诚实、带有手工温度与时间质感的材料,它的色泽会随着风雨日光缓慢变化,与自然共同呼吸,这与追求瞬时视觉刺激的装饰性格格不入。其二,在周围多是光滑面材的别墅群中,红砖的质朴与稳重,赋予建筑一种沉静的“在地性”,它不张扬,却以自带的温暖、质感与时间感赋予建筑沉静的重量,与周遭的绿意建立了一种柔和而持久的对话。
The rejection of the former decorative language demanded particular care in material selection. We chose handmade, reddish-brown clay bricks as the building’s skin. This choice carries multiple layers of meaning. First, brick is an honest material, imbued with the warmth of craftsmanship and the texture of time; its color slowly evolves under sun, rain, and wind, breathing alongside nature—fundamentally at odds with architecture that pursues instant visual gratification. Second, within a villa neighborhood dominated by smooth, polished surfaces, the brick’s solidity and restraint lend the building a quiet sense of placeness. It does not call attention to itself, yet through its warmth, tactility, and temporal depth, it acquires a calm gravitas, engaging in a gentle and enduring dialogue with the surrounding greenery.
▼住宅花园一侧立面,facade of the garden side


▼赭红色的手工黏土砖,red handmade clay bricks


▼夜景,night view of the facade

▼立面局部,part of the facade


▼东立面夜景,night view of the east facade

▼东立面日景,day view of the east facade

二、 路径的生成:一次为了“游”与“留”的绕行2. The Generation of a Path: A Detour for Wandering and Dwelling
那么进入建筑的过程,则被设计为一次充满东方“游观”意趣。一个由清水混凝土整体浇筑的深挑雨棚,如舞台的序幕,将街道外的喧扰暂且隔绝。自此,一条幽净的、线性的风雨廊道,紧贴场地边界,向内蜿蜒延伸。行走于此,一侧是沿着建筑边界混凝土围墙,另一侧是渐渐展开的大草坪,视线被引导至建筑主体入口、客厅的大玻璃窗……亦被风雨廊的片墙适度地收束,心绪在行进步履中逐渐沉淀。这条路径在即将抵达建筑主体入口时,遇到了场地给予我们的一份馈赠——一棵高大的香樟树。它恰好伫立在风雨廊与建筑入口衔接的转角处。我们选择让路径温柔地“绕行”。廊道在此以一个圆滑的弧度,谦逊地避让了树木,随后再与建筑入口的雨棚自然衔接。
The act of entering the building is conceived as a journey infused with the Eastern spirit of youguan—wandering and viewing. A deeply cantilevered canopy of exposed concrete, like a theatrical prologue, temporarily separates the interior realm from the noise of the street. From here, a quiet, linear covered corridor extends inward along the site boundary. On one side runs a concrete wall aligned with the building edge; on the other, the central lawn gradually unfolds. The eye is guided toward the main entrance and the large glass window of the living room, yet intermittently restrained by freestanding wall planes. With each step, the mind settles. Just before reaching the entrance, the path encounters a gift from the site: a tall camphor tree standing precisely at the corner where the corridor meets the entry. Rather than removing it, we allowed the path to gently detour. The corridor curves with a smooth arc, humbly yielding to the tree before reconnecting naturally with the entrance canopy.
▼清水混凝土整体浇筑的深挑雨棚,the cantilevered canopy of exposed concrete

▼风雨廊,corridor


▼风雨廊绕开了香樟树,the rain and wind corridor bypassed the camphor trees


▼廊道在此以一个圆滑的弧度,谦逊地避让了树木,the corridor gracefully curved around, respectfully giving way to the trees here


▼日景与夜景,day view and night view


这个“绕行”的弧度,并非形式上的矫饰,而是对场地既有条件的尊重,也是功能逻辑的必然。为了最大化中央草坪,风雨廊必须尽量贴边;而为了保留香樟,路径必须绕行。形式在此刻,忠实地记录下了功能与场地条件相遇时所激发的真实状态。更有意味的是构造细节:廊道顶棚与建筑入口雨棚存在高差,我们在弧形转折处,将顶棚顺势“切”开一道流畅的缺口,形成自然的高低过渡。当人行走至此,身体因弧线而微微转向,视线掠过斑驳的树皮,抬头可见一线天空从切口洒落。这棵树,这个“圆”,这个“切口”,共同构成了空间序列中一个充满惊喜的“停顿点”,一个让行走经验变得丰盈的“景”。这正是“游”的意趣所在:目的地的抵达固然重要,但路径本身的过程、沿途的偶遇与发现,共同构成了完整的体验。
This curved detour is not a formal affectation, but the faithful record of a negotiation between site conditions and functional necessity. To maximize the central lawn, the corridor had to remain close to the boundary; to preserve the camphor tree, it had to bend. Here, form emerges as the truthful consequence of constraints. The construction detail further enriches the experience. A height difference exists between the corridor roof and the entrance canopy. At the curved junction, we “cut” a fluid opening between them, creating a natural transition. As one walks through this moment, the body subtly turns with the curve; the gaze brushes across the textured bark of the tree, and above, a sliver of sky pours down through the opening. The tree, the arc, and the cut together form a moment of pause—a scenic interlude that deepens the spatial sequence. This is the essence of wandering: the destination matters, but the journey, with its encounters and discoveries, completes the experience.
▼入口,entrance

▼风雨廊与建筑的交汇,intersection of the corridor and the building

▼近景,closer view

三、 立体的园林:空间、声音与光的流动3. A Vertical Garden: The Flow of Space, Sound, and Light
进入建筑室内,建筑化身为一个立体的、可居可游的游园空间。南北向剖面,一层局部下沉的客厅与有两层挑高的餐厅连通,视线可以毫无阻隔地越过庭院,投向远方,室内外的边界“消失”。东西向剖面,空间的流动性更加戏剧化:一、二层挑空的家庭餐厅,与二、三层挑空的儿童活动区,形成成一个贯通三层的“共享腔体”。这个垂直连通的空间,是设计的核心。它绝非为了形式的炫耀,而是源于对家庭生活最细腻的洞察。
Upon entering the interior, the house transforms into a three-dimensional, inhabitable garden. In the north–south section, a partially sunken living room connects with a double-height dining space, allowing uninterrupted views across the courtyard toward the distance, dissolving the boundary between inside and outside. In the east–west section, spatial flow becomes more dramatic. A double-height family dining area on the first and second floors intersects with a double-height children’s activity zone spanning the second and third floors, together forming a vertical “shared chamber” that connects three levels. This vertically continuous space is the core of the design—not a gesture of formal bravado, but the result of careful observation of family life.
▼局部下沉的客厅,the partially sunken living room


▼两层挑高的餐厅,double-height dining space

▼一层空间,ground floor space

当母亲在一层餐厅轻声呼唤,声音可以自然而然地向上漫溢,清晰地抵达在二层、三层玩耍的孩子耳中。反之,位于三层主卧起居室的父母,也能通过这个“腔体”,轻松地“瞰”见二层儿童活动区的动静。空间,成为了维系家庭情感的无形纽带,一种非打扰的、温暖的关注媒介。这是对柯布西耶“动态体验”理念的空间流动性一种家庭化转译——漫步不仅是身体的移动,更是视线与声音在垂直维度上的自由穿行。
When a mother softly calls from the dining area below, her voice naturally rises through the chamber, clearly reaching children playing on the upper floors. Conversely, parents in the third-floor master living area can effortlessly “overlook” the activity of the children below. Space becomes an invisible bond that sustains family intimacy—a warm medium of attention that does not intrude. This is a domestic reinterpretation of Le Corbusier’s dynamic experience: the promenade is no longer only bodily movement, but also the free passage of sight and sound through vertical space.
▼二层空间,upper floor space


▼家庭图书馆,domestic library

光,是这立体园林中最富诗意的“漫游者”。第一缕天光从屋顶斜射入儿童活动区的挑空,随时间在墙面与地板上缓缓“行走”,像一只无声的日晷;第二束天光,则精确地落入主卧的衣帽间;第三到光柔和得进入浴室与主卧之间的走道上,将日常的起居洗漱,点化为一场与光影的私密对话。这便是在路斯“内部满足”框架下,对情感与氛围的极致追求。
Light is the most poetic wanderer in this vertical garden. The first beam of daylight enters obliquely from above into the children’s activity space, slowly traversing walls and floors like a silent sundial. A second shaft of light is precisely directed into the master bedroom’s dressing room. A third, softer glow slips into the corridor between the bathroom and bedroom, transforming daily routines into an intimate dialogue with light and shadow. This represents the ultimate pursuit of emotional atmosphere within Loos’s framework of internal fulfillment.
▼衣帽间与天光,the dressing room and skylight

四、 框景:将世界引入方寸4. Framing the World
建筑与外部世界的对话,通过一系列如画框般“精确计算”的开窗来完成。客厅的水平长窗,将草坪绿意定格为生活的全景背景;餐厅的方窗,专门对准北庭院中的一株鸡爪槭,框取一幅四季变幻的立轴画;健身房朝西的水平长条窗,则框取那棵香樟的树影入内。
The dialogue between the building and the outside world is conducted through a series of precisely calibrated openings, each acting like a picture frame. A horizontal window in the living room captures the lawn as a panoramic backdrop to everyday life. A square window in the dining area is aligned with a Japanese maple in the northern courtyard, framing a vertical scroll painting that changes with the seasons. A horizontal slit window in the west-facing gym brings the shadow of the camphor tree indoors.
▼楼梯间望向餐厅的方窗,the square window in the stairwell looking out onto the dining room

▼走廊尽头的窄窗,the narrow window at the end of the corridor

▼健身房的条形长窗,the long rectangular windows of the gymnasium

最巧妙的一处,是儿童区走道尽端的竖向窄窗,它别无他物,只“借”来东邻院落的一角绿荫,成为走廊尽头永恒的、充满生机的端景。这些窗,是“借景”艺术的当代演绎。它们不仅将风景引入,更通过精心的构图,赋予寻常景物以画的意蕴。同时,建筑通透的界面也让内部生活的场景隐约透出,与庭院、树木形成一种“看与被看”的互动,建筑本身也成为了环境中的一景。
Most subtle is the narrow vertical window at the end of the children’s corridor. It frames nothing more than a corner of greenery from the neighboring courtyard, yet becomes a permanent, vibrant focal point at the end of the passage. These windows are contemporary interpretations of the art of borrowed scenery. They do not merely admit views, but through careful composition, elevate the ordinary into the poetic. Meanwhile, the building’s transparency allows glimpses of interior life to filter outward, engaging in a reciprocal act of seeing and being seen. The house itself becomes part of the landscape.
▼走廊,hallway

▼丰富的窗口,various windows

▼窗口,window

结语:尊重、流动与栖居Conclusion: Respect, Flow, and Dwelling
这座红砖宅院,最终讲述的是一个关于“尊重”的故事。它尊重场地的限制,化限制为清晰的形体逻辑;它尊重既有的生命(场地里的香樟),让树木成为设计的灵感;它尊重家庭生活的本质,用流动的空间促进亲情的联结;它尊重材料的本性,让红砖的温暖与厚重沉淀出时间的质感;它更尊重居住者的心灵,用光、景与空间序列,营造出一处可游、可望、可居的诗意栖所。它没有惊世骇俗的形式,却试图在平凡的方寸之间,通过对路径、光线、视野和材料这些基本元素的精心经营,重拾建筑的朴素美德与空间的情感力量。在这里,路斯的“克制与满足”、柯布西耶的动态体验与东方的观游智慧,不再是被引用的理论,而是化为了砖、空间、光影与生活在此场所的人之间,一段柔和而动人的对话。
Ultimately, this brick residence tells a story of respect. It respects the constraints of the site, transforming limitation into clear formal logic. It respects existing life, allowing the camphor tree to become a source of inspiration. It respects the essence of family living, using flowing space to nurture emotional connection. It respects the nature of materials, allowing brick to accumulate warmth and gravity over time. And above all, it respects the inner world of its inhabitants, shaping a poetic place to wander, to view, and to dwell through light, framed scenery, and spatial sequences. The house does not seek spectacular form. Instead, within the ordinary scale of daily life, it aspires—through the careful orchestration of paths, light, views, and materials—to recover architecture’s modest virtues and its emotional power. Here, Loos’s restraint and fulfillment, Le Corbusier’s dynamic experience, and the wisdom of Eastern wandering are no longer cited theories, but are translated into a gentle and moving dialogue between brick, space, light, and the lives unfolding within.
▼外观局部,closer view of the facade


▼外观细部,exterior details

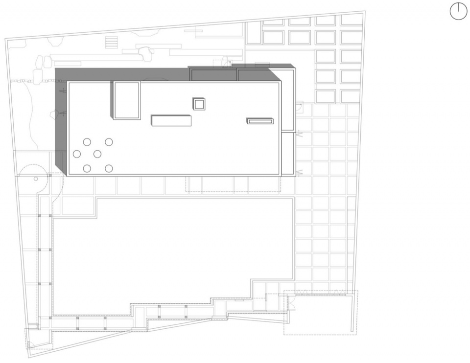
▼总平面图,master plan

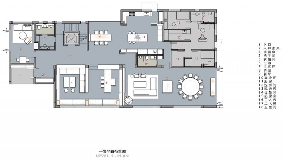
▼一层平面图,level 1 plan

▼二层平面图,level 2 plan

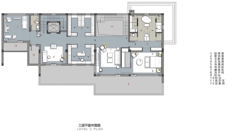
▼三层平面图,level 3 plan

▼剖透视图,perspective sections



Project Name: Chen Residence, Changsha
Project Location: Changsha City, Hunan Province, China
Design Period: 2021-2023
Construction Period: 2023-2025
Building Area: 1100 m²
Client: Mr. Chen
Chief Architect: Li Yikao / Leeko Architects
Architectural Design Team: Li Yikao, Lin Jinchao, Wu Wenjun, Su Yuqian, Yang Binrui, Chen Zili, Zhang Qu / Leeko Architects
Interior Design Team: Li Yikao, Chen Yunzhu, Zhang Xingbin, Liu Jieqiu, Chen Jia, Pan Haojia, Li Wenhan / Leeko Architects
Landscape Design Team: Li Yikao, Zheng Sijie, Pan Haojia, Zhou Lingxuan / Leeko Architects
Photographer: Zhang Yong / ZY Architecture Photography














