住宅与蜂场,匈牙利 / OKKA Architects
项目坐落于匈牙利西部巴拉顿高地(Balaton Uplands)一处幽静的盆地之中,“住宅与蜂场(House and Beeyard)”源自一座老石屋及其附属的农业用房遗存。其中一栋附属建筑在当地被称为“Beeyard”,曾用于存放蜂箱。项目最初计划对原有建筑进行翻新,但在勘察过程中发现,原有石墙在结构上已无法修复。面对这一现实,建筑师选择在原有体量与位置的基础上重新建造,通过当代的建造方式,对传统建筑进行再诠释。
Set within one of the secluded basins of the Balaton Uplands in Western Hungary, House and Beeyard originates from the remains of an old stone house accompanied by agricultural outbuildings. One of these, known locally as the “Beeyard,” once stored beehives. Initially planned as a renovation, the project evolved when it became clear that the existing walls were structurally unsalvageable. The architects responded by designing new structures that faithfully echo the original volumes and positions while reinterpreting them through contemporary construction.
▼项目概览,Overview of the project


▼立面概览,Overview of exterior

▼周边环境,Surrounding environment

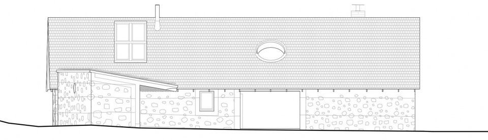
对材料连续性的坚持自项目伊始便成为核心原则。旧石屋中回收的大块石材被重新利用,嵌入新建的夯筑混凝土墙体之中。墙体采用了定制配比的混凝土,并掺入来自附近采石场的玄武岩骨料。相同的玄武岩材料也被运用于手工制作的水磨石地面,使建筑的表面肌理与当地的地质特征形成内在呼应。
A commitment to material continuity shaped the project from the beginning. Large stones salvaged from the old house were incorporated into new rammed-concrete walls, executed with a custom mix of concrete and basalt aggregate from a nearby quarry. The same basalt reappears in the handcrafted terrazzo floors, tying the project’s surfaces back to the geology of the region.
▼半室外空间,Semi-outdoor space


▼呼应当地地质特征,Tying the geology of the region

▼利用回收的大块石筑墙,Large stones were incorporated into new rammed-concrete walls

在室内空间中,云杉胶合板被用于开放式起居空间的屋顶内表面,并延伸至多件定制家具之中,形成统一而温暖的材质语言。附属建筑同样延续了这一材料体系,而其屋顶则覆盖以木瓦,进一步强化了与地方手工传统及乡村建造方式之间的联系。
▼模型,Models


Inside, spruce plywood forms the surfaces of the roof over the open living room as well as several custom furniture pieces. The outbuilding retains this material language, while the roof is finished with wooden shingles, reinforcing the connection to local craftsmanship and traditional rural building methods.
▼入口,Entrance

▼厨房,Kitchen

▼餐厅,Restaurant


▼楼梯,Stairs

▼二楼望向一楼,View from first floor

▼卧室,Bedroom

▼卫生间,Toilet


住宅的空间特质以开放的姿态融入周围景观:视线、门槛与过渡空间被精心处理,室内与室外的界限被不断弱化,使周边的地形起伏与村落肌理自然融入日常生活之中。在尺度控制、材料表达与建构逻辑的清晰呈现上,“住宅与蜂场”展现了一种将乡村遗产细腻编织进当代建筑实践的成熟姿态。
The spatial character of the house opens fluidly to the landscape: views, thresholds, and transitions blur the distinction between interior and exterior, allowing the surrounding topography and village texture to become part of the daily experience. In its scale, materiality, and tectonic clarity, House and Beeyard represents a thoughtful weaving of rural heritage into contemporary architectural practice.
▼建筑立面细部,Facade detail


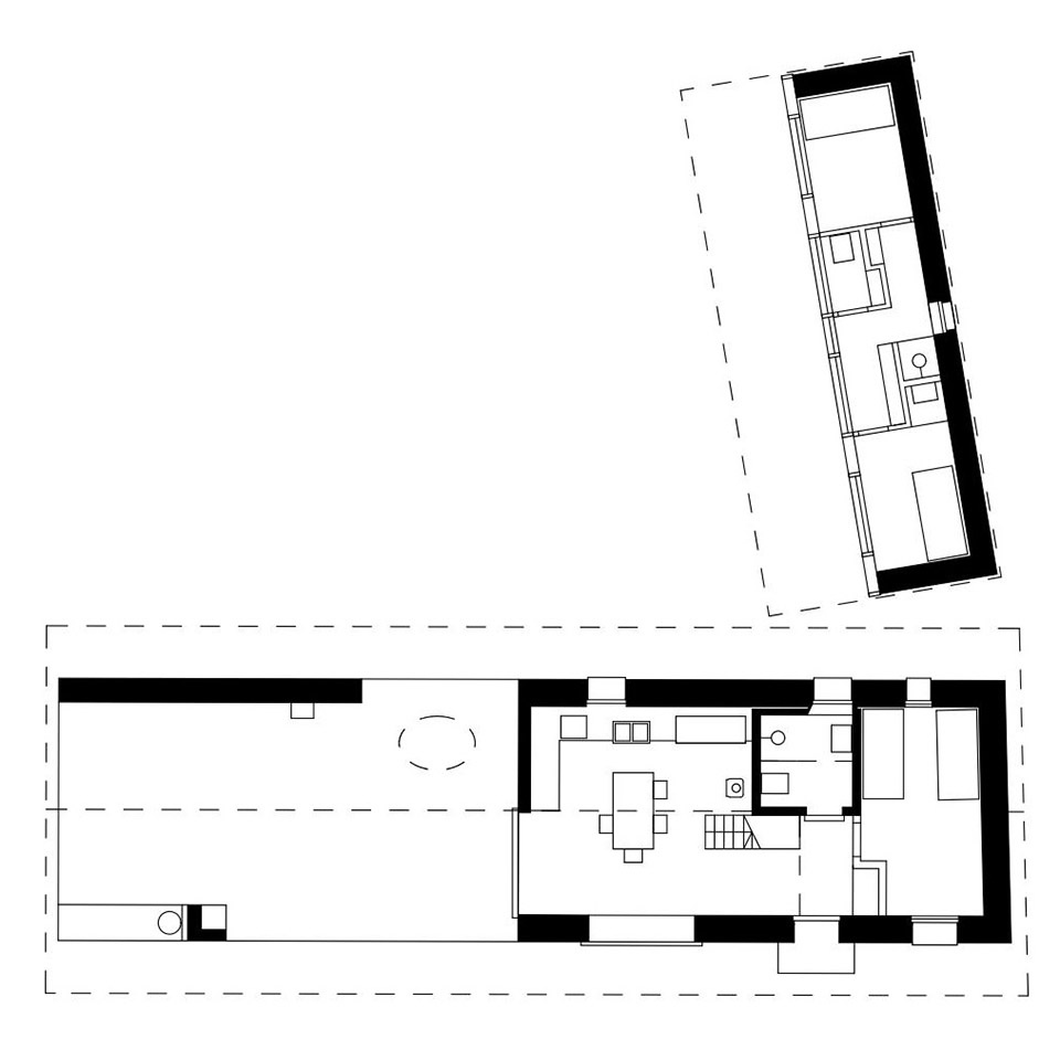
▼场地平面图,Site plan

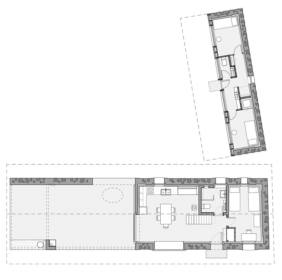
▼首层平面图,Ground floor plan

▼二层平面图,First floor plan

▼立面图,Elevation




▼剖面图,Section

Project Name: House and Beeyard
Location: Western Hungary, Balaton Uplands
Gross Floor Area: 81.46 m²
Design Period: 2015–2019
Construction Period: 2018–2024
Architects: OKKA Architects – Péter Szabó DLA – Emese Galamb
Photography: Balázs Danyi














