LA CRETÂ农舍,瑞士 / BARD YERSIN
该项目涉及对一处位于18世纪农舍乡村部分内的公寓进行改造。这一时期的弗里堡农舍通常在同一屋檐下同时容纳居住空间与农业功能。乡村部分由两侧的马厩夹持一条中央通道——fourragère,这是一条用于喂养牲畜的贯通空间,同时因其较高的层高,可在马厩上方储存干草。
The project involves the transformation of an apartment occupying the rural part of an 18th-century farmhouse. Fribourg farmhouses of that era housed both living quarters and farm functions under one roof. The rural section consisted of two stables flanking a central passageway — the fourragère — a through-space used for feeding livestock, which also benefited from additional height allowing hay to be stored above the stables.
▼项目概览,overview of the project

▼室内概览,overview of the interior


▼用于喂养牲畜的贯通空间,
a through-space used for feeding livestock

这套公寓由前任业主于2011年完成改造,该次翻新在很大程度上改变了原有乡村体量的物质构成与空间属性。原始的天花木梁被混凝土楼板取代,木结构被砌体墙体所替换,屋顶结构也被层压木梁(glulam)所取代。
The apartment, fitted out in 2011 by previous owners, resulted from a renovation that significantly altered the rural volume’s substance and nature. The original ceiling joists were replaced with a concrete slab, the wooden structure was substituted with masonry walls, and the roof framework removed in favour of glulam beams.
▼垂直空间,vertical space


▼镜中的空间,Space in the mirror

▼屋顶结构,roof framework

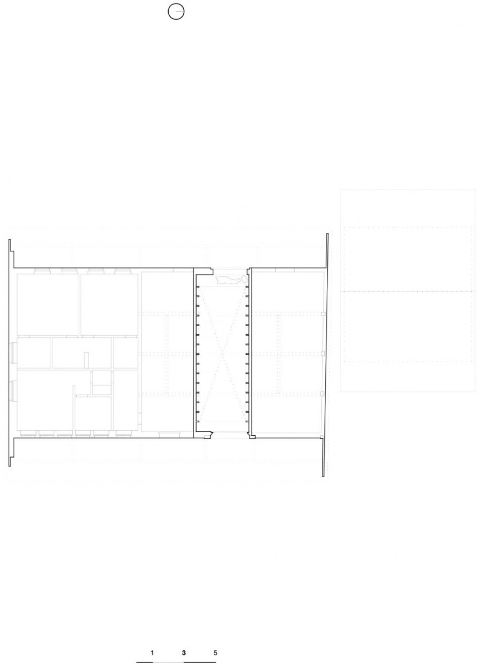
本次项目以一种“再”转化的形式介入谷仓,通过减法策略,重新显露空间的原始品质。主要干预在于恢复fourragère原有的空间特征:拆除后期设置的隔墙,以重建其贯通式空间形态;同时对楼板进行全厚度切割,使其垂直向度得以恢复。
The current project takes the form of a “re”- transformation of the barn based on subtraction, revealing the original qualities of the space. The main intervention restores the previous spatial character of the fourragère: partitions were removed to recover its through-configuration, and the slab was cut through its full depth to bring back its verticality.
▼卫生间,bathroom

▼窗户细节,window detail

▼材料细节,material detail



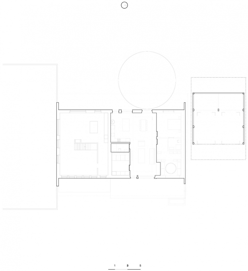
最终形成的空间布局遵循一种三分式结构:中央起居空间占据原先的 fourragère,而服务空间与卧室则布置于两侧的结构跨间之中。材料选择亦遵循相同逻辑:去除仿托斯卡纳风格的饰面,替换为令人联想到挤奶间的白色瓷砖;抹灰层被剥除,显露出下方原有的材料肌理。
The resulting layout follows a tripartite scheme: the central living space occupies the former fourragère, while service rooms and bedrooms are housed in structural bays on either side. Material choices reflect the same logic: pseudo-Tuscan finishes were replaced with white tiles reminiscent of milking rooms, and plaster was stripped to reveal the original textures underneath.
▼总平面,master plan

▼平面,floor plan


▼剖面,section















