Utriai谷仓住宅,立陶宛 / Architectural Bureau G.Natkevicius & Partners
在克莱佩达地区的乌特里艾(Utriai)村,一座新建建筑打破了人们对农用建筑的刻板印象。由 G. Natkevičius & Partners 建筑事务所设计的这一项目,在金属“铠甲”之下,不仅容纳着农业机械,也隐藏着一处可接待访客、供人留宿的温馨空间。
In the village of Utriai (Klaipėda District), a newly constructed object dismantles the stereotypical view of a farm building. The architectural bureau “G. Natkevičius & Partners” presents a project where, beneath a metal “armor,” lies not only machinery but also a cozy space adapted for hosting guests and overnight stays.
▼总体鸟瞰,aerial view of the site


▼顶视图,top view

当代建筑日益模糊不同功能之间的界限:为何用于停放农机的建筑不能兼具美感?为何仓库不能成为舒适的客居空间?该项目以一种混合模式回应了这些问题——它是一座“其他(农用)用途建筑——谷仓(jauja)”,在实用功能与居住舒适性之间取得平衡。
Contemporary architecture increasingly blurs the lines between functions. Why can’t a building designed for farm equipment be aesthetically pleasing? Why can’t a warehouse become a cozy shelter for guests? This project answers both questions by proposing a hybrid model: it is an “other (farm) purpose building – barn (jauja),” where utility meets comfort.
▼南侧立面,south facade


项目的核心设计语言是“灵活性”。建筑平面被清晰地划分为两个功能区,虽同处一个屋檐之下,却对应着截然不同的使用场景。体量较大的部分用于“洁净型”储藏空间:这是一个高挑、开敞的空间,通过宽大的分段式大门进入,非常适合存放机械设备或进行规模较大的农业作业。
The primary architectural code of this project is flexibility. The plan structure is clearly divided into two zones which, although under one roof, serve different scenarios. The larger part of the volume is dedicated to “clean” storage—a high, open space accessible through wide sectional doors, perfectly suited for machinery or larger agricultural tasks.
▼入口大门,entrance


▼条形窗将建筑分为两段,the strip windows divide the building into two sections.

而建筑的西侧则以更贴近人的尺度展开。这里设有独立入口,通向一系列突破传统仓库定义的空间。辅助用房与夹层共同构成了一个高度通用的场所。得益于高品质的机电系统与充足的自然采光,这一区域可在不同状态间迅速切换:白天作为工作室或作坊使用,必要时则可转变为完整的居住空间,为访客提供面向自然景观的住宿体验。
However, the western part of the building is designed on a human scale. Here, a separate entrance leads to areas that transcend the concept of a typical warehouse. The designed auxiliary rooms and the mezzanine floor create a truly universal space. Thanks to high-quality engineering solutions and an abundance of natural light, this zone can transform instantly: during the day, it can serve as a workspace or workshop, and when needed, it becomes a fully-fledged living area for guests, offering accommodation with a view of nature.
▼远景,viewing the project at distance

▼三角形的侧立面,triangle profile of the house


这种在农用建筑中并不常见的舒适感,源于材料的精心选择。项目主创建筑师 T. Jūras 与建筑师 K. Lodaitė 有意避开“廉价”的装饰性做法,室内气质主要由外露的胶合木结构(GL28h 等级)塑造。厚重的木结构框架为空间带来节奏感与温度,柔化了抛光混凝土地坪所具有的工业冷感。木材与混凝土的组合营造出一种近似 loft 的空间氛围——既足够坚固耐用,适合工作,又足够细腻,适宜休憩。
The coziness, unusual for farm buildings, is created by the choice of materials. The architects (Project Lead T. Jūras, Arch. K. Lodaitė) deliberately avoid “cheap” finishing solutions.The character of the interior is shaped by exposed glued laminated timber (glulam) structures (GL28h class). Massive wooden frames add rhythm and warmth to the space, softening the industrial coolness of the polished concrete floors. This duo of materials creates a loft-like aesthetic—the space is durable enough for work, yet refined enough for relaxation.
▼室内概览,overall of interior

▼客厅,living room


▼厨房餐厅,kitchen and dining


▼农用厨房空间,agricultural storage space

若建筑不仅服务于物件,也服务于人,自然采光便至关重要。西立面的大面积玻璃窗将日落景象框入室内;而最引人注目的设计元素,则是由屋顶天窗延伸至北立面的竖向开窗,使光线能够深入建筑内部,即便最深处的空间也能获得自然照明。这一设计让夹层不再像传统阁楼,而更接近一处开阔的“观景室”。
For a building to be suitable not just for objects but for people, natural light is vital. A large glass showcase in the western facade frames the sunsets, while the most striking element—a skylight that transitions into a vertical window on the northern facade—ensures that even the deepest corners of the building are illuminated. This allows the mezzanine to feel not like an attic, but like a spacious observatory.
▼楼梯,staircase


▼卧室,bedroom

从外观上看,建筑依然保持着克制而封闭的姿态。单坡、楔形的体量被统一包覆于不锈钢色的夹芯板“外壳”之中,宛如一座坚固的建筑容器:耐久、低维护,守护着内部丰富而多重的生活场景。35 度的屋顶坡度不仅塑造了富有动感的轮廓,也为未来实现能源自给(如太阳能利用)预留了可能。
Externally, the building remains mysterious and enclosed. The mono-pitch, wedge-shaped volume is clad in a uniform “skin”—stainless steel-colored sandwich panels. It is a building-shell: strong, durable, low-maintenance, protecting its internal, multifaceted life. The 35-degree roof pitch not only forms a dynamic silhouette but is also ready for energy independence (solar power).
▼夜景,night view

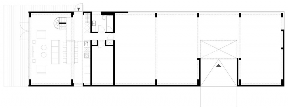
▼底层平面图,ground floor plan

▼夹层平面图,mezzanine floor plan

▼立面图,elevations



▼剖面图,sections


Main Information
Project Name: Storage barn in Utriai
Office Name: Architectural Bureau G.Natkevicius & Partners
Office Website: http://www.natkevicius.lt/
Social Media Accounts:
LinkedIn account: G. Natkevicius ir partneriai (https://www.linkedin.com/company/g-natkevi%C4%8Dius-ir-partneriai/?viewAsMember=true)
Facebook account: G. Natkevičius ir partneriai (https://www.facebook.com/Natkeviciusirpartneriai)
Contact email: info@natkevicius.lt
Firm Location: Kumeliu st. 6-101, Kaunas LT 44281, Lithuania
Completion Year: 2025
Gross Built Area (m2/ ft2): 206 m2
Project location: Utriai, Klaipėdos District Municipality, Lithuania
Lead Architects: K.LODAITĖ, G.NATKEVIČIUS
Lead Architects e-mail: info@natkevicius.lt
Photographer
Photo Credits: Lukas Mykolaitis
Photographer’s Website: https://www.instagram.com/lukas.mykolaitis.docu/














