同理轩美术馆,杭州 / TAOA陶磊
这是一个在未施工完成的社区项目基础上改建而成的社区美术馆,未来的展览内容将以现当代艺术为主。
This is a community art museum renovated from an unfinished community project, with future exhibitions focusing primarily on contemporary art.
▼被掀开的立面,the peeled-back facade

▼被掀开的入口峡谷,the peeled-back entrance canyon

▼冲孔网后若隐若现的楼梯,stairs partially visible behind the perforated mesh

建筑的前身包含地下和地上两个部分,地下是已施工完成的社区地下停车场,地上则是一处独立但尚未动工的 570 ㎡社区公共空间。为满足美术馆的实际需求,需将部分地下停车空间改造为展厅,并与地上待建的独立空间相连。原本的设计任务为美术馆的室内空间设计,因地上原规划建筑尚未动工,随着方案推进,室内设计逐渐延伸为整体建筑的改建设计——这是一次由内而外的创作:内部空间需求逐渐改变了建筑原有的结构、空间与外立面,使其蜕变为一座全新建筑,也彻底重新定义了这座建筑。但建筑的基本外形需遵循原有审批的规划要求,即一个被正圆柱体切削的立方体,同时必须顺应已施工完成的地下结构。这些既定条件也成为了新设计的核心切入点,显然这如同一个命题作文。
▼原始条件,original stated

The original structure comprised two parts: an underground parking lot already completed and an independent 570 m² community public space on the ground level that was yet to be built. To meet the museum’s functional needs, part of the underground parking was transformed into galleries and connected to the ground-level space. While the initial brief was for interior design, the fact that the ground building had not yet started allowed the design to evolve into a comprehensive architectural renovation. This process was a creation from the “inside out”: the requirements of the interior space gradually reshaped the building’s structure, spatial configuration, and facade, transforming it into a brand-new entity and completely redefining the architecture. However, the basic form had to adhere to original planning approvals—a cube cut by a cylinder—while accommodating the existing underground structure. These constraints became the core entry point for the new design, much like a “themed essay.”
▼从桥上看向北立面,north facade view from the bridge

▼灯笼般的金属网罩,lantern-like metal mesh skin

这栋面积不大的美术馆正前方面对着一条穿城河流,侧边紧邻城市主干道,因此它不仅属于社区,也属于城市的一部分。建筑朝向城市的一面被“掀开”,将原本被包裹完整的空间打破,撕裂的外壳让这座建筑变得既独立又开放。整个正面采用不锈钢板冲孔处理,使室内空间完全开放,一览无余地朝向城市;而从外部看来,建筑仍保持着独立完整的形态。室内透过完整的落地玻璃与冲孔不锈钢板看向城市,一幅巨幅城市画卷经冲孔板过滤后变得模糊而抽象;外界光线经过筛选,柔和地渗入室内。
▼形体由来与演变,Original mass and development

▼弧形瓦楞形体生成,Generation of the curved corrugated mass

Facing a river that traverses the city and adjacent to a main thoroughfare, this small-scale museum belongs to both the community and the city. The side facing the city is “peeled back,” breaking the originally enclosed space. This “torn” shell makes the building appear both independent and open. The entire front facade utilizes perforated stainless steel, allowing the interior to open up completely to the city. From the outside, the building maintains an independent and complete form. Through the full-height glazing and perforated plates, the city appears as a blurred, abstract scroll of light and shadow, with external light filtered softly into the interior.
▼东侧水景,east side waterscape

▼隔河而望,view across the river

▼弧面金属板带来的曼妙反射,subtle reflections on curved metal panels

被“掀开”的立面不同于普通开窗,它将室内空间更彻底地打开——这不仅是开启面积比例的问题,更是对空间开放性的直接感官表达。二层的立面因掀起角度不同,同时充当了一层掀开式雨棚的拉结结构,雨棚向下倾斜的出挑形态,让人联想起传统的檐下空间。
The “peeled back” facade differs from conventional windows; it opens the interior more thoroughly—not just in terms of the opening ratio, but as a direct sensory expression of spatial openness. Due to the varying angles of the lift, the second-floor facade acts as a tension structure for the first-floor canopy. The downward-slanting form of the canopy evokes the feeling of traditional eaves-shaded spaces.
▼西立面,west facade

▼西南视角,southwest perspective

▼掀开的局部,peeled-back detail

▼掀开立面连通城市空间,Peeling back the envelope to connect with urban space

透明连续的弧面板形成的波浪形态赋予建筑自身秩序,光线借助不锈钢曲面形成的反射,产生出微妙变化,唤起了建筑体量如雕塑般的柔情感受,使其呈现出优雅的姿态。
The wave-like patterns formed by transparent, continuous curved panels grant the building its own order. Light reflections off the stainless steel surfaces create subtle variations, evoking a sculptural tenderness and an elegant posture for the architectural volume.
▼主干路看向东立面,east facade view from the road

▼总体概览,general overview

不锈钢材料的选择具有时代性,其工艺特征契合当今的加工便利性。材料本身的光泽与冲孔设计带来的光线丰富变化,既契合当代的精神需求,也是为了更好地融入日益快节奏的现代城市。
The choice of stainless steel reflects the contemporary era, with its processing characteristics suiting modern fabrication conveniences. The material’s inherent luster combined with the dynamic light patterns from the perforations meets contemporary spiritual needs while better integrating the building into the increasingly fast-paced modern city.
▼东立面,east facade

▼东立面02,east facade 02

立面采用弧形钢板,不仅与半圆形的基础体量取得一致性,也借用弧形板自身的张力达到所需强度,省去了通常需在背后设置的龙骨。这使得室内透过网孔向外眺望时,看不到多余的构件。这不仅在视觉上形成纯净的韵律,也符合内在的建造逻辑,无论从外看向室内还是从室内望向室外,都保持了空间的单纯性。
▼掀开立面,连接城市空间,Peeling back the envelope to connect with urban space

The use of curved steel plates on the facade ensures consistency with the semi-cylindrical base and utilizes the inherent tension of the plates to achieve structural strength, eliminating the need for internal mullions. This results in a pure visual rhythm when looking out through the mesh, free from redundant components. It aligns with an internal logic of construction, maintaining spatial simplicity whether viewed from the inside or outside.
▼檐下空间,sheltered under-eave space

▼檐下空间02,sheltered under-eave space 02

▼檐下空间03,sheltered under-eave space 03

▼檐下空间局部,detail of sheltered under-eave space

入口设于半圆形内凹处,这一选择不仅基于建筑的基本形态,更意在借用原始设计中半圆形所塑造的场所向心性,更好地将美术馆与社区联结起来。从半圆一侧将立面掀开一道缝隙,顶部天光倾泻而入,照亮这个三层高的“空间峡谷”,由此完成观众从社区空间进入艺术空间的心境转换。入口如蜿蜒峡谷,是一处柔化的礼仪性空间,这里并不同于大型美术馆的宏大叙事,更强调人身体的具体体验。自然光从高处的缝隙中渗入,顶部的光线、侧墙的弧线与金属墙面材料的半透明性所带来的感受相互叠加,形成一瞬间超自然的体验,是进入建筑前的精神礼遇。
▼被掀开的入口峡谷,The peeled-back entrance canyon

▼被掀开的入口峡谷,The peeled-back entrance canyon

The entrance is situated within the semi-circular indentation, a choice intended to leverage the centripetal nature of the original design to better link the museum with the community. A “crack” is peeled open from one side of the semicircle, allowing skylight to pour in and illuminate a three-story “spatial canyon.” This facilitates the psychological transition for visitors from the community realm to the artistic space. The entrance acts as a winding canyon—a softened, ritualistic space that emphasizes personal physical experience rather than the grand narratives typical of large-scale museums. Natural light seeps through the high gaps; the overhead light, the curves of the side walls, and the translucency of the metal surfaces overlap to create a momentary supernatural experience—a spiritual welcome before entering the building.
▼南侧入口峡谷,south entrance canyon

▼入口峡谷空间01,entrance canyon space 01

▼入口峡谷空间02,entrance canyon space 02

一层被掀开的立面形成的雨棚,为室外场地营造了一个半户外场景,室内空间也因此被直接打开。掀开的裂缝与透明性意在塑造一种介于独立与开放之间的独立复合体。室内地面向外连续延展,与室外融为一体,将建筑内部空间与城市空间建立了必要联系;前方出挑的平台意在强化建筑与城市的主动联系,让建筑的活动边界更多地融入城市空间。底层开放与城市空间连为一体,成为室内空间向自然的延续。
▼掀开立面,连接城市空间,Peeling back the envelope to connect with urban space

The canopy formed by the “peeled” first-floor facade creates a semi-outdoor scene for the site, directly opening up the interior. These fissures and the resulting transparency aim to shape an “independent complex” that balances autonomy with openness. The interior flooring extends seamlessly outward to merge with the exterior, establishing a necessary link between the building’s interior and the urban fabric. The projecting platform at the front strengthens the proactive connection with the city, allowing the building’s activity boundaries to further integrate into urban space. The ground floor opens to become a continuation of the interior space into nature.
▼一层01,first floor 01

▼一层02,first floor 02

▼一层接待厅,first-floor reception hall

▼一层楼梯井,first-floor stairwell

▼一层室内外连通,first-floor indoor-outdoor connection

▼一层室内外连通02,first-floor indoor-outdoor connection 02

▼一层通高空间,first-floor vertical void

▼冲孔板过滤后的朦胧视野,hazy view filtered through perforated panels

▼从“峡谷”进入一层,entering the first floor from the canyon

▼地下通高空间,underground vertical void

在建筑体弧形的一角,将地上三个楼层空间打通,挑空并逐层收缩,顶部天光穿越整个楼体,照亮了建筑最深处的角落,化解了此处原本锐角空间的窘迫,将这里塑造为垂直高耸的精神性空间,在建筑最深处将地上三层空间联结起来。
At one curved corner of the building, three floors are opened up into a void that tapers layer by layer. Skylight pierces through the entire building, illuminating the deepest corners and resolving the awkwardness of the original acute angle. This area is transformed into a soaring spiritual space, vertically connecting the three ground-level floors at the building’s innermost point.
▼天井庭院,courtyard atrium

▼蜿蜒盘旋的楼梯,sinuous spiraling staircase

▼阳光随着空间洒下,sunlight spilling through the space

楼梯顺着侧墙向上爬升,在这里不仅是功能性交通,更是上下空间连续与转换的重要装置。因消防规范要求而设置的隔断防火墙,使得楼梯成为相对独立的空间。蜿蜒曲折的爬升途中,路径的关键片段反映在了外墙采光窗洞上,透过冲孔金属板隐约可见,在日常交通的过程中,也可以透过外窗体会移步换景的乐趣,同时从城市的视角也可以感受到建筑内部的活力。
▼蜿蜒盘旋的开放交通空间,Sinuous, open vertical circulation

The staircase climbs along the side walls, serving not just as functional circulation but as a vital device for spatial continuity and transition. Due to fire safety regulations, the staircase is treated as a relatively independent space. Along its winding ascent, key segments of the path are reflected through openings in the external wall, visible through the perforated metal plates. During daily transit, visitors can enjoy the pleasure of “changing scenery with every step” (yi bu huan jing), while the city can perceive the internal vitality of the building.
▼钢板与阳极氧化铝楼梯间,staircase with steel plates and anodized aluminum

▼钢格栅背后若隐若现的售卖区,sales area partially visible behind steel grilles

▼连通地上地下的旋转楼梯01,spiral staircase connecting above and below ground 01

▼连通地上地下的旋转楼梯02,spiral staircase connecting above and below ground 02

大部分展厅被设置在地下室空间,为使这一纯地下空间获得与地上部分的联系,在靠近外墙的位置拆除了部分原有楼板,室外的自然光得以从这里引入至地下空间。交通顺势而为,回旋转折的楼梯由此引入,将这条路径穿越地上与地下,自然光透过空间的转换,将上下楼层的空间联系在一起,地上和地下被整合成了一个连续的整体。在地下空间的另一角,通过拆除部分的楼板将原本地上的景观下沉到地下的室内,为地下展厅带来一片静谧的自然。
▼逐层收分的垂拔光筒,A floor-by-floor tapered light shaft

Most galleries are located in the basement. To establish a connection between this subterranean area and the ground level, portions of the original floor slabs near the external walls were removed, allowing natural light to be introduced. Circulation follows this logic, with a winding staircase traversing between ground and underground. Through this spatial transition, natural light links the floors into a continuous whole. In another corner of the basement, removed floor slabs allow the ground-level landscape to “sink” into the interior, bringing a sense of tranquil nature to the underground exhibition space.
▼一层通往楼梯间,first floor leading to the staircase

▼一层休闲接待区,first-floor leisure reception area

▼逐层内收的垂拔空间,floor-by-floor tapered vertical void

▼二层格栅后的楼梯,stairs behind second-floor louvers

▼三层岛台,third-floor island

▼三层会客厅,third-floor lounge

▼天光充满整个垂拔空间,skylight filling the vertical void

对于当代艺术而言,与大众的融合是当下的趋势,也是当代艺术价值的内涵,这更需要美术馆与城市融合,与社区融合。艺术不应只停留在庙堂之上,更应该成为日常生活的一部分。这一内在的变化,也赋予美术馆建筑双重身份——它不仅是社区的一部分,也是城市的一部分。它应该是亲切而优雅的,并保持着对城市空间的开放,安静地置身于城市一隅。不同于大型美术馆或艺术区美术馆,它作为都市生活的一部分,始终保持向城市空间的延续。为了更符合现代都市的精神需要,建筑保持着精确性和清晰的秩序,也是为了从喧嚣的城市生活中开辟出一片自在自由的精神栖息地。
▼拆除部分原始结构板, 连通地上地下空间,
Removing partial original structural slabs to link above and below-ground spaces

For contemporary art, fusion with the public is a current trend and an inherent part of its value, necessitating the integration of the museum with the city and the community. Art should not remain confined to “temples” but should become part of daily life. This internal shift grants the museum a dual identity—as both an urban and a community component. It should be intimate and elegant, maintaining an openness to urban space while quietly nestled in a corner of the city. Unlike mega-museums or those in dedicated art districts, it remains a continuation of urban life. To meet the spiritual needs of the modern metropolis, the building maintains precision and clear order, carving out a free and serene spiritual habitat amidst the bustle of the city.
▼B1售卖区,B1 sales area

▼B1与地上的连通01,connection between B1 and ground level 01

▼B1与地上的连通02,connection between B1 and ground level 02

▼B2至地上的连续交通,continuous circulation from B2 to ground level

▼幕墙安装过程,construction process

▼模型剖切图,Model Section

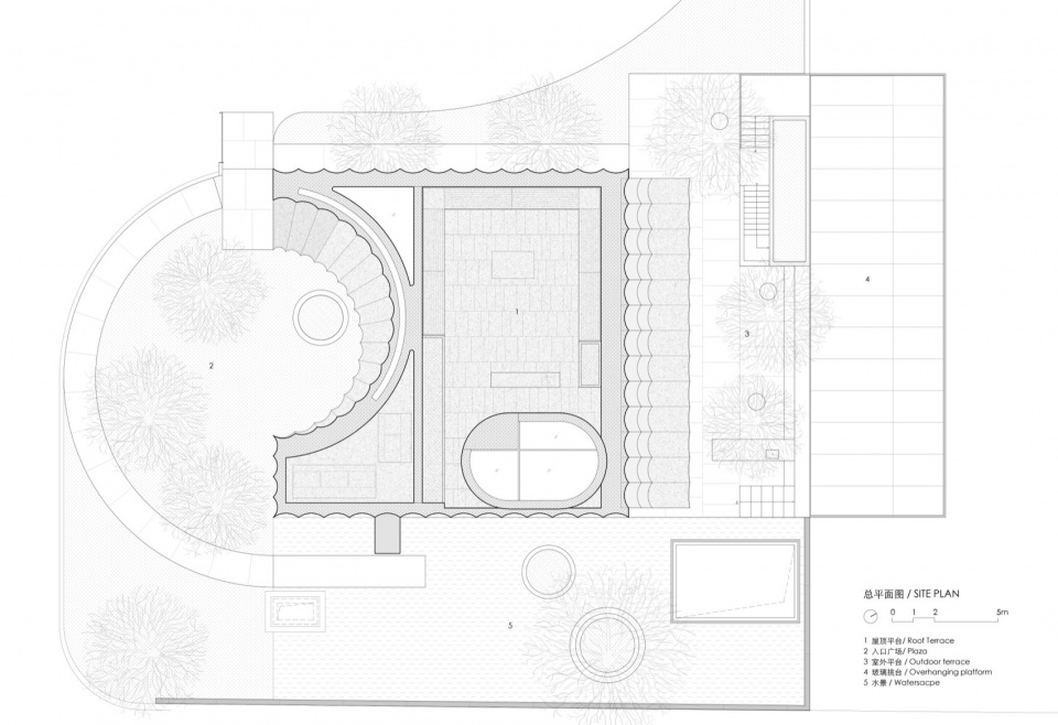
▼总平,site plan

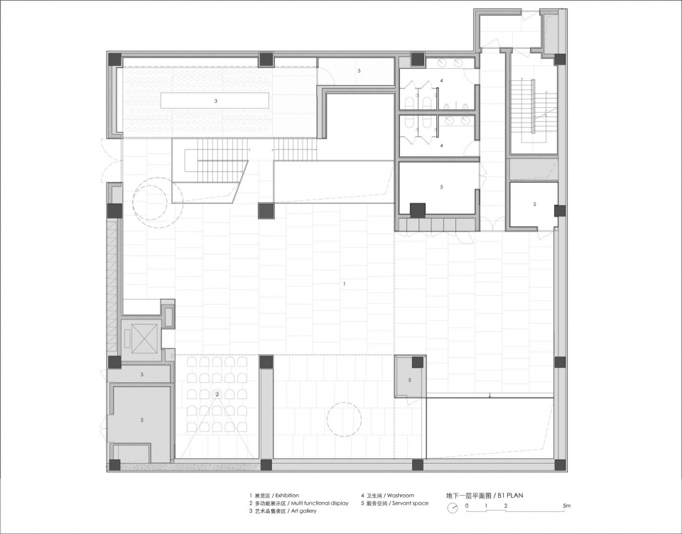
▼B1层平面图,B1 plan

▼B2层平面图,B2 plan

▼一层,1f plan

▼二层,2f plan

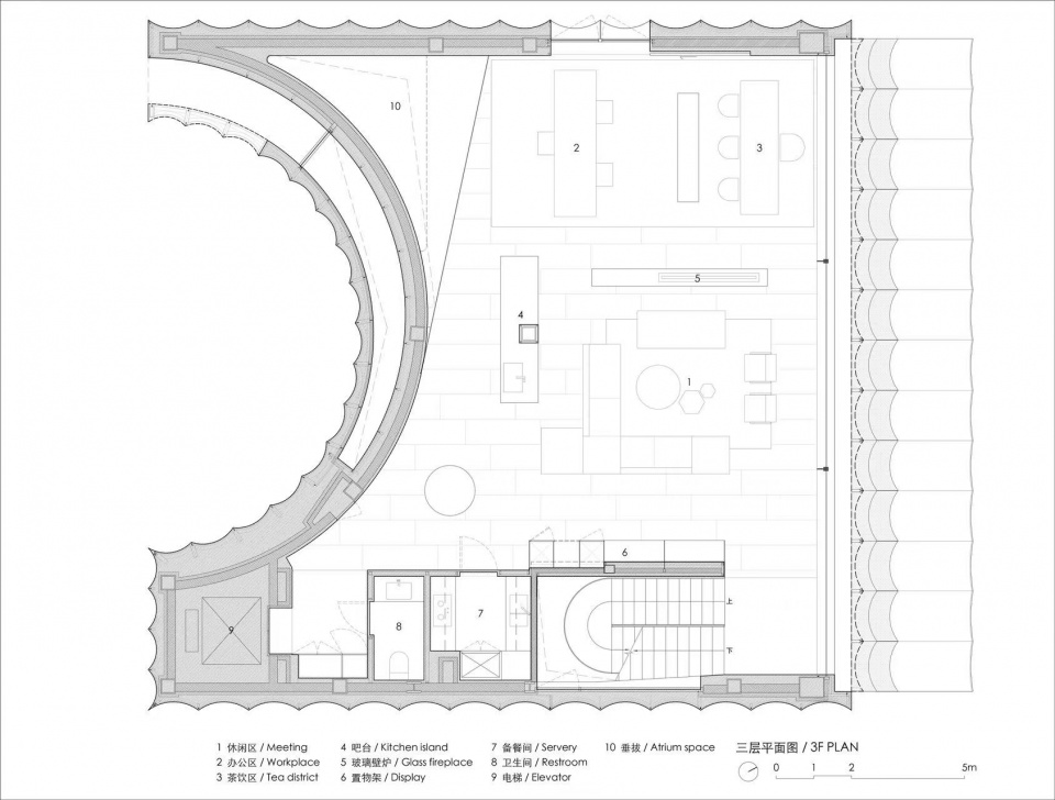
▼三层,3f plan

▼北立面,north elevation

▼东立面,east elevation

▼南立面,south elevation

▼西立面,west elevation

▼剖面1-1,section 1-1

▼剖面图2-2,section 2-2

▼墙身节点图,wall section details















