Xpark坐标公园,贵阳 / 未见筑设计事务所
在健身行业普遍以销售年卡为核心焦虑的当下,当大多数空间都在设计如何更高效地容纳器械、隔离个体时,我们与主理人马晨稀共同思考的却是:一个空间能否超越锻炼本身,成为连接人与人的高能量纽带? 答案,藏在贵阳闹市二楼的这个“生长中”的盒子里——Xpark坐标公园。
Amidst an industry often anxious about selling annual memberships, where most spaces are designed to efficiently pack in equipment and isolate individuals, we co-pondered with founder Ma Chenxi: Can a space transcend mere exercise to become a high-energy bond connecting people? The answer lies within this “ever-growing” box on the second floor of downtown Guiyang — Xpark Coordinate Park.
▼建筑外景,Exterior of the building

项目背景 Project Context
低门槛、重信任、强社交 Low barriers, strong trust, and strong social interaction
马晨稀的黑蚊体育与XPARK品牌,在贵阳拥有近40万注册用户,其核心并非单纯运营场馆,而是旨在构建一个多元的运动消费生态。新店落址于国贸CCPARK街区的一栋独栋商业建筑,原始建筑立面遵循街区既有形式语言,缺乏识别性;内部空间则面临有限面积与丰富需求的挑战。这些现状恰与主理人的理念形成碰撞,无意打造另一个封闭、高压的传统健身房,而是希望创造一个“身在市中心,却可逃离市区”的轻松据点,一个能吸引同好、让不同运动兴趣自然交汇的社群平台。
Ma Chenxi’s Black Mosquito Sports and the XPARK brand boast nearly 400,000 registered users in Guiyang. Their core mission is not merely to operate venues, but to build a diverse sports consumption ecosystem. The new venue is located in a standalone commercial building within the Intime CCPARK block. The original Facade followed the block’s existing formal language, lacking identity, while the interior faced the challenge of limited space versus rich demands. This reality clashed productively with the founder’s vision: not to create another closed, high-pressure traditional gym, but a relaxed basecamp “in the city center yet escaping the urban bustle,” a community platform that attracts like-minded people and allows different sports interests to converge naturally.
▼建筑夜景,Night view

设计理念 Design Concept
“Transforming Iron Box 变形的铁盒子”—— 健身空间不应该呈现静止又封闭的状态“Transforming Iron Box” — A fitness space should not appear static and enclosed.
不安分的外立面,掀起的雨棚,转向的拍照间,贯穿始终的脚手架,寓意着建筑和空间的生长,以一种永远在建造中的姿态去呼应运动爱好者持续生长的核心精神。
The restless facade, the lifted canopy, the rotated photo studio, and the scaffolding running throughout symbolize the growth of the architecture and space. This “perpetually under-construction” posture echoes the core spirit of constant growth among fitness enthusiasts.
▼夜晚街景,Night street view

场所营造 Place Making
01入口小屋:友好的问候01 Entrance Hut: A Friendly Greeting
入口处的立面垂直翻转,形成斜向屋檐向外挑出,打破街面的沉闷,邀请人们进入一个温暖的小屋,屋内的木质暖色氛围营造友好的气息。
The facade at the entrance is vertically flipped, forming a sloping eave that projects outward, breaking the monotony of the streetscape and inviting people into a warm hut, where a wooden, warm-toned atmosphere creates a friendly vibe.
▼项目入口,Entrance

▼健身房入口,Gym entrance

02 首层健身区02 Ground Floor Fitness Area
在首层狭窄的走廊区,镜面被大量运用,在物理上有效延伸了视觉空间、提示与墙体的距离并引导动线。这不仅缓解了局促感,更使个人专注自我的训练姿态。
▼平面流线图,Plan circulation

In the narrow corridor area on the ground floor, mirrors are extensively used to physically extend the visual space, indicate distance from walls, and guide circulation. This not only alleviates the sense of confinement but also allows individuals to focus on their own training posture.
▼1F健身房内部,Gym 1F interior space



03 夹层训练区:创造共享的视线与能量03 Mezzanine Training Area: Creating Shared Sightlines and Energy
利用建筑空高,增加加层搭建出悬空训练台,设置拉伸区和跑步区。确保有氧运动时空间不显局促,减少压抑感,呼吸更顺畅。这种布局打破了传统健身房格子化的孤立感,不仅是对有限面积的高效利用,更在垂直维度上编织了视觉与能量的流动。
▼剖面分析图,Section analysis diagram

Utilizing the building’s void height, a mezzanine level was added to create a suspended training platform, housing stretching and running zones. This ensures cardio areas feel open, reducing oppression and allowing for easier breathing. This layout breaks the gridded isolation of traditional gyms. It is not only an efficient use of limited area but also weaves a flow of sight and energy across the vertical dimension.
▼夹层健身空间,Gym Intermediate floor space


04 造型室:认真关注健身的成果04 Posing Room : Focusing Earnestly on Fitness Results
一个45度角突出外立面的半透明盒子,既形成了独特的立面效果,又保证了室内的光线和隐私。室内一整面墙的落地全身镜和一面高角度的俯视斜镜,方便健身者多角度观察和记录自己的训练成果。作为独立房间,为会员提供了足够的私密性,避免社交尴尬。
A semi-transparent box protruding from the facade at a 45-degree angle creates a unique elevational effect while ensuring interior light and privacy. Inside, a full-wall floor-to-ceiling mirror and a high-angle overhead slanted mirror allow fitness enthusiasts to observe and record their training results from multiple angles. As an independent room, it provides ample privacy for members, avoiding social awkwardness.
▼造型室,Posing room


05脚手架外摆区:在“立面上”社交05 Scaffolding Terrace: Socializing on the “Facade”
从一楼蔓延至三楼的脚手架外立面,包裹着细密的金属网,过滤阳光,形成舒适的光影。而真正妙处,在于其下自然形成的多层次外摆区。我们并未用固定桌椅填满这里,而是预留了充裕的、可灵活组合的“空白”。这里是运动间隙的喘息之处,也是一场自发小型分享会的可能场地。
The scaffolding exterior cladding, stretching from the first to the third floor and wrapped in a fine metal mesh, filters sunlight to create comfortable light and shadow. The true ingenuity lies in the multi-level terrace space naturally formed beneath it. We did not fill this area with fixed furniture but reserved ample, flexible “blank” space. It serves as a breathing point between workouts and a potential venue for spontaneous small sharing sessions.
▼脚手架外摆区,Scaffolding terrace


06 屋顶活动区:把运动还给天空与阳光06 Rooftop Activity Area: Returning Exercise to the Sky and Sunlight
这是整个健身房采光最好的地方,是社群活动的核心。分为室内区和宽敞的露天区。露天区域被脚手架结构环抱,提供了一个独特的户外训练环境。人们可以在阳光下举办清晨瑜伽、黄昏动物流课程、小型训练营等活动,感受自然气息,用于让健身房的功能超越传统器械训练,成为连接不同运动兴趣的枢纽。
This is the best-lit area in the entire gym and the core of community activities. It is divided into an indoor zone and a spacious open-air zone. The open-air area, embraced by the scaffolding structure, provides a unique outdoor training environment. People can host activities like morning yoga, evening animal flow sessions, or small boot camps in the sunlight, connecting with nature. This allows the gym’s function to transcend traditional equipment training, becoming a hub that connects different sports interests.
▼屋顶活动区,Rooftop activity area

作为Xpark的第二家店,我们延续了品牌的专业与活力,并在这个新空间强化了开放、连接和多元体验的理念。在这个项目里,设计与商业的终极目标达成一致,不是追求短期客单的最大化,而是追求长期关系的深度化。那些发生在外摆区的闲聊、在训练台上交汇的目光、在顶层露台共同完成的挑战,都是比任何年卡合同都更牢固的纽带。这或许预示了一种新的商业空间方向,它不仅是功能的承载,更可以是社会资本的孵化器,在钢筋混凝土的城市中,重建人与人之间的亲近与信任,创造一个“身在市中心,却可逃离市区”的轻松据点。
As the second venue for Xpark, we continued the brand’s professionalism and vitality, strengthening the concepts of openness, connection, and diverse experiences in this new space. In this project, design and business objectives align perfectly: not to maximize short-term transactions, but to deepen long-term relationships. The chats on the terrace, the exchanged glances on the training platforms, and the challenges conquered together on the rooftop terrace are bonds far stronger than any annual contract. This perhaps indicates a new direction for commercial space. It is not merely a functional container but can be an incubator for social capital, rebuilding closeness and trust between people within the concrete urban jungle, creating a relaxed basecamp “in the city center yet escaping the urban bustle.”
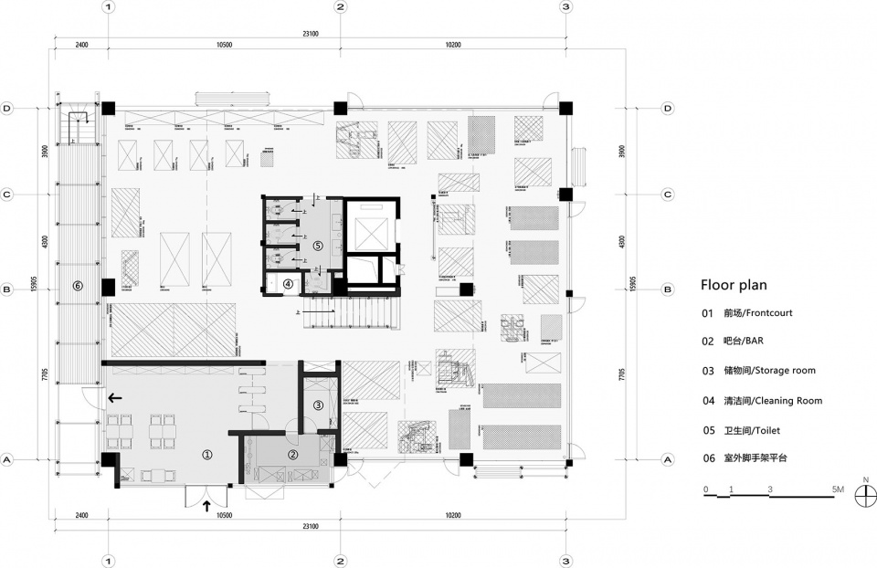
▼一层平面图,First floor plan

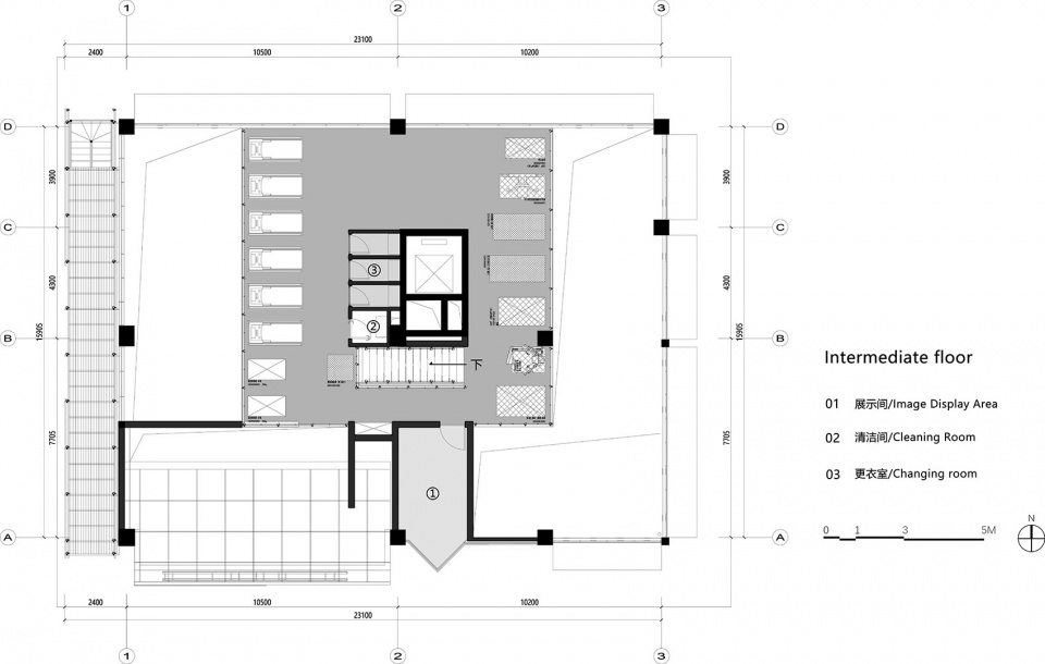
▼夹层平面图,Intermediate floor plan

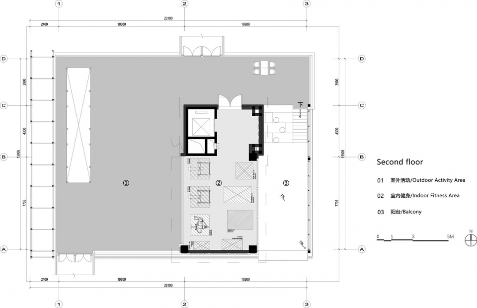
▼二层平面图,Second floor plan

▼立面图,Elevation

▼剖面图,Section
投资运营单位:黑蚊运动
Investor/Operator: Black Mosquito Sports
Project Name: Xpark
Location: L1-036, Block B, Intime CCPARK, Guanshanhu District, Guiyang City
Design Area: 491㎡
Design Period: 2025.01
Completion Time: 2025.08
Scope:Building facade renovation, interior design
Interior Concept Design: WE LIVE ARCHITECTS
Lead Architects: Li Weitao, Li Bo
Design Team: Deng Lin, Zhang Zhirui, Zhang Zhaoxin, Liu Ting
Interior Construction Drawing Design: Chongqing Dongjing Decoration Design Co., Ltd.
VI Design: Black Mosquito Sports
Photography: Archtric_Image














