广州阿那亚理想国酒店 / B.L.U.E.建筑设计事务所
项目概况Project Background
理想国酒店项目位于广州九龙湖阿那亚, 是为文化品牌naive理想国打造的一个集合书店、咖啡简餐、住宿功能一体的复合型空间。九龙湖距离广州市区1小时车程,被2.5万亩原生山林与湖域环绕。建筑选址在小镇河的东岸,背靠广袤的湖山风光,同时与社区美术馆、食堂相邻,在这样一个一半城市烟火一半自然的场地之中,我们希望把本土文化融入空间叙事,创造一个有温度、有情感的文化空间。
The author’s room Hotel project is located in Aranya Jiulong Lake, Guangzhou, conceived as a hybrid cultural space developed for the cultural brand naive IMAGINIST. The project integrates a bookstore, café and light dining, and accommodation into a single, cohesive destination. Jiulong Lake is a one-hour drive from downtown Guangzhou and is surrounded by 1.67 km² of pristine mountain forest and lake landscapes. The building is situated on the eastern riverside of the town, backed by expansive views of mountains and the lake, while remaining adjacent to the community art museum and canteen. Within this unique context—where urban vitality and natural serenity coexist—the design seeks to weave local culture into the spaGal narrative, creating a cultural environment that is warm and emotive.
▼场地鸟瞰,aerial view of the site

▼项目鸟瞰,overall view


空间设计与理念Spa?al Design and Concept
从岭南文化出发,设计初始的灵感源自广州老城的外廊式建筑骑楼。广州骑楼以“下铺上居、廊道贯通”为特点,底层为商铺,设在延续的骑廊立柱之内,二层以上为私密的住宅。骑楼式建筑集商业、居住、交通为一体,不仅见证了广州商业文化的繁荣,更是居民日常生活的依托,是岭南生活氛围的缩影。
▼场地原状,original state of the site

Starting from Lingnan culture, the iniGal inspiration is drawn from the Qi Lou of Guangzhou’s old city—a building typology characterized by ground-floor retails and upper-floor residences, connected through a continuous colonnade that integrates commerce, living, and circulation. It’s not only a witness to the prosperous commercial culture of Guangzhou, but also the foundation of residents’ daily lives, and is an epitome of Lingnan local lifestyle.
▼外观,exterior view

▼建筑立面,facade of the hotel

▼立面近景,closer view of the facade


▼立面局部与细部,closer view and details of the facade


理想国酒店作为一个多功能集合式空间,也使用了“下铺上居“的空间构成逻辑。建筑共分为四层,首层是对外开放的书店、咖啡简餐厅, 二至四层为酒店客房。四层空间全部构建在“骑楼式”的连续柱廊之下。设计选择将外围结构体系的梁、板、柱直接暴露出来,立柱和梁板形成的直线网格既是视觉语法也是建筑实际的结构骨架。从外观来看,整个建筑的正面没有设实体墙,由多边形的立柱构建而成,外在造型直接体现着内在建造逻辑。
As a multi-functional space, author’s room Hotel adopts the spaGal sequence of ground-floor retail and upper- floor residence, recalling the traditional Qi Lou typology. The building is organized into four levels: the ground floor functions as a publicly accessible common space, accommodating a bookstore, café, and light dining, while Levels 2 to 4 are dedicated to hotel guest-rooms. The entire structure is articulated beneath a continuous colonnade, which mediates between interior spaces and the surrounding public realm. Rather than defining the façade with solid walls or any other hard edges, a series of polygonal columns establishes a semi-outdoor colonnade, blurring the boundary between inside and outside. The linear grid consists of the columns, beams, and slabs that play both roles of the visual language and the structural framework. By deliberately exposing the peripheral structural system, the design enables the external form to directly reflect the internal logic of construction, allowing structure, space, and appearance to converge into a coherent architectural language.
▼设计初始的灵感源自广州老城的外廊式建筑骑楼,initial inspiration for the design came from the arcade-style buildings in the old part of Guangzhou

▼立面柱廊,facade colonnade


▼退台式立面,terraced facade


柱廊形成的虚实空间,打开了想象。廊下的空间是一片灵动的场域, 它邀请阳光、微风入内,包容四季的流转,形成温柔的开放性边界。人们多样的生活场景也在其中展开——首层商业空间的沿街面全部后退留出公共人行空间,过往的游人漫步廊下,自然的就穿行进入了书店和咖啡厅内部;上方的楼层在柱间分隔出18间面向河景的客房,檐下的露台让客人与河景直接对话,亲近自然。功能性上,柱廊作为建筑的第二层表皮,遮阳避雨,顺应了广州多变的天气,同时也一定程度的遮挡了河对岸视线,让客房获得足够的隐私。
The colonnade establishes a spaGal dialogue between solid and void, opening the architecture to imagination and use. Beneath the colonnade unfolds a fluid and animated spaGal field—one that invites sunlight and breeze, accommodates seasonal change, and defines a so[ threshold between interior and exterior. It becomes an active setting for urban daily life. Retails on the ground floor are set back, creating a continuous public pedestrian zone along the street. Passersby drilling through the neighborhood wander beneath the colonnade and are gently drawn into the bookstore and café. The upper floors are divided by columns into 18 guest rooms facing the river view. Shaded terraces under the eaves allow guests to engage with the river landscape, fostering a close connection to nature. In terms of functions, the colonnade acts as a secondary architectural skin, providing shade and shelter in response to local subtropical and changeable climate, as well as filtering views from across the river, balancing openness with privacy for the guest-rooms.
▼柱廊形成的虚实空间,打开了想象,the colonnade establishes a spaGal dialogue between solid and void



建筑另一个突出的造型特点是退台式的设计。四层的建筑由四个堆叠的体块组成,随着楼层的增加,体积逐渐减小,形成富有力感的阶梯式造型。从各个角度看,它的轮廓都呈现出变化。作为地块中最靠近岸边的建筑,退台设计也一定程度的从视觉上消解了建筑体,形成更宜人的尺度感。
Another feature of the building is its stepped, terraced design, in which four stacked volumes gradually step back as the structure rises, creating a powerful, hierarchical shape that has a changing silhouette when viewed from different angles. Moreover, the terraced configuration also visually reduces the perceived mass, contributing to a more comfortable and human-scaled presence along the shoreline.
▼四层的建筑由四个堆叠的体块组成,four stacked volumes

▼立面夜景,night view of the facade



在建筑稳定对称的结构之中,我们在首层和三层设计了两个挑高的半室外庭院,打破了立面复的韵律,形成空间的小变奏。同时引入阳光和绿植,让自然景观始终贯穿在建筑之间。位于首层中心的架空中庭,一侧正对河岸上的观景平台,另一面连接着步行街区,让建筑以开放的姿态接纳各个方向来往的行人,增强了建筑公共属性。庭院作为一个过渡空间,把书店和餐厅两个原本分离的功能区,通过人在其间的活动连接起来,让室内外的转换成为一种连续无形的空间体验。
Within the symmetrical structure, two double-height semi-outdoor courtyards are introduced on the ground floor and the third floor to break the repetitive rhythm of the façade and to create subtle spaGal variations. These courtyards also bring daylight and greenery deep into the building, allowing the natural landscape to merge with the architecture continuously. The central atrium on the ground floor faces the riverfront viewing deck on one side and connects to the pedestrian street on the other. This configuration enables the building to embrace pedestrians from all directions with an inclusive attitude, reinforcing its public character. As a transitional space, the courtyard links the bookstore and restaurant through human movement, creating an uninterrupted and seamless spaGal experience between indoors and outdoors.
▼半室外庭院, double-height semi-outdoor courtyards

▼由室内看半室外庭院,viewing the semi-outdoor courtyard from interior

廊和院的设计让建筑有了“可以呼吸”的空间。在快节奏的现代生活中,城市空间总是在被高效的使用着,然而, 在单体建筑原本就有限的空间和范围里,我们仍然选择构建半室外连廊和架空庭院,把一定的空间贡献给自然和街道。设计上没有特意界定它们的功能,是人的活动赋予了空间意义——人的游走与自然的渗透在虚实之间悠然转换,空间也随着人和环境的变化而不断进化和生长。酒店的客人,或是社区里漫步而来的游客,在树庭院的长桌边坐下,发呆、读书、聊天、晒太阳。随着微风和光影变幻,人们的动作也自然的放缓下来,度过些许“散漫的时光”。设计相信,建筑的价值不在于宏大的叙事,而在于创造这样的微小的时刻,让人感知真实的生活和自我的存在。
The introduction of colonnades and courtyards gives the building a sense of spatial breathing. In the context of contemporary urban life, urban space is often optimized for efficiency. However, the project deliberately introduces continuous corridors and elevated courtyards, offering them back to nature and the public realm, even within the inherently limited footprint of a single building. Freed from fixed functions, these spaces gain meaning through human activity, while movement and the infiltration of nature shift fluidly between solid and void, allowing the architecture to evolve with its occupants and environment. Within the “tree courtyard”, everyday presence quietly unfolds. As light, air, and movement pass through the space, time appears to slow, allowing architecture to recede and life to come forward. The project does not seek meaning through monumentality, but through the creation of delicate conditions in which people become aware of their surroundings, their routines, and their own presence.
▼夜景,night view

▼半室外庭院,semi-outdoor courtyard 夏至

▼外摆区,terrace

▼庭院日景,day view of the courtyard

▼庭院细部,details of the courtyard

材料运用和室内设计Materials and Interior Design
在材料方面我们选择使用红色清水混凝土来呈现建筑的主体结构,混凝土一次浇筑成型,将结构与材料最真实的呈现。低饱和度的红色像是老砖的颜色 ,也像是泥土的颜色,与混凝土天然、粗粝的质感结合,给人温暖的感觉。红色随着时间微妙的变换色调,让建筑有了表情和生命力,像是在和背后的群山一起生长。晴天时,红色的建筑与水中的倒影相呼映衬,更多了一分灵动。在与环境的对话之中,立面直线网格的坚实和厚感被柔化了,营造出轻盈的感知。与红色混凝土搭配使用的乱纹红铜板,运用在室外疏散楼梯、核心筒的外立面。金属的精致冷峻与混凝土的粗温润,在对比中加强了立面的层次感。整体材质明快的色调也让建筑从青山绿水之间跳脱出来,充满活力和愉悦的度假氛围。
The primary structure of the building is constructed with red fair-faced concrete, cast monolithically to reveal both the material and structure in its purest form. The low-saturation red, reminiscent of aged brick and earth, complements the natural roughness of concrete, producing a warm and tactile presence. Over time, slight variations in tone give the architecture a sense of expression and vitality, as if it grows with the surrounding mountains. In sunlight, the red volume is echoed by its reflection in the water, creating a more dynamic and animated presence. Engaging with its surroundings, the façade’s linear grid is visually softened, allowing the architecture to read as lighter and more permeable. Patterned red copper panels are introduced on the external escape stairs and service cores, where the refined coolness of metal contrasts with the raw warmth of red concrete, enriching the depth and articulation of the façade. Together, the bright yet balanced material palette enables the building to stand out within the mountainous landscape, reinforcing a lively and relaxed resort character.
▼红色清水混凝土立面,the building is constructed with red fair-faced concrete

室内氛围也延续了建筑温暖的调性。首层分成两个通过中庭连接的独立室内区域,一侧空间集书店和酒店接待功能为一体,另一侧是简餐厅和咖啡厅。在公区设计中,我们没有设置隔墙将不同的功能硬性隔开,而是创造一个连续流动的动线,最大程度释放建筑空间本身开放的特质。二到四层的客房共18间,分为3种户型。 标准户型虽然室内面积不算大,但每个房间都有一个充满阳光的河景阳台,把生活放大和延伸。室内大使用了木纹石材、红色洞石、红色海洋板、混凝土砖、等暖色的材料, 天然材质温润的属性和带有暖意的色彩,让空间保持着亲和感和烟火气息。在局部的地面和墙面,我们设计了拼花木地板、拼花水磨石和马赛克石材砖,多种纹样的使用让人联想到广州的老式花砖,把广府的技艺和美学传统用现代的语言融入到空间细节之中。
The interior atmosphere continues the building’s warm architectural language. The ground floor is organized into two spaces yet interconnected zones: a combined bookstore and hotel reception space, and a café with light dining. Rather than separating functions through fixed partitions, the public areas are conceived as a continuous and fluid spatial sequence, allowing movement to unfold freely and maximizing the inherent openness of the building.
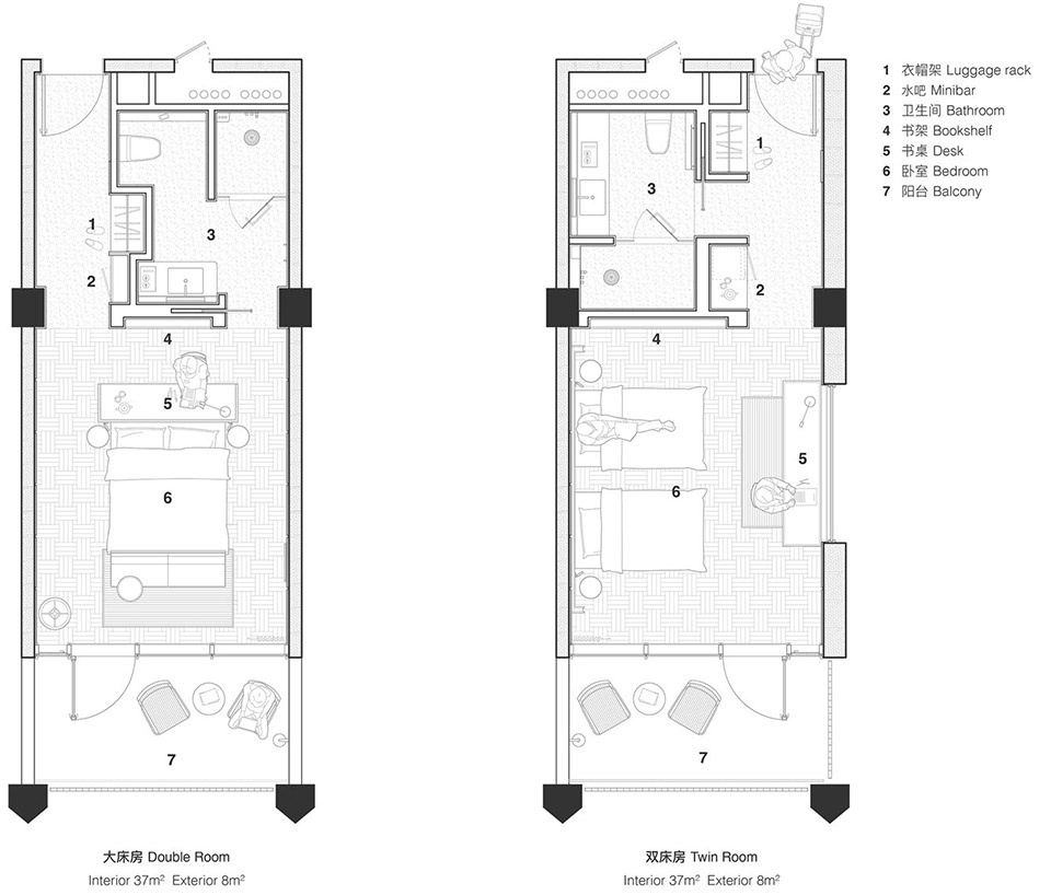
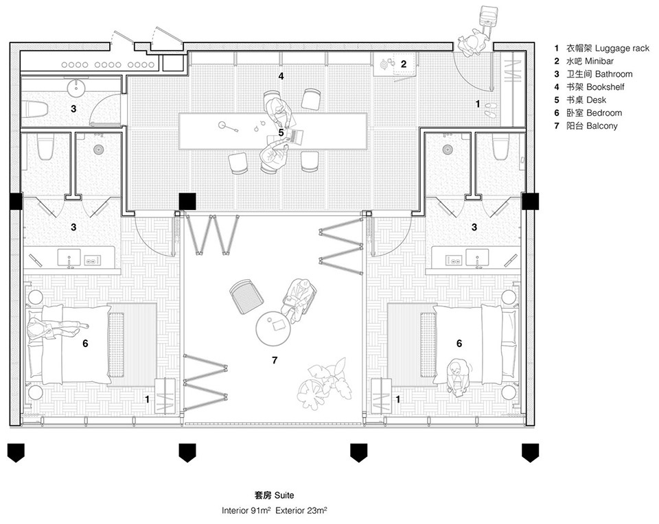
The hotel accommodates 18 guest-rooms across Levels 2 to 4, arranged in three typologies. While the standard rooms on Levels 2 and 3 are compact in size, each is extended by a sunlit balcony facing the river, visually and spatially enlarging the living experience. Warm-toned materials-including wood-grain stone, red travertine, red plywood, and concrete brick-are used throughout the interiors, where the tactile quality of natural materials and a restrained warm palette create a welcoming and lived-in atmosphere. In selected floor and wall areas, patterned timber flooring, terrazzo inlays, and mosaic stone tiles are introduced. The layered use of patterns recalls the ornamental floor tiles of traditional Guangzhou architecture, reinterpreting local craftsmanship and Lingnan aesthetics through a contemporary design language.
▼接待台,reception desk

▼接待区,reception area

▼书房,office area

▼餐厅,restaurant

▼餐厅细部,details of the restaurant

▼露台,terrace

▼客房,guest room


▼客房细部,details of the guest room


总结New Way of Thinking
naive理想国的寓意是“想象另一种可能”,这次理想国酒店的设计也是我们的对于探索建筑可能性的一次实践。骑楼诞生在步行为主的年代,我们利用相似的空间逻辑,把在建筑中漫步的体验带给今天的人们,将传统记忆转换为人们可以真实体验的当代情感。“理想国”不是设立在日常之外的一场空想,而是试图通过空间创造相聚与停留的时刻,让人与人、人与环境共建生活的另一种可能。
“naive IMAGINIST” embodies the idea of imagining alternative possibilities, and the design of author’s room Hotel is conceived as an exploration of architectural potential. Drawing from the spatial logic of the Qi Lou-an architectural typology born in a pedestrian-oriented era-the project reintroduces the experience of walking and lingering to contemporary life, translating collective memory into lived, present-day emotion. Rather than proposing an abstract ideal detached from everyday reality, the architecture seeks to create moments of gathering and pause, where people and their environment together give form to another way of living.
▼项目夜景鸟瞰,aerial view at night


▼项目夜景鸟瞰,aerial view at night

▼立面夜景,night view of the facade

▼柱廊夜景,night view of the ground floor

▼施工过程,construction process

▼总平面图,master plan

▼底层平面图,ground floor plan

▼二层平面图,2nd floor plan

▼三层平面图,3rd floor plan

▼四层平面图,4th floor plan

▼五层平面图,5th floor plan

▼屋顶平面图,roof plan

▼客房平面图,guest room plans

▼套房平面图,suite plan

▼立面图,elevation

▼剖面图,section

▼细部详图,construction details



Project Name Author’s Room Hotel
Aranya Jiulong Lake
Project Location Guangzhou, Guangdong, China
Category Hotel, Architecture Design and Interior Design
Architect/s Shuhei Aoyama, Yoko Fujii, Lingzi Liu, Jiahui Wang, Lei
Feng, Lu Chen, Yixin Yang, Xinyi Zhang
Client Guangzhou Jiulong Lake Real Estate Development Co, Ltd
Site Area 845.58m²
Building Area 2315.36m²
Design Period 01. 2022 – 07. 2024
Construction Period 10. 2023 – 10. 2025
Photography Credit Xia Zhi, DONG Image, The Wethos
Video Credit XIA ZHI PICTURES
Material Builidng Materials:
Fair faced concrete
Red copper panels
Textured coating
Interior Materials:
Marine plywood
Red travertine
Limestone
Collaborators Collaborating Design Institute:
Shenzhen Huasen Architecture & Engineering Design
Consulting Co., Ltd.
Landscape Design: Z’scape
Lighting Consultant: HDA LIGHTING, A & P Architectural
Lighting Design
Façade consultant: Shenzhen Tesion Facade consulting
co., LTD
Signage Design: Lacer Space
Construction China Construction Seventh Engineering Division.corp.ltd
Shenzhen Boda Construction Group Co,. Ltd
Jinglong Construction
Changzhou Chuangxin Garden Engineering Co., Ltd.














