Nayaá别墅,墨西哥 / ROOTSTUDIO
Casa Nayaá坐落于瓦哈卡历史中心。项目从一块被五米高废弃立面遮蔽的空地中生长而出,以当代的视角重新思考日常居住的城市肌理。建筑、室内设计与在地制造在此被整合为一个完整而克制的整体,优先选用本地材料、区域工艺,并以诚实的方式回应山谷的气候与光线。最终呈现出一种亲密、内敛且经过精心雕琢的待客氛围。
Casa Nayaá is a residence located in Oaxaca’s Historic Center. From an empty lot hidden behind a five-meter-high abandoned facade emerges a new building that seeks to reimagine the domestic fabric by means of contemporary criteria. The project unites architecture, interior design, and local fabrication in a single gesture, prioritizing locally sourced materials, regional craftsmanship, and an honest relationship with the climate and light of the valley. The result is an atmosphere of intimate, understated, and carefully curated hospitality.
▼项目鸟瞰,Aerial-view of the project

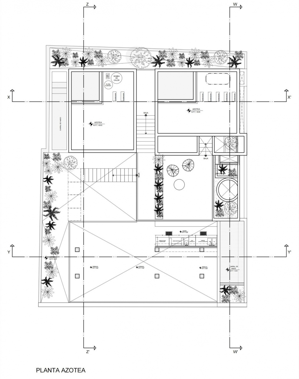
▼鸟瞰平面,Aerial-view of plan

以“将日常转化为体验”为清晰目标,项目在 RootStudio的主导下历时两年多逐步展开。受一户瓦哈卡本地家庭委托,Casa Nayaá以克制而凝练的体量回应居住需求:七间各具特色的客房、开放的公共空间,以及一处屋顶露台。建筑师、设计师与当地建造者的紧密协作,重新诠释了传统住宅的空间逻辑,在引入当代舒适性的同时,延续了历史街区的生活节奏与瓦哈卡老城特有的居住尺度。
With a clear intention—to turn the everyday into experience—the process unfolded over more than two years under the direction of RootStudio. Commissioned by an Oaxacan family, the project shares its essence in a contained format: seven distinct rooms, open communal areas, and a rooftop terrace. The coordination of architects, designers, and local builders reinterprets the logic of traditional housing, bringing it contemporary comfort while preserving the neighborhood’s pulse and the domestic scale characteristic of Oaxaca’s historic core.
▼立面概览,Elevation overview

▼屋顶露台,Rooftop terrace


“Nayaá”一名源自萨波特克语,意为“绿色”,这一含义塑造了项目的整体气质,也奠定了其与环境之间的深层联系。从屋顶露台望去,民族植物园的繁茂植被与圣多明各教堂的穹顶成为日常视野的一部分——树叶、陶瓦与cantera石材交织成的地平线,通过克制而精准的开口与宽敞的层高被引入室内。RootStudio的空间构成策略将自然采光、穿堂通风与框景视野融为一体,舍弃视觉奇观,转而通过对声学与温度的细致调控,营造出安静而从容的空间体验。
The name Nayaá—meaning “green” in Zapotec—shapes the project’s character and its connection with the surrounding environment. From the rooftop terrace, the foliage of the Ethnobotanical Garden and the domes of Santo Domingo become part of daily life: a horizon of leaves, tiles, and cantera stone that filters in through measured openings and generous heights. RootStudio’s spatial composition integrates natural light, cross ventilation, and framed views, privileging calm over spectacle and refining acoustics and temperature to create spaces of serenity.
▼民族植物园,The Ethnobotanical Garden

▼露台休闲区,Hospitality area
入口被刻意处理得低调而含蓄。一扇实木大门之后,是一处半覆盖的庭院,作为住宅的空间核心。水景与阴影共同定义了向室内过渡的节奏,并引导人进入开放式的起居与餐厅空间——这些空间被设计为向庭院与露台自然延展,鼓励日常的交流与共享。为项目量身定制的内嵌家具与墙体、楼板融为一体,避免多余陈设:一张公共餐桌邀请轻松的用餐时刻,而阳台与连廊则在室内生活与历史城市之间建立起温和的中介。
The entrance, intentionally discreet, reveals—behind a solid wooden door—a semi-covered courtyard that acts as a domestic nucleus. Water and shade define the transition toward the open-plan living and dining areas, conceived to extend conviviality toward courtyards and terraces. The built-in furniture, custom-designed for the project, merges with walls and slabs, avoiding superfluous pieces: a communal table invites relaxed meals, while balconies and walkways mediate between interior life and the historic city.
▼入口,Entrance

▼起居室与餐厅空间,Living and dining area


▼向庭院自然延展,Extend conviviality toward courtyards


客房空间在尺度与氛围上展开多样化探索。部分房间通过双层通高向上延展,部分则贴近地面展开,或引入夹层,在保持亲密感的同时拓展空间维度。一处由天窗照亮的着色泳池,为居所带来兼具热舒适与光感的休憩场所,回应着山谷气候的特质。每一间客房中,由瓦哈卡当地工坊打造的木作与金属构件,贯穿于饰面、灯具与表面细节之中——一切皆服务于使用,而非展示。
The room program explores variations in proportion and atmosphere: some expand vertically through double heights, others nestle close to the ground or integrate lofts that extend space without losing intimacy. A pigmented pool, illuminated by a skylight, introduces a thermal and luminous respite that celebrates the valley’s climate. In every room, carpentry and metalwork crafted by Oaxacan workshops ensure material continuity across finishes, lighting, and surfaces—everything responding to use rather than display.
▼客房空间,The room program


▼淋浴室,Shower room

材料语言直接而在地。绿色调抛光水泥、石灰抹灰、区域石材,以及自然饰面的木材,共同构成一种会随时间优雅老化的质感体系。环境控制主要依赖被动策略——厚重体量的蓄热性能、审慎的朝向设计、深远的出檐与格栅屏风——并辅以由事务所自行设计的温暖、可调节照明。整体如同一个协同运作的系统:结构、家具与织物共同回应瓦哈卡的光线与人的使用方式,时间留下的每一道痕迹都成为空间性格的一部分,而无需复杂维护。
Materiality is direct and local: polished cement in shades of green, lime plaster, regional stone, and naturally finished woods that age with grace. Environmental control relies on passive solutions—thermal-mass volumes, thoughtful orientation, overhangs, and lattice screens—and on warm, adjustable lighting designed by the studio itself. This ensemble functions as a system: structure, furniture, and textiles converse with Oaxaca’s light and human use, each mark left by time adding character without requiring complex maintenance.
▼温暖、可调节照明,Warm, adjustable lighting
▼优雅老化的质感体系,Materiality age with grace
建筑始终与其城市语境保持对话。位于城市核心地带,Casa Nayaá在既有的城市肌理之上叠加新的层次,扎根于一种关于工艺与协作的共同伦理之中。它提供了一种克制而从容的居住方式:每一个细节都回应着生活如何在其中展开。餐桌促成交流,经由调和的界面守护安静,而光线在为思考与停留而设计的表面上缓缓移动。在阴影与微风、停顿与连续之间取得的平衡之中,建筑完成了其最本质的使命——滋养精神、邀请静谧,并将平凡的日常转化为清晰而持久的记忆。
The building exists in dialogue with its context. Located in the heart of the city, the project adds layers to an existing urban fabric, grounded in a shared ethic of craft and collaboration. Casa Nayaá offers a measured way of inhabiting, where each detail responds to how life unfolds within it. The table invites conversation, tempered thresholds preserve silence, and the light shifts over surfaces designed for thoughtful hospitality. In this balance—between shade and breeze, pause and continuity—the architecture fulfills its essential task: to sustain the spirit, invite stillness, and transform the ordinary into clear memory.
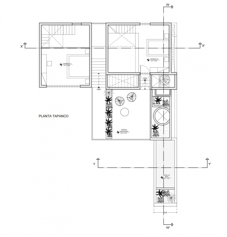
▼平面图,Plan


▼立面图,Elevation

▼剖面图,Section















