成都SOHO 3Q,成都/建筑
受中国领先的办公空间品牌SOHO 3Q之邀,叠术建筑对成都西部国际金融中心三层和四层的共12000平方米的空间进行设计,将原本经营不善的空间改造成了一个大型的、充满活力和创意的平台。
Superimpose transformed the 3rd and 4th floor of the 12,000 square meter, low occupancy but centrally located WIFC shopping mall into a large vibrant and creative platform for SOHO 3Q, China’s leading co-working office space developer.
▼灵活的共享办公空间
flexible co-working space

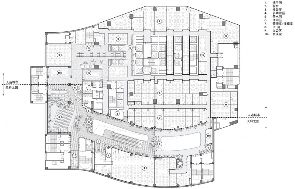
现有的空间由两个不同的区域组成:一个是以曲线作为设计语言,强化空间流动性的区域,包括与商场其他楼层联系紧密的中庭区域;与之相对的是采用直线作为设计语言,强化空间规整性的高层核心筒周边区域。叠术建筑将这两个区域理解为不同的世界,并根据成都的两个鲜明特征:“天府之国””和“人造城市”,对它们进行了主题化。
The existing mall consists of two distinct zones: the curved and ‘fluid’ atrium zone, which connects to the other mall floors with the atrium void, and the more orthogonal shaped area situated underneath the high-rise office tower. Superimpose interpreted the two zones as separate worlds and themed them according to the two distinct characteristics of Chengdu: the ‘Land of Abundance’ and the ‘Man Made City’.
▼平面图,空间被分为两个区域
plan, the space is divided into two zones

天府之国
Land of Abundance
“天府之国”区域设计成了一个郁郁葱葱的绿地,全都使用了天然的材料,比如木桌、石材地面、木格栅等。配色有绿色、黄色和灰色的不同色调。受四川平原地貌景观的特征启发,主要空间设置成了一个宽敞而灵活的论坛区。这个区域的平面布置采用流动的曲线条,空间圆角,以及软质家具作为设计语言。核心的区域布置大片的植物和竹子,为工作区域提供绿色的背景。
The ‘Land of Abundance’ zone is designed as a lush green space with natural materials, such as wooden furnishing, stone flooring and wooden wall lattices. The colour palette has different tones of green, yellow and grey. The main space is a large and flexible forum area inspired by the Sichuan plains. The plan setting out of this zone embraces fluent and curved lines, filleted corners and ‘soft’ furniture pieces. Plants and bamboo are placed in strategic places to provide a green backdrop to the working areas.
▼“天府之国”区域一览,设有开放的报告厅
overall view of the ‘Land of Abundance’ Zone with an open lecture room

▼前台及休闲区
reception and recreation areas


▼休闲交流区细部
details of the recreation areas

▼办公区
office space

▼会议室
meeting room

▼洗手间
washing room

人造城市
Man Made City
人造城市区域围绕原建筑核心筒布置,其设计采用强调几何感的直线条,以及如水泥板,铝合金,混凝土等富含工业感的材料。配色由灰色、蓝色和鲑鱼粉组成。
The ‘Man Made City’ area, dominated by large tower cores punching through, is designed by using orthogonal geometries and industrial materials such as cement board, aluminium and concrete. The colour palette consists of tones of grey, blue and salmon pink.
▼人造城市区域一览
overall view of the ‘Man Made City’area

其公共区域的设计在原有空间基础上,设置了若干个移动的轨道卡座空间单元,形成可以供人充分灵活使用的交流空间。叠术建筑联合比利时摄影师Kris Provoost采用了一种图形转化技术,将他的“美丽中国”系列摄影作品转化成全高的壁画图案,以强化“人造城市”的概念。
Large movable meeting pods are placed in the public space to ensure maximum flexibility in use. Superimpose collaborated with Belgium photographer Kris Provoost, and developed a tracing technique to translate his ‘Beautified China’ series into full-height huge wall murals to enhance the ‘Man made city’ concept.
▼卡座单元可以自由移动
movable meeting pods

▼卡座单元内部空间
interior view of the meeting pods


▼茶水区
recreation area


▼拉门可以完全打开的会议室
meeting room which could be fully open

▼会议室内部
interior of the meeting room

项目信息
项目名称:成都SOHO 3Q
文章分类:建筑设计-综合商业
设计公司:叠术建筑
项目地址:成都
项目规模:2000平方米
设计团队:CarolynLeung 、BendeLange、RubenBergambagt.YunqiaoDu、 AnaRalucaTimisescu 、AriannaBavuso 、ValentinRacko 、XiaoyuXu、 DavidTang.
Project information
Project Name: Chengdu SOHO 3Q
Article classification: Architectural Design - integrated business
Design company: folding architecture
Project address: Chengdu
Project scale: 2000 square meters
Design team: CarolynLeung 、BendeLange、RubenBergambagt.YunqiaoDu、 AnaRalucaTimisescu 、AriannaBavuso 、ValentinRacko 、XiaoyuXu、 DavidTang.














