阳光阁楼,北京/室内设计
位于北京的一个85平米、阴暗、封闭破败的双层公寓改造为专为本地的一对年轻夫妇设计的明亮、开放、绿植充沛的居住空间。整个改造过程从设计到建成总共耗时两个月。北京电视台(BTV)邀请优思建筑参与一档住宅改造的节目,以小户型为主,展示其改造成果和设计过程。优思建筑借此机会让人们意识到北京老建筑恶劣的居住条件,并提高对室内空间环境标准的意识。作为住宅项目,它的设计理念基于自然光、空间、简洁性、可持续性以及与人与绿色的紧密关系。在原有的平面布局中,客厅位于整个空间的东侧,客厅中的楼梯阻碍了空间使用。客厅东侧的口袋形阳台阻挡了整个房间的东侧采光。首层过多的隔断阻碍了采光和通风,从而导致空气潮湿,环境不健康。
Superimpose converted an 85 square meter, dark, confined and deteriorated loft apartment in Beijing into a bright, green and spacious environment for a young Beijing couple. The transformation was designed and built within a time span of 2 months. Beijing Television (BTV) invited Superimpose to participate in a TV show, which focuses on renovating existing apartments or small houses, showing the transformation results and design process. Superimpose utilised this opportunity to create public awareness towards the poor living and interior standards of Beijing apartments. This project showcases the design philosophy on residential projects based on the principles of natural (day) light, spatiality, neatness/ simplicity, sustainability and its close relation to green. In the existing plan configuration, the living room was situated on the east side of the house and had an obstructive stairs limiting good use of the space. The small pocket spaces at the east side of the house reduced penetration of natural daylight. The lower level suffered from an excessive amount of walls, blocking sunlight and ventilation, which resulted a humid and unhealthy living environment.
▼起居室
living room

叠术建筑所采取的照亮整个空间的首要措施便是根据太阳的方向重新排列功能布局。通过改变起居室和卧室的位置,将起居室布置于朝向西侧而卧室则朝向东侧。通过这样的重新布置,阳光阁楼的卧室接收早晨的阳光,而客厅接收下午的阳光,这与年轻夫妇的日常生活相一致。
Superimpose’s first tool to brighten the apartment was to re-arrange the function layout according to the orientation of the sun. By switching the living room and bedroom, the living room now orientates to the west and the bedroom to the east. With this rearrangement the Sun-Loft’s bedroom receives the morning sun, and the living room receives the afternoon sun, corresponding to the routine of the young couple.
▼阁楼卧室
bedroom on attic

▼卧室绿植架细部
bedroom plant frame details

公寓的主人坚持需要封闭的厨房,以防止厨房油烟进入客厅。优思建筑将引入推拉门将厨房区域灵活分隔,同时保证客厅及用餐区空间的宽敞及开放。厨房的台面向外延伸而形成餐桌,使其既适合作为用餐又适合作为烹饪的操作台面。
The landlord insisted on having an enclosed kitchen to prevent cooking fumes entering into the living room. Superimpose organized the plan in such a way that the cooking area could be fully separated with a sliding door, whilst no concessions were made to the spaciousness of the living and dining area. The kitchen countertop extends through the space forming the dining table, making it both suitable for dining and for cooking preparation.
▼封闭式厨房,台面向外延伸而形成餐桌
enclosed kitchen, the kitchen countertop extends through the space forming the dining table

▼餐桌延伸到楼梯旁边
dining table extending to the staircase

▼从餐桌望向卧室和楼梯
looking bedroom & staircase from the dining table

此外,设计在公寓的中心空间引入了一个新的楼梯,使得客厅和餐厅的空间更加明亮。通高空间的引入将楼梯作为核心,并将日光从二层引导入下层最暗的区域,同时表达出阁楼的双层空间高度及开阔的特性。黑色的栏杆扶手更增加了与明亮开敞公寓的对比,且强调了楼梯作为空间元素的重要性。100株绿色植物生长在公寓的瓷砖壁龛里。灵活的种植墙系统满足了夫妇俩为公寓增添绿植的愿望。中央楼梯以这些植物为主要特点,在进入公寓时更加突出空间的绿色特征。同样的策略也用于将原有的口袋阳台改造为书房和冬季花园。
A new staircase is introduced in the centre part of the apartment, which makes the brighter spaces available for the living room and dining area. A void is created to place the staircase as the centrepiece and to channel daylight from the second floor to the darkest part of the lower floor, simultaneously showcasing the double height and spaciousness of the loft. A black balustrade adds contrast to the apartment and accentuates the architectural importance of the staircase.One hundred plants are growing inside tiled alcoves placed through the apartment. With the flexible planter wall system, this can fulfil the couple’s wish to add green to the apartment. The central staircase features a collection of these planters, highlighting the green character of the space upon entering the apartment. A similar strategy is applied to the formerly dead-end and un-usable pocket spaces as they are transformed into a study room and a winter garden.
▼楼梯轴测图
staircase axonometric drawing

▼通高空间的引入将楼梯作为核心,并将日光从二层引导入下层最暗的区
channel daylight from the second floor to the darkest part of the lower floor, simultaneously showcasing the double height and spaciousness of the loft


▼黑色的栏杆扶手更增加了与明亮开敞公寓的对比
A black balustrade adds contrast to the apartment and accentuates the architectural importance of the staircase


为使原本狭小公寓更显宽敞,设计采用了许多巧妙的方式整合收纳空间,如利用楼梯下及周边的空间以及梁下的剩余空间等。燃气炉、煤气表、电箱、空调、冰箱、烤箱等都布置在楼梯周围的剩余空间。首层的卫生间藏于衣柜的墙内而二层的超大卫生间内则布置洗衣机及烘干机等设备。
In order to make the small apartment feel spacious, smart solutions were applied to integrate storage space such as utilizing the space underneath and surrounding the staircase and under lower beam locations. Boiler, gas meter, electricity inlet, air-conditioning units, fridge and oven are integrated around the staircase. The first floor bathroom is hidden behind the cabinet wall whilst the second floor hosts a larger bathroom where washing and drying machines are located.
▼藏于衣柜中的卫生间
restroom hidden in the wardrobe

▼二层布置洗衣机及烘干机等设备的卫生间
restroom on second floor with washing and drying machines

叠术建筑相信居住环境塑造了居民的健康和生活方式。阳光阁楼的设计以舒适品质及功能整合为驱动力,使人的日常生活追随日光的方向。优思建筑集合日照、绿色、空间品质等设计条件,创造了宜居的家居环境。
Superimpose believes that the living environment shapes the wellbeing and lifestyle of its inhabitants. The Sun-loft is a comfort and functionality driven design that aligns daily rituals with the sun orientation. Superimpose holistically integrates daylight, green and spatial quality and achieves a liveable Beijing household.
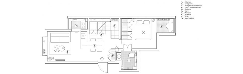
▼一层平面图
1F plan

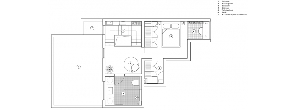
▼二层平面图
2F plan

▼剖面图
section

项目信息
项目名称:阳光阁楼
文章分类:室内设计-住宅
设计公司:叠术建筑
项目地址:北京
项目规模:85平米
设计团队:CarolynLeung、BendeLange、RubenBergambagt、XiaoyuXu、AnaRalucaTimisescu、AriannaBavuso、GuillermoAyalaSamaniego
Project information
Project Name: Sunshine attic
Article classification: Interior Design - Residence
Design company: folding architecture
Project address: Beijing
Project scale: 85 square meters
Design team: CarolynLeung、BendeLange、RubenBergambagt、XiaoyuXu、AnaRalucaTimisescu、AriannaBavuso、GuillermoAyalaSamaniego














