湖州东站 / 中南建筑设计院股份有限公司
《庄子·逍遥游》开篇言:“北冥有鱼,其名为鲲。鲲之大,不知其几千里也;化而为鸟,其名为鹏。”这份跨越千年的逍遥意象,藏着中国人对舒展、灵动、与天地共生的空间哲思。湖州东站的设计,便以这份古卷文意为引,以“水漾丝路、湖倾万锦”为设计核心理念,深度融合湖州“丝绸之府、太湖望郡”的地域文脉与当代交通建筑的功能需求。
The opening lines of “Zhuangzi: Free and Easy Wandering” state: “In the Northern Sea there is a fish, its name is Kun. Kun is so huge that no one knows how many thousands of miles it measures; when it changes into a bird, its name is Peng.” This image of freedom and ease that spans a thousand years conceals the Chinese people’s philosophical thinking about space that is expansive, dynamic, and in harmony with nature. The design of Huzhou East Railway Station takes this ancient text as its inspiration, with the core design concept of “Water Ripples the Silk Road, Lake Unfolds a Thousand Jewels,” deeply integrating the regional cultural context of Huzhou as the “Silk Capital and the County by Taihu Lake” with the functional requirements of contemporary transportation architecture.
▼项目概览,Overview of the project

湖州地处太湖南岸,苕溪、霅溪双水穿城,形成“水网交织、田桑相依”的江南水乡格局。这种水脉基因在建筑中表现为对曲线轮廓的偏爱,以及对虚实相生、光影变幻的空间追求。站房设计中,屋面连续起伏的曲线轮廓,正是对太湖水波流动韵律的直接转译。屋面最低点的高差控制在4.5米以内,既避免了对天际线的过度干预,又通过平缓的起伏模拟湖岸潮汐的自然形态,使建筑与太湖西岸的水乡地貌形成视觉延续。
Huzhou is located on the southern shore of Taihu Lake, with the Tiaoxi and Zhaixi rivers flowing through the city, forming a water town pattern of “interwoven waterways and fields and mulberry trees.” This water-based genetic code is reflected in the architecture through a preference for curved outlines and a pursuit of spaces that are both solid and void, with ever-changing light and shadow. In the design of the station building, the continuous undulating curves of the roof directly translate the rhythm of the waves on Taihu Lake. The height difference at the lowest point of the roof is controlled within 4.5 meters, avoiding excessive interference with the skyline while simulating the natural form of the lake shore’s tides through gentle undulations, creating a visual continuation with the water town landscape on the west bank of Taihu Lake.
▼项目鸟瞰,Aerial view of the project

湖丝的细腻肌理与苏绣的绚丽纹样,不仅是地域经济的符号,更成为建筑立面“虚实相生、如纱似锦”的灵感来源。落客平台雨棚的门式刚架结构如湖丝的经线般纵向延伸,横向的玻璃肋则似纬线穿梭其中,形成“经纬交织”的织锦肌理。雨棚顶部的半透明玻璃与金属格栅的虚实组合,模拟苏绣“线与面、疏与密”的纹样特征,自然光透过格栅形成的斑驳光影,如同丝绸面料在微风中泛起的光泽,使通行空间成为“湖倾万锦”的沉浸式体验场所。
The delicate texture of Huzhou silk and the colorful patterns of Suzhou embroidery are not only symbols of the local economy but also the inspiration for the “solid and void, like gauze and brocade” design of the building’s facade. The portal frame structure of the drop-off platform canopy extends longitudinally like the warp threads of silk, while the horizontal glass ribs weave through like the weft, forming a “warp and weft interwoven” brocade texture. The combination of translucent glass and metal grilles on the top of the canopy simulates the pattern characteristics of Suzhou embroidery, with the dappled light and shadow formed by the grilles resembling the luster of silk fabric in the breeze, transforming the passage space into an immersive experience of “Lake Unfolds a Thousand Jewels.”
▼站台层,Platform level


湖州东站采用门式刚架作为核心结构体系,通过精准控制刚架杆件的角度变化,使屋面呈现连续起伏的曲线轮廓。这种动态造型既模拟了太湖水波的流动韵律,又暗合苏绣纹样的连绵肌理,实现了“水漾丝路”的意象转译。
Huzhou East Railway Station adopts a portal frame as the core structural system, precisely controlling the angle changes of the frame members to create a continuous undulating curve on the roof. This dynamic form not only mimics the flowing rhythm of Taihu Lake’s waves but also echoes the continuous texture of Suzhou embroidery, achieving the translation of the “Water Ripples the Silk Road” image.
▼门式刚架,Portal frame

自然光透过刚架间隙洒入室内,在地面与墙面形成动态的光影变化,如丝绸面料在微风中泛起的光泽。这种设计打破了交通建筑空间的封闭性,将结构美学转化为旅客可感知的场所体验。
Natural light filters through the gaps in the portal frames, creating dynamic changes in light and shadow on the ground and walls, like the luster of silk fabric in the breeze. This design breaks the closed nature of transportation building spaces, transforming structural aesthetics into a perceptible place experience for passengers.
▼候车大厅,Waiting hall



站房采用“坐南朝北”的布局,并针对性提出“南高北低”的剖面设计。南侧抬高的体量不仅对应二层候车区的空间需求,更能最大化引入南向自然光,同时解决大空间排烟问题。剖面设计精准匹配雨棚、入口等不同功能空间的高度需求,避免了传统大空间站房的冗余体积。通过优化空间剖面,候车大厅的净空高度根据人流密度动态调整,既保证了空间的开敞感,又减少了空调负荷,实现了功能需求与低碳目标的平衡。
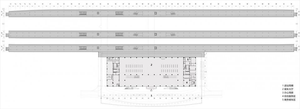
▼站台层平面,Platform level plan

The station building adopts a “southern-facing” layout and proposes a “higher south, lower north” sectional design. The elevated volume on the south side not only meets the spatial requirements of the second-floor waiting area but also maximizes the introduction of south-facing natural light while solving the problem of smoke exhaust in large spaces. The sectional design precisely matches the height requirements of different functional spaces such as the canopy and entrance, avoiding the redundant volume of traditional large-space station buildings. By optimizing the spatial section, the clear height of the waiting hall is dynamically adjusted according to the density of the passenger flow, ensuring the openness of the space while reducing the air conditioning load, achieving a balance between functional requirements and low-carbon goals.
▼夜景,Night view



作为衔接城市与远方的门户,湖州东站站房是承载着文化记忆、自然诗意与当代生活的载体——如鲲鹏栖于苕霅之滨,既扎根地域文脉,又奔赴广阔远方,让每一次启程与抵达,都成为一场穿越古意与今时的文化邂逅。
As a gateway connecting the city and the distant, the Huzhou East Railway Station building is a carrier of cultural memory, natural poetry, and contemporary life – like a Peng bird perching by the Tiaoxi and Zhaixi rivers, rooted in the regional cultural context while heading towards the vast distance, making every departure and arrival a cultural encounter that transcends the past and the present.
▼站台层平面,Platform level plan

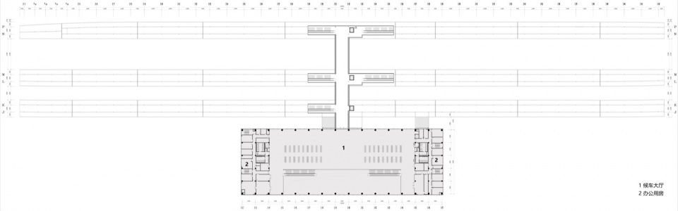
▼高架层平面,Elevated level plan

▼湖州东立面,The east facade of Huzhou

▼剖面,Section

Project name:New Construction of Huzhou East Station Building and Related Projects for the Connecting Line from Huzhou to Hangzhou West and to the Hangzhou-Huang High-Speed Railway
Project type:Railway Station
Design:CENTRAL-SOUTH Architectural Design Institute Co., Ltd.
Website:https://csadi.com.cn/
Contact e-mail:office@csadi.cn
Design year:2019
Completion Year:2024
Leader designer & Team:Li Chunfang, Dai Wei, Zhang Dan, Fu Guo, Xiao Luyao, Zhang Qian, Li Chao, Bo Si, Zhang Kuai, Zhang Wei, Feng Xiaobin, Han Shaonan, Ma Weizheng, Luo Rong, Bai Ruzhen, Chen Jianqun, Rong Hao, Zhu Tao, Xiang Rui, Yu Bingxian, Wang Dangrui, Wang Chunxiang, Le Hongli, Jin Hao, Zhong Yan, Wang Wei, Long Cuijuan
Project location:Balidian Town, Wuxing District, Huzhou City, Zhejiang Province
Gross built area:15000㎡
Photo credit: Ding Shuo
Clients:Huzhou-Hangzhou Railway Co., Ltd.














