四季之屋,德国 / New Architekten
契合德国“E 型建筑(Building Type E)”倡议的目标——该倡议已获得广泛的政治与专业领域支持——气候展亭可被视为一项具有实践意义的建筑实验。其室内空间并不试图与外部气候条件相隔离,而是积极回应环境变化,通过被动式策略——包括空间组织、朝向、热容量、自然采光与自然通风——与周围的气候花园在全年保持持续的互动。项目由此探讨公共建筑如何在最小化技术系统、采用直接而清晰的结构方式的前提下,仍能实现高度的空间与氛围品质,并使建筑性格随季节自然演变。
In line with the objectives of the German “Building Type E” initia-tive, which has already received broad political and professional support, the Climate Pavilion can be seen as an applied architectural experiment.Its interior does not seek to separate itself from external climatic conditions; rather, it responds to them, using passive strategies-spatial configuration, orientation, thermal mass, daylight and natural ventilation-to maintain a constant exchange with the surrounding Climate Garden throughout the year. The project explores how a public building can operate with minimal technical systems, a straightforward structural design, and a high level of spatial and atmospheric quality, allowing its character to evolve organically with the seasons.
▼建筑外景,Exterior of the Building


▼建筑正视图,Building elevation

▼建筑与自然,Architecture and nature



位于施韦尔特(Schwerte)的气候展亭,是新近建成的施韦尔特气候花园中的核心建筑,该花园作为 2027 年鲁尔大都会区国际园艺展(IGA)的一部分而开发。这座木结构建筑延续了“四季之屋”的理念,作为一处全年可使用的学习与交流场所:夏季,它是提供遮荫的教育空间;冬季,则转化为集市大厅与节庆活动的友好场所。
▼侧门敞开过程,The process of opening the side door

The Climate Pavilion Schwerte forms the central venue within the newly completed Climate Garden Schwerte, developed in the context of the International Garden Exhibition (IGA) Ruhr Metropolitan Region 2027. This timber structure follows the idea of a “House of the Seasons”-a building that offers space for learning and exchange throughout the year: a shaded place of education in summer; a market hall and welcoming setting for celebrations in winter.
▼敞开的侧门,The open side door

▼室外檐下空间,Outdoor eave space

▼集教育工作坊、橘园、节日帐篷于一体,Educational workshop, orangery, and festival tent all in one

建筑立面采用本地获取、受树皮甲虫侵害的木材,结构框架则使用未经处理的实木,这一选择回应了资源利用、空间氛围以及使用者接受度等议题。基于温室构造逻辑的玻璃立面,通过大尺度推拉门建立起室内外之间的开放联系。所有木材与金属表面均未进行表面处理,任其随时间自然形成包浆,这种变化不仅清晰可见,也被设计有意接纳与尊重。
The use of locally sourced timber affected by bark-beetle infestation for the façade, and untreated solid wood for the structural frame, addresses questions of resource use, spatial atmosphere and user acceptance. The glass façade, based on greenhouse con-struction, opens generous connections between inside and out through large sliding doors. All timber and metal surfaces are left untreated, allowing their natural patina to evolve over time – a change that is both visible and intentionally embraced.
▼让室内最大程度地接近户外,As much outdoor as possible for the indoor

▼结构,Structure


墙体与屋顶中的木结构框架与板块构件采用高度预制化方式,建筑机电系统外露设置,并通过蓄水池收集雨水,用于卫生间冲洗与植物灌溉;同时,项目还引入了协作管理的光伏发电系统。这一系列策略共同构成了一个以“适度性(sufficiency)”“韧性(resilience)”与当代建筑的简洁性为核心的整体概念。
A high degree of prefabrication of timber frame and cassette elements in the walls and roof, exposed building services, rainwater collection via a cistern for toilet flushing and plant irrigation, and a cooperatively managed photovoltaic system round off a concept devoted to sufficiency, resilience and contemporary architectural simplicity.
▼材料细节,Material detail


▼项目区位图,site plan

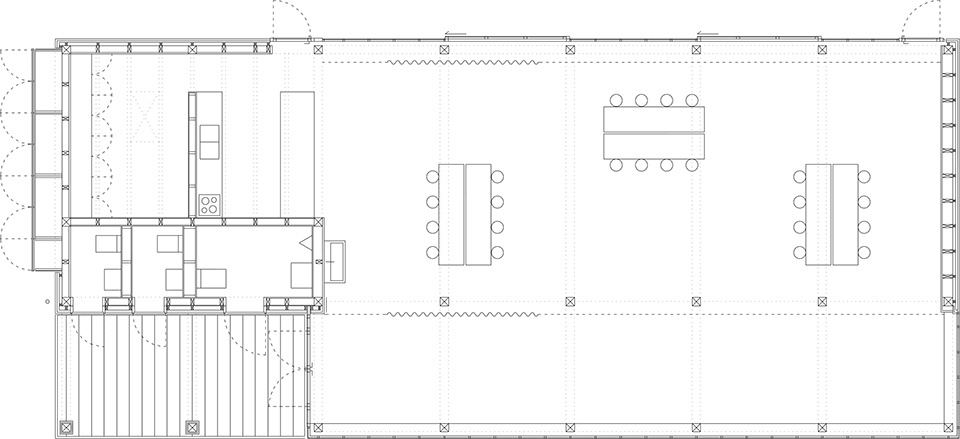
▼平面图,Floor plan

▼立面图,Elevation


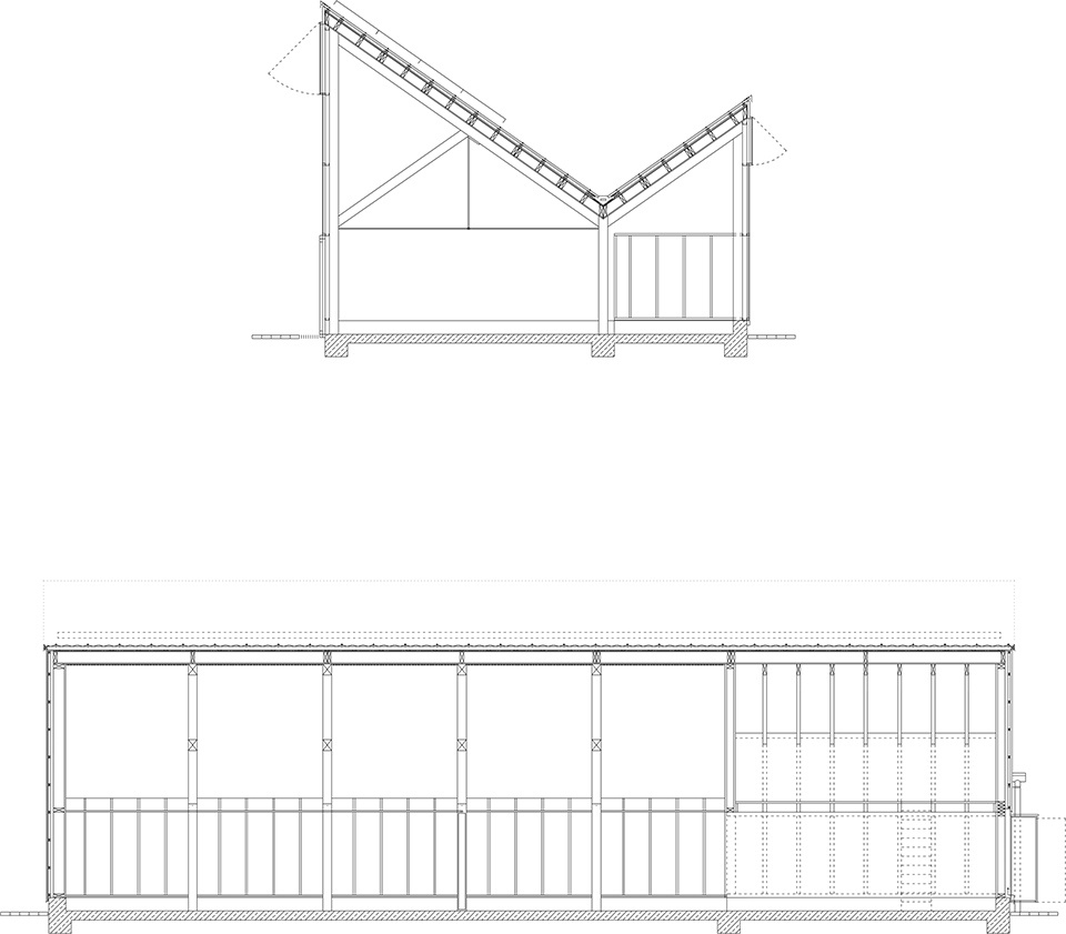
▼剖面图,Section

Location:Ioannina-Platz 1D-58239 Schwerte
Client:City of Schwerte
Architects:
New Architekten BDA
Jutta Albus Architektur
New Architekten BDA
Friedrich Keuthen
Michael Weichler
Hildeboldplatz 19
D-50668 Köln
+49 221 64793790
eu@newnew.eu
Jutta Albus Architektur
Dr. Jutta Albus
Leichlinger Straße 6a
D-51379 Leverkusen
ja@albusarchitecture.com
Photographer:Thilo Rohländer /hello@thilorohlaender.com
Landscape Architects:Förder Landschaftsarchitekten
Engineering:construct.ING
Building services engineering:Rüschenschmidt
Start of planning:08-2023
Start of building:09-2024
Completion:10-2025
Area:235 m2
Volume:992 m3
Csots:0,8 Mio €














