Felix城市服务综合体,比利时 / ATAMA
根特布吕赫服务中心由Paul Felix设计,坐落于根特布吕赫梅尔森(Gentbrugse Meersen)边缘,由三栋建筑组成。这三栋建筑通过精心组织的构图彼此相连,使每一栋既保持自身的独立性,又能够与其间所形成的空间产生互动。此次改造通过一系列干预措施,将场地的属性从一座行政办公建筑转变为一座以不同使用者之间相遇与交流为核心的城市性建筑。每栋建筑顶部均加建了扩展空间,包括舞蹈厅、办公空间以及屋顶游乐场。在建筑内部,所有功能空间均直接面向公共流通空间布置,并以其为组织核心。图书馆作为首层的核心枢纽,周围环绕着开放式服务柜台,促进不同使用者之间的互动。演出大厅作为第四栋建筑被增建以完善整体构图,并与相邻建筑共同围合出一个庭院。
▼轴测分析图,Axonometric diagram

The Service Center Gentbrugge, designed by Paul Felix and situated on the edge of the Gentbrugse Meersen, consists of three buildings that are meticulously linked in a composition that gives each building autonomy while also allowing them to interact with the space created between them. The transformation proposes interventions that transform the character of the site from an administrative building to an urban building where encounters between different users are the focal point. Each building is crowned with an extension – a dance hall, office space, and rooftop playground. Inside the building, all parts of the program are given an address to a public circulation space. The library serves as the pivot of the ground floor and is surrounded by open service counters that facilitate interaction between different users. A fourth building, the performance hall, is added to complete the composition, enclosing a courtyard along with the adjacent buildings.
▼建筑外观概览,Overall exterior view



新的混凝土立面构件以一种节奏化的方式排列,与原有建筑的韵律相呼应。细长的板件依据构造逻辑进行弯曲,体现出新建阶段的结构表达。设计对建筑原有的包容性与宽敞空间抱以充分而激进的信任,并将其延展为一个新的整体组合。
New concrete facade elements are arranged in a rhythm that aligns with the existing building’s cadence. The slender panels curve according to a tectonic logic that embodies the new construction phase. The design puts radical trust in the accommodating and generous spaciousness that the buildings offer, and extends it into a new ensemble.
▼建筑立面近景,Building facade close view



“……当警察遇见艺术”“…And the police meets the arts”
20世纪70年代的混凝土建筑常被视为灰暗、沉闷的结构,人们往往希望尽快将其拆除。以木材、钢材与玻璃构成的轻质加建部分,往往进一步强化了这种负面印象。Felix设计成了一个多功能建筑群,服务对象包括学生、艺术学院使用者、图书馆、警察部门以及市政行政机构,有意识地选择“在混凝土的历史之上继续建造”。混凝土并未被“清理修饰”,而是接纳其风化的痕迹。通过将混凝土的多种色调、多样的表面处理方式以及结构所呈现的多种形态视为一套丰富的设计工具,我们得以扭转其负面认知。对混凝土柱、立面板与梁构件的多种变体进行了审慎的增补。新旧元素之间的关联清晰可辨。新的构件在呼应原有结构节奏的同时,引入更为柔和的边缘与线条。建筑在原有基础上被加高与延展,仿佛原始设计得以继续发展。一座拥有承重混凝土立面的新剧场大厅被无缝嵌入场地之中。
Concrete buildings from the 1970s are often dismissed as gray, dreary structures, to be demolished as soon as possible. Lightweight extensions in wood, steel, and glass frequently amplify this perception further. The design for De Felix—a multifunctional cluster that welcomes schoolchildren, users of the academy, the library, the police, and city administration—consciously chooses to ‘build on’ its concrete past. The concrete is not ‘cleaned up,’ but rather its weathering is embraced. By viewing the various hues of the concrete, the varied surface treatments and the many forms that the structure takes on as a rich set of tools, we can reverse the negative perception. Variations of the concrete columns, façade panels, and beams are thoughtfully added. The old and new are unmistakably related. The new elements revisit the rhythm of the existing structures while introducing softer edges and lines. The buildings are topped up and extended, as if the original design is being further developed. A new theater hall, featuring a load-bearing concrete façade, is seamlessly woven into the site.
▼屋顶游乐场空间,Rooftop playground

▼屋顶游乐场一角,A corner of rooftop playground


此次改造遵循强有力的循环利用策略,尽可能保留并再利用既有结构。最终呈现的是一座既尊重原有建筑价值、又为未来需求做好准备的建筑。
The transformation follows a strong circular approach, preserving and reusing as much of the existing as possible. The result is a building that not only respects the value of the original architecture, but is also prepared for the needs of the future.
▼室内空间,Interior space



▼项目区位新旧对比图,Site plan comparison

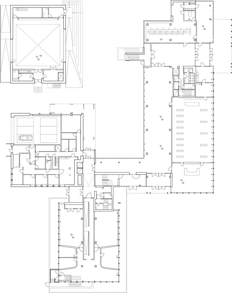
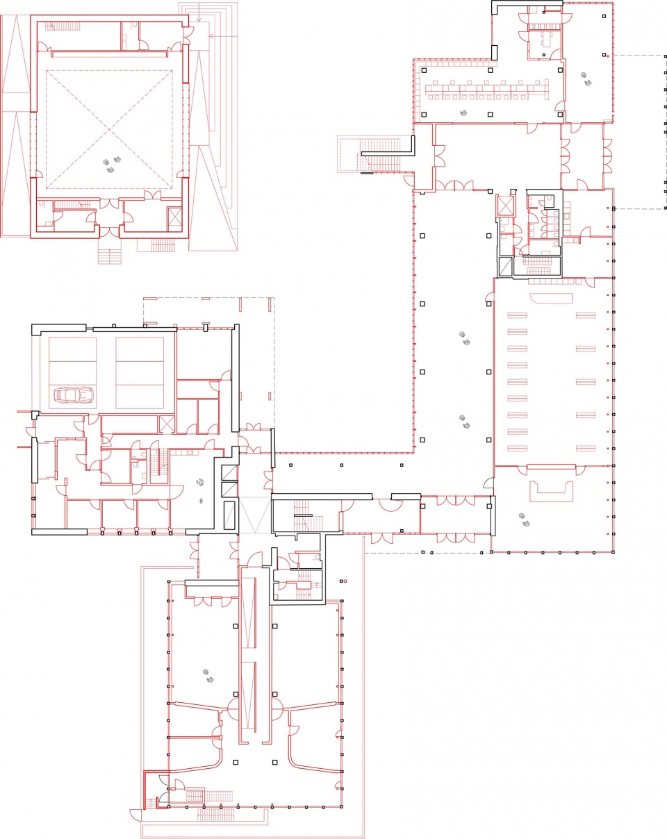
▼标准层平面图,Floor plan

▼平面新旧对比图,Plan comparison

▼建筑剖面图,Building section

▼剖面新旧对比图,Section comparison

address: Braemkasteelstraat 29-45, 9050 Gentbrugge
client:
Stad Gent
St-Salvatorstraat 16, 9000 Gent
Marie-Anne Morel
+32 473 88 69 16
marieanne.morel@stad.gent
programme:
police station, school, academy of the arts, library, cafeteria, civil administration center
team: UTIL, Boydens studiebureau, Daidalos, Cluster
scope: Complete assignment from preliminary design to delivery, including site supervision and coordination.
status: under construction, 2020-2024
area: 5.674 m2
building cost: € 14.730.000 (excl. VAT)














