山行,走向自然的叙事空间
从开始,我们就把这个小房子想作一块山石,一块太湖假山石。它来自于对自然大山形态的模拟。
空间虽小,但起承转合,取意丰富。
“曲折尽致”——指空间总体结构的丰富层次和路径设置的蜿蜒多变。
“高远,深远,平远”——人与两块“石头”不同位置关系中,时而仰望,时而窥视,时而俯视的透视关系。
“玲珑”——实体间的缝隙,两层楼并不隔绝,从这些孔隙中光线穿透,相互提示。
Mountain travel, towards natural narrative space
From the beginning, we thought of this small house as a mountain stone and a rockery in Taihu Lake. It comes from the simulation of the shape of natural mountains.
Although the space is small, it is rich in meaning.
"Twists and turns" -- refers to the rich levels of the overall spatial structure and the winding and changeable path setting.
"Lofty, far-reaching and far-reaching" -- the perspective relationship between man and the two "stones" in different positions, sometimes looking up, sometimes peeping and sometimes looking down.
"Exquisite" - the gap between entities. The two floors are not isolated. Light penetrates through these pores and prompts each other.
▼廊,Corridor


它从山中来,最终归于“自然”二字。
进入白色膜创造的洞穴,这是一个留白充满想象的世界。由直入曲,空间形成包裹,几何秩序控制下的变化让空间的留白有了进退、深浅、套叠的层次感。“形”至中心,宛若水滴。山洞与身体密切相关。水滴中心比一人略高,人从中间穿过需要下意识要俯身。这若即若离的片刻紧张就好像在园子的假山洞中探秘。
It comes from the mountains and finally belongs to the word "nature".
Enter the cave created by the white film, which is a world full of imagination. From straight to curved, the space forms a package, and the changes under the control of geometric order give the blank space a sense of advance and retreat, depth and overlap. "Shape" to the center, just like water droplets. Caves are closely related to the body. The center of the water drop is slightly higher than that of a person. When a person passes through the middle, he needs to bend over subconsciously. The tense moment was like exploring a secret in the rockery cave of the garden.
▼展厅,Exhibition hall

▼摄影棚,Studio

完工后的一个夏日,我们坐在室内的的台阶上,随手拿些白石丢来丢去,头顶有些新风,背身是窗外炽烈的阳光。这一片刻,我们感受到了自然。一切源于眼睛。它是成熟的,独立的,抽象的,也是Mur Mur一直追求的。
One summer after the completion, we sat on the indoor steps and threw some white stones around. There was a fresh wind above our heads and the blazing sunshine outside the window. At this moment, we feel nature. Everything comes from the eyes. It is mature, independent and abstract, which Mur has been pursuing.
▼摄影棚局部,Part of the studio

▼山形,Yamagata

从过去一直探索的“简单几何形空间表现”转向“自然叙事的空间”,这算是我们关注点的一个转向。简单几何仍然是空间架构有力的工具,但不再是目的。设计有趣的地方在于:如何在一个限定很小的区域内,体现高度浓缩的山体意识。
From "simple geometric spatial expression" to "natural narrative space", which has been explored in the past, this is a turn of our attention. Simple geometry is still a powerful tool for spatial architecture, but it is no longer an end. The interesting part of the design is how to embody the highly concentrated mountain consciousness in a limited small area.
在空中叠两块“大石头”。石头向内掏空,容纳既定的功能;石头向外挤压,空间曲折只剩缝隙。在缝隙里设置一条山行的小径:拾级而上,缝隙被石头越挤越小;在端头转向,对一长凳,圆形洞口透些光景;再向上,到达高台小花园,像是爬上某个“看山楼”,回首又俯瞰两块石头。
Stack two "big stones" in the air. The stone is hollowed in to accommodate the established function; The stone is squeezed outward, and the space twists and turns, leaving only gaps. Set a mountain path in the gap: pick up the steps and go up, and the gap is smaller and smaller by the stones; Turn around at the end, and see some scenery through the circular opening of a bench; Then go up to the small garden on the high platform. It's like climbing up a "mountain tower", looking back and overlooking two stones.
▼山形,Yamagata

游弋于旧厂房的空间,我们尝试用思考力,而不仅仅是手法去表现这个工作室。脱离了低级趣味的符号,去除多余不必要的语言,我们用尽量少的元素组合,留给使用者更多的想象空间。
Cruising in the space of the old factory, we try to express the studio with thinking, not just techniques. Without the vulgar symbols and unnecessary language, we use as few elements as possible to leave more imagination space for users.
▼主摄影棚,Main studio

▼洞天,Dongtian

▼展廊,Gallery

空间主理人汤老板的摄影作品将是这个展厅首展。不久,会有新的展览,它就像一个小小的发射器,发射出讯号邀请更多人参与这个留白空间的创造和体验。
The photography of boss Tang, the space manager, will be the first exhibition in this exhibition hall. Soon, there will be a new exhibition, which is like a small transmitter, sending out signals to invite more people to participate in the creation and experience of this blank space.


为一间摄影工作室置入一个展厅。将观看的场景转换为某种体验性场景,将日常的空间赋予某种非日常的功能,这是Mur Mur为Tang+制造的惊喜。
Set up an exhibition hall for a photography studio. It is Mur Mur's surprise for Tang + to transform the viewing scene into an experiential scene and endow the daily space with some non daily functions.
▼展厅局部,Part of the exhibition hall


“可游,可居”——客人来了围坐一圈,它是一个聊天的好地方;钢骨上预留的圆孔拉线挂画,这里又是一间展厅。
"Can swim, can live" -- guests come to sit around, it is a good place to chat; The round hole on the steel frame is reserved for drawing, and here is another exhibition hall.
▼内院,Inner courtyard

女主人莉玲说,她像拆开一个巧克力盒子般推开工作室大门,每天可以从一些细小的地方捕捉到我们留下的讯号。她想慢慢解读。
The hostess Liling said that she opened the door of the studio like opening a chocolate box and could capture the signals we left from some small places every day. She wants to read it slowly.


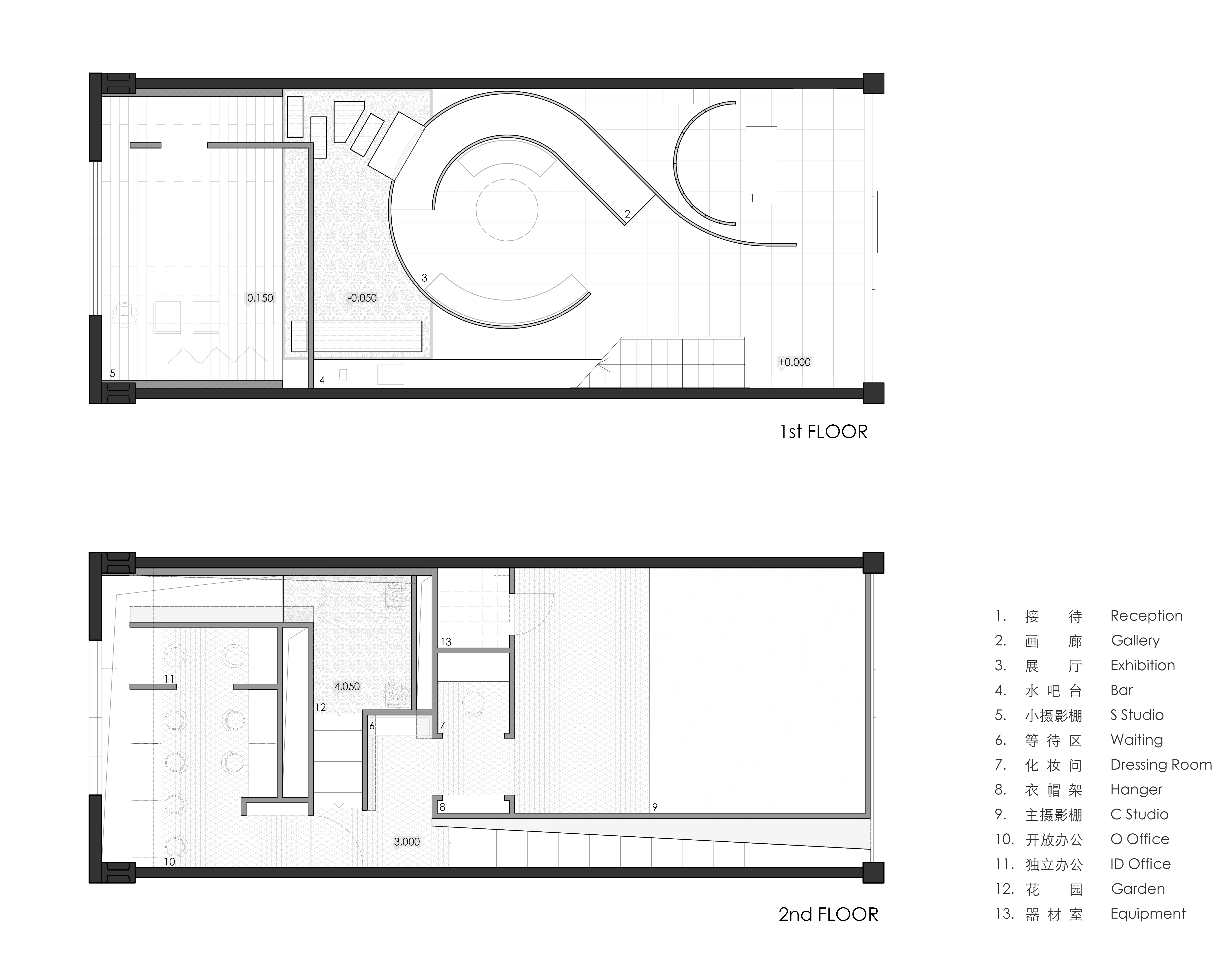
项目信息
项目名称:Tang+摄影工作室
设计团队:李智,夏慕蓉,王雨斌
文章分类:室内设计-办公会议
设计公司:Mur Mur Lab
项目地址:上海
项目规模:约500 m²
项目年份:2017,春-夏
摄影版权:Hozwee
Project information
Project Name: Tang+ photography studio
Design team: Li Zhi, Xia Murong, Wang Yubin
Article classification: Interior Design - office meeting
Design company: Mur Mur Lab
Project address: Shanghai
Project scale: about 500 m²
Project year: 2017, spring summer
Photography Copyright: Hozwee