La Manufacture文化中心,法国 / MARS Architectes
前言Preamble
▼城市鸟瞰,aerial view of the city

历史——文化中心的建构History Building a cultural center
文化中心的创建,源于寻找一个功能完善的公共空间的愿望——它将小镇上分散的各类服务汇聚一处,以满足当地居民的多样需求。这座历史悠久的巴斯蒂德小镇(bastide),作为中世纪宏伟的城市结构,如今被列为“重点优先”区域,而文化中心的建设标志着鲁埃尔格·维尔弗朗什(Villefranche de Rouergue)市中心更新的第一步:一个既能满足普通民众,尤其是弱势群体需求,又能传播、活化、接待与教育公众的场所。在我们看来,这个文化中心既不是单纯的图书馆、媒体图书馆、游戏室、多功能厅或展览空间,而是集合了所有功能的综合空间——今天可称之为“第三空间”,为社区提供共享资源、技能和知识的自由平台。结合当下的文化感知与社会需求,我们提出的建筑方案尊重并呼应这一地方的历史脉络。这是一段穿越时空的旅程,一次机会主义的探索,一种基于情境诗学的建筑实践。
The creation of this cultural center is closely linked to the desire to find a functional facility, capable of bringing together the various services that are currently scattered around the town, and bringing them together to meet the needs of local residents. This age-old bastide, a magnificent medieval urban structure, is today a “priority” district, and the construction of this cultural hub represents the first step towards the renewal of Villefranche de Rouergue’s town center: a place capable of meeting the needs of everyone, especially the most disadvantaged, capable of disseminating, animating, welcoming and educating around knowledge and culture. So for us, this cultural hub is neither a library, nor a media library, nor a games room, nor a multi-purpose hall, nor an exhibition space, but all at once: today we could call it a “third place”, i.e., a place designed to accommodate a community so that it can freely share resources, skills and knowledge under one roof. With today’s sensibility, culture and needs, we propose an architecture in line with the history of this place. A journey through the ages, an opportunistic journey, based on the poetics of the situation.
▼建筑外观,exterior view of the project

在梳理这一建筑群的历史层次时,我们发现各个时期的建筑互相承接、交织嵌套。如同“重写古籍”的手稿(palimpsest),中世纪抄写员会在原有文字上覆盖新的文本,这座建筑也在时间的推移中不断自我重构。我们的干预正是这一延续的一部分。在充分尊重建筑遗产价值与所承担责的前提下,我们认为文化中心的建构不应被历史重压束缚,而应以创造性与创新性,拥抱过去、现在与未来的连续性。因此,项目旨在修复、增建、并置旧有空间,同时融入新元素,力求以符合当下价值观和功能需求的方式“重写”这一空间。我们的目标不是简单的仿古复原,而是实现不同历史时期的和谐对话。我们试图呈现这种形而上学的张力:当空间中相隔数米、时间上相隔数千年的两段现实相互呼应时,那种令人眩目却又可感知的对话感便显现出来。
As we search and sort through the various layers of architecture that make up this complex, we realize that they follow one another, interweaving and interlocking. Like a palimpsest, an ancient author’s manuscript that medieval copyists erased to cover with a second text, the building has in a way rewritten itself over time. Our intervention is part of this process. While we are fully aware of the heritage value of this building and the responsibility entrusted to us, we nevertheless believe that the creation of this cultural hub should not be crushed under the weight of history, but rather embrace this past, present and future history in a dynamic that is both creative and innovative. Consequently, our project seeks to restore, add, juxtapose and add new components to the old parts, with the stated aim of rewriting this space in a manner consistent with today’s values and needs. Our approach is not aimed at a simple “pastiche restoration”, but rather at a harmonious dialogue between eras. We like to imagine the metaphysical dimension that emerges from the dizzying, yet tangible, gap between two fragments of reality confronting each other a few meters apart in space, and a few millennia apart in time.
▼外观近景,closer view of the exterior

策略——使用价值的重塑Strategy Usage value
项目的发展基于探索建筑项目所依托元素之间的关联:使用、价值、记忆、技术、技艺……在既有基础上增加新的层次,将这一前修道院改造成宫殿,再改造成工厂,如今成为文化中心。
The development of the program was based on a search for correlation between the elements on which this architectural project is founded: uses, values, memory, technology, know-how… adding a new layer to the previous ones, transforming this former convent into a palace, then into a factory, and now into a cultural center.
▼室内概览,overall of interior

一层|Ground floor
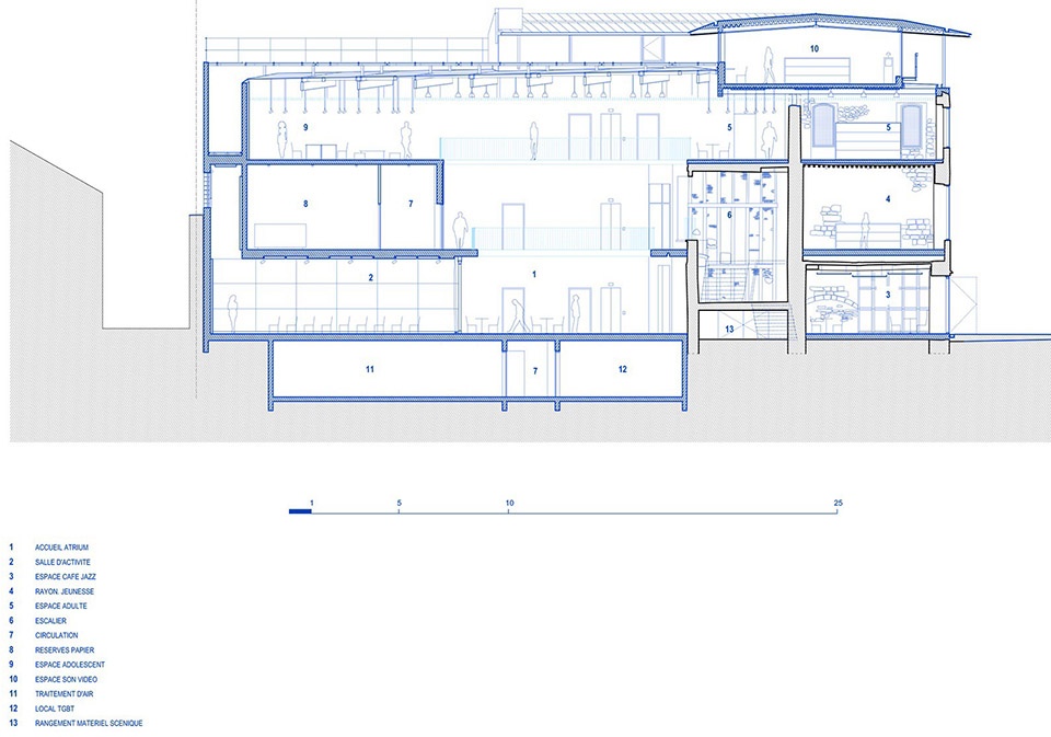
一层旨在与公共空间相连。现有的门廊被用作入口大厅,引向改造后的前庭,这里被改造成一个宽敞、慷慨的大中庭:作为接待区,它提供了文化中心大部分功能的视觉联系,同时也可作为期刊阅览空间。活动将在接待区周围组织,可在图书馆开放时间之外使用:
网络爵士咖啡厅 位于Place Bernard Lhez前,可向外开敞,是一个多功能空间,可供阅读、工作和休闲,同时也是哲学咖啡馆和聚会场所。室内外均设有桌椅,浮动木质板吊顶营造氛围。材料选择——木材、焦糖色皮革——强化了温暖、欢迎的氛围,同时保留石墙的历史特征。
玩具图书馆 位于面向Rue du Palais的现有建筑中,提供大型空间,适合团体活动,并配有可俯瞰游戏区的玻璃办公室及储物区。
活动室 位于地块尽头,与接待区直接相连,可通过可完全拆卸的门共享,适用于展览、舞蹈、会议和音乐会等活动(约200㎡)。该空间通过南端天窗自然采光,从入口大厅营造出温馨感。声学处理通过木材与布料面板组合实现,保证满意的舞台效果。
各区域可独立运作,为此设计了可关闭的特殊接待台。公共厕所、储物区和更衣室完善了各项功能。
▼分析图,analysis diagram

The ground floor is designed to be in continuity with the public space. The existing porch is used as an entrance hall, leading to the former courtyard, which has been transformed into a large, generous atrium: a reception area, it provides a visual link between the majority of the cultural center’s programs. It may also be used as a space for consulting periodicals. Activities will be organized around this reception area, and will be able to operate outside the library’s opening hours:
-The cyber jazz café is located in front of the Place Bernard Lhez, and could open onto it. It’s a multipurpose space for reading, working and relaxing, as well as a philosophical café and meeting place. Chairs and tables are proposed for use both outdoors on the Place Bernard Lhez and indoors. A floating wood-panel ceiling sets the mood: indeed. The choice of materials wood, caramel leather-reinforces the warm, welcoming atmosphere of the place, while preserving the heritage character of the stone walls.
-The toy library, located in the existing building facing Rue du Palais, offers a large space ideal for group activities. It is enhanced by a glazed office overlooking the play area and a storage area.
-The activity room is at the far end of the plot. The activity room is directly connected to the reception area. These can be shared for special events (approx. 200m²) via a set of fully removable doors. The activity room can be used for all kinds of events, including exhibitions, dance, conferences and concerts. This space is naturally lit by a skylight at the southern tip of the plot, helping to create an inviting effect from the entrance hall. Acoustic treatment is provided by a combination of wood and fabric panels to ensure satisfactory scenographic conditions.
Each of these areas can function independently. To meet this requirement, the reception desk has been designed as a special piece of furniture that can be closed off and closed when the media library is not in use. Finally, public toilets, storage areas and dressing rooms complete the various programs.
▼底层空间,ground floor space


二层|1st floor
通过入口大厅的宏伟楼梯可达二层,服务于文化中心的三个区域:
青年区 位于俯瞰Place B Lhez的现有大房间内,通过低矮家具区分子空间,同时保持房间的历史特征。娱乐区开向中庭,配有工作人员办公室;儿童和成人洗手间直接与中庭相连。
多媒体区 改为青年活动室,含多媒体角,可供小组进行艺术、数字实践等活动。
自习室 位于俯瞰Palais街的房间内,安静、宁和,分为学习区和培训区。
此外,各类储物、分拣和消毒区也布置在此层,承载要求最高的部分位于新建区域。通过中庭可乘电梯到达,并有通道连接。
Accessible via a monumental staircase from the entrance hall on the ground floor, it serves three areas of the cultural center:
-The youth area is housed in a large room in the existing building overlooking Place B Lhez. This space is fitted with low furniture to distinguish the various sub-spaces, without altering the heritage aspect of the room. It is enhanced by an entertainment area opening onto the atrium and a staff office overlooking the youth areas. A washroom for children and adults is directly linked to the atrium.
-The multimedia area in the competition has been replaced by an activity room for young people, including a multimedia corner. This space can be used by small groups for a variety of activities (plastic arts, multimedia practice, ….).
-Finally, the study room is located in the last room overlooking the palace street. This calm, serene space is ideal for its purpose. It is divided into 2 areas, one for study with appropriate furniture and the other for training.
Finally, this level is completed by the various storage, sorting and decontamination areas. The most demanding parts in terms of overloads are located in the new part. This level is of course accessible by elevator from the atrium and served by a passageway.
▼二层走廊,hallway of the first floor


三层|2nd level
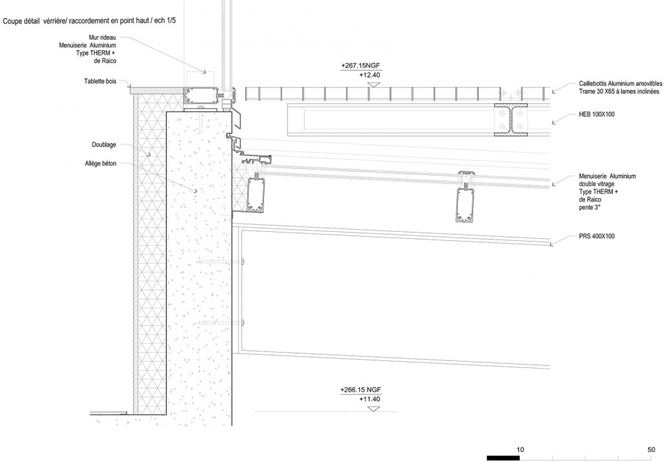
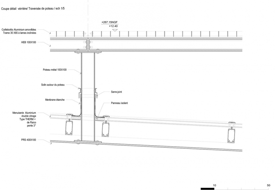
这一层完全用于成人区,是一个融合旧区与新区、多样氛围的空间,以中央中庭为核心。顶部采用玻璃与钢结构轻型屋顶采光,使光线均匀柔和。屋顶设计避免了直射阳光和空间过热。自竞赛以来,增加了数字化制作工作坊,便于学习多媒体工具。工作坊与成人区之间以玻璃隔音墙隔开。工作人员办公室可供员工办公并管理该图书馆区域。最后,卫生设施配套完善,无需下到一层。
This level is entirely dedicated to the adult area. It’s a space with multiple ambiances between the old and new parts, revolving around the central atrium. The space is lit from above by a light roof of glass and steel, which filters the light evenly and softly. The roof is designed to avoid direct sunlight and overheating in the spaces. A digital fabrication workshop has been added since the competition, to enable multimedia tools to be learned. It is separated from the adult area by a glass and soundproof partition. A staff office allows staff to work and monitor this area of the library. Lastly, sanitary facilities accompany this area, avoiding the need to descend to the ground floor.
▼中庭,atrium

▼顶部采用玻璃与钢结构轻型屋顶采光,
the roof is designed to avoid direct sunlight and overheating in the spaces


四层|3rd level
全新四层设有影音区,完全俯瞰城市及周边景观。空间通过惊喜与意外的布局,提供全新的城市视角。大型屋檐保护阅览区域,同时强化全景视觉效果。员工休息区完善了这一层的功能。面向Place B Lhez的户外露台丰富了各个空间的体验。新体量融入双重屋顶线,降低视觉冲击,并控制在允许的15米高度范围内。
▼顶层空间,top floor space

▼走廊,hallway


▼楼梯,staircase

屋顶|Roof
尽管屋顶是全新设计,但特别注意将其作为立面处理,使其与周围环境清晰且和谐地融合。没有技术性小亭突出,也不破坏整体设计的简洁性。
While the roof is entirely new, we took particular care to design it as a facade, so that it blends clearly and harmoniously into its surroundings. No technical aedicula protrude or detract from the simplicity of the proposed design.
▼光影,light and shadow

▼儿童阅读室,children‘s reading room

地下室|Basement
尽管受PPRI限制,我们建议在新建部分下方(地块中心)增设地下室。这一层完全封闭,因此在洪水情况下可保持防水。地下室容纳了大部分技术设备,包括供暖网络子站、主低压配电板、水处理、空气处理及制冷系统,实现设备集中管理并方便维护。这一布局避免占用上部建筑和屋顶空间。整栋建筑由两条管道供能,一条位于电梯后方,另一条位于现有鸽舍内,实现高效且不显眼的分配。
Despite PPRI constraints, we propose to create a basement level under the new part (in the center of the plot). This level is entirely enclosed and will therefore be watertight in the event of flooding. It houses most of the technical rooms, including the heating network substation, main LV board, water, air treatment and cooling systems, so as to centralize installations and facilitate maintenance. This arrangement avoids encumbering superstructure and roof spaces. Two ducts supply the entire building, one behind the elevator and the other in the existing dovecote. These allow for efficient, unobtrusive distribution.
▼底层平面图,ground floor plan

▼二层平面图,1st floor plan

▼三层平面图,2nd floor plan

▼四层平面图,3th floor plan

▼夹层平面图,mezzanine floor plan

▼屋顶平面图,roof floor plan

▼剖面图,section

▼细部详图,detailed construction drawings




Delivery: 2023
Client: Ville franche-de-Rouergue town council
Surface area: 1717 m²
Cost: 4 093 926 € HT
Architect : MARS Architectes
Heritage architect: Caroline Serra
Engineer Structure: Batiserf
Engineer Fluids / Electr.: BET Choulet
Economist: BMF
Acoustician: Studio DAP
Scenographer: DUCKS scéno














