宇宙之家,阿根廷 / Architect Cristián Nanzer
Casa Cosmos——这一名字由业主在看到它矗立在场地上时所命名——位于阿根廷科尔多瓦省卡皮亚·德尔·蒙特(Capilla del Monte)的普尼利亚山谷(Punilla Valley)山麓。基地毗邻一片受保护的自然保护区,该区域以茂密林地为特征,生长着红quebracho、黑algarrobo、chañar与aromito 等树种——这些物种均为该半干旱地区的本土植物。场地地形呈现明显的东西向坡度,并在南侧陡然下降,延伸至自然保护区。
Casa Cosmos—so named by its owner upon seeing it standing upright on the site—is located in the foothills of the Punilla Valley, in Capilla del Monte, Province of Córdoba, Argentina. The plot borders a protected natural reserve characterized by a dense woodland of red quebrachos, black algarrobos, chañares, and aromitos—species endemic to the semi-arid region. The topography presents a pronounced east–west slope and a steep southern descent toward the reserve.
▼项目概览,overview of the project


概念 Concept
住宅被构想为一种全景式装置:从场地中的一个中心点出发,其几何形态根据三处关键的景观视线展开。向南,是以Las Gemelas山丘为背景的自然保护区;向东北,是Uritorco山;向西,则是El Cajón水坝。
The house is conceived as a panoptic device: from a central point on the site, its geometry unfolds in response to three focal landscape vistas. To the south, the natural reserve with Las Gemelas hills as backdrop; to the northeast, Mount Uritorco; to the west, El Cajón Dam.
▼几何形态外观,geometric building exterior

这一决策建立了一种三角矩阵式的类型学结构,使各个房间围绕中央社交空间形成离心式的布局。围绕其布置的是与核心完全整合的厨房—餐厅空间,以及一间套房卧室和一间工作室。后两者通过厚重墙体加以组织,这些墙体既调节私密性,同时也提供热容量并增强环境稳定性。
This decision establishes a triangular matrix typology that organizes the centrifugal disposition of the rooms around a central social space. Arranged around it are the kitchen-dining area—fully integrated with the core—alongside an en-suite bedroom and a studio. The latter are articulated through heavy walls that regulate privacy while contributing thermal mass and environmental stability.
▼半厚重的扩张金属网滑动百叶,
semi-heavy expanded metal sliding shutters modulate luminosity






在住宅的核心位置,一个三角形天窗以漫射的方式过滤日光,使空间始终保持对昼夜循环的持续参照。随着时间推移,光线如同一枚计时器,丈量时间的流逝。空间体验唤起一种通透洞穴般的氛围:一个厚重的多面体岬体,在三个具有战略意义且同等重要的位置被掏空。这些具有厚度的空隙被实体化为深邃的廊道,为大型开口提供庇护与浓密的阴影。与之相配合的是三扇半厚重的扩张金属网滑动百叶,它们调节光照强度、控制气流速度,并增强安全性。
At the core of the house, a triangular skylight filters daylight in a diffuse manner, introducing a constant reference to the diurnal cycle. As it shifts, light operates as a chronometer, measuring the passage of time.The spatial experience evokes the atmosphere of a diaphanous cave: a heavy polyhedral promontory, hollowed out at three strategic and equivalent points. These voids, endowed with thickness, materialize as deep galleries that provide shelter and dense shade to the large openings. Complementing them, three semi-heavy expanded metal sliding shutters modulate luminosity, regulate airflow velocity, and enhance security.
▼室内概览,overview of the interior

▼中央社交空间,central social space




▼厨房—餐厅空间,kitchen-dining area

▼望向室外,look outside

▼三角形天窗,a triangular skylight

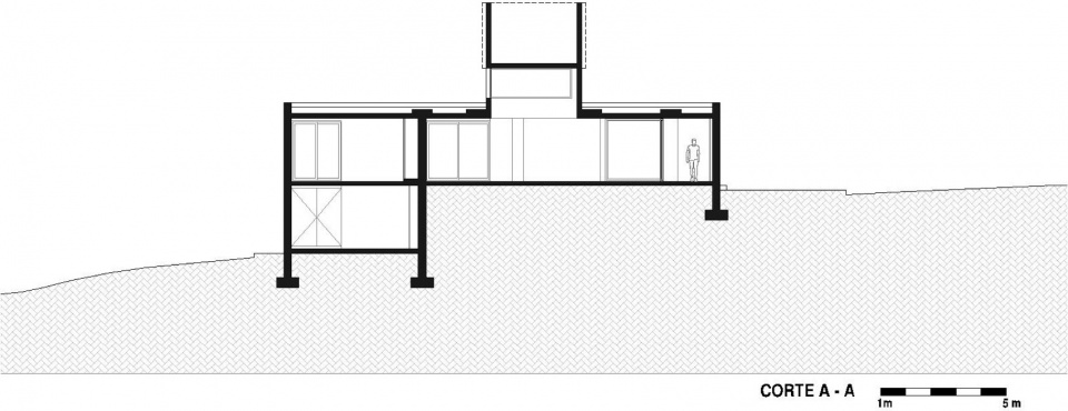
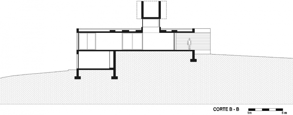
项目利用场地坡度,在主要空间中获得更高的空间高度。一个基座吸收了原有地形的高差,并为主层建立新的标高基准。其内部容纳了一套独立的居住单元、技术用房以及储藏空间。
The project capitalizes on the terrain’s slope to gain height in the principal spaces. A plinth absorbs the existing topographic gradient and establishes a new datum for the main floor. Within it are housed an autonomous residential unit, technical rooms, and storage areas.
▼地形高差,terrain’s slope



材料性 Materiality
基座由40厘米厚的夯石墙体构成,能够挡土并稳固新的地面标高。在其之上,主层采用木板模板浇筑的清水混凝土墙体;外部围护结构的墙体体系中整合了保温层,从而强化建筑的热湿性能。
The plinth is resolved through 40 cm thick rammed stone walls, capable of retaining the earth and consolidating the new ground level. Above it, the main floor is constructed with board-formed exposed concrete walls; thermal insulation is integrated within the wall assembly of the exterior enclosures, reinforcing the building’s hygrothermal performance.
▼清水混凝土墙体,concrete walls


▼材料与光影,materials and light and shadow

建筑的表达直接来源于其外露的材料性,使建造过程与地方性技术得以清晰呈现。周围景观的干旱气质在外墙中得到延续,并在室内空间的克制与简朴气质中形成呼应。在这一纬度,光是无处不在的材料。其编排与色彩变化记录着一天中的时刻与一年的周期。住宅拥抱这一条件,并将自身呈现为一种用于“观看”时间的原始器物——一种通过其与环境实现共鸣的装置。
The architectural expression derives directly from its exposed materiality, rendering construction processes and local techniques explicit. The aridity of the surrounding landscape finds continuity in the exterior walls and an echo in the ascetic character of the interior spaces. In these latitudes, light is the omnipresent material. Its choreography and chromatic variations register the hours and the cycles of the year. The house embraces this condition and offers itself to its inhabitants as a primitive artifact for “seeing” time—a device through which to enact communion with its context.
▼轴测图, axonometric drawing


▼总平面, master plan

▼平面, floor plan


▼屋顶平面, roof plan

▼剖面, section



Covered area: 355.40 m²
Design: Architect Cristián Nanzer / www.cristiannanzer.ar
Technical Direction: Architect Cristián Nanzer / Architect Ricardo Tesoreiro
Collaborators: Architect Lourdes Cuadro / Architect Juan Dimuro
Structural Engineering: Engineer Edgar Morán
Construction: Architect Ricardo Tesoreiro
Builder: Juan Pacheco
Electrical Installations: Gabriel Canelo
Execution: 2022–2024
Photography (completed work): Architect Gonzalo Viramonte
Author’s Statement
Cristián Nanzer














