波特艺术博物馆,澳大利亚 / Wood Marsh
波特艺术博物馆教育与项目中心是墨尔本大学帕克维尔校区原博物馆的重要扩建项目,延伸至建于1930年代、现已列入遗产名录的物理学院附属楼。其凹面镜面抛光不锈钢入口门廊从原建筑立面延伸而出,既连接校园又面向通往市中心的主干道,彰显博物馆的存在感,打造出多层面的公共界面。
The Potter Museum of Art, Education and Programs Centre is a significant expansion of the original museum at the University of Melbourne’s Parkville campus, extending into the heritage-listed 1930s Physics Annex. Connecting with both the campus and a major road leading out of the city centre, the concave, mirrored polished stainless-steel portal extends from the original façade, marking the museum’s presence and creating a multi-faceted public interface.
▼项目概览,Overview of the project

▼凹面镜面抛光不锈钢入口门廊,Mirrored polished stainless-steel portal


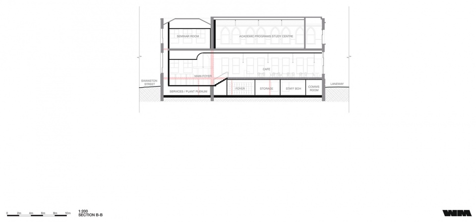
项目涵盖包括地下室在内的四层空间,与荣获维多利亚建筑奖章的画廊无缝衔接。它在优化画廊、教学和接待空间的同时,将博物馆主入口重新规划至马森路,强化了其在校园内的公共形象与文化存在感。
Spanning four levels, including a basement, the project connects seamlessly with the Victorian Architecture Medal-winning gallery. It enhances gallery, teaching, and hospitality spaces while reorienting the museum’s main entry to Masson Road, strengthening its civic identity and cultural presence on campus.
▼强化公共形象与文化存在感,Strengthening civic identity and cultural presence

▼入口细部,Entrance details


通过与大学、博物馆及澳大利亚大学艺术博物馆的紧密合作,该项目以统一的愿景协调了多元目标。遗产建筑事务所洛弗尔·陈负责监督原始构件的修复工作,依据详细勘测确保历史准确性。同时,精心集成了包括热工升级和”AA”级环境控制在内的当代系统,以支持艺术品保护。
Close collaboration with the University, the Museum, and University Art Museums Australia ensured alignment of diverse goals through a unified vision. Heritage architects Lovell Chen oversaw the restoration of original elements, guided by detailed surveys to maintain historical accuracy. Contemporary systems—including thermal upgrades and ‘AA’ environmental controls—were carefully integrated to support artwork conservation.
▼室内概览,Interior overview


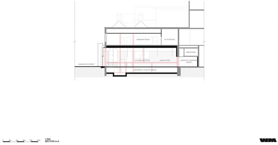
项目的复杂性在于需要将原有的波特艺术博物馆(1998年)与前细菌学大楼(1900年代)及物理学院附属楼(1930年代)有机整合。一个关键挑战是协调博物馆与物理学院附属楼之间不同的楼层标高,最终通过周到的、符合残疾人通道标准的设计得以解决。其结果打造出一个灵活、无障碍且面向未来的文化设施,支持教育与公众参与。
The complexity of the project included cohesively integrating the existing Potter Museum of Art (1998), with the former Bacteriology building (1900s) and the Physics Annex (1930s). A key challenge was reconciling the different floor levels between the Museum and Physics Annex, addressed through thoughtful, DDA-compliant design. The result is a flexible, accessible, and future-focused cultural facility supporting education and engagement.
▼灵活、无障碍的文化设施,Flexible, accessible cultural facility


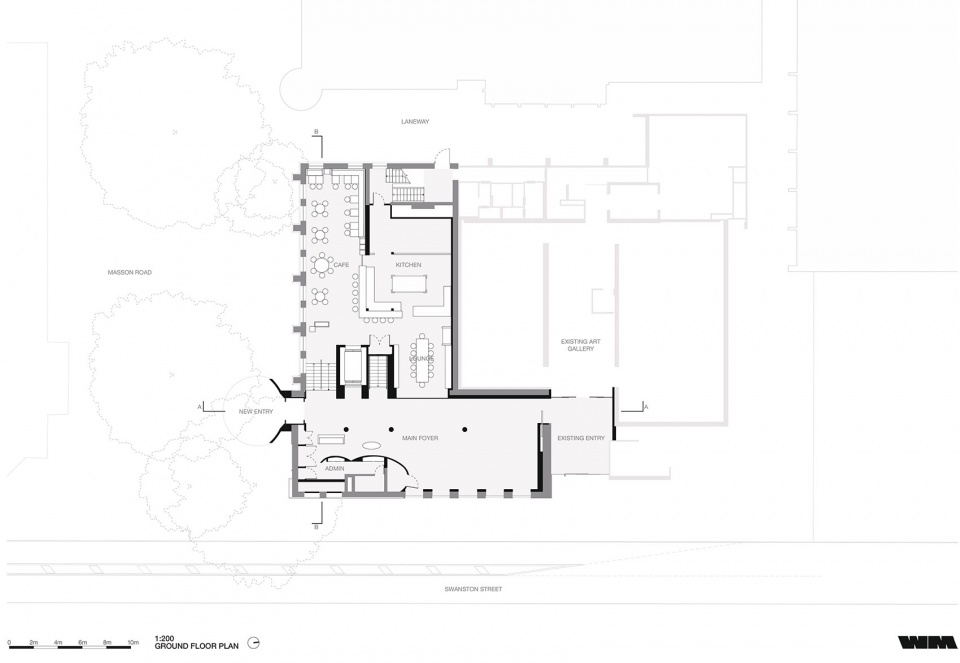
入口门廊通向一个拱顶双层高门厅,内部单色黑木墙引导游客穿过门厅和餐厅(波特 residence),前往既有的画廊空间。
The portal leads into a vaulted, double-height foyer, where a monochromatic black timber wall guides visitors through the foyer and restaurant (Residence at the Potter) to the existing gallery spaces.
▼入口门廊,The portal


▼接待处,Reception

▼细部,Details


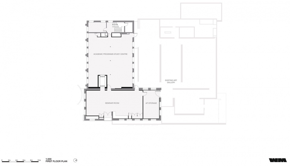
博物馆在二层设有一系列专用与混合用途的教学空间,用于支持大学艺术收藏及年度展览项目。作为一个集艺术、社交活动和终身学习于一体的目的地,它结合了混合教学与展示空间、气候控制系统及集成照明系统,确保艺术品保护与展示的最佳条件。
The museum provides a range of dedicated and hybrid teaching spaces on level 1, supporting the University Art Collection and the annual exhibition program. Designed as a destination for art, social activity, and lifelong learning, it combines hybrid teaching and display spaces climate control and an integrated lighting system to ensure optimal conditions for both conservation and presentation.
▼教学空间,Teaching space


▼公共空间,Public space


▼寄存区,Locker

新扩建部分还容纳了教育服务设施、研讨室、教学与画廊空间、衣帽间、咖啡馆、公共活动区域及配套设施,为展览和学习活动提供了一个灵活的环境。
The new extension also accommodates education services, seminar rooms, teaching and gallery spaces, cloak rooms, a café, public programs areas, and utility support, providing a flexible environment for exhibitions and learning activities.
▼首层平面图,Master plan

▼二层平面图,First floor plan

▼地下平面图,Basement plan

▼立面图,Elevation



▼剖面图,Section


Project: Potter Museum of Art
Location: Parkville
Year: 2025
Photographer(s): Fergus Floyd
Sector(s): Public, Education














