广东砖宅,河源市埔前镇 / 南大建筑 物物建筑工作室
乡村建设活动多为自发行为,呈现出多样的状态。在这种混沌中,我们采取的策略不是求异凸显自身,而是希望能够温润的身处其中。
Rural construction is mostly spontaneous, giving rise to a rich diversity of built forms. Within this organic complexity, our strategy is not to assert ourselves through contrast, but to inhabit the context with quiet modesty.
▼砖宅与周边房子采用相似的形体,The Brick House shares a similar form with its neighboring dwellings

▼总平面图,Master plan

背景Background
“希望这个房子能让孩子们记得故乡在哪里。”这是业主张姐在与我们交谈中提到的朴素愿望。业主一家年少时就移居广州,鲜少回乡。此次对祖屋的翻建希望能够提高居住的舒适性,为家人回乡团聚提供更好的条件,也期盼通过祖屋这一物理空间让下一代对故乡的记忆具体化。考虑祖屋不是日常居所,业主希望是低维护和造价可控。
“We hope this house will help the children remember where their hometown is.” This heartfelt wish shared by our client Ms. Zhang. Having left their hometown for Guangzhou at a young age, her family rarely returns. This renovation of their ancestral home aims to improve living comfort and create better conditions for family reunions—offering the next generation a tangible connection to their roots. Since the house is not for daily use, the design also prioritizes low maintenance and cost control.
▼左图:原有老宅由五间正房和一侧的厨房构成L型排布,正立面有通气窗;右图:中间堂屋——通高、顶部采光、通风窗,Left image: The original house was arranged in an L-shape, consisting of five main rooms and a kitchen wing, with ventilation windows on the front facade;Right image: The central main hall—double-height space, with top lighting and ventilation windows

材料Material
项目的设计从材料的选择开始,第一次来现场就被村里老屋清晰的建造关系吸引。村里的老房子,建于物质匮乏的年代,砖只用在墙转角、墙压顶、门窗框四周这种需要相对平直的位置,墙的其它部位则填充当地河里掏的大卵石、山上开采的炮石或就地制作的土坯砖。朴素的建造呈现,巧妙且经济的使用不同材料的物理特性。
The design began with materials. On our first visit to the village, we were struck by the clarity of construction in the old houses. Built in an era of scarcity, they used bricks only where straightness was essential—at corners, wall copings, and around door and window frames. The rest of the walls were filled with whatever was at hand: river cobbles, quarry stones, or sun-dried adobe bricks. This was a architecture of frugality, yet it revealed a quiet intelligence—each material placed according to its nature, performing exactly where it was needed.
▼村里的老房,砖只用在墙转角、墙压顶、门窗框四周需要相对平直的位置,In the old village houses, bricks were used only where straightness and precision were required—such as at wall corners, wall copings, and around door and window frames

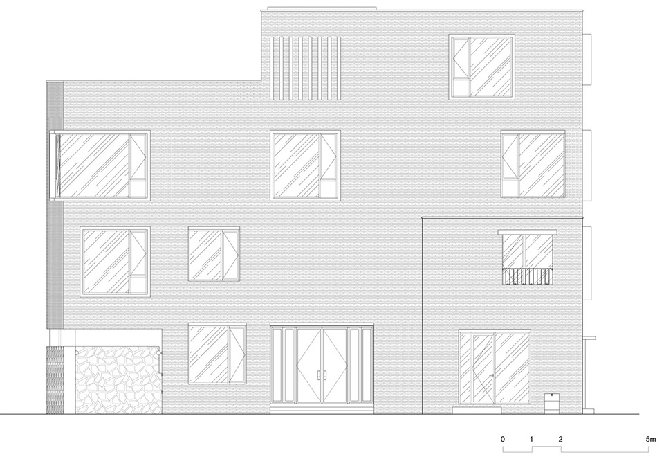
红砖和钢筋混凝土是当下村里自建房使用最广泛也是相对经济的材料。我们延续时下材料的使用,但希望呈现传统朴素建造所带来的美感和建造的可读性。建筑采用和相邻住宅一样的简单形体,但通过建造材料的选择和对窗户洞口比例的控制来呈现自己的质感和气质。
Red brick and reinforced concrete are the most common and economical materials for village houses today. We continue this local building practice, but seek to evoke the beauty and tectonic legibility found in traditional vernacular construction. The building adopts a simple form akin to its neighbors, yet asserts its own texture and character through material selection and the proportioning of window openings.
▼村子南面视角,相似的体量关系,A view from the south of the village, showing a similar massing relationship

▼通过材质和洞口比例呈现差异,
The difference is expressed through materiality and the proportions of the openings

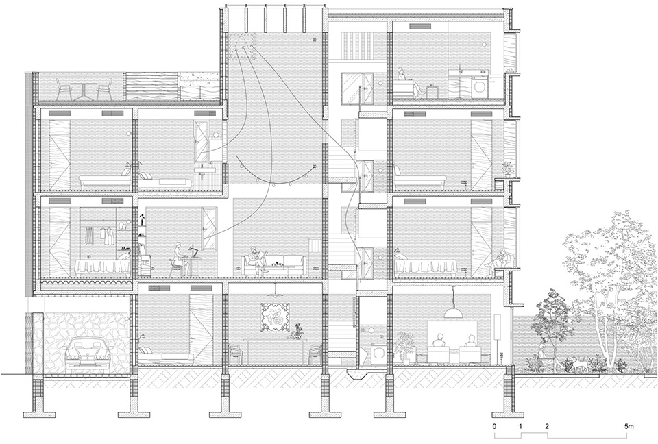
建筑采用双层中空外墙来增强建筑的热工性能,对广东地区直射光的隔热尤其有效。也因为双层中空外墙的采用,使得建筑内外呈现两种不同的面貌。建筑外是一个融入当地的、朴素的、嵌着混凝土窗套的红砖房子,建筑内清晰的呈现钢筋混凝土框架和围护砖墙。框架与围护在做一个有关图底关系的游戏,在外部隐藏在内部呈现。通过建造逻辑的展现来营造空间的氛围和气质,建造结果既是空间。
The double-skin cavity wall enhances thermal performance—essential for insulating against direct sunlight in Guangdong. This construction strategy also gives the building two distinct faces: externally, a modest red-brick volume with concrete window frames, quietly belonging to the village; internally, the reinforced concrete frame and infill brick walls are revealed. Structure and enclosure engage in a play of figure and ground—concealed outside, legible within. Through tectonic expression, construction becomes space.
▼祠堂与砖宅,乡村自发多样的建筑面貌,The Ancestral Hall and the Brick House: a glimpse into the diverse and spontaneous architectural character of the village

▼从祠堂边门望向砖宅,
View from the Ancestral Hall’s side door toward the Brick House

▼砖宅与邻居的院墙材质的一致性,The Brick House shares the same material language as its neighbor’s courtyard wall

空间组织Spatial Organization
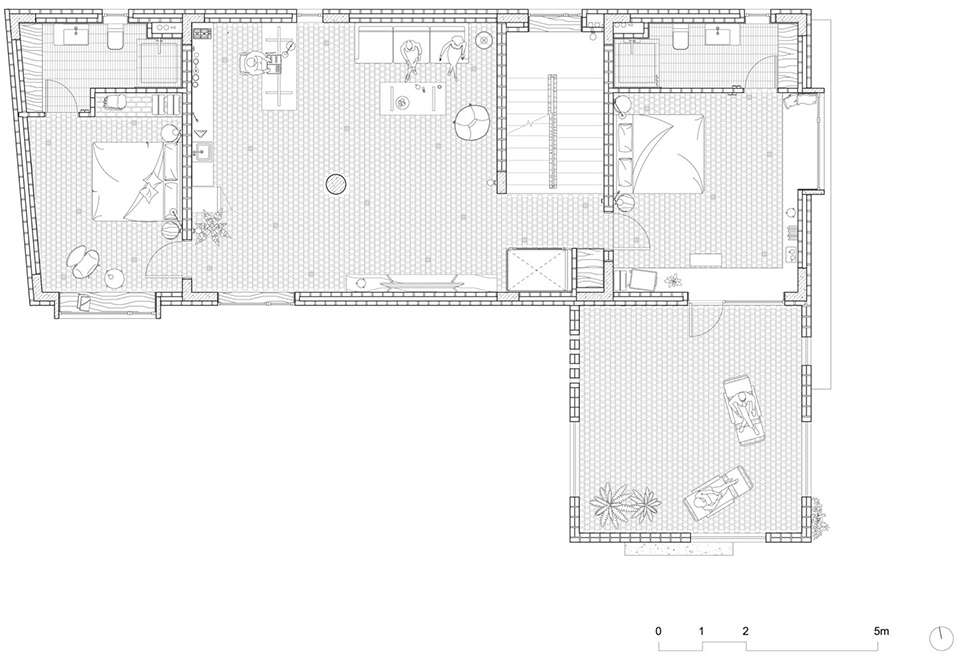
考虑大家庭团聚时都能安排得下,业主希望能有六个带独立卫生间的卧室。根据当地法令,房子沿用了原有祖宅的平面轮廓,同时遵循农村风水和习俗,入户大门、堂屋、厨房位置也与祖宅相同。在乡村,堂屋除了举办仪式也是日常对外邻里闲聊的场所,因此将老人房布置在堂屋一侧,让在此长期居住的老人能够多与邻里交流,也能瞥见路过的乡邻,道上一句话,这对老人来说也是多了些安全的关照。
The design accommodates six en-suite bedrooms for family gatherings. Following local regulations, the plan adheres to the original footprint, with the main entrance, central hall, and kitchen retaining their traditional positions—respecting feng shui and rural customs. The elderly parents’ room is placed adjacent to the hall, allowing them to engage with neighbors and passersby, fostering a sense of connection and security.
▼道路狭窄,考虑剐蹭和耐久性的问题,沿路院墙采用石砌而非砖砌,
Given the narrow road, the courtyard wall along it is built in stone rather than brick
—addressing concerns about scraping and durability

▼前院,红砖墙体和铺地围合成一个场域,
The front courtyard: a spatial field framed by red brick walls and paving

▼整体的红砖墙上嵌套着混凝土飘窗和过梁。Concrete bay windows and lintels set into the monolithic red brick walls

相对亲近的朋友则可以再往里走,这是一个由厨房、餐厅和客厅组成的生活和接待空间,空间向相对私密的后院敞开,也将生活向室外延展。后院保留着上一辈种植的荔枝和黄皮,部分爬有植物的院墙也留了下来。
For closer friends, the sequence extends further inward, arriving at a living and gathering space composed of kitchen, dining, and living areas. This interior opens onto the more private rear courtyard, extending domestic life into the outdoors. Here, lychee and wampee trees planted by the previous generation remain, along with a section of the old courtyard wall.
▼圆柱顶起大梁,室内向后院敞开,Round columns carry the main beams, with the interior space opening fully to the rear courtyard

▼餐厅、厨房三面有窗,向后院、边院、前院打开,The kitchen and dining area open to the rear, side, and front courtyards

▼梁与圆柱的搁置关系,The beam seats atop the cylindrical column

▼厨房,固定家具与结构共同围合窗户洞口,Kitchen: window openings framed by built-in cabinetry and structure

▼院子作为客餐厅的延续,Courtyard as extension of the living and dining areas

▼从后院看向客餐厅,View from the rear courtyard into the living and dining area

另一个公共空间是位于二楼的家庭室,相对于一楼的客厅,家庭室内向和私密,四周包裹,向天空敞开,空间形态上希望去回应老宅堂屋——通高、顶部采光、通风窗,同时与客厅形成了体验上的差异。构成了由堂屋-客厅-家庭室逐渐私密的空间序列。
On the second floor, the family room offers a contrasting spatial experience to the living room below—introverted and enclosed, yet open to the sky. Its double height and top lighting echo the central hall of the old house. Together, the three spaces—central hall, living room, and family room—form a sequence that progressively transitions from public to private.
▼内向的家庭室,由一层高的书房和通高的沙发区构成,The family room is comprising a single-height study and a double-height lounge space

▼家庭室采用反梁结构,让体块的面可以连续,楼板像个物体搁置在柱子上,与一楼客餐厅的圆柱相呼应,圆柱构成了两个公共空间的物理标识,The family room uses inverted beams to maintain continuous surfaces. The floor slab rests on columns like an object placed on supports—a resonance with the cylindrical columns below. These columns unify the two communal spaces as a recurring tectonic motif

▼角落的柱子被隐藏,结构和墙体在做图底关系的游戏,同时构成结构的不稳定感,The corner column is hidden, setting structure and wall into a figure-ground play that evokes a sense of tectonic uncertainty

▼顶上的天窗让阳光可以撒到室内,Skylights above allow sunlight to filter into the interior

▼空间形态回应老宅堂屋——通高、顶部采光、通风窗,The space recalls the ancestral hall: double-height, top lighting, ventilation windows

▼三楼楼梯通风窗连通家庭室上空,加宽的走道可停留,A ventilation window on the third-floor stairwell visually connects to the family room. The widened corridor invites to linger

▼混凝土的结构、刷白的砖墙、打磨的红砖地面,清晰的呈现建造的关系,建造即空间,
Exposed concrete structure, whitewashed brick walls, and polished red brick floors reveal
the tectonic logic clearly.Construction becomes space.

当下的乡村住宅因为是基于原有宅基地的翻建,楼层变多了,楼间距因此紧张。在卧室安排上需要考虑和邻居窗户的视线关系,尽量利用不同住宅之间的空隙空间,回避视线交叉。卧室主要布置在东西两侧,东侧面向宅间院子的果树,东南侧透过缝宅间空隙望向远方,西南侧则向广阔的田野打开。
As rural rebuilds densify, bedroom placement negotiates privacy through orientation. Rooms are arranged on the east and west sides—east facing the fruit trees in the side courtyard, southeast capturing distant views through interstitial gaps, southwest opening onto the open fields.
▼向东面宅间果树和二楼露台打开的主卧室,The master bedroom opens eastward to the fruit trees in the side courtyard and the second-floor terrace

▼露台需要从卧室往上踏两步,这既是客餐厅顶部反梁导致的,但也好像更接近天空。露台和主卧同样的铺地材质,强调空间的延伸,Two steps ascend from the bedroom to the terrace—a consequence of the inverted beam structure below, yet also a gesture toward the sky

▼单一材质构成的露台形成包裹感,围墙能够屏蔽部分的视线,改善隐私情况,A unified material wraps the terrace, forming an enclosed feel. The wall filters sightlines for added privacy

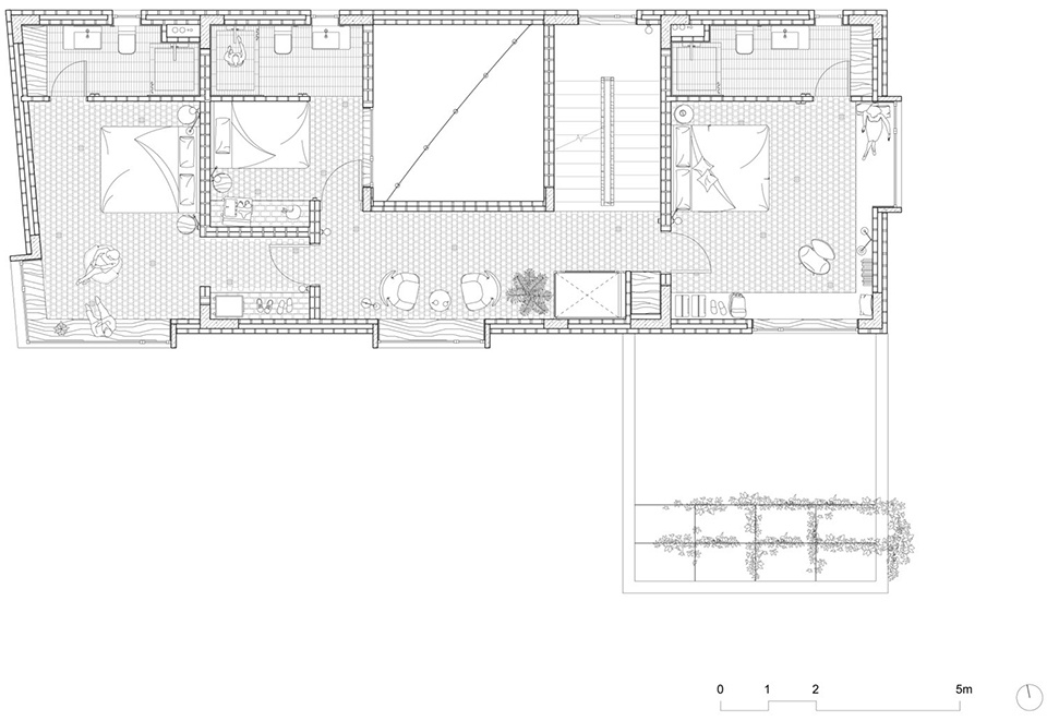
▼三楼卧室转角窗面向西侧农田。窗介于结构与墙体之间,形成材质和构件的转换,On the third floor, a corner window faces west toward the farmland. Positioned between structure and wall, it marks a transition in both material and tectonic elements

▼四楼多功能室可以望向乡镇中心,The fourth-floor multi-purpose room offers views toward the town center

建造Construction
砖,贴近人手掌的尺寸,大家都可以单手举起,从砖到墙到空间,它既是组成空间的材料单元,也是建造传统和工艺的见证者。建筑整体结构为钢筋混凝土框架,双层中空外墙内侧与框架齐平,呈现框架与墙体关系,建造关系可读;外侧则隐藏框架,呈现统一红砖肌理,形成内外解读的差异。
Brick is scaled to the hand—light enough to lift alone. From brick to wall to space, it is both the modular unit of construction and a witness to craft and tradition. The building is framed in reinforced concrete. The inner leaf of the double-skin cavity wall aligns with the frame, revealing the relationship between structure and infill. The outer leaf conceals the frame, presenting a unified brick surface—a deliberate divergence between how the building is read from inside and out.
▼为了尽可能的减少砍砖,在施工前我们做了全屋砖的排列,
To reduce brick cutting, a full brick layout was planned before construction began

▼施工过程,基于钢筋混泥土框架的砖墙砌筑,
Construction process: brick wall infill within the reinforced concrete frame

▼中空砖墙外侧包裹结构,内侧与结构并置,两侧墙体通过不锈钢网片拉结,并与结构主体通过植筋连接。同时利用中空位置预埋线管,Outer brick leaf conceals the frame; inner leaf aligns with it. The two leaves are tied with stainless steel mesh and connected to the structure with dowels. The cavity houses embedded conduit

▼东侧面向宅间院子,建筑呈现统一的红砖肌理,The east elevation, oriented toward the side courtyard, exhibits a consistent red-brick surface

▼室内砖墙与结构的并置,呈现清晰的建造关系,The juxtaposition of interior brick walls and structure reveals a clear tectonic relationship


砖作为项目使用的主要材料,还用于车库顶板、室内外铺地,户外家具、院墙等地方。希望通过单一材质的不同使用,形成具有包裹感的场域。
Brick is employed consistently across the project—garage roof, interior and exterior flooring, outdoor furniture, courtyard walls. The aim is to form a wrapped, unified field through a singular material language.
▼车库砖顶施工:铺砌红砖,钢筋绑扎,浇筑混凝土,Garage roof process: red bricks laid, reinforcement tied, concrete cast

▼车库砖顶与墙面形成面的连续,
The brick roof aligns with the wall, creating a seamless planar continuity

▼视觉的误会,石头墙顶着混凝土块,顶起砖体块,Visual play: stone wall bearing concrete blocks, concrete bearing brick

▼地砖施工:铺贴红砖,灌浆,水磨,嵌不锈钢砖、罩面,Brick floor process: laying, grouting, grinding, stainless steel inlay, sealing

▼厨房,室内地砖与院墙形成红砖质感的连续,弱化室内外边界,
Kitchen floor and courtyard wall—unified in red brick
—blur the boundary, extending the interior outward.

▼混凝土与红砖的交错并置,The interlocking juxtaposition of concrete and red brick

近来业主张姐分享了趣事,快递员来村里找不到地址,邻居说“就是那栋没有装修的嘞!”,以前“没有装修”是村里的普遍情况,现在却是我们独特的辨识度。
Ms. Zhang recently told us: a courier couldn’t find the house until a neighbor said, “It’s the one that looks unfinished.” What was once the village norm has become our building’s unique signature.
▼建造肌理呈现差异性,The expression of tectonic texture creates distinction

希望这个房子能够承载业主对祖屋的念想,也让下一代对故乡的记忆具体化。新屋也是下一代的祖屋。
May this house hold the family’s memories of the old home, and make the idea of “hometown” tangible for the next generation. This new house is their children’s ancestral home.
▼一层完整平面,Ground floor plan

▼一层平面,Ground floor plan

▼二层平面,First floor plan

▼三层平面,Second floor plan

▼四层平面,Third floor plan

▼长轴剖面,Longitudinal section

▼短轴剖面,Transverse section

▼南立面,South elevation

▼东立面,East elevation

▼西立面,West elevation

▼北立面,North elevation

Project name: Guangdong Brick House, Puqian Town, Heyuan, Guangdong
Project type: Dwelling
Client: Mr. Wu and Ms. Zhang.
Design firm: WUWU Atelier, Institute of Architecture Design and Planning Co., Ltd, Nanjing University
E-mail: wuwu@wuwuatelier.com
Lead architects: Pan Youjian
Design team: Pan Youjian, Li Chonghao; Structure: Liu Yang; Plumbing and Electrical: Xia Dongwei
Design period: July 2021 – August 2023.
Completion year: Structure and Interior, January 2024; Landscape and Planting: January 2025
Floor area: 440㎡
Construction: Chen Yunlin’s Team; Masonry Works: Jiang Daping, Master Huang; Brick Paving: Lai Renhui; Brick Wall Finishes: Liu Rongchun; Interior Woodwork: Zhong Xinhua.
Photography: Zhao Yilong
Special thanks: Zhu Ye














