安托山公共文化中心,深圳 / HHD深圳华汇设计
一次主动的“城市修复”实践A Proactive Practice of “Urban Repair”
城市的记忆如同地质层,在时间中沉积、叠加。项目位于深圳市福田区安托山片区,与安托山自然艺术公园等公共艺术设施串联。这里曾为城市扩张提供了基石,其开采后形成的阶梯状地貌,成为一道刻入城市肌理的工业“断层”。
Urban memory resembles geological strata—accumulated and layered over time. Located in the Antuoshan area of Futian District, Shenzhen, the project is integrated with public art facilities such as Antuoshan Natural Art Park. Once serving as a foundational site for the city’s expansion, the area’s post-extraction terraced landscape has evolved into an industrial “fault line” embedded within the urban fabric.
▼项目概览 ,Overview

▼项目整体鸟瞰图,Aerial view of the entire project

面对周边高密度社区与公共文化服务的空白,设计旨在探索一种回应高密度用地的“城市修复”实践策略,将原先被割裂的城市肌理与公共文化生活进行修复链接,重新激活这片土地的潜能。我们希望通过在这处用地极度有限的“断层”上植入一个能缝合社群、激活区域的精神性场所,使之不仅能填补区域大型文化设施的缺失,更能构筑一个文化与生态交融的区级垂直文化聚落,成为持续产生公共能量的艺术山林。
▼实体模型图,Physical Model

Confronting the juxtaposition of high-density residential fabric and a deficit in public cultural amenities, the design proposes an urban repair strategy tailored to intensive land use. It seeks to re-stitch the fragmented urban grain with public cultural life, thereby reactivating the latent potential of the site. Inserted within this spatially constrained “fault line,” the project envisions a catalytic civic anchor—one that reconnects communities and revitalizes the district. Beyond addressing the absence of large-scale cultural infrastructure, it establishes a district-level vertical cultural cluster where culture and ecology are interwoven, forming an “artistic woodland” that continuously generates public vitality.
▼项目概览 ,Overview

艺术山林:轻与重的自然叙事Artistic Woodland: A Dialogue of Lightness and Solidity
设计的叙事始于“艺术山林”这一核心概念,通过对开采断崖的坚实层理感与垂直切削的力量感的抽象转译,呼应片区所期待的文化开放与未来意象,将建筑体量转化为对自然地貌的物理重构。裙房如“山”,以厚重层叠的姿态锚固历史;塔楼似“林”,以轻盈挺拔的形体指向未来。这场“轻”与“重”的对话,既是形式与理念的二元起点,也构筑出一幅建筑与自然相互交融的精神图景。
▼概念草图,Concept Sketch

▼生成概念图解,Concept Diagram Generation

The design narrative originates from the concept of the “artistic woodland.” Through an abstract translation of the quarry’s stratified mass and the tectonic force of vertical incision, the architecture resonates with the site’s aspirations for cultural openness and a forward-looking identity. The built form becomes a physical reinterpretation of the terrain: the podium reads as a “mountain,” grounded and layered, anchoring memory and history; the tower rises as a “forest,” slender and lightweight, projecting toward the future. This dialogue between “lightness” and “solidity” operates as both a formal and conceptual duality, constructing a spatial and symbolic synthesis where architecture and nature are deeply intertwined.
▼艺术与生态交融的立体文化聚落 ,
A vertical cultural cluster where art and ecology are seamlessly interwoven

▼艺术绿洲,An Artistic Oasis

裙房以横向延展、折面交错的体量,塑造出如山体基座般的厚重姿态。银灰色穿孔铝板表皮,以不同的肌理拼贴回应了山体开采断崖的层理感与切削的力量感,锚固了建筑的历史维度,凸显出作为文化容器的独特气质。
The podium extends horizontally with faceted, interlocking volumes, forming a tectonic base reminiscent of a mountainous plinth. Its silver-grey perforated aluminum skin, articulated through varied textures, abstracts the stratification and incision of the quarried cliff, anchoring the building in a temporal narrative while expressing its identity as a cultural vessel.
▼山体基座般的裙房,Mountain-like Podium Base



塔楼则通过强化竖向线条与通透的玻璃幕墙,呈现如林木般向上生长的轻盈姿态。它仿佛从“山体”中自然生长而出,不仅象征着面向未来的开放姿态,更在视觉上强化了建筑向天空延伸的动势,与周边自然绿意,天空与城市肌理相互映照。
▼实体模型图,Physical Model

In contrast, the tower emphasizes verticality through slender proportions and a transparent glass curtain wall, evoking the upward growth of a forest. Emerging seamlessly from the “mountain,” it embodies an open, future-oriented gesture, visually reinforcing an rhythmic ascent toward the sky. This vertical expression engages in a reciprocal dialogue with the surrounding greenery, sky, and urban fabric.
▼“林”:轻盈的生长与开放,“Forest”: Lightness in Growth and Openness

“山”与“林”的共生,在都市高密环境中完成了一次空间重塑,营造出一处可步入、可感知的“艺术山林”,让人与自然、历史与未来在此相遇、对话。
The symbiosis of “mountain” and “forest” reconfigures spatial perception within a high-density context, creating an inhabitable and perceptible “artistic woodland” where nature and architecture, history and future, converge in dialogue.
▼轻与重的对话,A Dialogue Between Light and Heavy


一场从地面到天空的公共艺术漫游A Vertical Promenade of Public Art: From Ground to Sky
我们认为,当代大型文化建筑的核心价值,在于其激发城市公共生活的能力。因此,设计打破了传统场馆的封闭范式,构建了一个多层次、全天候、可自由探索的立体公共空间系统,引导市民完成一场从城市地面到空中绿洲的“艺术漫游”。
▼立体公共空间轴测图,3D Public Space Axonometric

We posit that the intrinsic value of contemporary large-scale cultural architecture lies in its capacity to catalyze public life. Accordingly, the design departs from the conventional inward-facing typology, establishing a multi-layered, all-weather, and freely accessible three-dimensional public realm. This spatial system orchestrates a continuous “art promenade” from the urban ground plane to an elevated oasis.
▼山林共生,Symbiosis of Mountain and Forest

▼从城市地面到空中绿洲的“艺术漫游”,Artistic Journey from City Ground to Elevated Oasis

▼建筑开放界面与城市友好共融,Building Interface in Harmonious Urban Integration

在地面与地下一层我们创造了南北贯穿的架空“灰空间”,为深圳的气候提供了遮阳避雨的休憩场所。同时,面向街道的开放界面打破了文化建筑的封闭,构建社区生活的核心舞台。这里没有围墙与闸机,市民可以自由穿行、小憩、观看街头表演,使文化建筑的边界彻底消融,成为社区客厅的自然延伸。
At ground level and Basement 1, a north–south permeable stilted “grey space” is introduced, mediating Shenzhen’s subtropical climate by providing shaded, rain-protected areas for rest and gathering. The open street interface dissolves institutional boundaries, transforming the building into an active civic stage. Without walls or gates, the public is invited to traverse, linger, and engage with spontaneous performances, allowing the cultural facility to extend organically into the life of the community.
▼向城市完全开放的架空层空间,City-Permeable Elevated Space



在二层及以上,我们塑造了一个贯通多层的通高公共大厅。这里超越了单一的交通功能,成为建筑内部的核心活力场与视觉焦点。
From Level 2 upwards, a vertically interconnected grand atrium is conceived as the building’s primary social condenser and visual core. Beyond circulation, it operates as a shared public forum, directly linking the concert hall, grand theatre, and black box theatre. During intermissions, audiences from different venues converge, interact, and inhabit a collective cultural atmosphere.
▼建筑内部的核心活力场,Internal Core Activity Hub

公共大厅直接衔接音乐厅、大剧院及黑匣子剧场,使不同场馆的观众在幕间休息时得以自然汇聚、交流,共享同一片充满艺术氛围的公共领域。交错、盘旋而上的楼梯不仅高效地串联起各层平台,其本身也成为观众驻足、观展、社交的场所。随着人的移动,空间景象持续变换,仿佛一场关于“攀登”与“发现”的静态演出。
The public atrium directly interfaces with the concert hall, grand theatre, and black box theatre, enabling audiences from different venues to naturally converge, interact, and share a unified, art-infused public realm during intermissions. Interlaced, spiraling staircases not only ensure efficient vertical connectivity across levels, but also function as occupiable platforms for pause, viewing, and social exchange. As users move through the space, spatial sequences continuously unfold—akin to a static performance centered on “ascent” and “discovery.”
▼通高公共大厅与楼梯,Atrium with Interconnected Staircases

▼通高公共大厅与楼梯,Atrium with Interconnected Staircases


这处“空中层”因而成为一个真正意义上的“盘旋的相遇”之所——既是路径,也是目的地,在垂直维度上持续激活着文化与社群的对话。
This elevated stratum thus becomes a true locus of “spiraling encounters”—simultaneously a path and a destination—sustaining a dialogue between culture and community along the vertical dimension.
▼交错的楼梯本身也成为观众驻足、观展、社交的场所,Interlaced Stairs as Social and Exhibition Spaces



屋顶层的空中花园,是整场“从地面到天空”公共漫游的最终抵达与升华。花园巧妙延续了建筑体量的转折形态,通过覆土造坡与地形塑造,将原本的建筑屋面转化为连绵起伏的草坡与台地,形成一系列尺度各异、开放而自由的空中绿洲。在这里,人们可以漫步、驻足、远眺,在自然绿意与城市天际之间,实现建筑、自然与人的和谐共融。
At the roof level, the sky garden marks the culmination and sublimation of the “ground-to-sky” public promenade. Extending the building’s folded massing, the design transforms the roofscape into an undulating terrain through green roof layering and topographic manipulation, generating a series of open and variably scaled aerial landscapes. Here, visitors can stroll, linger, and overlook the city, experiencing a seamless synthesis of architecture, nature, and urban skyline.
▼空中的城市绿洲,Skyward Urban Oasis

▼空中的城市绿洲,Skyward Urban Oasis

一条如艺术装置般蜿蜒跃动的橙色休闲路径串联起不同标高的景观节点与休憩平台。它不仅是链接不同标高场所的活力飘带,从城市视角中也成为安托山片区内一个充满活力和公众辨识度的视觉地标。
A vivid orange promenade—conceived as an inhabitable art installation—meanders dynamically across levels, linking landscape nodes and հանգ rest platforms at different elevations. Beyond functioning as a connective ribbon, it emerges as a highly legible visual landmark within the Antuoshan district, infusing the area with vibrancy and public identity.
▼城市视角下的“山顶花园”,“Rooftop Garden” from the City Perspective



于限制中破题——高密度下的垂直文化聚落Resolving Constraints: A Vertical Cultural Cluster under High Density
项目的核心挑战是高度紧张用地与高效率公共空间的博弈与整合。在约1公顷的用地内,需容纳超10万平方米的建筑体量。我们通过垂直维度的系统性整合,将大剧院、音乐厅、黑匣子剧场、图书馆、展览厅等功能立体叠合,形成高效复合的垂直文化聚落。
The project’s core challenge lies in negotiating and integrating extreme site constraints with the demand for highly efficient public space. Within a site of approximately one hectare, it accommodates a gross floor area exceeding 100,000 sqm. Through systematic vertical integration, programmatic elements—including a grand theatre, concert hall, black box theatres, library, and exhibition halls—are volumetrically stacked to form a compact, high-performance vertical cultural cluster.
▼立体叠合的功能分析图,Stacked Program Analysis Diagram

▼垂直聚落剖透示意图,Vertical Cluster Section Diagram

1000座剧院、500座音乐厅与4个灵活使用的黑匣子剧场不仅填补了区级文化设施的空缺,更能为本土实验戏剧、先锋音乐、小型发布会提供孵化土壤,构建一个持续生长的“立体文化生态系统”。
A 1,000-seat theatre, a 500-seat concert hall, and four flexible black box theatres not only address the absence of district-level cultural infrastructure, but also provide an incubative platform for experimental theatre, avant-garde music, and small-scale events, fostering a continuously evolving three-dimensional cultural ecosystem.
▼音乐厅内景,Concert Hall Interior

▼500座音乐厅排练现场,500-Seat Concert Hall Rehearsal Scene

▼1000座剧院内景,1,000-Seat Theatre Interior

▼黑匣子剧场演出现场,Black Box Theatre Performance Scene

除了宏大的观演空间,项目内还植入了可承载持续性文化艺术活动的展览馆与图书馆。这些空间并非附属,而是构成“立体文化生态系统”的公共节点。展览馆位于裙房六、七层,采用了开放式布局,展览区域局部通高两层,为大型装置艺术、综合媒介展览提供灵活性的容器。
Beyond the major performance venues, the project incorporates exhibition and library programs designed to support sustained cultural production. These are not auxiliary functions, but integral public nodes within the vertical cultural ecosystem. The exhibition halls, located on Levels 6 and 7 of the podium, adopt an open-plan layout with partial double-height volumes, offering a flexible container for large-scale installations and multimedia exhibitions.
▼展览厅内景,Exhibition Hall Interior

▼展览厅内景,Exhibition Hall Interior

图书馆位于建筑的八层,是一个相对静谧的知识绿洲。空间的核心是构筑了一处大台阶复合阅览区。台阶本身既是交通,也是可随意坐卧的阅读席,打破了传统图书馆固定座位的拘束感,鼓励一种更为轻松、自由的阅读与交流方式。
The library, positioned on Level 8, is conceived as a tranquil knowledge oasis. Its spatial core features a stepped, terraced reading landscape—where the steps themselves function simultaneously as circulation and informal seating. This dissolves the rigidity of conventional reading rooms, encouraging a more relaxed, fluid mode of reading and social interaction.
▼图书馆的台阶内景,Library Terraced Reading Area Interior


共生的篇章:融合与独立的九班幼儿园A Chapter of Symbiosis: The Nine-Class Kindergarten—Integration and Autonomy
作为整体文化集群的一部分,九班幼儿园的设计旨在实现 “融合与独立”的平衡。面对狭小用地与严格的日照规范,幼儿园与文化中心通过相互倾斜的屋面轮廓和相似的水平延展形态,维系城市界面的完整性与整体性。不仅塑造了和谐的整体天际线,也缓解了二者之间的压迫感,营造出流动、轻松的空间关系。
As an integral component of the overall cultural complex, the nine-class kindergarten seeks a calibrated balance between integration and autonomy. Constrained by a compact site and stringent daylighting regulations, the kindergarten and cultural center are unified through reciprocally inclined roof profiles and consistent horizontal massing, maintaining the coherence and continuity of the urban interface. This strategy not only shapes a harmonious skyline, but also mitigates spatial between the two volumes, fostering a fluid and relaxed spatial relationship.
▼九班幼儿园与文化中心的共生关系,Integration of the Nine-Class Kindergarten with the Cultural Center

在细节语言上,文化中心裙房以厚重的横向肌理锚固大地,幼儿园则采用轻盈的竖向银白色格栅作为核心概念。在满足安全规范的同时,提供了通透的视野与柔和的光影过滤,营造亲切的尺度感与有机的共生感。
At the level of architectural language, the podium of the cultural center is grounded by a tectonic expression of horizontal solidity, while the kindergarten adopts a lightweight system of vertical silver-white louvers as its defining motif. In addition to meeting safety requirements, the permeable façade ensures visual openness and filtered daylight, cultivating a child-friendly scale and an organic sense of coexistence.
▼幼儿园立面,Façade of the Kindergarten

材料系统研究Material System Research
在材料与建构层面,设计也延续了“艺术山林”的叙事逻辑。裙房作为“山”的载体,其表皮系统历经多轮研究,最终选择通过直面与折面的银灰色穿孔铝板的拼贴肌理,形成如地质层理般富有张力与深度的肌理。
At the level of materiality and construction, the design extends the narrative of the “artistic woodland.” As the embodiment of the “mountain,” the podium envelope underwent iterative studies, culminating in a collage of planar and folded silver-grey perforated aluminum panels. This layered articulation evokes the depth and strain of geological strata.
▼立面细部,Façade Detail

▼立面细部 ,Façade Detail

我们对穿孔板的图案排布与穿孔率进行了专项研究,经过多次打样与现场校对,平衡了实墙体的厚重感与开窗所需的采光功能。最终确定的30%穿孔率,在兼顾室内自然光线引入的同时,亦保持了剧场等实体功能空间外立面的整体性与雕塑感,让“山”的意象在细节处得以细腻呈现。
A dedicated study on perforation patterns and ratios was conducted, involving multiple mock-ups and on-site calibrations to reconcile the solidity of the envelope with daylighting requirements. The final of a 30% perforation ratio achieves a balance between natural light ingress and the integrity of the façades enclosing programmatically enclosed spaces such as theatres. This preserves a monolithic, sculptural expression, allowing the “mountain” concept to be articulated with precision at the level of detail.
▼穿孔板打样研究,Perforated Panel Testing & Research

片区“文化心脏”与未来“艺术绿洲”A Cultural Heart for the District, An Artistic Oasis for the Future
安托山公共文化中心,是一次以建筑为媒介的“城市修复”实践。它修复的不仅是物理空间的断层,更是公共生活的连续性。让建筑超越了功能容器的范畴,转化为一个能持续产生文化能量、连接人与人、过去与未来的文化心脏。当未来的市民漫步于其穿透的架空层,或驻足于屋顶花园远眺时,他们将能感知到,这座建筑如何将一段沉重的工业历史,承载并升华为一片轻盈的艺术绿洲。
The Antuoshan Public Cultural Center represents a practice of urban repair mediated through architecture. What it restores is not only the physical discontinuity of the site, but also the continuity of public life. The building transcends its role as a functional container, transforming into a cultural heart—one that continuously generates cultural energy and connects people, as well as past and future.
As future citizens traverse its permeable ground plane or pause within the rooftop garden overlooking the city, they will perceive how this architecture absorbs a weighty industrial past and elevates it into a light, immersive artistic oasis.
▼片区“文化心脏” ,A Cultural Heart for the District

▼总平面图,Site Plan

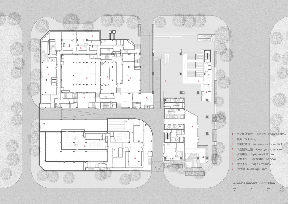
▼首层平面图,Ground Floor Plan

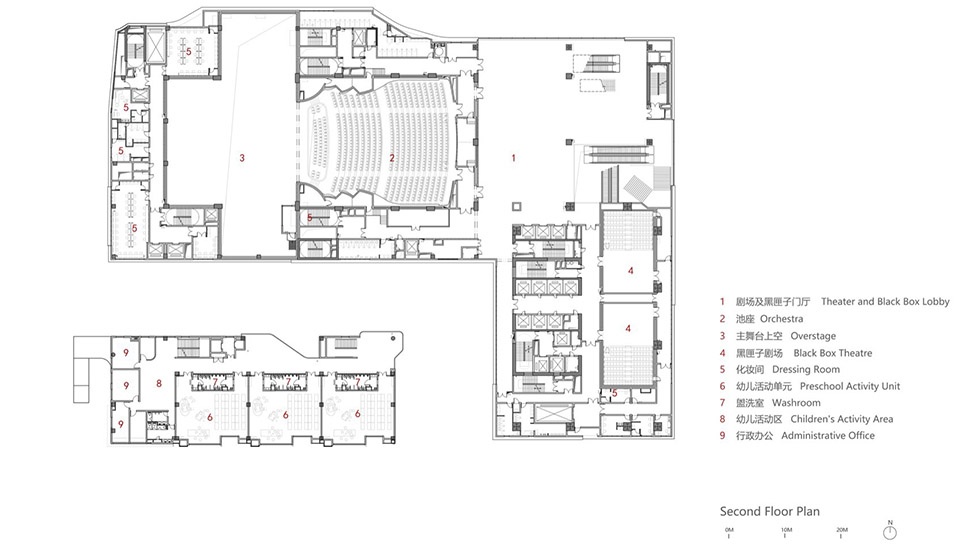
▼二层平面图,Second Floor Plan

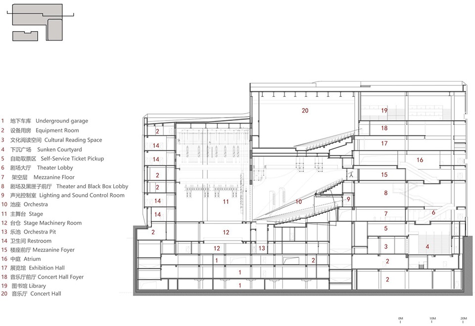
▼剖面图,Section


▼节点图,Construction Detail

项目信息表
Project Information
Project Name: Antuoshan Public Cultural Center
Location: Futian District, Shenzhen, Guangdong, China
Client: Futian District Public Culture and Sports Development Center, Shenzhen
Project Management: China Resources (Shenzhen) Co., Ltd.
Architectural Design: HHD Shenzhen Huahui Design
Chief Architect: Xiao Cheng
Concept Design Team: Yin Shibo, He Qifan, Mao Weiwei, Liu Jiali
Design Development & Delivery Team: Mao Weiwei, Liu Jiali, Mai Ziyun, Fu Yiling, Zhang Weili, Pang Shuping
Design Consortium:
Guangdong Architectural Design & Research Institute Co., Ltd.; Shenzhen Tianhua Architecture Design Co., Ltd.; Arup (Shenzhen Branch of Arup Engineering Consulting (Shanghai) Co., Ltd.) (in no particular order)Landscape Design: Shenzhen Hanbo Design Co., Ltd.
Interior Design: Shenzhen Horizon Interior Design Co., Ltd.
Lighting Consultant: HDA Handas Design Consulting (Shenzhen) Co., Ltd.
Signage Design: Shenzhen Sando Environmental Graphic Design Co., Ltd.
Theatre Consultant: Shenzhen Zhongyi Construction Group Co., Ltd.
Structural System:
Cultural Center: Frame–Core Tube Structure
Kindergarten: Reinforced Concrete Frame Structure
Materials: Aluminum panels, brushed stainless steel panels, glass, textured coatings
Site Area: 10,609 sqm
Gross Floor Area: 105,114 sqm
Design & Completion: 2019–2025
Photography: Right Angle Image, On-site Elephrame














