福冈一号大厦,日本 / KPF + 日建设计+ KAJIMA DESIGN
福冈市是日本九州地区最大的城市,也是日本通往亚洲的门户。自明治时代(1868年~1912年)以来,明治大道与渡边大道交叉处的天神十字路口便作为福冈・天神的交通要地,引领着这片区域繁荣发展。福冈市推进的“天神BIG BANG”就是以天神十字路口为核心推动再开发的举措。面向天神十字路口、作为地区地标深受喜爱的福冈大厦・天神CORE・天神VIVRE三栋大楼的同时重建,被定位为引领该地区整体城市更新的街区开发项目。
The Tenjin intersection, where Meiji-dori and Watanabe-dori converge, has been a key transportation hub driving the vitality of Tenjin, the central district of Fukuoka—Kyushu’s largest city and a gateway to Asia— since the Meiji era (1868–1912). Fukuoka City’s “Tenjin Big Bang” initiative promotes redevelopment centered on this intersection. The simultaneous reconstruction of three buildings facing the intersection — Fukuoka Building, Tenjin Core Building, and Tenjin Vivre — long beloved as local landmarks, is positioned as a block-level development project driving the renewal of the entire area.
▼建筑外观,Exterior view

设计理念Concept
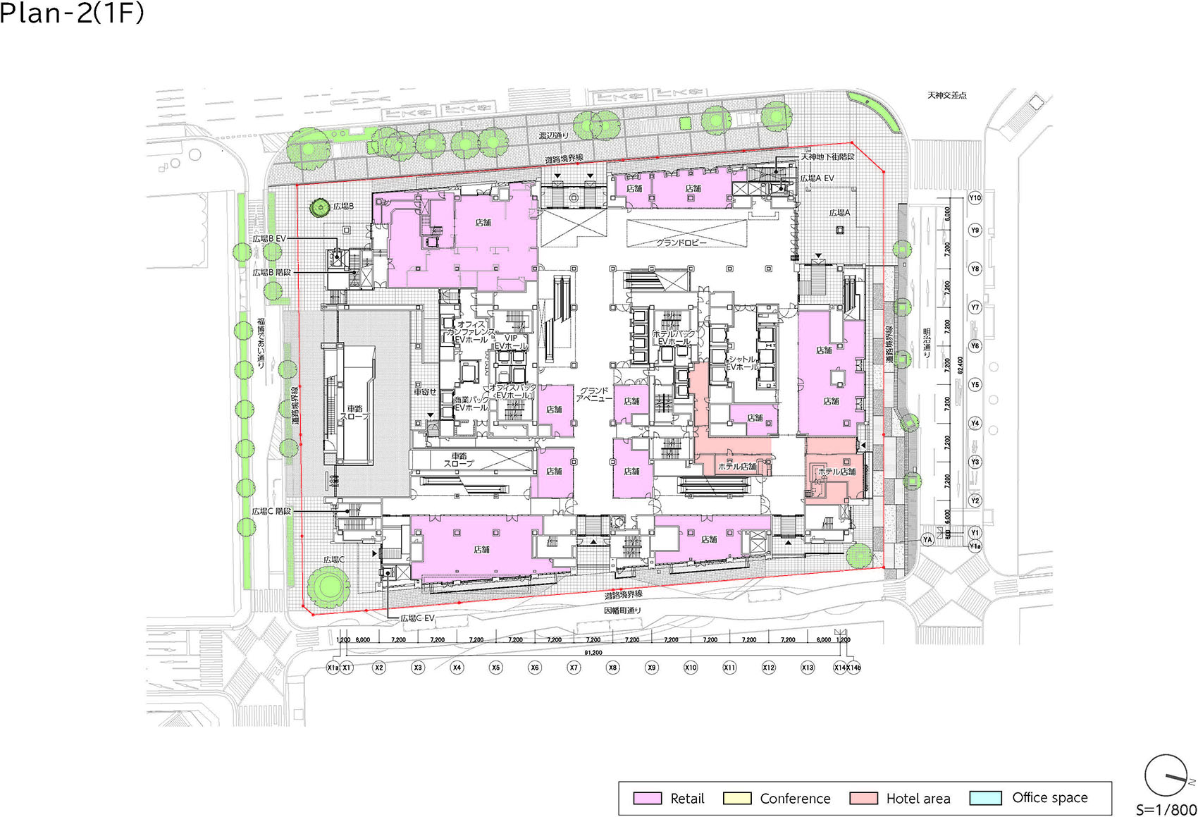
街区开发目标提出了“创造交汇点”这一概念,致力于在内部打造融合多元功能、供市民和来访者往来穿行的“城市公共空间”。通过在高密度开发中融入丰富的公共空间,使建筑成为城市的一部分,打造出向城市开放的建筑。具体规划包括:开放街区街角的广场、作为天神入口大厅的Grand Lobby、传承福冈大厦记忆的GRANDE AVENUE、向市民开放的食堂、能感受城市气息的酒店屋顶露台与中庭,并在商业层和办公层之间的中间楼层设置了连接创新基地、挑空2层的标志性空中大厅。空中大厅的设计初衷不仅仅是单纯的办公等候空间,更旨在打造一个任何人都可以利用的公共空间。
The block development adopted the concept of a “creative intersection,” with the aim of creating internal “shared urban spaces” where diverse functions blend together and citizens and visitors interact. By incorporating rich, shared spaces into the high-density development, the buildings became part of the city, opening up to it. Specifically, the plan included the following: an open plaza at the block corner, a Grand Lobby serving as the Tenjin entrance hall, a Grand Avenue that “inherits” the legacy of Fukuoka Building, a cafeteria open to the public, and a hotel rooftop terrace and courtyard offering a sense of the city’s atmosphere, and, between the commercial and office floors, a symbolic two-story atrium sky lobby that will connect to the innovation hub. The Sky Lobby is intended as more than an office waiting area: it is a public space accessible to anyone.
▼主入口大厅,Grand lobby

▼商业空间,Retail space

▼空中大厅,Sky lobby



规划设计 Plan
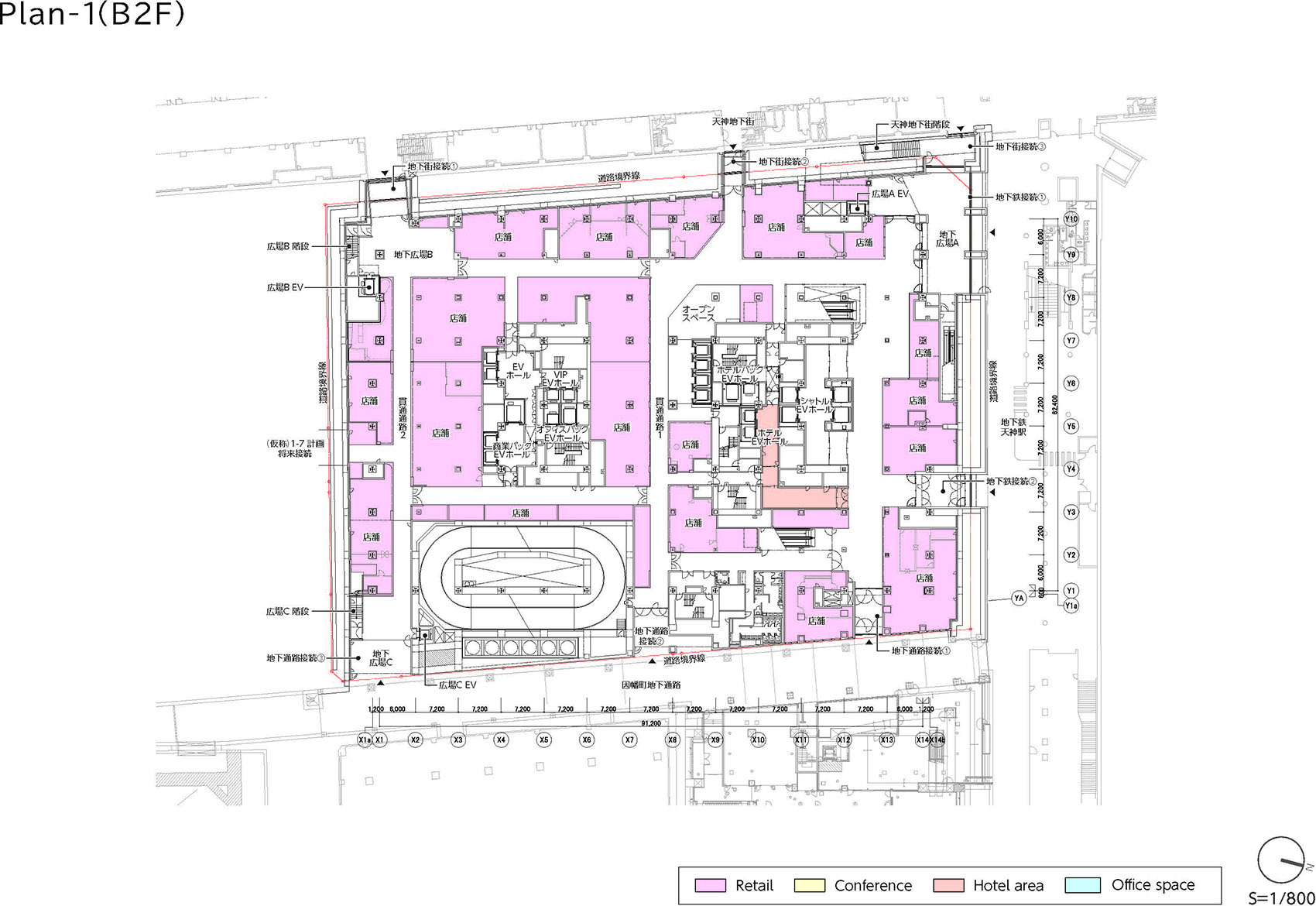
通过1层和地下2层与周边街区相连,形成人流无缝衔接的通行体系。在地下2层,北侧连接地铁天神站,西侧连接天神地下街,东侧连接因幡町大道地下通道,形成通过贯通通道将各个连接部位串联起来的动线体系。通过这些连接设计,提升了包括相邻街区在内的回游性,强化了天神地区的地下交通网。被道路四面环绕的1层,也通过面向各条道路设置多个入口,形成了可从街区穿行而过的布局。
The first floor and the second basement level are connected to the surrounding blocks, enabling seamless pedestrian flow. On the B2 level, connections are established to the Tenjin (subway) Station to the north, the Tenjin underground shopping arcade to the west, and the Inabacho-dori underground passage to the east. These connection points are linked by passageways, forming a comprehensive circulation plan. They include adjacent blocks, strengthening Tenjin’s underground network. The first floor, surrounded by roads on all sides, is designed with multiple entrances facing each road, allowing people to pass through the building as part of the urban circulation.
▼室内公共空间,Public interior


▼办公层入口,Office floors entrance

▼电梯厅,Elevator lobby

外装设计 Exterior design
外装以“城市屋顶”“城市网格”“城市绿洲”三大元素为核心展开设计。黑色网格状外装的设计灵感源自铁路轨道使用的铸铁。这个网格设计体现了“创造交汇点”的理念,在根据不同功能优化形状与尺寸的同时,整体呈现出协调统一的设计。建筑顶部通过缩进窗框面,为酒店客房打造出阳台,既使其成为能感受到城市气息的都市型酒店,又通过大屋顶造型的设计赋予屋顶独特的视觉特征。
The exterior design was developed around three core elements: “Urban Roof,” “Urban Grid,” and “Urban Oasis.” The black grid-like exterior draws inspiration from cast iron used in railroad tracks. This grid, designed to evoke the intersection of “creative crossroads,” optimizes shape and dimensions for each function while maintaining a unified overall aesthetic. The top portion features set-back window frames, creating balconies for the hotel rooms. This design yields an urban hotel where guests can feel the atmosphere of the city. The large roof shape also gives the rooftop area a distinctive character.
▼建筑外观近景,Exterior close view


▼主入口,Main entrance

可持续性 Sustainability
作为天神地区的标杆级写字楼,必须确保与之匹配的环境性能。办公楼层的外装采用网格式深凹槽双层幕墙,中间嵌入电动百叶以提升遮阳性能。另外,双层幕墙设计使建筑在雨天也能实现自然通风。
The project demanded environmental performance commensurate with a flagship office building in the Tenjin district. The office floor facades employ a deep-grooved double-skin curtain wall organized on a grid system. Electric blinds integrated into the intermediate cavity enhance solar shading performance while the double-skin design also enables natural ventilation even in rainy conditions.
▼建筑外观夜览,Exterior night view

▼建筑立面夜景,Building facade night view

艺术地标 “Art landmark”
落成后的ONE FUKUOKA BLDG.不仅拥有高端写字楼与精品酒店,还作为综合设施配备了各种多样化的公共空间供市民自由使用。大楼内外共陈列着126件艺术品,为城市增添了缤纷色彩。空中大厅和Grand Lobby等公共空间会举办各类活动,供市民交流使用。项目旨在以艺术品装点出“城市公共空间”,使其成为商业与文化交融的交流场所,从而打造出深受市民喜爱的天神新地标。
The completed ONE FUKUOKA BLDG. is a mixed-use complex featuring high-spec offices and a hotel that also provides diverse public spaces accessible to city residents. A total of 126 art pieces has been installed both inside and outside the building, adding color to the cityscape. Public spaces such as the Sky Lobby and the Grand Lobby host numerous events and serve as venues for community interaction. Through these art-enriched “shared urban spaces,” the project aims to continuously serve as an exchange space where business and culture intersect, becoming a new Tenjin landmark cherished by citizens for years to come.
▼建筑夜景概览,Building overview at night

▼建筑外观夜览近景,Exterior close view at night

▼室内公共空间夜景,Public interior night view

▼地下二层平面图,B2 floor plan

▼一层平面图,1F floor plan

▼六层平面图,6F floor plan

▼十四层平面图,14F floor plan

▼南北剖面图,North-south section

▼东西剖面图,East-west section

项目名称(中文): ONE FUKUOKA BLDG.(福冈一号大厦)
项目名称(英文): ONE FUKUOKA BLDG.
用途: 办公室、商铺、酒店、集会场所、停车场
所在地(都道府县、市): 日本福冈县福冈市
用地面积(m2): 8,606.16
建筑面积(m2): 146,191.75
层数: 地上19层、地下4层、阁楼1层
檐口高度/最高高度(m): 90.560m/96.340m
主体结构: 型钢混凝土结构/钢结构
竣工年月: 2024/12
Project name (Japanese): ワン・フクオカ・ビルディング (ONE FUKUOKA BLDG.)
Project name (English): ONE FUKUOKA BLDG.
Purpose: Offices, shops, hotel, meeting halls, parking lot
Location (city, prefecture): Fukuoka City, Fukuoka Prefecture, Japan
Site area (m2): 8,606.16
Total floor area (m2): 146,191.75
Number of floors: 19 above-ground floors, four underground floors, one penthouse floor
Eave height / maximum height (m): 90.560 m/96.340 m
Main structure: SRC/S
Completion month/year: December 2024














