Trim住宅,立陶宛 / KWK Promes
2016年,KWK Promes与多家国际事务所一同受邀参加一个封闭竞赛,为一位私人客户在立陶宛维尔纽斯郊区设计一栋独栋住宅。该区域以松散的传统开发为特征,住宅和度假小屋掩映于树木之间,周围是广阔的休闲用地。竞赛地块及其周边曾分布有两次世界大战之间时期的木结构房屋,但这些建筑已不复存在。
In 2016, we were invited—along with several international studios—to take part in a closed competition for a single-family house in one of Vilnius’s suburban districts, organized by a private client. This is an area characterized by loose, traditional development, with houses and summer cottages nestled among trees and expansive recreational grounds. On the plot included in the competition, as well as in its surroundings, there were once wooden houses from the interwar period, which have not survived to the present day.
▼建筑概览,Overview of the building

▼立面,facades


通过将住宅的一部分抬升至上一层,庭院为室内引入了更多自然光,并与起居空间共同成为周围花园的延伸。抬高的一层设置为私密的夜间空间。卧室可通往位于首层体量之上的露台,使居住者在保持私密与安全感的同时享受自然环境。
As a result of raising part of the house one level up, the patio brings additional daylight into the interior and—together with the living area—became an extension of the surrounding garden. The elevated first floor houses the private night zone. The bedrooms, with access to a terrace above the ground-floor volume, allow residents to enjoy nature while maintaining a sense of privacy and security.
▼混凝土体量,the concrete volume

▼长边立面,long side elevation


2017年,在设计过程中、尚未来得及为这一有趣的空间原型命名时,立陶宛农民与绿色联盟上台执政,并出台新规,将允许的建筑占地面积减少了50%。与此同时,通往住宅的车道位置也被调整——新的路径直接穿过花园进入场地。
In 2017, before we had the chance to come up with a name for this intriguing spatial motif—still during the design process—the Lithuanian Farmers and Greens Union came to power and introduced regulations that limited the allowable building footprint by 50%. The location of the driveway to the house was also changed—the new route leads directly into the garden.
▼建筑外观,exterior views of the house


▼尖锐的一角,a sharp corner


▼“裁剪”建筑体量,”Trim” the architectural volume


▼通透的底层立面,transparent ground floor

业主一度开始寻找新的地块以安置这一设计,但我们最终说服其保留原有基地,并将建筑面积缩减40%。由此,项目形成了一个三角形的平面布局。
The client began searching for a new site for our design, but we managed to persuade them to stick with the original location and reduce the house’s area by 40%. As a result, a triangular floor plan emerged.
▼顶视图,top view

▼庭院,the patio


▼庭院一角,corner of the patio

▼模糊的室内外界限,blurred exterior and interior boundaries

▼由室内看庭院,viewing the patio from interior


更大的花园面积以及更好的日照条件——在这一地理位置和林地环境中尤为重要——成为“裁剪”建筑体量的关键理由。尽管规模发生了变化,项目的核心理念仍得以完整保留。
The enlarged garden area and improved access to sunlight—so important in this geographical location and forested setting—became additional arguments that allowed us to trim the house. Although the scale changed, the core idea of the project remained intact.
▼生活空间,living space

▼通往地下室的楼梯,staircase leading to the basement

▼楼梯,staircase

▼旋转楼梯,spiral staircase



▼俯视旋转楼梯,top view of the staircase


▼场地平面图,site plan

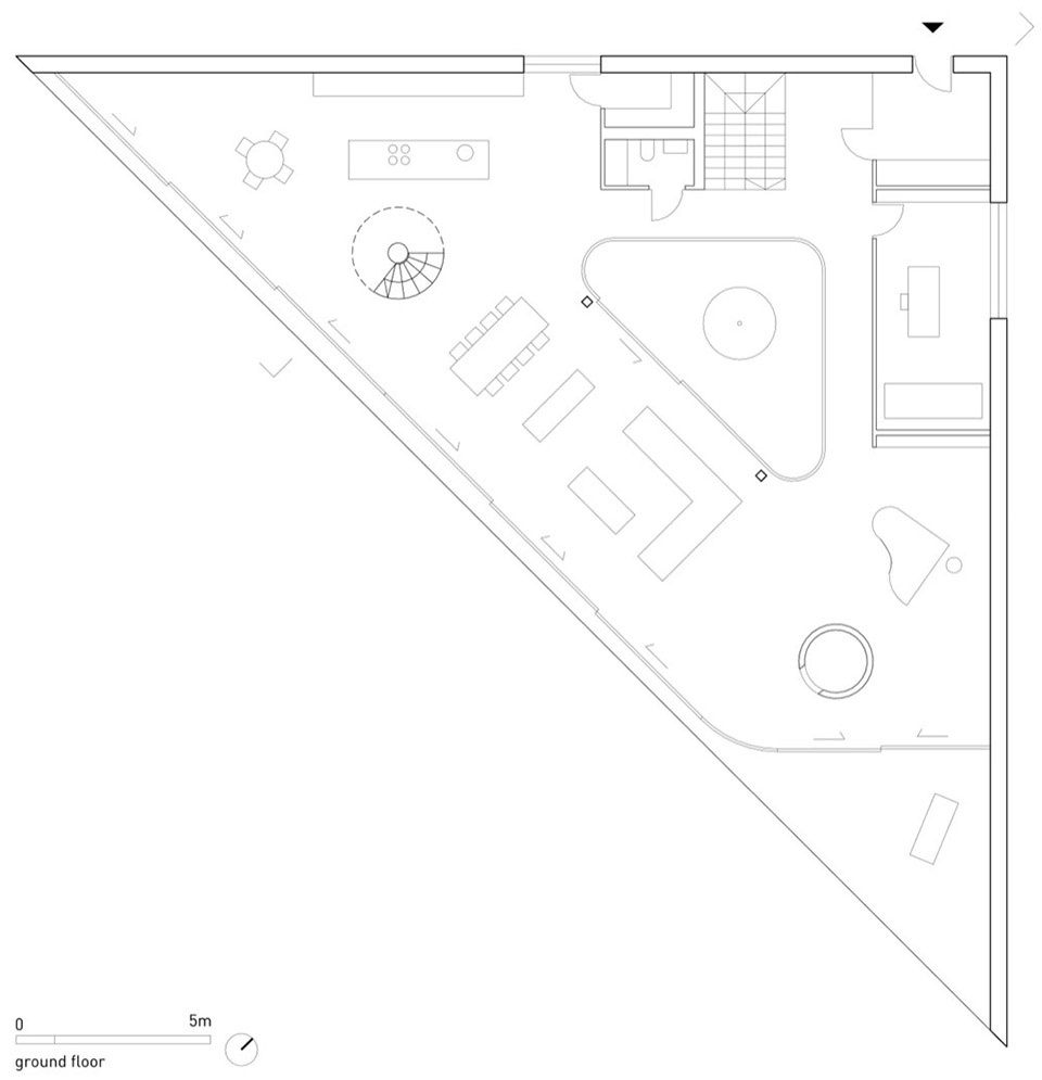
▼底层平面图,ground floor plan

▼二层平面图,first floor plan

▼立面图,elevations



▼剖面图,section

Credits
Name: Trim House
Lokalizacja: Vilnius, Lithuania
Office: Robert Konieczny KWK Promes
Authors: Robert Konieczny
Collaboration: Dorota Skóra, Michał Lisiński, Krzysztof Kobiela, Łukasz Marciniak, Mateusz Białek, Katarzyna Ficek
Structural design: Firma Inżynierska STATYK
Local partner: 4 PLIUS ARCHITECTS – Donaldas Trainauskas
Home decor: Yes. Design Architecture
Investor: private
Site area: 1 784 m2
Built-up area: 299 m2
Usable floor area: Residential area: 357 m2, warehouse and technical area: 189 m2 Volume: 1 891 m3
Designed: 2015 – 2019
Completed: 2019 – 2025














