镇邦路114号改造项目,厦门/建筑
镇邦路114号项目为旧建筑改造的餐厅项目,最大特色在于其原有建筑形式以及所处的位置——厦门中山路区域。该区域现存建筑最早可以追溯到上世纪20年代,为当时闽南地区较为常见的骑楼建筑形式。我们的项目为位于街道转角的一栋五层高的骑楼,每层面积约为45平米。
114 Zhenbang Road is a restaurant project renovated from a historical building with traditional “Qilou” – arcade surroundings. It is distinctive for the original archi-tectural form and its unique location, Zhongshan Road which was the old city cen-ter in Xiamen. Existing buildings in this area can be traced back to 1920s, as a common architecture typology of arcade in the southern Fujian area. Our project is a five-storey arcade, located in the street corner, with the area of 45 sqm per floor.
▼项目外观,exterior view

在实现功能需求的同时,我们将所处环境及建筑特色作为设计考量的重要内容。周边建筑虽皆为同一骑楼形态,但由于年代久远且维护不佳,使得外观参差不齐,颇为杂乱。
The site context and architectural features are significant aspects of design con-siderations at the same time of meeting functional requirements. Although all the buildings in the surrounding are arcade, the street elevation seems to be some-what littery on account of long time and lack of maintenance.
▼夜晚的餐厅成为一个发光体,the new restaurant looks like a self-luminous volume at night

▼改造之后的外立面给人一种轻盈明快之感,the reborn elevation brings the lightsome and lively atmosphere to the old street

我们希望改造之后的外立面能为厚重陈旧街道带来轻盈明快的感觉,同时又保持与传统建筑形态的内在联系,于是我们将原有外立面更换为铝格栅,并以厦门传统红砖的尺寸作为模数,以求用现代材质对传统形态进行表达。
We hope that the reborn elevation can bring the lightsome and lively atmosphere to the old street and maintain the inner relationship with the traditional architectural form. Therefore, we modify the original facade design into aluminum grating, adopting the size of local red brick in Xiamen as a module to express the traditional form with modern material.
▼建筑师将原有外立面更换为铝格栅,architects modify the original facade design into aluminum grating

同时,结合日常光照数据,将格栅孔洞进行了参数化运算,由下至上形成疏密渐变,以保证一天中各个时段每层楼面的采光及保温。
Furthermore, the rhythm of holes in the grating is designed with parameterization according to the daily light data. As a result, there will be gradual change of density from top to bottom, so that the daylighting and heat preservation can be guaran-teed.
▼格栅孔洞下至上形成疏密渐变,the density of the grating is changed from top to bottom

室内部分强调了与外立面轻与重、深与浅的对比关系,地面与墙面皆采用了水磨石材质,形成了一条纵向贯穿五层的灰色内核。尤其在中山路地区最为热闹的夜晚时分,即便远处也能看到这个内核厚重却包裹着轻盈外衣的发光体。
Interior design emphasizes the contrast of light and heavy, dark and light to the ex-ternal facade. In addition, terrazzo is applied in the area of floor and wall, and con-sequently forms a grey core vertically running through 5 floors. In the evening, the livest time in the Zhongshan Road area, it can be seen even in the distance as a self-luminous volume with massive inner core and lightsome frock.
▼室内强调了与外立面轻重和深浅的对比关系,interior design emphasizes the contrast between interiors and exteriors



▼建筑的地面与墙面皆采用水磨石材质,terrazzo is applied in the area of floors and walls

▼水磨石墙面和地板形成了一条纵向灰色内核,terrazzo walls and floors form a vertical grey core


▼顶层露台,the terrace on the top floor

▼建筑周边环境极其原貌,context and the original building

▼轴侧分析图,axon diagram

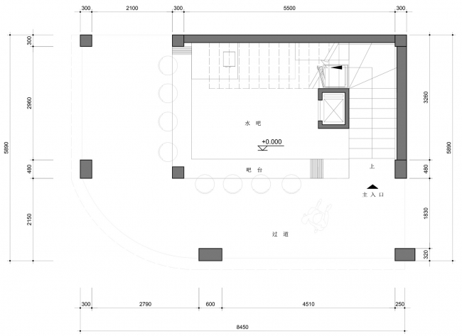
▼一层平面,1F plan

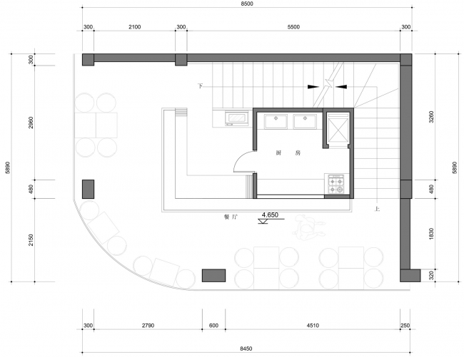
▼二层平面,2F plan

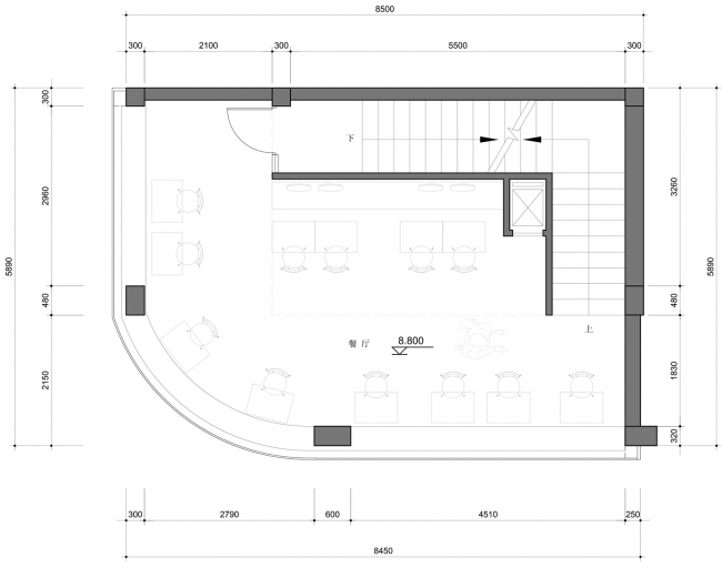
▼三层平面,3F plan

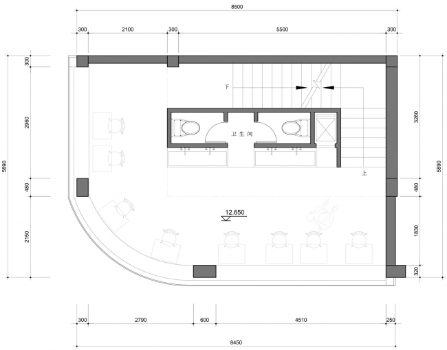
▼四层平面,4F plan

项目信息
项目名称:镇邦路114号改造项目
文章分类:建筑设计-综合商业
设计公司:间筑设计
项目地址:厦门
项目规模:230平面
设计团队:XiaoLei,BaiLu,LiuYingying,PanJialin,YeLizhou,PedroRuizMazano
Project information
Project Name: reconstruction project of No. 114 Zhenbang Road
Article classification: Architectural Design - integrated business
Design company: Building Design
Project address: Xiamen
Project scale: 230 plan
Design team: XiaoLei,BaiLu,LiuYingying,PanJialin,YeLizhou,PedroRuizMazano














