Xpark坐标公园郑州悠玛空间店 / 未见筑设计事务所
去年,我们在贵阳认识了马晨稀。
这个说话爽快、脑子里装满了想法的年轻人,带着他的X-Park找到我们。第一次合作,我们在健身房外立面做了“未完成”的脚手架,他说:“健身房不该是封闭的铁盒子。”我们都想知道,空间能不能不只是锻炼的地方,还能让人和人产生更多连接。所以当他在郑州拿到这个新场地,又来找我们的时候,我们没多问,直接答应了。这种信任,是合作最舒服的状态。
Xpark新店藏在郑州一座老厂房改造的园区里,与NBA HOOP PARK,羽毛球馆一起组成了悠玛空间。马晨稀保有一如既往的理念:“不推销、不制造焦虑,让大家愿意来、待得住、练得开心。”他说得简单,但我们知道,要把这些落到空间里,得花些心思。
Last year, we met Ma Chenxi in Guiyang. He’s a straightforward young man with a mind full of ideas, and he brought his Xpark to us. On our first collaboration, we used an “unfinished” scaffolding facade for the gym. He said, “A gym shouldn’t be a sealed iron box.” We both wanted to know whether a space could be more than just a place to work out – whether it could help people connect with each other. So when he came to us with a new venue in Zhengzhou, we said yes without hesitation. That kind of trust is the most comfortable way to work together.
Xpark’s new location is tucked inside an old factory-turned-creative park in Zhengzhou, sharing the space with NBA HOOP PARK and Badminton Hall – together called Youma Space. Ma Chenxi holds onto his philosophy: “No sales pressure, no anxiety – just a place where people want to come, stay, and enjoy working out.” It sounds simple, but we knew that translating this into a space would take some thought.
▼项目概览,overall of the project

项目背景Project Context
厂房首层架空为停车场。健身房共两层,一层包含接待区、训练区、更衣淋浴及配套服务;二层为专项训练区、拍照间、多功能室及办公室。原始空间拥有近11米的挑高区域,但同时也面临层高落差大、结构柱多、功能区复杂等挑战。这是与主理人的第二次合作。延续贵阳Xpark坐标公园的默契,我们不再仅仅思考“如何做一个好用的健身房”,而是追问“空间能否像催化剂一样,加速处在空间中的人身体与心理的蜕变?”
The factory’s ground floor is used as a parking lot. The gym has two floors. The first floor includes a reception area, training zones, changing rooms and showers, and supporting services. The second floor houses specialized training areas, a photo room, a multi-purpose room, and offices. The original space features an almost 11-meter-high double-height area, but it also comes with challenges: large height differences, many structural columns, and a complex mix of functions. This is our second collaboration with the owner. Continuing the synergy from the Guiyang Xpark, we moved beyond asking “how to make a usable gym” to a deeper question: Can a space act as a catalyst, accelerating the physical and psychological transformation of the people inside it?
▼项目由厂房空间改造而成,the project was transformed from the factory building space

设计理念Design Concept
身体的反应实验室|The Body Response Laboratory
我们将整个空间定义为一座 “身体的反应实验室”。
“反应”意味着变化的发生,肌肉的撕裂与重建,耐力的积累与突破,体能的量变与质变。
“实验室”暗示着一种过程性的的状态,每一次训练都是一次实验,每一次突破都是一次成功的结果。
而这次的设计,不是创造一个“完成时”的完美空间,而是构建一个 “进行时”的过程性容器。它模拟并支撑着从混沌到清晰、从压抑到释放、从自我审视到自我肯定的路径。
We defined the entire space as a “Body Response Laboratory.”
“Response” means change happens – muscle tearing and rebuilding, endurance accumulating and breaking through, the quantitative and qualitative transformation of physical ability.
“Laboratory” suggests a state of process. Every workout is an experiment; every breakthrough is a successful result.
Our design is not about creating a “finished” perfect space, but about building a “work-in-progress” process container. It simulates and supports the entire journey from chaos to clarity, from suppression to release, from self-examination to self-affirmation.
▼草图,sketches

场所营造Place Making
接待区|Reception Area
接待区以木饰面营造温暖的第一印象,搭配无机涂料与金属板台面,形成柔与刚、暖与冷的对冲。
The reception area uses warm wood veneer to create a welcoming first impression, paired with inorganic paint and metal countertops – a contrast between soft and hard, warm and cool, hinting at the beginning of transformation.
▼接待区,reception area

▼咖啡吧台,the coffee counter


入口区|Entrance Area
健身房入口空间以深色无机涂料压暗氛围,轴对称入口立面,在物理和心理上完成一次“进入”的仪式。
The gym entrance is darkened with dark inorganic paint. The symmetrical entrance facade creates a ritual of “entry” – both physically and psychologically.
▼入口区,entrance area


首层训练区|First Floor Training Area
训练区墙面以镀锌格栅作为立面装饰,保留工业质感的同时兼顾通透性,一定程度上削弱了座位区在通道上的紧促感。大面积EPDM运动地胶耐磨防滑,有效吸收冲击力,保障训练安全。镀锌格栅顶面与地面形成呼应,强化力量感与秩序感。
The training area walls are finished with galvanized metal grilles, preserving an industrial texture while maintaining visual transparency, which helps reduce the cramped feeling of the seating area in the corridor. Large areas of EPDM sports flooring are wear-resistant, anti-slip, and effectively absorb impact, ensuring training safety. The galvanized grille ceiling echoes the floor, reinforcing a sense of strength and order.
▼保留工业质感的同时兼顾通透性,preserving an industrial texture while maintaining visual transparency

空间中心近11米挑高的区域,是整个“反应实验室”的核心。大面积的米色和灰色砖墙、暴露的裸顶面、交错的金属管线,都保持着原始、粗粝、未完成的样貌,只为让使用者在此专注最真实的自我。
The nearly 11-meter high space at the center is the core of the “Response Laboratory.” Large areas of beige and grey brick walls, exposed raw ceilings, and intersecting metal pipes – all retain a raw, rough, unfinished look – so that users can focus on their most authentic selves.
▼空间中心近11米挑高的区域,the nearly 11-meter high space at the center is the core of the “Response Laboratory”

▼重训区,training area

二层训练区|Second Floor Training Area
二层空间延续一层的调性风格,大面积米色砖墙搭配原始顶面裸露结构。保持空间的质朴与真实。我们在墙面进行开洞,让阳光自然洒入,是整个空间不再是一个密闭的盒子,而是充满通透感的开放场域。有氧区与篮球场以通透玻璃围合,视线可以毫无阻碍地穿透——当你在跑步机上挥汗时,能看见楼下篮球场的对抗。这种空间互联,让不同项目的训练者彼此感知,共同构成一个流动的能量场。
The second floor continues the style of the first floor, with large beige brick walls paired with exposed raw ceilings, keeping the space simple and real. We opened up sections of the wall to let sunlight pour in, so the space no longer feels like a sealed box but an open, transparent field. The cardio area is enclosed by transparent glass walls that look down onto the basketball court – when you’re sweating on the treadmill, you can see the game below. This spatial interconnection allows people doing different activities to sense each other, forming a flowing energy field together.
▼二层空间,second floor training area

▼器械区,training equipment area


拍照间|Posing Room
延续Xpark贵阳店,我们在这家店同样设置了造型室,外表采用温暖的木饰面,与训练区的工业质感过渡,内部一整面墙的落地全身镜和一面高角度的俯视斜镜,方便健身者多角度观察和记录自己的训练成果。作为独立房间,为会员提供了足够的私密性,避免社交尴尬。
Continuing the design of the Guiyang Xpark, we also included a styling room here. The exterior is finished in warm wood veneer, creating a gentle transition from the industrial texture of the training areas. Inside, there’s a full wall of floor-to-ceiling mirrors and a high-angled downward mirror, making it easy for fitness enthusiasts to observe and document their progress from multiple angles. As a private room, it offers enough privacy for members who want to focus or avoid social awkwardness.
▼拍照间,the posing room

▼拍照间内部,interior of the posing room

更衣间&淋浴间|Changing Rooms & Showers
更衣间和淋浴间材料主要使用白色格子砖搭配镀锌格栅,通过木质家具打破空间冰冷感觉,提升使用的舒适度。
The changing rooms and showers mainly use white grid tiles paired with galvanized grilles, while wooden furniture breaks the coldness of the space and enhances comfort.
▼更衣间&淋浴间,changing rooms & showers

文章写到这儿,想回到开头那个人——马晨稀。从贵阳到郑州,他的想法没变过,不靠销售套路,不靠高压氛围,就靠一群真正热爱运动的人,慢慢把场子做起来。我们做的,不过是把他的话、他的想法,用一种看得见的方式呈现出来。
Writing this, I want to go back to where we started – Ma Chenxi. From Guiyang to Zhengzhou, his philosophy hasn’t changed. No sales tricks, no high-pressure atmosphere – just a group of people who truly love sports, slowly building the place up. What we did was simply take his words and ideas and present them in a visible way.
▼周边展示区,retail area

信任这件事,说起来虚,但在我们这行,特别实在。第一次合作靠缘分,第二次合作靠的是彼此都觉得,跟对方一起干活挺顺的。方案讨论不用绕弯子,现场问题可以直接说,大家心里都清楚,最终是为了把这件事做好。希望郑州的朋友们,有空来这个“反应实验室”转转。练不练都行,进来坐坐,喝杯咖啡,看看别人挥汗如雨,也挺好。
Trust is a vague concept, but in our line of work, it’s very real. The first collaboration comes from serendipity; the second comes from both sides feeling that working together is smooth. No beating around the bush during discussions, direct conversations about on-site issues – everyone knows the goal is to get the job done well. To our friends in Zhengzhou: come by this “Response Laboratory” sometime. You don’t have to work out. Just come in, sit down, have a coffee, and watch others sweating – that’s nice too.
▼细部,details

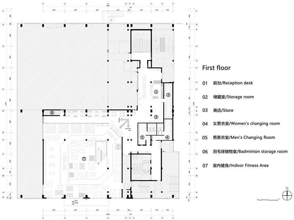
▼一层平面图,first floor plan

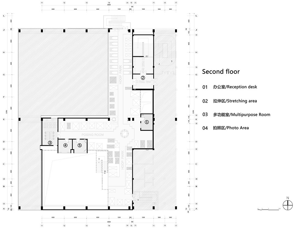
▼二层平面图,second floor plan

▼剖面图,sections


项目信息
投资运营单位:黑蚊运动
Project Information
Investment & Operation: Heiwen Sports
Project Name: Xpark · Zhengzhou Youma Space
Address: No. 03, Liuye Factory Building, No. 35 Huaihe Road, Ruhe Street, Zhengzhou, Henan Province
Design Area: 1,600 m²
Design Period: April 2025
Completion Date: February 2026
Design Scope: Interior Design
Principal Designers: Li Weitao, Li Bo
Design Team: Deng Lin, Zhang Zhirui, Zhang Zhaoxin, Liu Ting
Interior Construction Drawing: Chongqing Dongjing Decoration Design Co., Ltd.
VI Design: Heiwen Sports
Photography: IN-FIELD studio
Text Editor: Ouyang Yuting














