阿那亚·三亚澜山酒店综合体(山之境西区) / 建言建筑
阿那亚·三亚是对北戴河滨海社区经验的一次山居转译。自2015年项目一期伊始,至2020年二期“山之境”开启,建言建筑于同一片山麓之下,将思考持续推进。阿那亚三亚·山之境位于三亚市吉阳区森海路,南下岭北麓。场地坐南朝北,南倚山体,北向狭长的谷地平原,毗邻龙泉谷1309亩赛事级球场、阿那亚·三亚一期风情小镇——向北展开的纵深,构成了项目的主要景观朝向。“阿那亚·山之境”全区占地117亩,自东区向西区延展,完成了一次产品逻辑与空间策略的转型。东区用地顺山势延展700米,南北进深仅70米——以极致的面宽与进深比例,如一幅长卷铺展于林木丰茂的山腰凸起之处,勾勒出与山势相融的独特场域。四栋度假公寓依势而立,体量错落,以舒展的横向线条和向景观让渡的姿态,呈现“隐于山”的谦逊表达。
Aranya Sanya began with its first phase in 2015. From the launch of the second phase, Mountain Realm, in 2020, Verse Design has continued to advance its thinking within the same landscape. Aranya Sanya sits on Senhai Road Jiyang District, Sanya, at the northern foot of Nanxia Ridge. Covering 117 acres, the site sits adjacent to the 1,309-acre tournament-grade Longquan Valley Golf Course and the Aranya · Sanya Phase I town. The eastern zone stretches 700 meters along the contour but only 70 meters deep—an extreme ratio that blends site into mountain. Four staggered resort apartments, with elongated horizontals, express “seclusion within the mountain” quietly.
▼阿那亚·三亚山之境总体,Overview of the Lanshan Hotel Complex at Aranya Sanya

西区地块位于紧邻东区的一处凹陷,是早年采石活动切削山体后遗留的口袋形场地。南、东、西三面为遗留的岩土坡面,坡度逾四十五度,占场地面积三分之一,无可借之景。余下三分之二土地相对平坦,可供建造。场地北侧完全敞开,构成项目主要景观朝向。场地之上,澜山酒店综合体依势而立。匍匐的裙房汇集了“山之境”项目的核心商业配套;两栋塔楼——澜山酒店与服务式公寓——矗立于高尔夫果岭之上,立面错落起伏,在光影变幻中构筑起与山峦对话的韵律。西区澜山酒店综合体的建筑立场并非从“谦逊”转向“彰显”,建言建筑以更为精确的几何语言,完成从“隐于山”到“对话山”的空间转译。
▼阿那亚·三亚山之境全区建筑模型,The Lanshan Hotel Complex at Aranya Sanya model

The western zone occupies a pocket-shaped depression left by quarrying, adjacent to the eastern zone. Three sides are steep slopes over forty-five degrees, covering one-third of the site with no views. The remaining two-thirds is flat and buildable. The north side opens fully to the main prospect. The Lanshan Hotel Complex follows the terrain. A low podium holds the core amenities; two towers rise above the fairway, their staggered facades in rhythmic dialogue with the mountains. Rather than shifting from modesty to prominence, Verse Design translates “seclusion” into “dialogue” through a sharper geometric language.
▼项目鸟瞰,aerial view of the project

塔楼:与山对话的界面 Dialogue with the Mountain
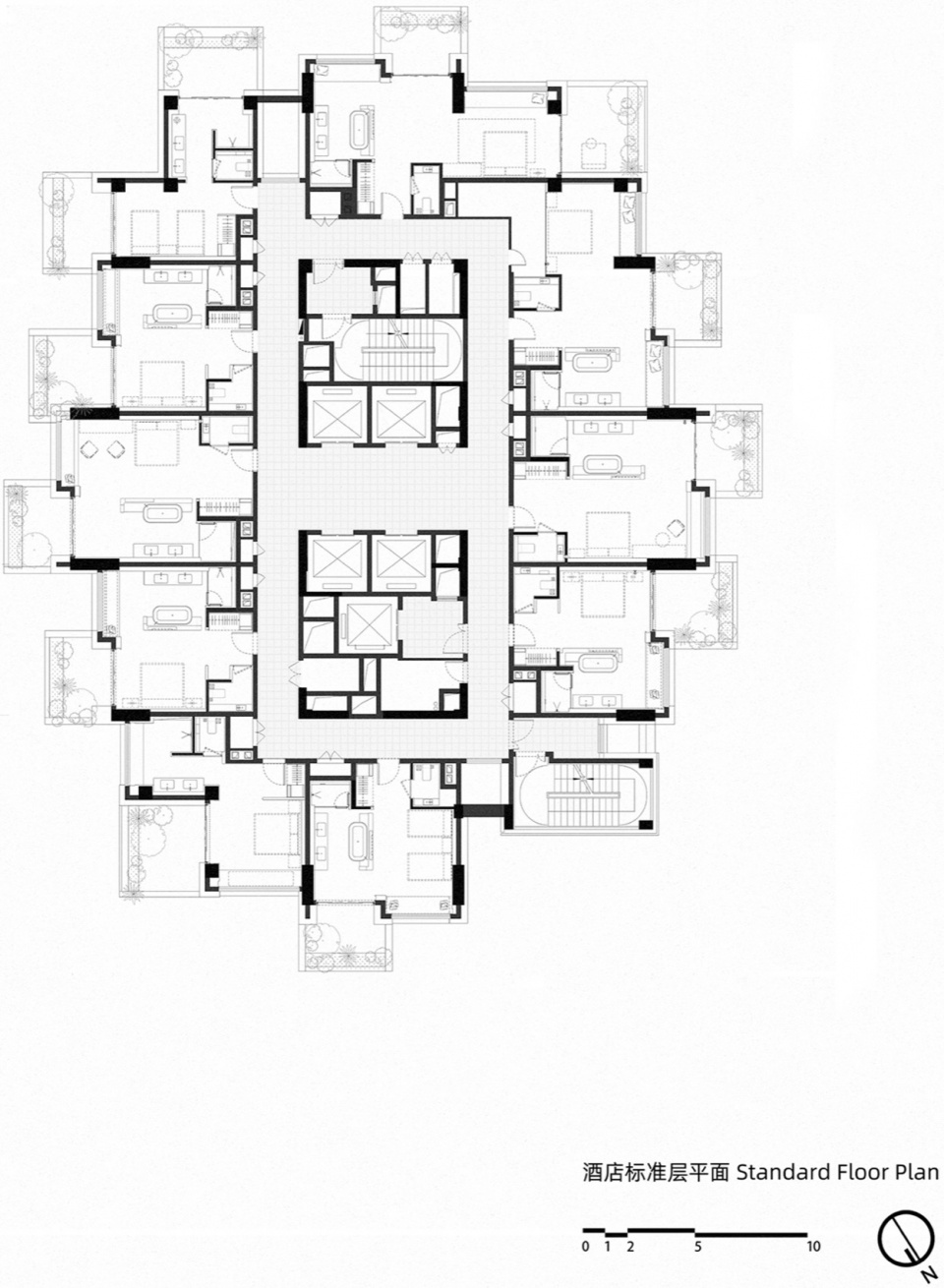
裙房之上,两栋塔楼基座中生长而出。澜山酒店与服务式公寓以约76米的高度矗立于果岭之巅。
Above the podium, the Lanshan Hotel and serviced apartments rise 76 meters, standing atop the fairway
▼澜山酒店与服务式公寓塔楼,the Lanshan Hotel and serviced apartments tower

塔楼立面以悬挑阳台为基本单元。阳台进深自2.2米至2.9米不等,外侧预留花池。设计采用水平错动与立面叠加的手法,以每两层为一个基本单元,在垂直方向周期重复。建筑轮廓由此呈现为层层后退与向前伸出的叠合界面,在日光下投下深浅交替的阴影节奏——体量感被消解,立面在规整中保有变化,在重复中凸显韵律。
The tower facade is built from cantilevered balconies 2.2–2.9 m deep, each with an outer planting trough. Two-story units shift horizontally and repeat vertically, creating a layered profile of alternating projections and setbacks. Light and shadow break down mass, while repetition brings rhythm without losing order.
▼澜山酒店与公寓立面,the Lanshan Hotel and serviced apartments facade

酒店客房面宽达6.6米。由于阳台的层层错动,每一间客房均与一个进深可观的阳台相连。生活空间由此向户外延展,景观自山谷、果岭、远山逐层向内渗透,阳台成为室内与山野之间的过渡地带;酒店式公寓平面采用通廊布局,通过软分隔达到单元式布局的使用效果,在集约与舒适之间取得平衡。
Each 6.6m-wide guest room opens onto a deep staggered balcony, drawing the valley, fairway, and distant mountains inward—a threshold between interior and mountain. The serviced apartments use a corridor layout with soft partitions, balancing density and comfort.
▼澜山酒店立面阳台错落有致,The balconies on the facade of Lanshan Hotel are arranged in a staggered and orderly manner

裙房:日常的容器 Daily Life Unfolds
裙房北侧界面拉长至190米——以水平延展的姿态将视觉主角让予谷地与远山。界面沿进深层层退台,多重景观平台、廊架、灰空间逐级而上,建筑体量由此渐次契合于凹陷的地形之中。
The north facade stretches 190 meters. Stepped setbacks create terraces, pergolas, and transitional spaces that rise with the depth, settling the building mass into the recessed terrain.
▼庭院鸟瞰,aerial view of the courtyard

▼庭院与灰空间,courtyard and transitional spaces



裙房纵深六十余米,建筑转而向内,于自身建造景观。多级天井与内庭院嵌入其间,成下沉庭院、半围合庭院、景观平台院落等气质各异的空间节点。见山本院坐落于裙房屋面的景观平台之上,恰在隙廊步道上方悬停。日式庭院以静默的姿态,与下方穿行的人流对望。
Over sixty meters deep, the podium turns inward to cultivate its own landscape. Multi-level light wells and inner courtyards form distinct spatial nodes—sunken, semi-enclosed, and terrace gardens. Jianshan Benyuan rests on a rooftop terrace, hovering above the interstitial walkway.
▼见山本院,Jianshan Benyuan


为创造更为丰富的漫行体验,三条“隙廊”南北贯穿,如山中峡谷,成为亟待探索的漫游路径。空间有收有放,踏步与平台层层抬升,串联起天井、庭院和所有商业与配套场所。海南明媚的阳光赋予灰空间体系以更多的意义——空间起承转合,光影游走明灭,人在其中漫步,时间、空间一同构成日常与仪式感交织的社区生活内核。
▼中庭与隙廊,atrium and corridor

To enrich the wandering experience, three “interstitial corridors” run north–south through the building like mountain ravines, inviting exploration. Spaces shift as steps and terraces rise in stages, linking light wells, courtyards, and all commercial and amenity areas.
▼中庭与隙廊空间,atrium and corridor space


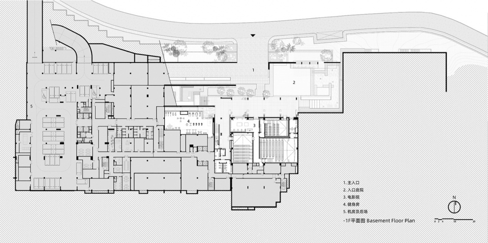
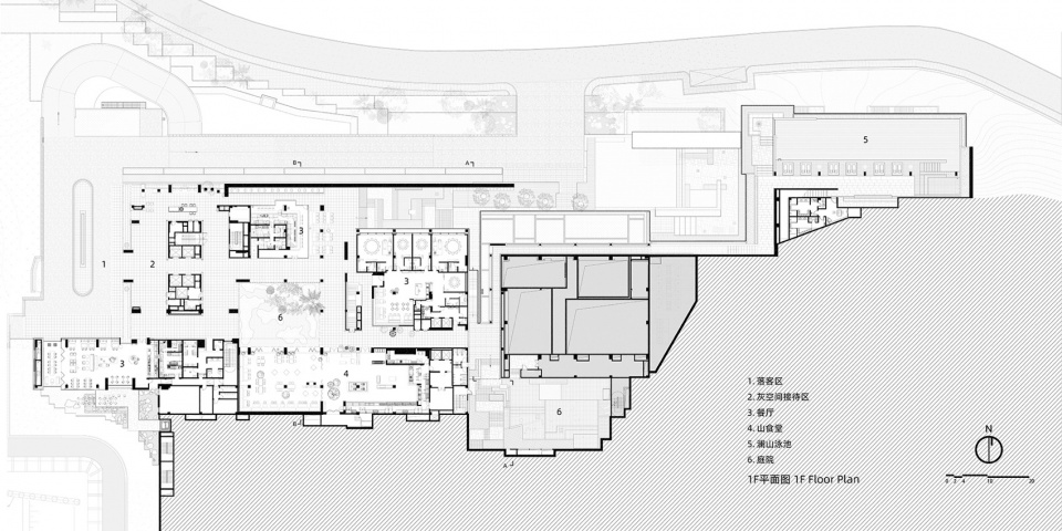
澜山酒店综合体的裙裙房汇集了山之境的核心商业配套,是社区生活的中心。一层容纳阿那亚食堂、藏红花西班牙餐厅、甬府家宴、鸟万·炭火料理等多家餐厅,泳池与健身房布置于东侧景观面;二层为景观平台,酒店大堂与综合性庭院布置其上——功能性设施与精神性场所在垂直方向上叠合。地下一层沿街面设置电影院,停车及后勤设备用房亦置于地下。这些功能经由灰空间体系串联,社区日常与邻里相遇在此发生。
The podium houses core amenities and anchors the community. On the ground floor: Aranya Canteen, several Michelin-starred restaurants, and the pool and gym to the east. Above, a landscape terrace holds the hotel lobby and main courtyard. A cinema lines the lower ground floor, with parking and support spaces below. A system of transitional spaces links everything together.
▼泳池鸟瞰,aerial view of the swimming pool

▼泳池空间,swimming pool space

▼鸟瞰,aerial view

▼项目夜景,Night View

嵌入地形的裙房缝合山体,融入天际的塔楼续接轮廓——澜山酒店综合体不再是山外的他者,而成为山际线的延续。
A podium embedded in the terrain, towers dissolving into the sky—the Lanshan Hotel Complex becomes an extension of the mountain skyline.
▼总平面,master plan

▼-1层平面图,basement floor plan

▼1层平面图,ground floor plan

▼2层平面图,first floor plan

▼ A-A剖面图, A-A section

▼ B-B剖面图, B-B section

▼ 塔楼标准层, Standard floor of the tower building

Project name: The Lanshan Hotel Complex at Aranya Sanya
Project type: Hotels, Residential Architecture
Design: Verse Design
Website: https://verse-design.com/
Contact e-mail: xiaoya.li@verse-design.com
Design year: 2019年—2024年
Completion Year: 2025年
Leader designer & Team: Leon Dai, Wei Xiaolu, Xu Chenyu, Huang Shuoxin, Guo Hua, Zhao Jie, Xuan Jiali, Liu Yushan
Project location: Senhai Road, Jiyang District, Sanya, Hainan, China
Gross built area: 38200㎡
Photo credit: Wu Qingshan
Partner:
Clients:ARANYA
Construction Documentation: Tongji Architectural Design (Group) Co., Ltd.
Curtain Wall Design: Shanghai Ruibai Curtain Wall Design Consulting Co., Ltd
Lighting Design: BPI
Landscape Design: JTL Studio Pte. Ltd.
Interior Design: Symmetry Design
Jianshan Benyuan Design: Y SPACE
Jianshan Benyuan Landscape Design: Yoshiki Toda Landscape & Architecture
Jianshan Benyuan Photography Copyright: Y SPACE(Photography by Liu Songkai)














