微小辛,商丘 / 此西设计
餐厅的经营以川菜为基础的融合菜系为方向,在此基础上我们尝试空间以质朴的气质为基底,同时也能呈现情绪化的特质,让体验更多变,更有趣。
The restaurant’s culinary direction is based on Sichuan cuisine while incorporating fusion elements. Within this framework, we aim to create a space that takes an unpretentious, rustic quality as its foundation while also expressing an emotional character, making the overall experience more varied and interesting.
▼入口,entrance


▼建筑外观,building appearance

餐厅分布于三层空间之内。一层空间中承载了公共用餐区的核心功能。设计的着重点在于:如何处理开放性与私密性之间的平衡。我们在空间两侧的入口处分别设置了一段具有“游览”性质的过渡区域,通过动线自然地将外界的喧闹与用餐区隔离开来,这与用餐区也形成了第二段入口,在丰富了空间的游走体验的同时,也有效提升了用餐区的私密性与舒适度。
The restaurant is distributed across three floors. The first floor hosts the core functions of the public dining area. The design focuses on how to balance openness and privacy. On both sides of the entrance on the first floor, we have set up transitional zones with a “promenade” quality. Through the circulation, they naturally separate the external hustle and bustle from the dining area. This creates a second threshold leading to the dining space, enriching the experience of movement while effectively enhancing the privacy and comfort of the dining area.
▼“游览”性质的过渡区域,transitional zones with a “promenade” quality




▼室内概览,overview of the interior

▼吧台,bar

▼披萨制作区,pizzas area



我们强调手工感,在功能布局上,我们将吧台设置在一层的中心,集中了披萨和饮品的制作功能,作为一个视觉和功能的中心点辐射至一层的用餐区,现场开放的餐饮制作的感官体验,即形成了与用餐区的交互性,同时这种互动形成的情绪也与空间材质的手工感相契合。
We emphasize a handcrafted sensibility. In terms of functional layout, we placed the bar at the center of the first floor, concentrating the preparation of pizzas and beverages. As a visual and functional hub, it radiates outward to the dining area. The open, on-site sensory experience of food and beverage preparation creates interactivity with the dining area, and the resulting emotional engagement aligns with the handcrafted quality of the spatial materials.
▼用餐区,dining area





二三层空间以包间为主,我们设置了不同的包间场景,以满足小型party,家庭聚餐,商务宴请的接待需求。在向上的动线和二三层进入包间的过渡区域,我们延续了一层空间的展览性,为整体的用餐情景提供可停留可互动的场地。
The second and third floors are primarily dedicated to private rooms. We have designed a variety of private room scenarios to accommodate small parties, family gatherings, and business banquets. Along the upward circulation and within the transitional areas leading to the private rooms on the second and third floors, we continue the exhibition-like quality of the first floor, providing spaces for pausing and interaction within the overall dining scenario.
▼包间,private room



▼楼梯,staircase

▼走廊,corridor

▼装饰细部,decorative details


在组织空间色彩和材质的过程中,我们尝试在色彩和材质上都能融合一部分的情绪化的特质。为此,在大面积低饱和度的材质的基础上,我们让局部的色彩提亮,以打破空间稍显沉静的体验。围绕这个出发点,色彩的对比,空间材料的质感对比始终贯穿在一至三层的空间当中,希望在温和的气氛里,也能有一点点的出其不意。
In organizing the colors and materials of the space, we try to incorporate an emotional quality into both the palette and the textures. To achieve this, we introduce localized bright accents against a foundation of large areas of low-saturation materials, breaking the otherwise somewhat calm spatial experience. Following this approach, contrasts in color and in the texture of spatial materials are consistently carried through from the first to the third floor. We hope to bring a touch of the unexpected into the otherwise gentle atmosphere.
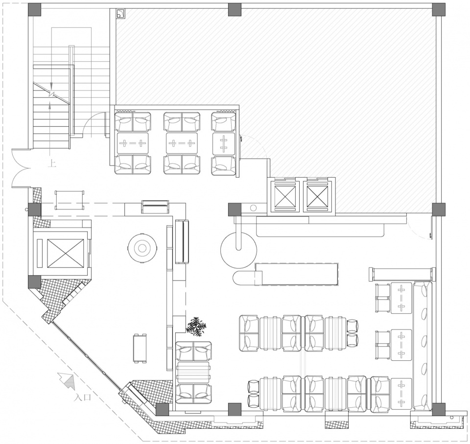
▼首层平面图,ground floor plan

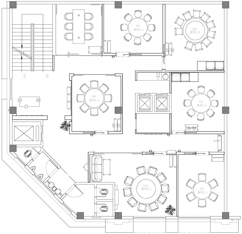
▼二层平面图,first floor plan

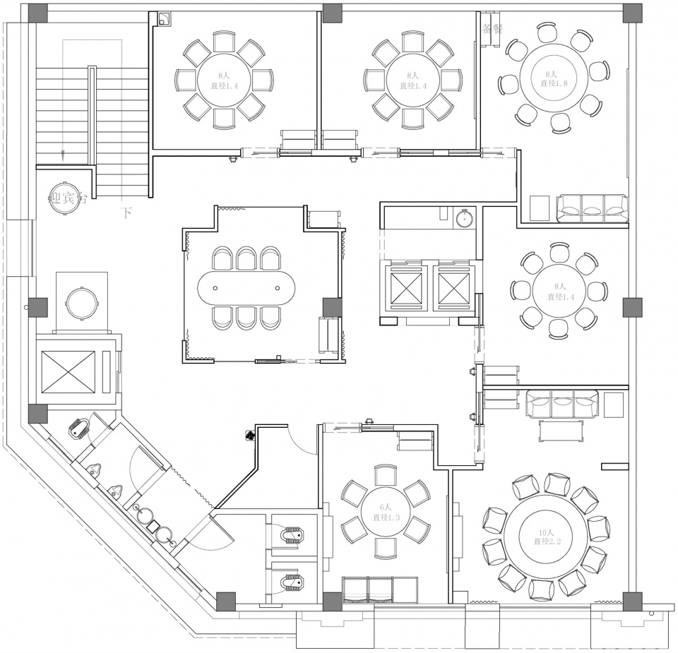
▼三层平面图,second floor plan

Project name:weixiaoxin
Project type:Restaurant
Design:CeeSee
Contact e-mail:ceeseedesign@163.com
Design year:2025
Completion Year:2026
Leader designer & Team:CeeSee
Project location:shangqiu
Gross built area: 690㎡
Photo credit: GraspFoto
此西设计
ceeseedesign@163.com













