大成设计办公室,福州 / DCD大成设计
对自然的向往,一直深植于东方人的血脉中。它从未消逝,反而在日复一日的规整与效率中,愈发清晰而迫切。离开格式化的楼宇,将脚步落于山野之间。建筑不再是自然的对峙者,它褪去客体的外衣,成为山林的延伸,以及生活美学的具体形状。
The yearning for nature has always been deeply embedded in the Eastern spirit. It never disappears; instead, it becomes increasingly clear and urgent amidst the daily routine of order and efficiency.
▼项目概览,overview of the project


用材料回应场地
Respond to the site through materials
福州软件园坐落在大腹山、五凤山与科蹄山之间,山中林木密布,建筑便藏于这深浅交织的绿意中。
Fuzhou Software Park is located between Dafu Mountain, Wufeng Mountain, and Ketí Mountain. Dense woods cover the mountains, and the building is nestled within the interwoven layers of greenery.
▼项目鸟瞰,aerial view of the project

建筑依山而建,与山体共同围合出一片山谷——建筑成为进入山谷的路径之一。从外部进入场地,建筑如山脚处的城楼;车棚被组织为类似“长亭”的线性序列,引导行进方向,增强进入过程的节奏感与仪式感。
The building follows the natural slope of the mountain; together with the mountain mass, it encloses a valley—the building itself becomes one of the paths leading into the valley. Approaching the site from the outside, the building acts as a gate tower at the foot of the mountain. The carport is organized as a linear sequence resembling a “long pavilion,” guiding the direction of movement and reinforcing a sense of rhythm and procession upon entry.
▼车棚被组织为类似“长亭”的线性序列,the canopy is organized as a linear sequence similar to a “long pavilion”



剥离了多余的装饰,用克制的手法来展开当下的叙事。金属与混凝土奠定了空间基调,前者精确,后者沉厚,共同构成了现代空间的骨骼与肌理;这是一种对现代主义的致敬,让空间始终保持着与时代对话的张力。
Excess ornamentation is stripped away, and a restrained approach is used to construct the present narrative. Metal and concrete establish the spatial foundation—the former precise, the latter solid—forming the structural framework and material texture of the contemporary space. This approach pays homage to modernism, allowing the space to maintain a dynamic dialogue with its era.
▼办公室入口,entrance

▼金属与混凝土奠定了空间基调,metal and concrete establish the spatial foundation

空间组织上,强调水平方向的贯通与流动性。垂直方向上下两层通过室内楼梯连接,不仅作为空间转换的节点,也如雕塑般存在;视线在行进中先被压缩,而后到释放,最终在豁然开朗处到达情感的高峰。
Spatially, the emphasis is on horizontal continuity and fluidity. The two levels are connected by an internal staircase, which serves not only as a node for spatial transition but also as a sculptural element. Sightlines are compressed during movement and then released, culminating in an open area that marks the emotional peak.
▼室内楼梯,an internal staircase


▼室内楼梯,an internal staircase

▼从楼梯俯瞰下层空间,overlook the lower level space from the staircase

交互的场域Interactive space
从物理联结到灵感生发From physical connections to the emergence of inspiration
落地玻璃消融室内与公园的界线,开放性的视野将绿意引入室内,使人很快融入“城内”所打造的乌托邦。
Floor-to-ceiling glazing dissolves the boundary between interior and park. The open visual field draws greenery into the interior, allowing people to quickly become immersed in the utopia constructed within this “city.”
▼开放性的视野将绿意引入室内,the open visual field draws greenery into the interior


▼落地玻璃消融室内与公园的界线,floor-to-ceiling glazing dissolves the boundary between interior and park


公共区域置于视野最佳位置,与自然景观直接对话;水吧台功能单元被整合于公区一侧,支持多种交流与使用场景。
The communal area is placed where views are optimal, establishing direct dialogue with the natural landscape. The pantry unit is integrated along one side of the common area, supporting various activities and social scenarios.
▼与自然景观直接对话,establishing direct dialogue with the natural landscape

▼水吧台功能单元,the pantry unit


▼支持多种交流与使用场景,supporting various activities and social scenarios



公园园林采用缓坡草坪与低矮植被,与建筑二层出入口平缓衔接,形成进入、停留的过渡区域,人与自然在此共处。
The park landscape uses gently sloping lawns and low vegetation, smoothly connecting with the building’s second-floor entrance to create transitional zones for arrival and lingering, enabling coexistence between people and nature.
▼进入、停留的过渡区域,create transitional zones for arrival and lingering

屋檐延续至室外,形成遮蔽与光影变化的边界,回应不同天气条件下的使用需求,在视觉上延伸建筑的体量感,同时引发情感上共鸣。
The eaves extend outward, forming sheltered zones and modulating light and shadow, responding to usage needs under different weather conditions while visually extending the building’s massing and evoking emotional resonance.
▼屋檐延续至室外,the eaves extend outward

▼形成遮蔽与光影变化的边界,forming sheltered zones and modulating light and shadow

▼形成遮蔽与光影变化的边界,forming sheltered zones and modulating light and shadow

设计通过对地形、材料、空间界面与功能布局的控制,尝试建立一种与环境共生、与使用者行为互动的空间体系。
Through the control of topography, materials, spatial interfaces, and functional distribution, the design aims to establish a spatial system that coexists with its environment and interacts with user behavior.
▼与使用者行为互动的空间体系,establish a spatial system that coexists with its environment

▼与使用者行为互动的空间体系,establish a spatial system that coexists with its environment


人与空间一同被滋养
People and space are nurtured together
工作既生活
Work is life
独立办公室分布于空间两侧,内部根据使用者的行为习惯做出不同的组织——品茶、阅读、办公、会客等个性化生活功能区块……办公与生活,演绎出一种自在的韵律。
Individual offices are located on both sides of the space. The interiors are organized according to users’ habits—incorporating tea areas, reading spaces, workstations, and meeting zones, among other personalized functions. Work and life intertwine, creating a spontaneous rhythm.
▼独立办公室,Individual offices


▼办公与生活演绎出一种自在的韵律,work and life intertwine creating a spontaneous rhythm


不追求严格的功能分区,而是通过空间节点的布置与界面的处理,使办公与日常活动在同一场所中交替发生,形成多义、松散的使用状态。
Rather than strictly segregating functions, the arrangement relies on the placement of spatial nodes and the treatment of interfaces, allowing work and daily activities to occur interchangeably within the same setting. This results in a flexible, multi-use condition.
▼空间节点的布置,the placement of spatial nodes

▼开放办公区域,open office area

▼开放办公区域,open office area


▼形成多义、松散的使用状态,a flexible, multi-use condition



于是,二者的界限日渐模糊,这不仅回应了当代人对于办公的健康需求,更成为对生活态度最为深刻的诠释。
As a result, the boundary between the two gradually blurs. This approach not only responds to contemporary demands for a healthy workplace but also serves as a profound interpretation of an attitude toward life.
▼夜晚灯光下的办公室,the office under light at night


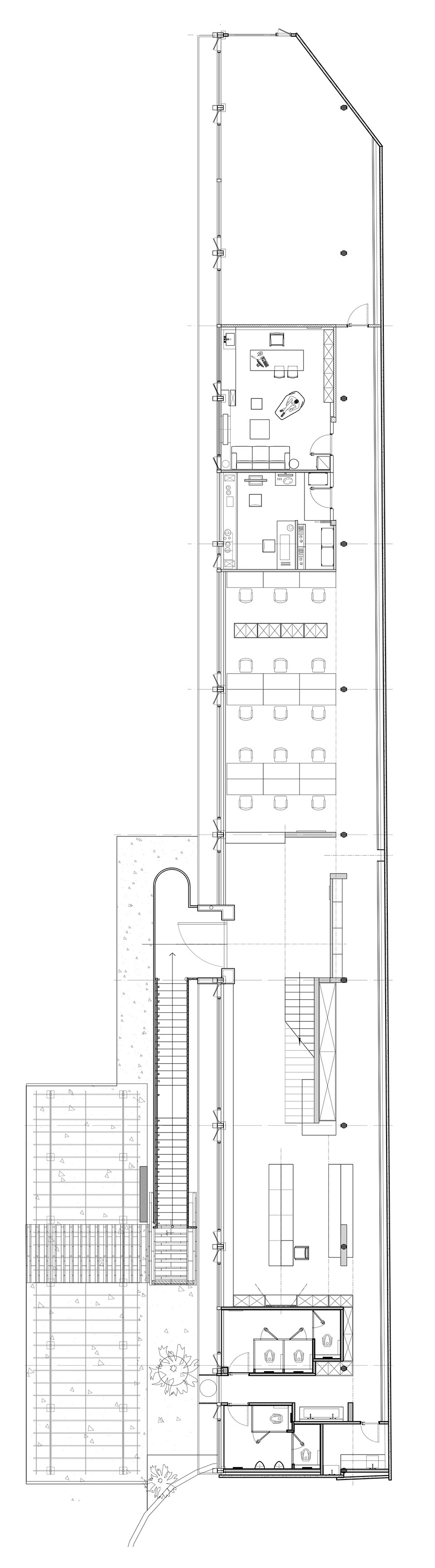
▼一层平面图,ground floor plan

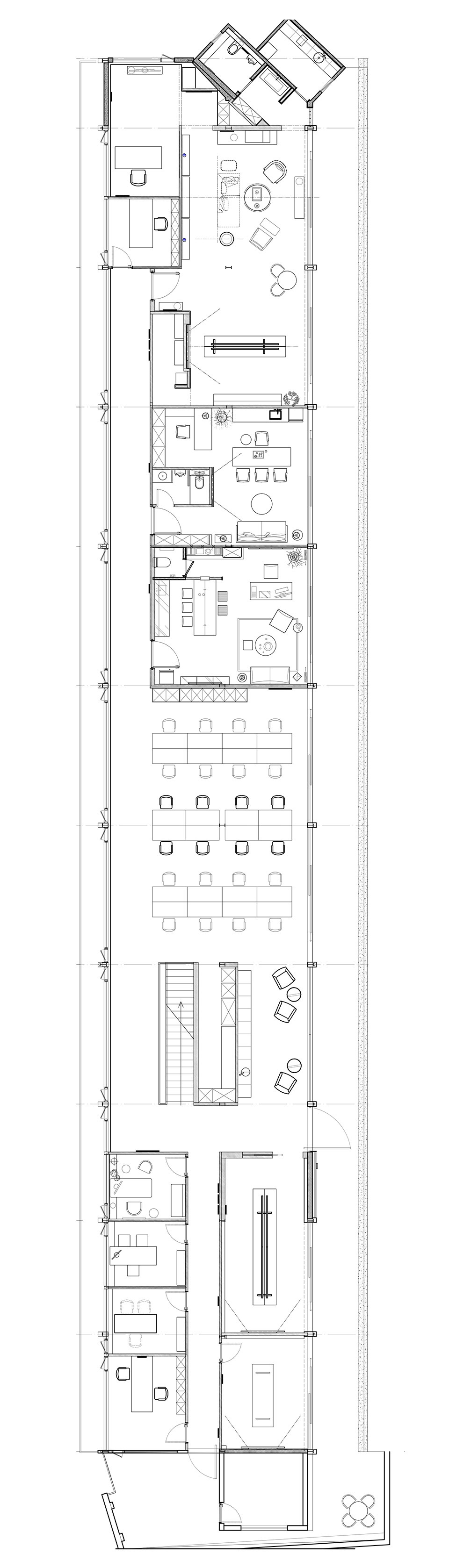
▼二层平面图,first floor plan















