国家网络安全人才与创新基地培训中心|信息综合楼(创新中心),湖北武汉 / 中信设计
信息综合楼坐落于国家网络安全人才与创新基地培训中心核心区,是园区对外展示的重要窗口。设计深度融合空间场所精神与周边环境特征,将建筑的开放性与公共性贯穿始终,实现功能与美学的有机统一。
Sited at the core of the Training Center in the National Cybersecurity Talent and Innovation Base, the Information Complex Building serves as a key external exhibition window of the park. Its design deeply integrates the genius loci with the surrounding context, embodies the building’s openness and publicity throughout, and achieves an organic unity of function and aesthetics.
▼园区整体鸟瞰,Overall View

▼入口鸟瞰,Overall View

▼南侧鸟瞰,Overall View

作为网安基地南北轴线的重要节点,建筑入口采用局部架空,使内部庭院与外部广场在同一条步行序列中连续展开;建筑由此从单一功能载体转化为可被抵达、停留与交流的公共场所。
As a key node on the north-south axis of the Cybersecurity Base, the building adopts partial entrance voids to connect the inner courtyard and outer square in a continuous pedestrian sequence, turning the building into an open public space for gathering and communication.
▼入口广场,Entrance Plaza

▼主入口,Main Entrance


▼主入口架空层,Stilt Floor

建筑主体由多个网络实验室单元构成。针对大空间、高自由度、低结构干扰的使用需求,设计将功能模块化为若干“方形盒子”,并以逐层搭接的方式组织体量。体块在竖向旋转交错,通过穿插与架空形成类似“孔明锁”的井格构成:既借喻互联网“多边交织、协作共生”的结构逻辑,也为园区建立清晰的识别性。
▼设计理念,Design Concept

▼形态生成,Exterior

Composed of multiple cyber lab units, the building adopts modular square volumes to satisfy demands for large spaces, high flexibility and low structural interference. Staggered and interlocked with voids and overhangs, the masses form a Lu Ban lock-style grid layout. It echoes the interconnected and collaborative logic of cyberspace, and shapes a unique architectural identity for the campus.
▼外观,Exterior



体量的多维穿插进一步生成一系列公共开放的立体空间。方形中庭开阔明亮,为室内引入自然光;外部边庭层次错落,形成可穿行、可停留、可观看的灰空间系统。这些不被单一功能限定的空间相互渗透、彼此联动,为人员交流与日常活动提供弹性承载,让技术属性强烈的建筑获得更具温度的人文界面。
▼模型剖切,Model Section


Multidimensional interwoven volumes create layered three-dimensional public spaces. Open square atriums introduce natural light, while staggered side courtyards form accessible grey spaces for passage, rest and viewing. Freed from single functional limits, these interpenetrating spaces support daily communication and activities, infusing the technology-oriented building with a warm humanistic vibe.
▼中庭,Atrium

▼边庭,Side Atrium


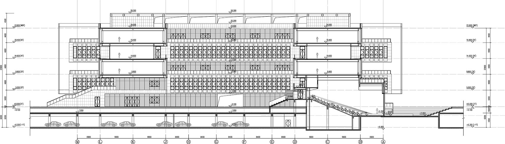
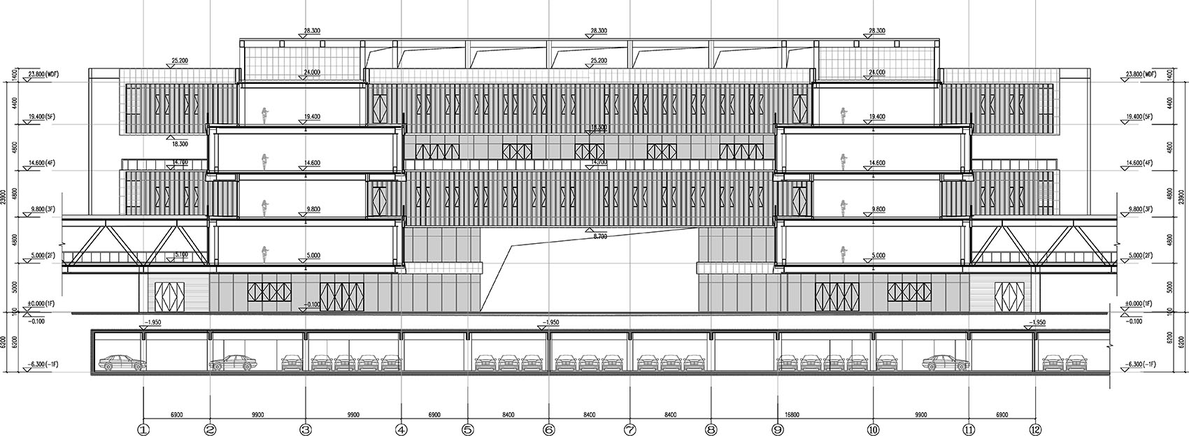
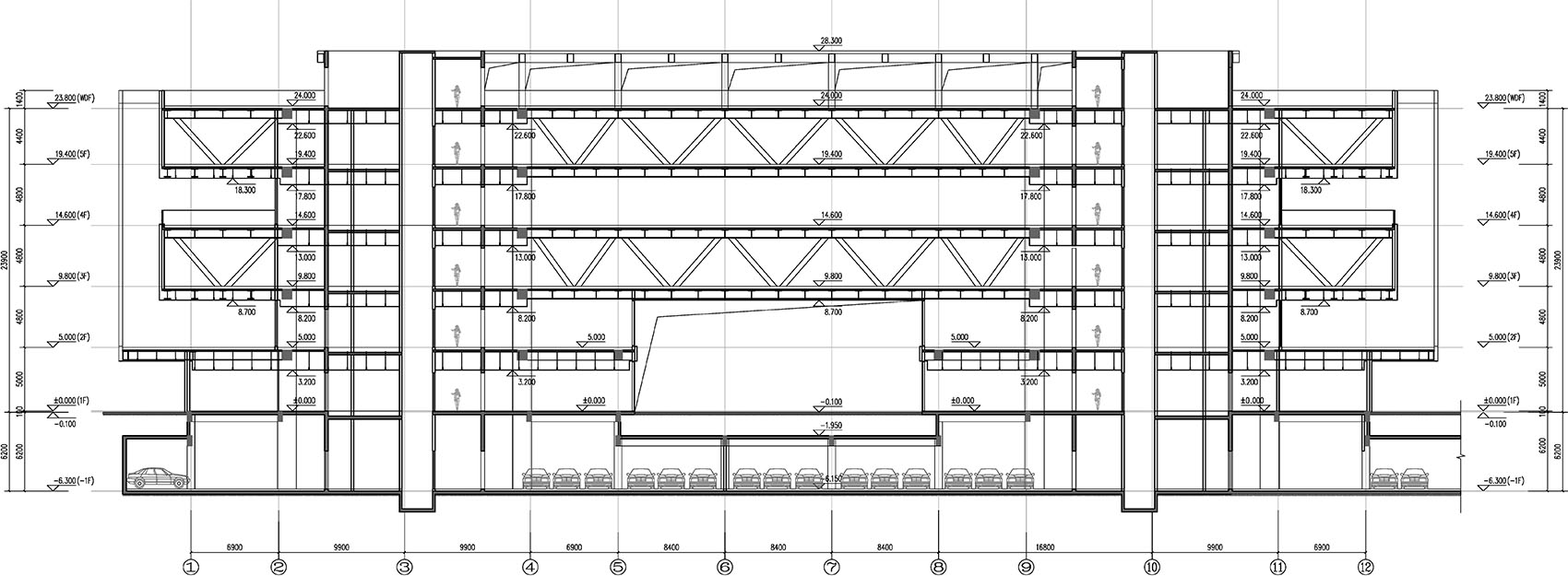
结构体系引入桥梁建构逻辑,采用“钢骨柱 + 钢桁架”的组合形式。钢桁架依功能与空间需求分楼层交叉布置,四角设置钢筋混凝土核心筒作为主要抗侧力单元;桁架单元每层对称组合、逐层旋转交叉,在减少额外支撑的同时充分利用层间架空空间,提升使用效率。
▼结构模型,Structural Model


▼施工过程,Construction Phase


Adopting bridge structural logic, the system combines steel composite columns with steel trusses. The trusses are cross-layer arranged to fit functional needs, with four-corner RC core cores resisting lateral forces. Symmetric and staggered truss layouts minimize auxiliary supports, optimize overhead spaces and enhance operational efficiency.
▼室内,Interior





外立面采用双层表皮:外层半透明金属网在遮阳与视线过渡之外,以抽象方式表达信息时代“滤波/织网”的意象;内层由大面落地玻璃与模块化铝板构成清晰界面。两层表皮叠合使建筑远观轻盈统一,近人尺度又呈现细密层次与可读的建构逻辑。
The facade adopts a double skin. The outer semi-transparent metal mesh offers shading and visual moderation, symbolizing filtering and networking in the digital age. The inner layer consists of full-height glass and modular aluminum panels. Layered skins create a light, unified overall appearance, with delicate textures and clear structural logic at close range.
▼金属网,Metal Mesh


信息综合楼将建筑形态、空间布局、结构体系与材质运用有机整合,相互关联、彼此驱动,既有效适配地域性气候特征,又提升了功能使用效率、促进了人际交往,全方位保障建筑品质。以真实纯粹的设计语言,助力其在国家网络安全人才与创新基地中发挥更大价值,彰显园区的科技实力与人文底蕴。
The Information Complex organically integrates architectural form, spatial layout, structural system and material application, with all elements interrelated and synergistic. It adapts to regional climate, boosts functional efficiency, facilitates interpersonal communication, and fully ensures architectural quality. With authentic design language, it empowers the Cybersecurity Base and highlights the park’s technological strength and humanistic heritage.
▼一层平面图,First Floor Plan

▼二层平面图,Second Floor Plan

▼三层平面图,Third Floor Plan

▼四层平面图,Fourth Floor Plan

▼五层平面图,Fifth Floor Plan

▼剖面图,Sections



Project name: Training Center of National Cybersecurity Talent and Innovation Base | Information Complex Building (Innovation Center)
Project type: Experimental & Training Building
Project location: Wuhan, Hubei
Gross built area: 36,667 ㎡
Design year:2019
Completion year:2023
Design: CITIC Design
Website: http://design.citic/
Contact e-mail: 445958180@qq.com
Leader designer: Ye Wei
Photo credit: ZY Architectural Photography, Zhao Yilong
Client: Wuhan Lingkonggang Investment Group Co., Ltd.
Materials: Metal, Glass, Stone













