财富支点,成都 / 中国建筑西南设计研究院有限公司 + NBBJ
财富支点位于成都中央商务区、锦江北岸,岷山饭店东侧,隔人民南路与锦江宾馆对望,建成后已成为人民南路沿线锦江宾馆区域地标性建筑。
The Wealth Fulcrum is located in the CBD of Chengdu. The Jinjiang River flows past the north side of the building, and Minshan Hotel is situated on its west side. Wealth Fulcrum faces Jinjiang Hotel across the South Section of Renmin Road. Since the building completion, it has become a real landmark of the Jinjiang Hotel area along Renmin Road.
▼区域节点,Landmark by Aerial View

▼沿滨江西路效果,View from West Section of Binjiang Road

▼沿人民南路看财富支点,View from South Section of Renmin Road

财富支点为一栋地下4层、地上39层的超高层办公建筑,建筑高度169.6米。设计建筑物裙房围绕场地内保留的古树旋转折叠上升,并逐步转为以玻璃幕墙为外皮材料的塔楼,以体现“光之媒介”的设计理念,反映业主单位传媒业务的内在性质。
The Wealth Fulcrum is a super high-rise office building with 39 floors above and 4 floors underground, The height of the building is 169.6 meters. In the design, the morphology of podium rotates, folds and rises around the preserved an ancient tree on the site, and gradually transitions into a tower form with the glass curtain wall. This design embodies the concept of “light as the Medium” and reflects the inherent nature of the owner’s media business.
▼财富支点整体效果,View of the Overall

▼沿盐道街效果,View from Yandao Street

设计以“会呼吸的书页庭院”为创意理念。在紧张的用地条件下保留原有古树,以此延续业主单位旧址办公场地的记忆脉络。裙房承载着场地的过往记忆;裙房庭院的开口面向古树,从古树旁延伸出的踏步盘旋而上,可到达裙房各层屋面的活动区域,设计者意在让这片场地的记忆得以延续传承。塔楼象征着未来,用全幕墙的通透形体模拟光的书页,暗示光是传媒行业的本质。
The design takes “A Breathing Courtyard of Flipping Pages” as its creative concept. Despite the tight site use conditions, the original ancient tree is preserved to continue the memory of the owner’s former office space. The podium represents the past; the opening area of the podium courtyard faces the ancient tree, and the staircase starting from the ancient tree winds upward, leading to the activity areas on the roof of each floor of the podium. The designer aims to maintain the continuity of place memories here. The tower represents the future; its full glass curtain wall simulates “pages of light”, implying that light is the essence of media.
▼北侧看财富支点,View from North

塔楼采用雕刻的手法模拟开合的书页,整体材料选用玻璃幕墙寓意“光之媒介”,传递业主单位(四川出版集团,现名四川文化产业投资集团)未来发展的无限可能。
The tower adopts a sculptural approach to simulate the opening book pages. The glass curtain wall material reflects the design concept of “Light as the Medium”. This concept means the infinite possibilities for the future development of the owner – Sichuan Publishing Group (now renamed Sichuan Cultural Industry Investment Group).
▼塔楼中高区幕墙效果,View of the Upper Floors Curtain Wall

裙房通过对体量的折叠形成了五级平台供公众使用,各级平台在楼层的过渡处设置有立体绿化,可将绿色引入建筑;同时,裙房内部也因体量的折叠形成了一个向内的庭院,其开口朝向场地中保留的古树;外部的立体绿化和内部的向绿庭院共同营造了一个将“绿色循环”的特色空间路径,丰富建筑体量的同时也营造出极具雕塑感和现代艺术气息的室内外空间。
Through the folding of its volume, the podium forms five levels of platforms for public use. Green plants have been planted in the transition areas of the platform to enrich the office environment. Meanwhile, the folding of the podium’s volume also creates an inward-facing courtyard inside, whose opening also faces the preserved ancient tree. The vertical greenery on the exterior of the podium and the internal courtyard facing the greenery together, create a special space experience of ‘green cycle.’ This design not only enriches the building’s massing but also creates indoor and outdoor spaces with a sense of sculpture and a modern artistic atmosphere.
▼庭院及裙房鸟瞰效果,Aerial View of the Courtyard and Podium

一体化设计是项目的突出特色。场地内地下车库出入口、出地面疏散楼梯间、风井、泄爆口等地面构筑物均进行了造型一体化设计,在紧张的场地中将细碎体量整合,形成雕塑化的艺术体块。裙房公共空间的室内装饰也结合建筑造型进行一体化设计,内外造型雕塑体块穿插,在幕墙内外呼应衔接,过渡顺畅;光、影及人造室内光源定制化设计,打造出完美的异型公共空间。
▼地面构筑物一体化设计,Integrated Design of Ground Structures

▼首层大堂,View of the Lobby

▼中庭效果,View of the Atrium Space

Integrated design is a prominent feature of the project. The structures on the site, such as the underground garage ramp, the evacuation stairwells, air shafts, and explosion vents, have all undergone integrated shape design. This integrates the fragmented volumes in the tight site to form sculptural artistic blocks. The interior decoration of the podium’s public spaces is also designed in an integrated manner in combination with the building’s shape. The sculptural blocks of the internal and external shapes intersperse, echoing and connecting inside and outside the glass curtain wall with a smooth transition. The customized design of light, shadow, and artificial indoor light sources creates a perfect “heteromorphic” public space.
▼中庭仰视,Upward View of the Atrium from Ground Floor

▼中庭空间效,View of the Atrium Space

▼中庭空间自然采光,Atrium Space Daylighting

财富支点的幕墙内发光装饰玻璃肋系统于2017年11月获得国家发明专利。财富支点大厦于2020年9月获LEED设计铂金认证(核心筒与建筑表皮);2022年获评成都市国标超甲级楼宇。
▼财富支点获奖证书,
Award Certificate of Wealth Fulcrum

The internally luminous decorative glass fin system of Wealth Fulcrum was awarded the National Invention Patent in November 2017.The Wealth Fulcrum obtained the LEED Platinum V4 Certification (Leed Building Design and Construction: Core and Shell Development) in September 2020. In 2022, it was also rated as a Super Grade A Office Building (Chengdu Municipal Standard).
▼石材幕墙及玻璃幕墙,View of Curtain Wall

▼玻璃幕墙及彩釉翼板,View of Glass Curtain Wall and Enamelled Fins

▼总平面图,Master plan

▼地下一层平面图,Basement level 1 floor plan

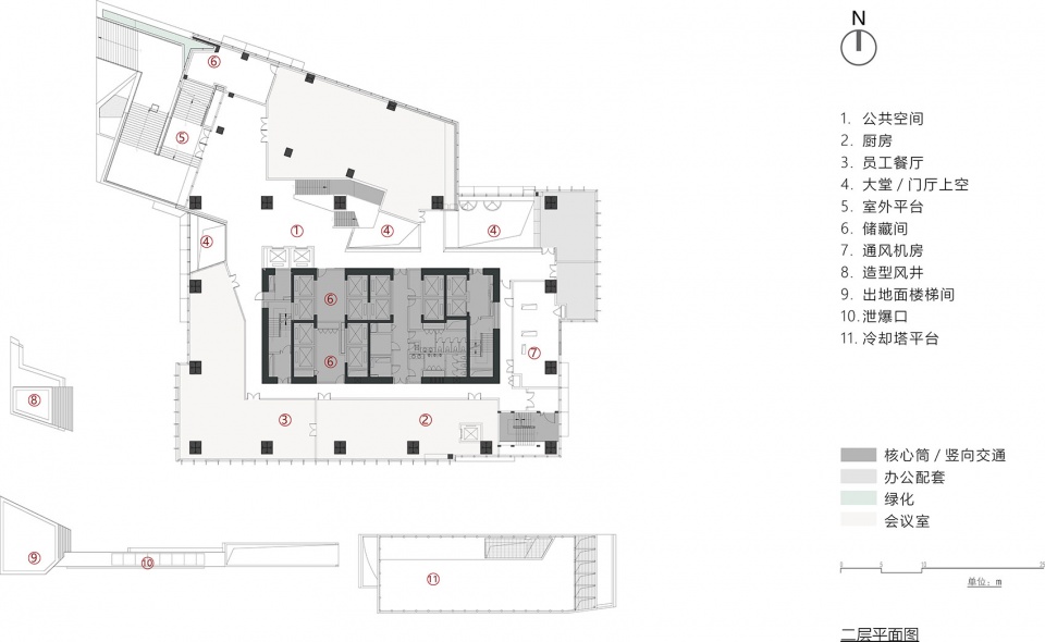
▼一、二层平面,1st and 2nd floor plan


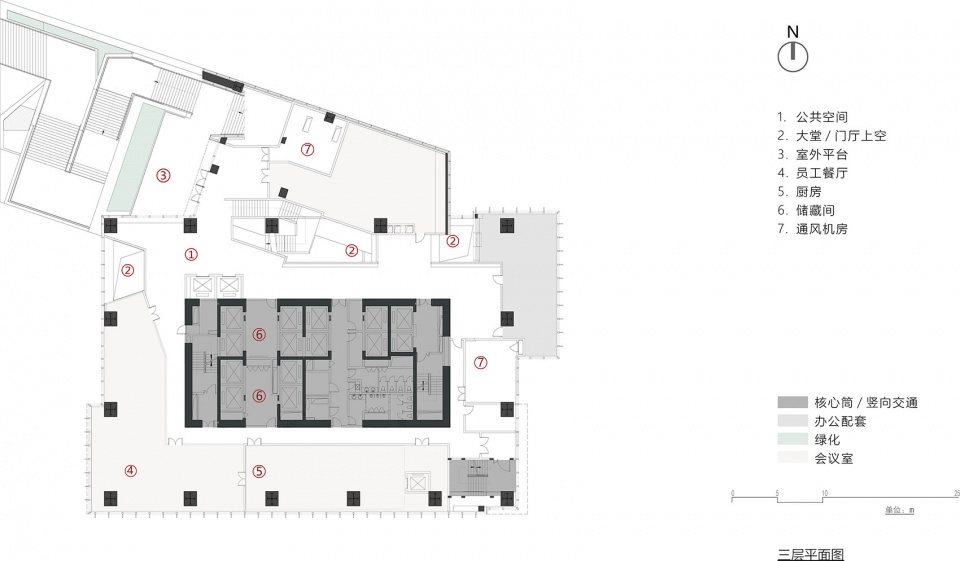
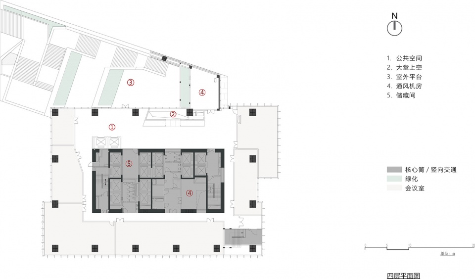
▼三、四层平面,3rd and 4th floor plan


▼标准层平面,Typical floor plan

▼立面图,Elevation

▼剖面图,Section

Project Name: WEALTH FULCRUM
Location: CHENGDU, CHINA
Scale: 86,975 square metres, 169.6m
Design Period: AUG2013~APR2018,
Clients: SICHUAN CULTURE INDUSTRY INVESTMENT GROUP(Previous name:SICHUAN PUBLISHING GROUP)
Design: CSWADI, NBBJ
Design leader: GU JINYUAN, NANCY YIN
Architecture Team: JAY SEIBENMORGEN, GU JINYUAN, ZHOU FANG, NANCY YIN, DOM LIO, LUIS PADRON, YIN BO, DU LI, HUANG SHUANGSHUANG, ZOU GAOJIN, LI HUI
©Images: ARCH-EXIST, QIAN SHEN PHOTOGRAPHY, KONG STUDIO, GU JINYUAN














