清华大学南区地下学生活动中心,北京/室内
南区地下学生活动中心项目是在刚竣工完成的清华大学南区学生宿舍的地下进行改造,为学生提供包括读书、会友、健身、讲座、画展、独处等功能。我们想提供一个充满阳光的、能够加强人和自然的关联的场所,一个轻松自在的、感受当下的学生活动中心。这里将连同宿舍区首层的书店、便利店、复印店等一起,形成清华校园的学生生活大社区。
The project of underground student activity center in the Southern District is a newly completed underground renovation of the student dormitory in the Southern District of Tsinghua University. It can provide students with functions including reading, meeting friends, fitness, lectures, painting exhibitions, staying alone and so on. We want to provide a student activity center full of sunshine, which can strengthen the relationship between human and nature, so that students can enjoy the more present with ease and cozy. Combining with bookstores, convenience stores and copy shops on the first floor of the dormitory area, it will form a large community of student life in Tsinghua campus.
▼项目概览:中庭,preview: atrium
▼楼梯,staircase
现有的空间状态粗糙混乱、平淡乏味,各种建筑设施混乱无序。由于工期和预算的限制,业主希望尽快完成设计并指导施工。在严苛的设计要求和周期下,为了实现通过建筑加强人和自然关联的愿望,设计采用了小元素的建筑语言,用柔软、均质化的空间界面来回应项目的挑战。
Existing space state is not only rough and chaotic, but also plain and boring, while various construction facilities are out of place. Due to the limitation of construction period and budget, the owner hopes to complete the design as soon as possible and guide the construction. Under the strict design requirements and cycle, in order to realize the desire of strengthening the relationship between human and nature based on the building, this design adopts the architectural language of small elements, and adopts soft and homogeneous spatial interface to meet the challenges of this project.
▼改造前的入口和中庭,entrance and atrium before renovation
消隐体量 | Hidden volume
通过插入小元素的建筑语言,消解建筑空间的体量感,调节人与空间的关系。大自然本身包括山川河流、动物植物都是由小元素组成。我们从自然的形成逻辑获得灵感,运用小元素,让空间变得更加低调、丰富、多层次,提供宜人舒适的空间感受。通过调节小元素之间的差异性和关联性,让建筑空间更灵活多变,更容易适应使用功能的不断变化,在改造项目中更适合应对复杂的现状条件。
Dispelling the sense of volume of architectural space and regulating the relationship between people and space based on inserting the architectural language of small elements. Nature itself includes mountains, rivers, animals and plants, which are composed of small elements. We obtain inspiration from the formation logic of nature and apply small elements to make the space more low-key, abundant and multi-level, so as to provide pleasant and comfortable space feeling. Through adjusting the difference and correlation between small elements, the building space will be more flexible and changeable, which is easier to adapt to continuous change of using function. In addition, it is more suitable to deal with complex current condition in the reconstruction project.
▼设计示意,diagram
树林之光 | Light of woods
清华园里树木繁茂,骑车穿过主干道的杨树林荫道或者二校门前的银杏树大道的时候,微风吹拂时透过连绵树荫产生的斑驳摇曳的光,它能营造树下奇妙生动的氛围,短暂且瞬息万变。黑泽明酷爱这种光线,把它作为重要须事线索运用在多部电影中。我们采用柔软的、透明的,而不是冰冷坚硬的界面,将自然引入建筑之中。那些镂空的、格栅的、百叶的界面,让光穿透这些界面留下斑驳柔和的影子,而且随着季节和一天中时间的推移产生不同的效果,短暂且瞬息万变,使人身处地下也可以感知时光的流逝和气候的冷暖,感受当下。
There are tons of trees in Tsinghua garden. When cycling through the poplar avenue on the main road or the ginkgo avenue in front of the second gate, the breeze blows, while the mottled and flickering light produced by the continuous shade of trees will create fancy and vivid atmosphere, which is transient and changeable. Kurosawa deeply favors such light and applies it as an important clue in lots of films. We adopt soft and transparent instead of cold and hard interfaces to introduce nature into architecture. Those hollow, grilled, blinded interfaces enable the light to penetrate these interfaces, leaving mottled and soft shadows. Moreover, with the passage of season and time of the day, it will bring different effects, transient and changeable, so that they can also feel the passage of time and the climate and enjoy the present even in the underground.
▼入口,entrance
▼格栅界面引入自然光线,the grilled interfaces enable light to penetrate
建成后的清华南区地下学生活动中心,用谦虚、轻松、透明、小而美的方式,成为学校师生最受欢迎的交往和活动空间之一。
The completed underground student activity center in the South District of Tsinghua University will become one of the most popular communication and activity spaces for teachers and students with its modest, relaxed, transparent, small and gorgeous way.
▼带天光的走廊,corridor with sunlight
▼休息区,public area
▼休息角,seating corner
▼报告厅,lecture hall
▼沙龙,salon
▼会议室,meeting room
▼公共空间模型,public area model
▼南区地下-夹层平面图,mezzanine plan
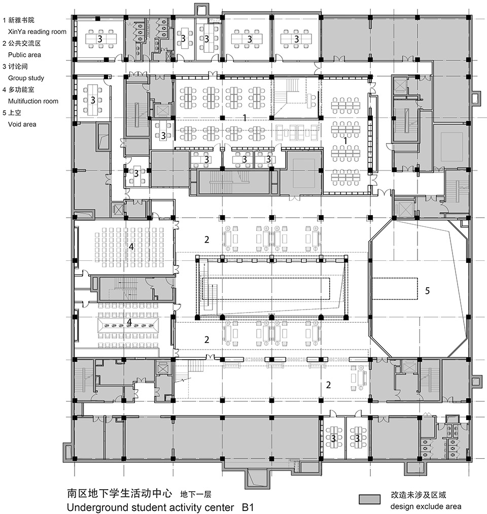
▼南区地下-B1平面图,floor plan B1
▼南区地下-B2平面图,floor plan B2
▼立面图,elevations
▼剖面图,sections
项目信息
项目名称:清华大学南区地下学生活动中心
设计团队:姜娓娓、田雨、王霄然、韦紫昭、董可人(实习)
设计公司:清华大学建筑设计研究院
项目地址:北京
项目规模:4000㎡
Project information
Project Name: Tsinghua University south district underground student activity center
Design team: Jiang Weiwei, Tian Yu, Wang Xiaoran, Wei zizhao, Dong Keren (Internship)
Design company: Architectural Design Institute of Tsinghua University
Project address: Beijing
Project scale: 4000 ㎡
































