西安绿地能源艺术中心,西安 / 建筑
该项目的设计希望通过形式的转化,揭示周围文脉的本质。将建筑看成是与其周围环境的一种对话,这种环境既指的是当下的物理环境,也是一个历史的连续统一体。从城市发展的角度看,六朝古都的西安正不断历经时代的变革,打破传统城墙围合,重新建立城市发展新秩序。
The project is designed to reveal the essence of surrounding context by changing forms. The building is seen as a dialogue with surrounding environment. Such environment refers to both current physical environment and historical unity. From the perspective of urban development, Xi’an, an ancient capital of the Six Dynasties, is experiencing constant changes by breaking traditional enclosed city wall and rebuilding new order of urban development.
▼项目鸟瞰,aerial view of the project
项目位于西安高速发展的西咸新区规划区,地块紧邻西咸大轴线,位于能源园的主要轴线核心节点。场地为较细长的长方形,两面邻路,东侧紧邻城市绿化带。在延续能源园轴线的同时,建筑与环境融为一体,与西咸大轴线相呼应,激发场地的历史空间活力,最终以“城市客厅”的姿态迎接市民。
The project is located at the rapidly-growing Xixian New Area of Xi’an. The land sits near the major axis of Xixian and lies at the central node of the Energy Park’s major axis. With a narrow and long rectangular form, the site is close to roads on both sides and urban greenbelt in the east. Meanwhile, the building and environment fit harmoniously with each other, which dovetails with the major axis of Xixian, stimulates the vitality of historical space and becomes a “city parlor” for citizens.
▼项目俯视图, top view of the project
建筑形态与构成|Architectural form and composition
引用马列维奇抽象画中几何体交错叠加的组合方式以及长方形场地限制,最终形成以三个基本长方形交错叠加组合的形体舒展地坐落在场地中。南北向三个大小不同、交错布置的体块打破了场地的狭长感。中间体块为建筑的主入口部分,位于南北两个长方形体块偏居中的位置减少空间狭长感,增强建筑的功能性。
Interwoven and superposed geometric objects of Malevich’s abstract art are used along with the rectangular site to become a form consisting of three interwoven and superposed rectangles, which lies snugly at the site. Standing in north-south direction, the three blocks in different sizes and interwoven arrangement make the site look less narrow. The block in the middle is the main entrance of the building, and the two rectangular blocks in the south and north are arranged near the middle position to make the space look wider and enhance the functionality of the building.
▼引用马列维奇抽象画中几何体交错叠加的组合方式,interwoven and superposed geometric objects of Malevich’s abstract art
▼建筑体块生成,block analysis
在东侧主入口处,北侧体块的大露台与其下方的水面形成进退有序的层次空间,营造意境。红褐色折形坡道可将人流直接引向二层,增加了空间趣味性的同时,丰富立面构成。
At the eastern main entrance, the large terrace of the northern block and the water beneath it make up a layered and orderly space. The reddish brown zigzag-shaped slope leads people to the second floor, which adds interest to the space and enriches the façade.
▼北侧立面,north section
▼立面设计继续延续马列维奇的抽象画,the façade design continues to adopt Malevich’s abstract art
建筑立面虚实结合,以玻璃的“虚”,结合白麻石材的“实”。立面设计继续延续马列维奇的抽象画,以白麻石材为“画板”,玻璃窗为“几何体”,部分几何体延伸到屋顶,窗框赋以红、黄、蓝三原色,构成一幅立体“至上主义”抽象画。
The façade features virtual-real combination. That is, “virtual” glass is combined with “real” white granite. The façade design continues to adopt Malevich’s abstract art by using white granite as the “drawing board” and glass window as the “geometry” , and partial geometry extends to the roof. The window frame is decorated in three colors (red, yellow and blue) to present a three-dimensional abstract painting of “suprematism”.
“一体化”的空间体验|“Integrated” spatial experience
室内空间以“至上主义”为宗旨,打造实用、灵活、一体的趣味空间。
The indoor space follows the principle of “suprematism” to create practical, flexible and integrated space.
▼西侧入口,entrance
▼二层悬挑的特色大露台, the peculiar terrace on the second floor
▼悬挑下的室外休闲空间,Outdoor leisure space under the cantilever
简约的建筑形体与内部简约的空间形态相辅相成,两者共同构成“一体化”的建筑空间序列。主入口处的垂拔空间凸显了空间感。南侧的洽谈区域为灵活的全开敞空间,在一定程度上服务于功能主义并使之切实可行。这种通透的空间通过构件进行功能性分割,打造了小空间之间相通又不相互影响的可变模式,既符合“一体化”的宗旨,又体现了场所精神。
The simple architectural form and internal simple spatial form are complementary, as both of them constitute an “integrated” architectural spatial sequence. The open space at the main entrance highlights a sense of spaciousness. The southern discussion area is a flexible and open space, which serves the purpose of functionalism to some extent. Functional separation is carried out for the open space through components, which helps create connected yet independent small spaces. It sticks to the “integrated” principle and shows the spirit of place.
▼内部,inside
开敞式书吧与二层悬挑的特色大露台、红褐色折形坡道相连相通,使得室内外空间相通。悬挑的大露台同样采用拾级而上的台阶式,以达到不同的空间体验。
The open book bar is connected with the peculiar terrace on the second floor and reddish brown zigzag-shaped slope, which allows external and internal space to get connected. The suspended terrace features stepped design to achieve extraordinary spatial experience.
▼开敞式书吧,open book bar
▼露台,terrace
材料节点|Materials
项目以白麻石材为主,底色为灰白,散布灰麻点。远看时仅能看到石材的灰白色底色,灰麻点随着距离的缩短慢慢显现,增加细节与质感。
White granite is mainly used in the project, and its background color is greyish white dotted with grey spots. Only grayish white background can be seen in the distance, and grey spots gradually appear as the distance decreases, which enhances the details and texture.
▼项目以白麻石材为主,底色为灰白,White granite is mainly used in the project, and its background color is greyish
项目中的折形坡道及部分立面采用了锈钢板——锈化处理的钢板。生锈的初期呈现黄色,随着生锈进程的推移,最后在红褐色稳定下来。其寿命能达到普通钢的5—8倍,具有环保、免涂装、维护简单的特点,这些慢慢锈化的耐候钢最终会披上金黄色的外衣,温暖阳光的色调大大增强了人们的亲切感,提升了场所精神。
“Rusty steel plates” with rust stabilization treatment are used for the zigzag-shaped slope and partial façade. Rusty steel plates look yellow at first and become reddish brown finally, as rust continues to grow. They are 5-8 times the working life of common steel; besides, they are environmentally-friendly, coating-free and maintenance-friendly. These weathering resistant steel will turn golden yellow in the end, and such warm color greatly increases affinity and boosts the spirit of place.
▼项目中的折形坡道及部分立面采用了锈钢板,“rusty steel plates” are used for the zigzag-shaped slope and partial façade
▼露台外景, see the terrace from outside
▼北侧立面夜景,night view of the façade
▼剖透视,sectional perspective
▼爆炸图,key section
▼总平面图,site plan
▼一层平面图,1F plan
▼二层平面图,2F plan
▼立面图,section
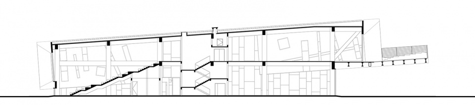
▼剖面图,elevation
项目名称 | 西安绿地能源艺术中心
项目位置 | 陕西省咸阳市西咸新区
业主单位 | 绿地西北事业部
业主团队 | 王萌 徐妙荣 陈铭宇 张思敏
建筑设计 | 上海日清建筑设计有限公司
设计总负责 | 宋照青
设计团队 | 李晟 刘振睿 李颖超 张润阳 于明明
施工图设计 | 深圳大学建筑设计研究院有限公司
景观设计 | 上海日清景观设计有限公司
景观团队 | 章翼 张晔 向阳 杨丹丹 魏猛 刘明空
室内设计 | 上海集艾室内设计有限公司
建筑面积 | 2200㎡
建筑摄影 | 是然建筑摄影 Schranimage
Name | Xi’an Greenland Energy Art Center
Location丨Xixian New Area, Xianyang City, Shaanxi Province
Owner丨 Greenland
Owner’s design team丨Wang Meng Xu Miaorong, Chen Mingyu, Zhang Simin
Architectural design丨Lacime Architects
Chief designers丨Song Zhaoqing
Design team丨Li Sheng, Liu Zhenrui, Li Yingchao, Zhang Runyang, Yu Mingming
Construction drawing design丨The Institute if architecture design & research, Shenzhen university
Landscape design丨 Lacime landspace Design
Landspace design team | Zhang Yi, Zhang Ye, Xiang Yang, Yang Dandan, Wei Meng, Liu Mingkong
Interior design | G-Art
Floor area丨2200m²
Photograph丨Schran Images










































