世茂 · 浪花艺术馆,天津 / 建筑
项目位于天津东部沿海的滨海新区,地处环渤海经济圈的中心地带,周边有天津航母主题公园和海洋博物馆以及滨海妈祖文化园,是一个集娱乐放松,寓教于乐及文化于一体的多元化生活地块,临海的优越地理环境使其呈现出一个独特的展示和体验区域。
Located at Binhai New Area on the eastern coast of Tianjin, the project is in the heart of the Bohai Economic Rim and close to Tianjin Binhai Aircraft Carrier Theme Park and Binhai Matsu Cultural Park. It is a diversified land that integrates entertainment, edutainment and culture. Its excellent geographical conditions make it a unique area for exhibition and experience.
▼项目远景鸟瞰,distance aerial view of the project
整个湾区的规划“以点、线、面为基本逻辑,构建人、海、天之间的当代城市空间序列”。建筑以浪花为意象,切入“水”的主题,从海浪场景中抽取“水滴和浪花”的概念,造化海上镜像。浪花作为原型生成建筑的整体特征,形成了建筑和自然之间的对话体系,大海与土地的交融之处,建筑具备了新的符号意义。
The entire bay area planning follows the basic logic of “point, line and plane to create contemporary urban spatial sequence of man, sea and sky”. Inspired by the idea of wave, the building focuses on the theme of “water”, extracts the concept of “water drop and wave” from waves and creates an image on the sea. The whole building resembles the wave to create a dialogue between the building and nature, and the building has become a symbolic existence where the sea and the earth converge.
▼设计草图,design sketch
▼形态生成,form generation
整个展示区设计包括三大功能板块:浪花艺术馆、户外阳光剧场和公共活动区域,每个区域都和周边休闲沙滩相连接,建筑从沙丘和礁石层面分离出来,一种悬浮的空间结构把看海的体验贯穿于一条完整的空间步调之中。
The entire exhibition area is designed with three major functional areas: the Wave (art museum), outdoor theater and public space. Each area is connected with surrounding beach. The building is separated from the sand dune and reef, looking like a floating space structure above the sea.
▼总平面图,展示区由不同功能板块组成,master plan, the exhibition area is composed of different functional areas
▼浪花艺术馆远景鸟瞰,与其他功能区域通过弯曲的步道相连
distanced view of the wave, connected with other areas by curved walkways
▼项目位于城市和海湾之间,project located between the city and the bay
▼从阳光剧场看向艺术馆,view to the art museum from the Sunshine Amphitheater
建筑在交接处还设置了三个挑向大海的户外露台,这个区域是建筑的额外空间,在只有大自然的声音中,人的感官完全打开和放松。在这个空间里,人,海,空气和阳光之间形成更为紧密的一种关系。
The junction of the building also comes with three outdoor terraces overlooking the sea. This area is an extra space of the building. People may feel completely relaxed when only the sounds of nature are heard. In this space, people, sea, air and the sunshine establish a closer connection.
▼艺术馆设有三个户外露台,three outdoor terraces in the art museum
▼从露台上可以看到不同方向的景色,different views could be seen from the terraces
建筑的表皮运用一体化参数化设计,鱼鳞片状的铝板微妙的变化排布,使外立面从各个角度反射不同时刻的阳光,建筑周围的水池对光线的漫反射,再次投射到鳞片状的立面上,使建筑呈现出丰富的光影变化。建筑30多米的无柱空间巧妙的运用了薄壳结构得以实现,空间造型上向上伸展分为三瓣,互相平衡各方向的受力分担。
An integrated parametric design is used for the skin of the building. The subtle arrangement of the scale-shaped aluminum plate allows the façade to reflect the sunlight from different angles in different periods of time. The pool around the building casts diffuse light onto the scale-shaped façade to produce a gorgeous look. The column-free space of the 30-plus-meter tall building is achieved by the thin shell structure, as it goes upwards to split into three sections that balance the stress in each direction.
▼立面鳞片细部,closer view to the scales on the facade
鱼鳞片状的铝板运用BIM技术,一万三千多片不同规格的铝板在外立面做各种转变贴合。实现了富有韵律变化的双向螺旋而上的肌理感。虚实相间的立面,同时兼顾了高效的隔热性能和均匀的采光。所有的机电设备隐匿于地下,屋顶和建筑外表皮形成连续的一体化设计,纯粹的形体在技术的全方位配合下得以实现。
BIM technology is applied to the scale-shaped aluminum plate, which enables more than 13 thousand pieces of aluminum plate to fit properly on the façade and delivers a rhythmical upward spiral texture. The real-virtual façade has achieved perfect balance in efficient heat insulation and appropriate daylighting. All electromechanical devices are concealed underground, and the roof and building skin make up an integrated design. The pure form is realized with the help of technology.
▼结构分解图,exploded axonometric of the structure
室内从天花的织物、印花玻璃屏风到外立面的通高透明落地玻璃以及远方的云雾,抽象演绎了“水” 这个自然界中最基本的元素表现出各个不同状态,营造出了均匀柔和的文化氛围。一层大厅是一个圆形的几何形空间, 光束从压暗的空间上方直泻而下。大堂用水幕和不锈钢结合的设计,从视觉到触觉营造深海静谧的感官体验。二层透光面采用轻盈的大片玻璃幕墙,最高的玻璃高达8米,以此引入自然光和海景,消除了将内外分隔开来的构建。
Inside the building, from the ceiling fabric, patterned glass screen to transparent floor-to-ceiling window, they all work to interpret “water”in different states that is the most common element in nature and create a balanced and soft cultural ambience. The first-floor hall is a round space, and light beams begin to stream down from the dark space. The lobby is designed with a mixture of water curtain and stainless steel, which offers a quiet visual-tactile experience. The second-floor illuminating surface is installed with light large glass curtain wall, and the highest glass is up to 8 meters, which helps bring in natural light and sea view and weaken the construction separating indoor and outdoor spaces.
▼采光中庭,light atrium
▼从中庭看向书吧,view to the book bar from the atrium
▼室内展示空间,interior exhibition space
▼透过落地窗可以欣赏完整的室外风景,panoramic view through the French windows
▼天花织物营造柔和的氛围,ceiling fabric creating soft atmosphere
▼一层平面图,first floor plan
▼二层平面图,second floor plan
▼三层平面图,third floor plan
▼立面图,elevations
▼剖面图,sections
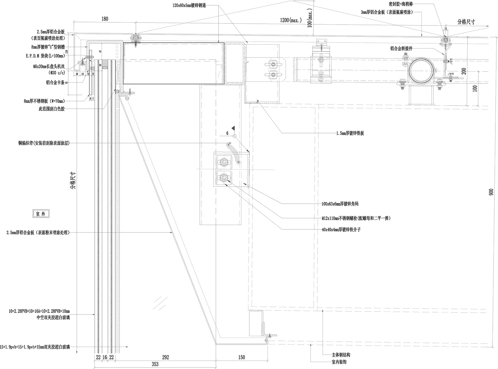
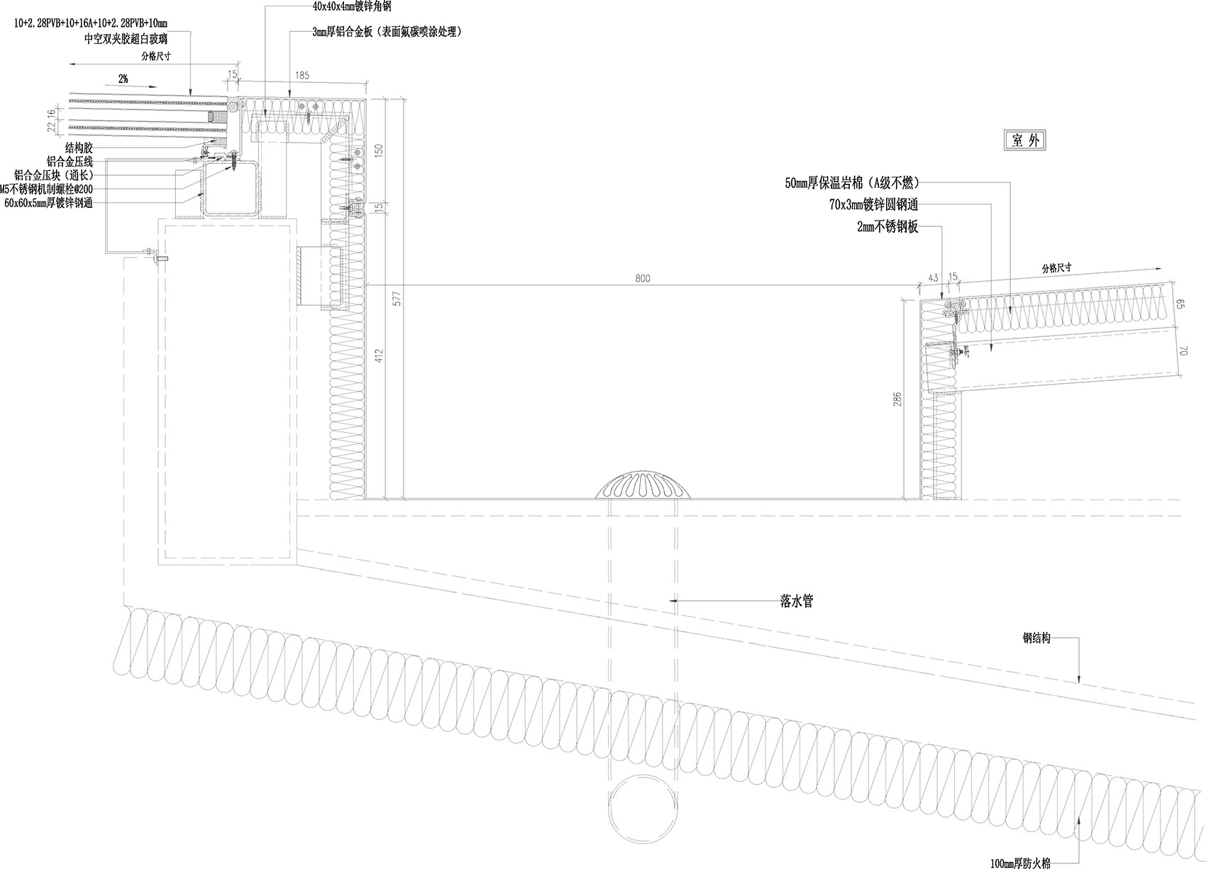
▼细部,details
项目名称:世茂天津 · 浪花艺术馆
项目位置:天津市滨海新区中心渔港经济区
项目功能:艺术、展示
业主单位:世茂地产控股
建筑设计:北京日清建筑设计
设计总负责:宋照方
规划团队:上海日清 | 潘小波、吴曙光、任悦、骆佳、刘文峰、冯波、祝天鹏、魏梦柔、杨得贺、沈晨云
艺术馆示范区团队:吴曙光、潘培成、徐涛、张宸得、董梁臣、屠雨萱
施工图设计:天津市天友建筑设计股份有限公司
结构设计:袁鑫工程顾问(上海)事务所
景观设计:天津东林筑景景观规划设计有限公司
室内设计:上海璧煜环境艺术设计事务所
幕墙设计:上海恒利益建装潢工程有限公司
BIM设计:北京互联立方技术服务有限公司
结构主体施工:天元建设集团有限公司
幕墙施工:北京天成英良石材有限公司
建筑面积:3563㎡
用地面积:31471㎡
建筑摄影:行知影像
Project Name: Shimao ·The Wave
Location : Tianjin Binhai New Area Central Fishing Port economic Zone
Category : exhibition
Owner : Shimao
Architectural design : Lacime Architects Beijing
Lead Architects: Song zhaofang
Design team:Lacime Architects(shanghai):Pan Xiaobo, Wu Shuguang, Ren Yue, Luo Jia, Liu Wenfeng, Feng Bo, Zhu Tianpeng, Wei Mengrou, Yang Dehe, Shen Chenyun
Gallery Design :Wu Shuguang, PAN Peicheng, Xu Tao, ZHANG Chende, Dong Liangchen, Tu Yuxuan
Construction design:Tianjin Tianyou Architectural Design Co. LTD
Structure design: Yuan Xin Engineering Consultant (Shanghai) Office
Landspace design : Tianjin Donglin Zhujing Landscape Planning and Design Co. LTD
Interior design: Shanghai Biyu Environmental Art Design Office
Curtain wall design: Shanghai Hengli Construction decoration Engineering Co., LTD
BIM design: Beijing Interconnection Cube Technology Service Co. LTD
Structure construction: Tianyuan Construction Group Co. LTD
Curtain wall construction: Beijing Tiancheng Yingliang Stone Co. LTD
Gross Built Area: 3563㎡
Site area: 31471㎡
Photo credits: CAAI











































