南通圆融嘉悦汇,南通/建筑
“最好的建筑是这样的,我们深处在其中,却不知道自然在那里终了,艺术在那里开始。” ——林语堂
"The best architecture is like this. We are deep in it, but we don't know where nature ends and where art begins."—— Lin Yutang
项目地处南通市北高新区,长泰路与永兴大道交叉路口,紧邻在建地铁一号线永兴大道站。路网覆盖完善,地块位置非常优越,属于规划的核心地段。
The project is located in the north high tech Zone of Nantong City, at the intersection of Changtai road and Yongxing Avenue, close to Yongxing Avenue station of Metro Line 1 under construction. The road network is well covered and the location of the plot is very superior, which belongs to the core section of the planning.

目前地块周边以住宅地块为主,是典型的大型居住社区,已建的商业也是传统底商形式,分散且体验感差。在此情形下,社区型商业综合体的建成,可以满足周边社区居民大部分的生活需求。同时,社区居民的参与也会让商业综合体成为周边居民停留,交往,消费的主要生活场所。让建筑有机生长,并提供多样化的生活服务场景成为该建筑追求的使命。

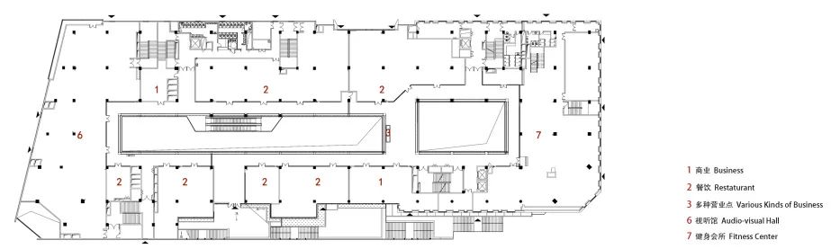
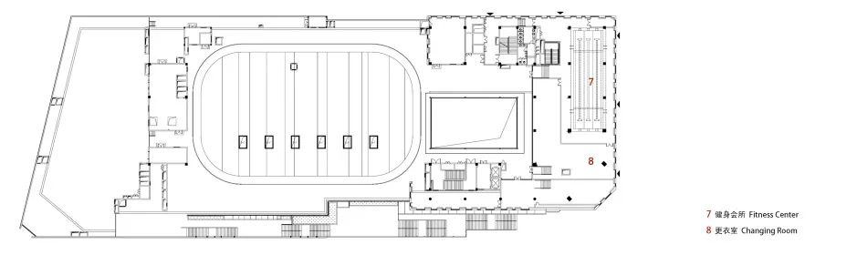
项目总建筑面积约为3.8万平方米,在有限用地内,充分利用城市绿化带与屋顶花园的串联,将立体公园概念附加于商业功能中满足休闲购物、绿色生态、活力运动、亲子教育为一体,打造为周边社区的停留、休憩、交流的商业空间。
The total construction area of the project is about 38000 square meters. Within the limited land, make full use of the series of urban green belt and roof garden, add the concept of three-dimensional park to the commercial function, meet the integration of leisure shopping, green ecology, vigorous sports and parent-child education, and create a commercial space for the surrounding communities to stay, rest and communicate.


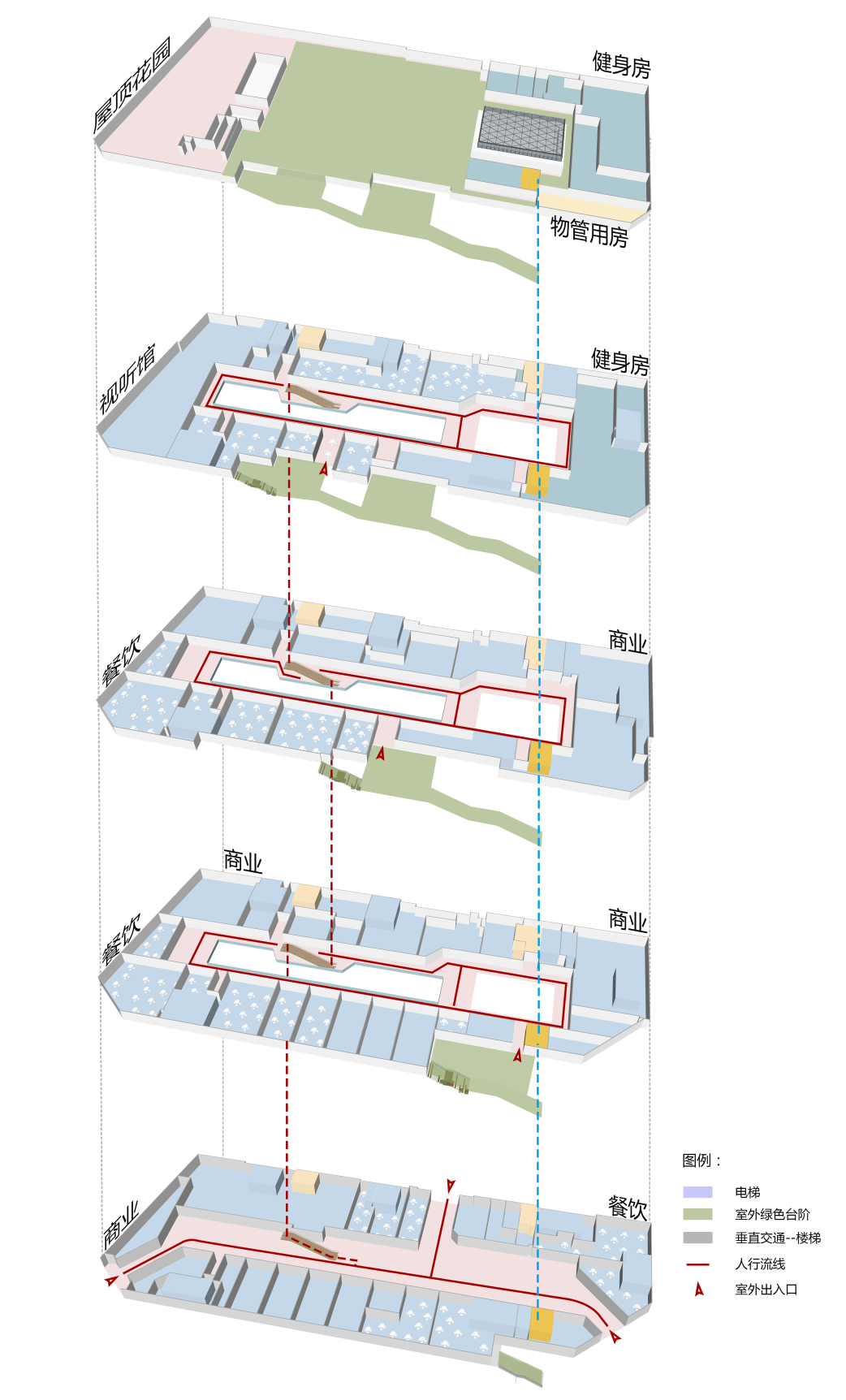
对于商业mall最重要的一件事就是将人流从一层引导到顶层,本案以室内室外双流线引流。室外通过绿色的大台阶将人流引入每一层的休憩平台,直至屋顶花园。室内通过一组扶梯,两组直梯将人流带入。北侧有两组直梯作为货梯和厨余电梯。
For commercial mall, the most important thing is to guide the flow of people from the first floor to the top floor. In this case, indoor and outdoor double flow lines are used for drainage. Outside, the flow of people is introduced into the rest platform on each floor through large green steps to the roof garden. One group of escalators and two groups of vertical ladders bring the flow of people into the room. There are two groups of vertical elevators on the north side as cargo elevators and kitchen waste elevators.

立面上向上延伸的坡道和两个方盒子为实体,中间内退的玻璃为虚体,构成虚实结合,进退有致的主立面风格。形象入口倾斜的玻璃,与两片斜斜向上的墙体,形成强烈对比。The ramp extending upward on the facade and the two square boxes are entities, and the glass retreating in the middle is a virtual body, forming the main facade style of the combination of virtual and real. The inclined glass at the image entrance forms a strong contrast with the two inclined walls.

无论是形象入口的倾斜向上的墙体,还是引人向上的坡道,立面上竖向排布的石材和玻璃杆件,都给人一种强烈的向上生长的力量。

项目想要打造一个向上生长的绿色社区商业,将人流从地面引入商场的各个楼层,再将人流从各个楼层引入到屋顶花园。将社区商业注入城市立体公园的公共功能。
The project wants to build an upward growing green community business, introduce the flow of people from the ground to each floor of the mall, and then introduce the flow of people from each floor to the roof garden. Inject community commerce into the public function of urban three-dimensional parks.



通过绿色的大台阶进入商场各层,每层入口处都有一个灰色的室外空间,可以做为外摆休憩和儿童活动场所。

全力打造的空中绿色花园,成为周边社区的停留、休憩、交流的空间。绿色主题跳跃穿插在商业空间中,由绿色通道串联,以空中花园为最终节点,形成消费者与绿色恰到好处的互动,增加逗留时间。Make every effort to build an air green garden and become a space for the surrounding communities to stay, rest and communicate. The green theme jump is interspersed in the commercial space, which is connected in series by the green channel and takes the sky garden as the final node to form the appropriate interaction between consumers and green and increase the stay time.



地面景观以运动为主题,融入绿色元素,打造购物休闲、绿色生态、活力运动、亲子教育为一体社区型商业,吸引周边居住区的家庭和热爱运动崇尚自然的新锐人群。
The ground landscape takes sports as the theme and integrates green elements to create a community-based business integrating shopping and leisure, green ecology, vigorous sports and parent-child education, so as to attract families in surrounding residential areas and cutting-edge people who love sports and advocate nature.

将绿色的理念由立面引入室内设计中,中庭天窗的阳光有如洒进森林的斑驳光影,木色的吊顶装饰线条和立柱,好似森林里此起彼伏的树干。
Introducing the concept of green from the facade into the interior design, the sunlight of the atrium skylight is like the mottled light and shadow sprinkled into the forest, and the wood colored ceiling decorative lines and columns are like the rising and falling trunk in the forest.

森林里的阳光是变幻的,有小中庭里四散而下的大片阳光,也有大中庭里活泼跳跃的小天窗下,跳跃的光束。落在木色线条上的各色形状各异的光影,就想穿过森林的阳光。
The sunshine in the forest is changeable. There are large pieces of sunshine scattered in the small atrium, and there are also jumping beams under the lively and jumping small skylight in the large atrium. The lights and shadows of various colors and shapes falling on the wood colored lines are like the sunlight passing through the forest.







项目名称 | 南通圆融嘉悦汇
项目位置 | 江苏省南通市北高新区长泰路永兴大道口业主单位 | 苏州圆融发展集团有限公司业主团队 | 邢荣鹏 华兆芳 刘晓晨 刘伟 李艳红 沈琦忱 程传友 孙运龙 范靓凌 周玉涛 张锐设计单位 | 上海日清建筑设计有限公司设计总负责 | 熊星 吴一超设计团队 | 贾晓琳 王绍光 江涛施工图设计 | 南通市建筑设计研究院有限公司幕墙设计 | 上海迪蒙幕墙工程技术有限公司
室内设计 | 中衡设计
景观设计 | 上海飞扬环境艺术设计有限公司建筑面积 | 38000㎡竣工时间 | 2021年12月专业摄影 | 行知摄影














