北京定慧圆·禅空间,北京/建筑
这个一个厂房改造项目。原建筑是一个1970年代的老厂房,期间几经改造,上一个用途是办公室。与很多大空间的厂房不同,原建筑空间跨度不大,高度也很常规,空间形态更是中规中矩,可谓没什么特点;唯一让人眼前一亮的是一个大约100平米的后院。根据业主的要求,设计师需要将这个建筑重新组织,变为一个具有禅意的会所。
This is a factory renovation project. Rebuilt into an office in its latest renovation, the old factory experienced several times of renovation after its construction in 1970s. Unlike other factories with large space, the factory doesn’t have a big space span while the height is normal showing no special features. However, a 100 square meters backyard is quite impressive. Based on the owner’s requirement, designers need to reconstruct it into a Zen Chamber.
▼远眺建筑,view from distance
既然是禅茶会所,就要有东方的韵味,有古意。当然,这里的古意当然不是传统符号的简单呈现。小中见大,峰回路转等中国私家园林的场域精粹才是这个设计希望实现的。
As a Zen Chamber, it should have the Eastern spirit and ancient concept. Certainly, the ancient concept is not a simple display of traditional symbols. This design wishes to convey the essence of the Chinese private gardens, such as “seeing a bigger picture from small matters” and “the path winds through high peaks”.
▼融入小中见大,峰回路转的园林设计精髓
introducing the sense of “seeing a bigger picture from small matters” and “the path winds through high peaks”
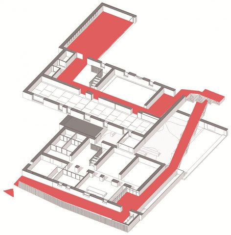
设计的核心是空间流线的重组。放弃了原来建筑平铺直叙的交通组织,以及置于建筑入口的楼梯,设计特意拉长了使用者进入主空间的时间,希望在游走的过程中让心静下来,进入禅茶的氛围中去。一个超长的、曲折的路径被营造出来:人们从建筑的西侧步入,经过一个狭长的半室外的廊道,进入建筑中;
The core of the design is restructuring the circulation of the space. Designers gave up the simple layout of the existing circulation space with hanging stairs directly attached to its entrance. The design creates a longer circulation for people to calm down when entering the main space in the philosophy of Zen Tea. An extra-long, zigzag path is made: people can enter the building from the west side after passing through a long and narrow semi-outdoor corridor.
▼半室外廊道拉长人进入建筑的时间,a long and narrow semi-outdoor corridor creates a longer circulation for people to calm down
然后转头向北穿过整个建筑进入后院空间;在这里建筑师加建了一个对折的楼梯空间,它的形制介于长坡道和两跑楼梯之间;人们拾阶而上,途中会透过格栅看到内院和对面的大茶室,然后转头进入一个狭长、封闭的空间;最终进入二楼。这里才是这个建筑主要的公共空间,包括雅集空间(琴室)、小茶室、禅堂和大茶室。
They will enter the backyard after turning to the north and walking through the entire Zen Chamber. Architect added a folded stairs in this area, located between the long ramp and paralleled stairs. People will see the inner courtyard and a big tearoom through the grating racks while stepping up the stairs. Then they can reach to the second floor through a long, narrow, and closed space. The second floor is served as the main public space of the building, including a Guqin (a representative instrument of traditional Chinese musical culture) room, small tearooms, meditation room and a large tearoom.
▼后院,the backyard
▼对折的楼梯空间,the folded staircase
▼进入主空间,the main space
▼医堂入口,medical room
▼书房,library
▼禅堂,mediation room
▼茶室,tearoom
空间亮暗开偃的节奏也是这个改造项目的关键。围绕着内院,新营造出来的空间序列在天然光和人工光之间交替;视线的通透、封闭、半通透也在设计中被精心的安排。人们进入这个建筑后,会在不同的时间,不同的角度,不同的视域中看到庭院和彼此,这在某种程度上也是对中国园林的一种采样。
The changing rhythm of the brightness is another key of renovation. Around the inner court, the newly created space changes its appearance between the natural light and the artificial light arranging the transparent, semi-transparent and close-up visual effects. After entering the building, people could enjoy the courtyard in different time and different perspectives, and vice versa, which is also a practice of sampling the Chinese garden.
▼空间与光,space and light
▼夜色,night view
▼剖透视, perspective section
▼流线分析/新建体块分析,circulation and the addition parts
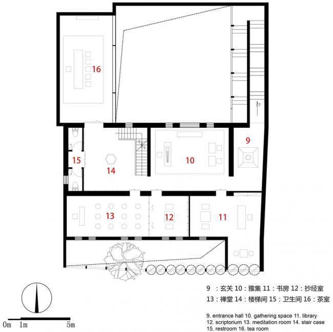
▼一层平面图,the ground floor plan
▼二层平面图,the first floor plan
▼三层平面图,the third floor plan
项目名称:北京定慧圆·禅空间
地点:北京
业主:百得利艺术俱乐部
主持建筑师:何崴
建筑、室内设计团队:陈龙、王琪,赵卓然
照明设计团队:张昕、韩晓伟、周轩宇
特别顾问:薛晓明,张意诚
施工:北京高辉利豪建设有限公司
用地面积:300平米
建筑面积:450平米
设计时间:2014-2015年
建设时间:2015-2016.01年
摄影师:刘松恺、周梦
Project name: Ding Hui Yuan Zen & Tea Chamber
Location: Beijing, China
Client: Better Lift Art Club Co., Ltd
Principle architect: He Wei
Architecture and Interior design team: Chen Long, Wang Qi, Zhao Zhuo-Ran
Lighting design team: Zhang Xin, Han Xiao-Wei, Zhou Xuan-Yu
Special adviser: Xue Xiao-Ming, Zhang Yi-Cheng
Contractor: Beijing GHLH Construction CO., LTD
Land area: 300 sqm
Construction area: 450 sqm
Design time: 2014-2015
Construction time: 2015-2016.01
Photographer:Liu Songkai, Zhou Meng
















































