PAGEONE办公室与艺文展场改造,北京 / 建筑
北京的胡同如同历史的载体,各个时期的痕迹在此揉杂交错。 随着现代化发展, 胡同区域的功能也变得更加多元且多变。如同这个院落,曾经是住宅,在1998年被作为旅馆经营,在2014年的旧城更新中被改造成钢结构建筑,主要功能为小剧场,如今的新功能则为PAGEONE书店的办公室和艺文展示场所, 而这个功能也不会长久存在。
Hutong carries the local history that displays historic traces of different times. With the process of modernization, the function of Hutong becomes more dynamic and diversified. One representative example is the particular courtyard house that we explored in this project. It was a typical residence in old town Beijing and was once operated as a hostel since 1998; yet in 2014, under the policy of renewing the old town, it was changed to a small theatre in steel structure. Now it will soon serve as the office and exhibition space of PAGEONE Bookstore, though it cannot be permanent either.
胡同里有着丰富的生活,生命力是饱满且相互包容的。面对“二次更新”的项目,以及考虑未来继续变化生长的可能性, 我们在保留主体结构的条件下采用“轻” “弹性”的态度和方式去植入设计,保留部分场所记忆,并延续城市与胡同的活力, 在有限的空间和时间内企图凝聚更多的层次与胡同体验。
Hutong breeds vitality and inclusiveness. Given that the function of the courtyard might change again, we have adopted a light and flexible approach – we aimed for retaining memories of the site and keeping the dynamics of the city and Hutong while refining the main structure; and we managed to present multiple layers of Hutong experiences on top of a limited spatial and temporal condition.
在既有的空间构成框架下,我们通过重新定义空间内容与界面材料,借由新旧材料对话、空间尺度与光影明暗的把控,尝试在原有的胡同风景中创造独特的场所经验与空间感受。
Based on the existing spatial composition, we have redefined the space and its internal substances, contrasted new materials with old ones, and adjusted the spatial scale and light ambiance. Through these endeavors, we have tried to create a unique and authentic Hutong experience under the initial context.
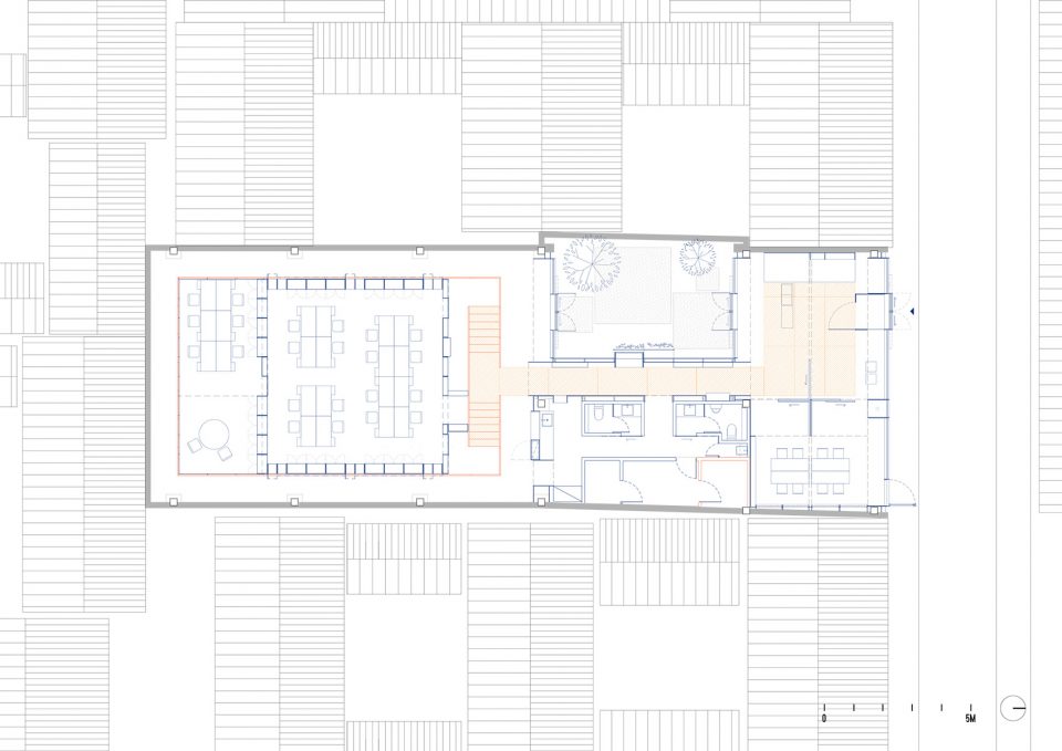
原先要作为小剧场使用的下沉空间、天光与庭院已是胡同里有趣的存在,透过适度的设计,让人从生动的胡同街道穿过层层光影与尺度渐变的空间,感受不同的情境,亦如穿梭剧场。
The sunken theatre space, skylight and the yard are inspiring elements in Hutong. By moderate design, people will experience a series of scenarios while wandering from the hutong street to the layering spaces with gradually changing ambience and scale. People can experience several vivid scenes through shades of light and space if they walk from the Hutong street into this site, just like wandering in a theatre.
入口展间延续胡同街景是明快、舒畅的,接着是位于院子东侧的连廊,被改造为一条安静的黑色展廊,它与院子的对话被限定在其中向庭院伸出的一个个人的阅读空间。 展廊在空间路径上连接了入口展间与办公区两个不同属性的空间,用光转化使用者感受:由外部喧闹到逐渐沉静的过渡。
The exhibition space at the entrance is bright and lively, whereas the following corridor on the eastern side of the yard is redesigned as a tranquil and dark gallery. The dialogue between itself and the yard is specified as a personal reading space that extends out into the courtyard.
原有的下沉空间与天光被重新定义为办公场所,植入一层金属拉伸网界面悬浮于办公区域上方,除了界定办公空间、柔化来自天窗的直射光,也解决了办公照明和海报吊轨的需求,并微调空间尺度至舒适的办公环境。
The initial sunken space is reconstructed as the office space. A layer of metal mesh is installed to suspend above the office area, emphasizing the boundary and taming the direct sunlight. It also meets the needs of office lighting and poster hanging. Additionally, the height of the metal mesh layer rescales the sunken space into a comfortable office space.
办公空间四周的地面层环廊为供访客参观的环形展廊,保留了从入口地面延伸至办公区的压纹黑钢板,在走向办公区的过程中,钢板地面独有的触感,以及由竖立的黑钢板与新植入的金属冲孔板所营造的多层次办公空间,对于访客犹如步入舞台,无意间暗示了曾经的功能。单元化设计的办公柜体沿空间长向布置 ,除了提供办公区充足的收纳,向上生长后,不仅成为展廊的展示书架和访客的读写空间,也形成一道访客与办公人员视线观看的界面。
The ground floor around the sunken space functions as an annular circulated gallery for visitors. We keep the initial flooring-the black embossed steel plate from the entrance to the office space. While walking it through, people can get a feeling of walking onto the stage and be reminded of the venue’s previous usage, thanks to the unique texture of the steel plate and the layering space of initial steel plate walls and newly inserted perforated plate cabinets. Placed along the two long sides of the space, the two sides of cabinets grow upward and offer ample storage for the office space; as for the gallery, the shelves on the top serve as displaying, reading and writing space for visitors. Furthermore, it stands as a seeing/seen interface between office users and visitors.
入口和院子的南北两侧立面是联系胡同街道与整个空间的三道透明界面,透过界面视线可以将空间串联 —— 胡同、展间、庭院直至办公空间。空间既是彼此独立,也相互交叠。当打开三道立面上经对位设计的推拉门,将有一条直接路径使空间流动。
The entrance, the north and south facades of the yard are the three transparent interfaces that link the entire space to Hutong. Visually speaking, all the connected spaces can be seen through, including Hutong, the exhibition space, the yard and the office space. These spaces stand alone and stay associated. After opening the aligned sliding doors of the three facades, a straight path turns the separate spaces into one flowing space.
入口空间为展示与会议空间,除了办公需求外,在这里将定期发生展览活动,并和街道以及对面的社区图书馆互动。 我们在现有钢梁下植入新的系统,由胶合木板材(欧松板)与钢构件组成的十字型活动墙,可弹性划分空间。 借由墙体推移,空间东侧围合出的两个小会议室可相互合并为一个大会议室,亦可开敞成为西侧入口展间的延伸。
The entrance space is used for exhibitions and meetings. Besides, exhibition activities will be held regularly to interact with the community outside and the library on the opposite side. In order to divide spaces flexibly, we have implanted cross-shaped movable walls made of OSB boards and steel rails member under the existing steel structure. With these walls being moved, the two small meeting rooms on the east side can be merged into one large meeting room; or else, they can be used as an extension of the exhibition space on the west side.
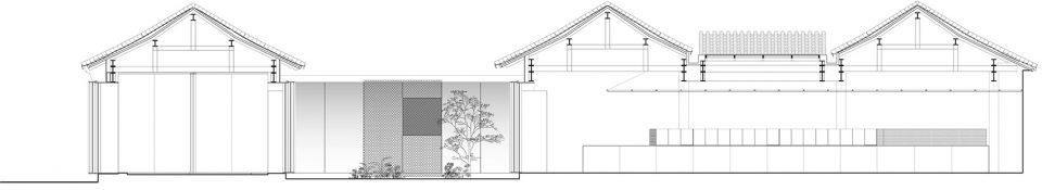
改造中所选用的材料为可快速施工组装的多层板和欧松板,以及在胡同区域“私搭乱建”中经常会出现的镀锌钢板、金属网和阳光板, 我们试着用经济的方式将这些胡同里的日常材料重新在合适的场所空间内展现材料可显现的氛围与质感。
In terms of selecting materials for the revitalization, we have taken the critical requirements of time and budget into account – we used the effective plywood and OSB board, as well as the galvanized steel sheet, metal mesh and polycarbonate sheet which usually appear in illegal additions to Hutong houses. We have tried to take advantage of common and economical materials in Hutong in hope of realizing their quality and value in most appropriate settings.
胡同纹理是复杂甚至破碎的,如同当今现代城市的发展进程,之于大环境的变动,我们的设计也是瞬息万变的一部分,因此,从设计、施工至使用,生成的过程与创造的场所都是我们企图打造的自由空间,让人们在快速的城市发展中,拥有机会累积自己的场所记忆,进而集结为城市的胡同记忆。
The composition of hutong becomes complex and even fragmented, in the progress of modernization and urbanization. Comparatively, our attempt can also be a part of the overall social transformation. Therefore, from its design, construction to being in use, the project represents our objective of creating free spaces, so that people can have the opportunity of accumulating the individual Hutong memories and gradually become an urban collective memory of the hutong, a particular Hutongscape.
地点: 北京大栅栏
业主: PAGEONE
设计方: 即作建筑 MINOR lab
联系方式:info@minorlabarchitects.com
网站: www.minorlab.info
项目成员: 刘晨、王艺祺、赵丹、叶品晨
施工方:北京华特
材料: 镀锌钢板、金属冲孔板、金属拉伸网、多层板、欧松板、松木板、阳光板、玻璃
建筑面积: 255㎡
设计时间: 10/2017- 11/2017
建造时间: 12/2017- 04/2018
摄影师: 陈颢、王艺祺、赵丹
location: Dashilar, Beijing
client: PAGEONE
design firm: MINOR lab
contact: info@minorlabarchitects.com
website: www.minorlab.info
design team: LIU Chen, WANG Yi-Chi, ZHAO Dan, YEH Ping-Chen
Construction: Beijing Hua Te
material: galvanized steel, metal mesh, perforated metal panel, plywood, OSB, larch, polycarbonate sheet, glass
floor area: 255sqm
design period: 10/2017- 11/2017
construction period: 12/2017- 04/2018
photographer: Chen Hao, Wang Yi-Chi, Zhao Dan














































