无想山秋湖驿站,南京 / 建筑
项目位于南京市溧水区无想山国家森林公园,场地植被丰茂,风景优美,一侧是环山道路和高耸的水杉林,一侧是竹林密布的连绵山峦。因景区发展更新需要,拟将原有的林场中队办公场所进行重建,并拓展出小型售卖服务、游客咨询和休憩等功能,使其成为一个园区管理和游览的节点驿站。同时业主在设计伊始就提出要求,希望能以一个合院为原型来进行操作。
The project is in Wuxiang Mountain National Forest Park, Lishui District, Nanjing. The site has lush vegetation and beautiful scenery. One side is a mountain road and towering Metasequoia forest, and one side is a continuous mountain with dense bamboo forests. Due to the need for the development and renewal of the scenic area, it is planned to rebuild the original forestry office space and expand the functions of small-scale sales services, tourist consultation and rest, making it a node station for park management and tourism. At the same time, the owner put forward requirements at the beginning of the design, hoping to use a courtyard as a prototype for operation.
在这些前期条件的影响下,对内对外功能的梳理、合院原型和空间的弥合,以及如何更好地回应自然成为了设计需要面对的主要问题。
Under the influence of these former conditions, the combing of internal and external functions, the integration of the courtyard prototype and space, and how to respond to the nature have become the main issues for the design.
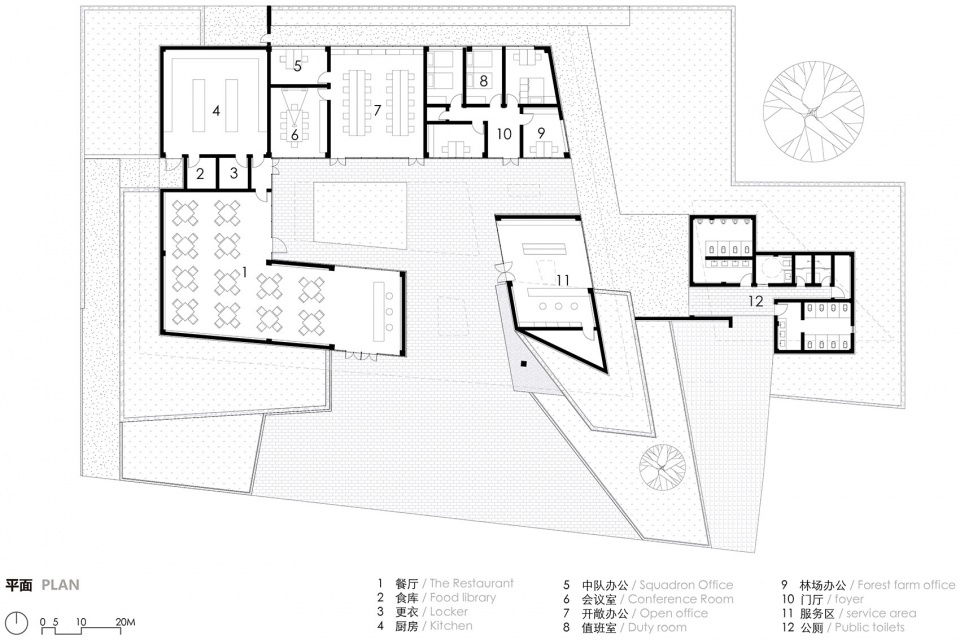
设计起始于相对确定的空间布局和功能之间的整合。我们在回字形合院体量的基础上把功能拆分成两个L型的部分,一个部分是办公为主的对内空间,另一个部分是游客服务为主的对外空间。两个部分由两个角部翘起的L型坡屋面所统领,它们互相交错咬合,并在内院螺旋转折为檐廊。最终形成了带有传统山林前后层叠意向的屋面体量。
The design begins with the integration of relatively defined spatial layouts and functions. On the basis of the courtyard, we split the function into two L-shaped parts, one part is the office-based internal space, the other part is the tourist service-oriented external space. The two sections are dominated by the two angled L-shaped slope roofs, which interlaced and twisted into eaves in the inner courtyard. Finally, the amount of roof with the intention of stacking front and back of traditional mountain forests is formed.
由此,逐渐升高并隐藏围墙的景观地台和交错折叠的屋面成为了组织空间的主体,它们连同后山一起层层退后并相互错位,以此来补足场地处山体的缺陷,并表现出了近、中、远景的层次,让建筑和环境更好地融合在一起。
Thus, the landscape platforms and staggered folded roofs that gradually raise and hide the walls become the main body of the organizational space, and together with the back mountains, they retreat and misplace each other to fill the shortcomings of the mountain at the site, and show the level of near, in some distance and far, so that the architecture and environment can be better integrated.
在这种形体关系的处理下,建筑的立面消失了,沿路的游客对于建筑的感知变为了顺应地形的景观台地和延展飘浮的层叠屋顶。“天窗”做为一个改变内部光照并指引空间趋向的要素被引入设计中。在入口、公共区域相关的体量中,平天窗和梯形的洞口引入了天光,使得立面弱化的情况下依然能较为清晰地指引主要空间的所在。而侧向天窗则被使用在办公、餐厅等功能房间,它能更好地满足采光要求同时又能减弱直射光线对空间使用的影响。
Under the treatment of this physical relationship, the facade of the building disappears, and the perception of the building by the visitors along the road has become a landscape terrace that conforms to the terrain and a layered roof that stretches and floats. “Skylight” is introduced into the design as an element that changes the internal lighting and guides the space trend. In the volume related to the entrance and public areas, flat skylights and trapezoidal openings introduce skylight, which can clearly guide the main space even when the facade is weakened. The lateral skylights are used in functional rooms such as offices and restaurants. They can better meet the lighting requirements and at the same time reduce the impact of direct light on the use of space.
因工期紧张、施工工艺不可控性等原因,我们在设计中也设置了相关的策略来减少其影响。首先建筑整体采用最为常见的混凝土框架结构,并且利用了屋面和吊顶之间的巨大空隙,让大量的结构高度、施工误差和设备空间都在空隙之中解决。
Due to the short schedule and uncontrollable construction process, we also set up relevant strategies in the design to reduce its impact. First of all, the building itself uses the most common concrete frame structure as its body and utilizes the huge gap between the roof and the suspended ceiling, so that a large amount of structural height, construction errors and equipment space are resolved in the gap.
其次在材料的选择上,对于视线焦点的屋面与景观台地,我们采用了青瓦和毛石这两种堆叠类的材料,而让精度较高的玻璃、窗台收口躲在了它们构筑的阴影里。以此保证在施工平整度有限的情况下,依然可以呈现出细密积累的材质肌理,并和环境相得益彰。
Secondly, in the choice of materials, for the roof and landscape terrace where is the central point of view, we use two stacked materials, blue tiles and rubble, and make the high-precision glass and window boundary details hide in the shadows they create. This ensures that even when the construction level is limited, the densely accumulated texture of the material can still be presented, interacting the environment.
完成的建筑其延展的空间削弱了体量感,屋檐和台地的缝隙则“限定视野”,让使用者在不受道路影响的环境中把感受聚焦在自然的绿意上。最终建筑做为一个带有传统氛围感受和现代空间体验的驿站矗立在山林之中,并和自然交织在了一起。
The completed building extends its space and weakens the sense of volume, and the gap between the eaves and the terrace “limits the field of vision”, allowing visitors to focus their feelings on the natural greenery in the environment rather than the road. In the end, the building stands out as a tourist station with a traditional atmosphere and modern space experience in the mountains and forests, intertwined with nature.
项目名称:无想山秋湖驿站
项目地址:江苏省南京市溧水区无想山国家森林公园
项目主创:米思建筑
设计团队:吴子夜、倪思媛、周苏宁、唐涛、彭彬、辛宇(实习)
施工图设计:江苏省建工设计研究院有限公司
施工图团队:庄昉、陈娟、陈凯、樊浩亮、王锴辉、张震宇、吴亚军、戴政卿
设计时间:2020.06
竣工时间:2021.06
建筑面积:977平方米
摄影:吕晓斌
撰写:吴子夜
Project Name: Wuxiang Mountain Qiu Hu Station
Location: Wuxiang Mountain National Forest Park, Lishui District, Nanjing City, Jiangsu Provience
Architects: Mix Architecture
Design Team: Ziye Wu, Siyuan Ni, Suning Zhou, Tao Tang, Bin Peng, Yu Xin(Intern)
Construction Drawing Design: Jiangsu Construction Engineering Design & Research Institute Co., Ltd.
Construction Drawing Team: Fang Zhuang, Juan Chen, Kai Chen, Haoliang Fan, Kaihui Wang, Zhenyu Zhang, Yajun Wu, Zhengqing Dai
Designed: 2020.06
Finished: 2021.06
Area: 977 ㎡
Photographs: Xiaobin Lv
Written by Ziye Wu
Translated by Qian Chen,Daoyuan Zhu






































