墨绿+原木生态LOFT公寓--《白日梦》,成都/室内
案例简介
Case description
我和业主是十年老友,我们是大学同学,同属于艺术设计系,毕业之后各奔东西都很忙碌,庆幸因为她这套公寓的设计,我们又重新开始了频繁的联系,越来越觉得友谊弥足珍贵。我们相互之间的了解在整个方案的设计和落地过程中为我们节省了不少精力。
I and the homeowner have been friends for ten years. We are classmates from university and both belong to the art and design department. After graduation, we were very busy going our separate ways. Fortunately, due to the design of her apartment, we have started frequent communication again and increasingly feel that friendship is precious. Our mutual understanding has saved us a lot of energy in the entire design and implementation process of the plan.
她喜欢烹饪也喜欢阅读,对厨房的使用功能要求极高同时也要求在家里停留在任何地方拿起一本书就可以沉浸在她的阅读世界里。于是我们对这套典型的LOFT公寓进行了大胆的改造。
She enjoys cooking and reading, and has high requirements for the functionality of the kitchen. She also requires staying at home and picking up a book to immerse herself in her reading world. So we boldly renovated this typical LOFT apartment.
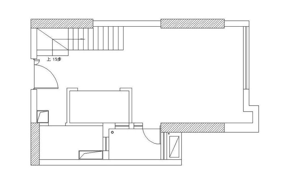
▼一层 原始平面,Original plane of the first floor

作为LOFT户型,像“苹果跃层”楼盘这样标配了生活阳台的已经是非常棒了。楼板和楼梯开发商做好了现浇(也为装修节约了一笔不小的费用)。
As a LOFT unit, it is already great to have a living balcony as standard in a "Apple Leap Floor" development. The floor and staircase developers have done a good job of cast-in-place construction (which has also saved a considerable amount of cost for decoration).
整个一层最令人不满意的就要数原始户型里黑洞洞的厨房,喜欢cooking的业主需要一个宽敞明亮便于操作的大厨房。
The most unsatisfactory aspect of the entire floor is the dark kitchen in the original unit design. Owners who enjoy cooking need a spacious, bright, and easy to operate large kitchen.
原始户型也没能满足业主对聚餐会友的要求,从客厅打开的生活阳台门也就成了痛点。
The original unit size also failed to meet the requirements of the homeowners for gatherings, and the living balcony door opened from the living room became a pain point.
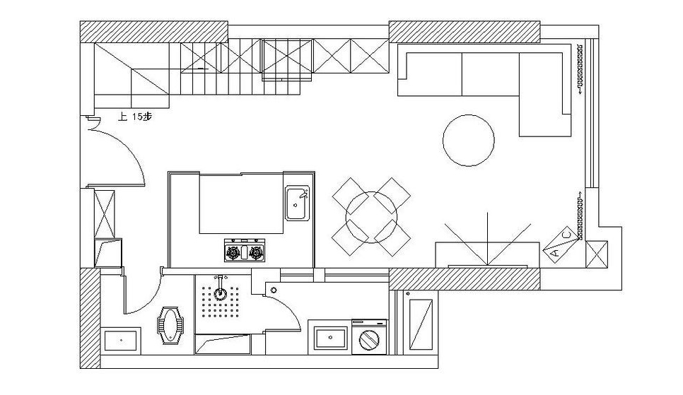
▼一层 平面布置,First floor layout

一:拆掉原始结构中厨房三面墙体,一楼空间瞬间变亮了,我们利用大量的玻璃隔断来调和小户型空间局促和采光需求之间的矛盾;在保证足够操作空间的同时,实现了U型橱柜的设计。
1: Dismantle the three walls of the kitchen in the original structure, and the space on the first floor instantly brightens. We use a large number of glass partitions to reconcile the contradiction between the limited space and lighting needs of small units; The design of U-shaped cabinets was achieved while ensuring sufficient operating space.
二:利用可开和大窗实现生活阳台和客厅的分离,大窗使洗衣机、空调外机等设备可以轻松进出。改造后通过卫生间可以进入生活阳台。
2: Utilizing openable and large windows to separate the living balcony and living room, the large windows allow easy access to equipment such as washing machines and air conditioning units. After renovation, the living balcony can be accessed through the bathroom.
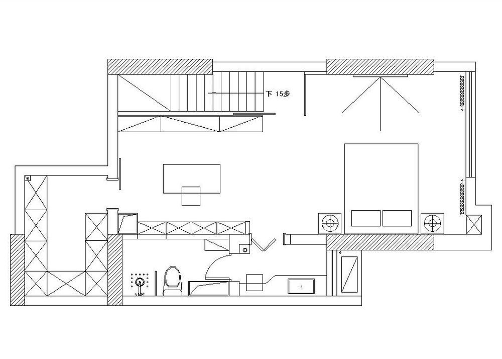
▼二层 原始平面,Original plane of the second floor

整个空间被一堵实墙分割成两半,左边这个部分完全没有采光,通风也几乎没有。业主需要一个开敞又相对独立的主卧套件,这样封闭的空间给人带来的心理感受相当压抑。
The entire space is divided in two by a solid wall, with no lighting or ventilation in the left part. The owner needs an open and relatively independent master bedroom suite, which brings a psychological sense of oppression to the enclosed space.
▼二层 平面布置,Second floor layout plan

为了使空间通透,增加通风效果,我们对原始户型做了以下调整
一:拆除原始结构中两个房间之间的隔墙,主卧室和书房形成套房。
二:拆除上楼梯右侧二楼所有墙体,这面墙拆除之后给业主带来的是惊喜,原始黑洞洞的楼梯间被打开之后空间显得更高了。
In order to make the space transparent and increase ventilation, we have made the following adjustments to the original unit type
1: Dismantle the partition wall between two rooms in the original structure, and form a suite with the master bedroom and study.
2: Dismantling all the walls on the second floor on the right side of the staircase brought a pleasant surprise to the owner. After the original dark staircase was opened, the space appeared even higher.
(拆除所有墙体之后,整个二楼的隐私解决方案在后文有详细解说)
三:主卫生间和二楼阳台连通,做到干湿分区,并且实现业主所期待的超大洗漱台+化妆间的结合。
(After removing all the walls, the privacy solution for the entire second floor will be explained in detail in the following text)
3: The main bathroom is connected to the balcony on the second floor, achieving dry and wet zoning, and achieving the combination of a large washbasin and dressing room that the owner expects.
▼厨房图,Kitchen diagram

入户右边,狭窄的厨房和客卫过道聚集了强弱电箱、公共烟道、消防入户主管道。
On the right side of the entrance, the narrow kitchen and guest bathroom hallway gather strong and weak electrical boxes, public flues, and the main fire protection entrance pipeline.
功能:整墙鞋柜,底部镂空方便拖鞋穿脱,上下柜门内藏着强弱电箱,中间空格是随手小物件在家的归宿。
Function: Whole wall shoe cabinet, with hollow bottom for easy slipper wearing and taking off. Strong and weak current boxes are hidden in the upper and lower cabinet doors, and the space in the middle is the destination of small items at home.
配色+材质:浅水泥灰地砖,漫反射不吸光,保证空间明亮。木纹板和暖白板的结合让柜子有层次。用双色做定制柜类会比单色更出彩,从成本考虑可以使用标配的国产纯色板材搭配进口木纹板材,既能出效果,也可以节省成本。
Color matching+material: Light cement gray floor tiles, diffuse reflection and non absorption, ensuring a bright space. The combination of wood grain board and warm white board gives the cabinet a layered appearance. Customized cabinets made with two colors will stand out more than single colors. From a cost perspective, it is possible to use standard domestic solid color boards paired with imported wood grain boards, which can produce results and save costs.
▼楼梯图,Staircase diagram

▼客厅图,Drawing of the living room

功能:
1、宽大松软的双转角沙发,朋友聚会很舒适。
2、为了使空间更宽敞采用无主灯设计,石膏板吊顶内嵌双头筒灯。
3、客厅的视觉重点被我们放在了沙发背景墙,利用天然凹陷铺贴厨房门口顶面同款墨绿色墙布,相互呼应。
4、挂画非常规地侵入墨绿色墙布形成的色块中。
Function:
1. A spacious and soft double corner sofa, making friends' gatherings very comfortable.
2. In order to make the space more spacious, a non main light design is adopted, and the gypsum board ceiling is embedded with dual head down lights.
3. The visual focus of the living room has been placed on the sofa background wall, using natural depressions to lay the same dark green wallpaper on the top of the kitchen entrance, echoing each other.
4. The hanging picture intrudes into the color blocks formed by the dark green wallpaper irregularly.




楼梯底部梯形空间满做储物柜,深度60cm,满足放入冰箱、烤箱、微波炉所需尺寸。
The trapezoidal space at the bottom of the staircase is filled with storage cabinets, with a depth of 60cm, which meets the dimensions required for placing in refrigerators, ovens, and microwaves.


冰箱旁两格无柜门设计,用木纹色板材做岔色。空格顶面固定同材质金属挂杆,下部空间摆放虹吸壶、手冲壶、拉花杯、滤纸等咖啡工具。是业主的mini咖啡馆墙。
The two compartments next to the refrigerator are designed with no cabinet doors, and are made of wood grain colored boards in split colors. The top surface of the blank space is fixed with a metal hanging rod of the same material, and the lower space is filled with coffee tools such as a siphon pot, hand brewed pot, flower cup, filter paper, etc. It is the mini caf é wall of the owner.

功能:原始结构缺失合理的餐厅位置,生活阳台门被大窗户封闭和厨房玻璃隔断的夹角形成一个小巧的餐厅空间。直径90cm墨绿色圆形实木餐桌,轻松实现业主和三五位好友聚餐的愿望。
Function: The original structure lacks a reasonable restaurant location, and the living balcony door is closed by large windows and the angle between the kitchen glass partition forms a small dining space. A dark green circular solid wood dining table with a diameter of 90cm can easily fulfill the wishes of homeowners and three to five friends to dine together.
配色+材质:实木材质给了圆形餐桌温润的质感,餐桌的墨绿色也是和木门以及墙布颜色做到同色搭配。铁艺黑色餐椅恰好呼应玻璃隔断四周黑色金属。大窗上选用白色蜂巢帘,不累赘反而清爽。这里选用半遮光产品,白天可以微微透出生活阳台的光线。
Color Matching+Material: Solid wood material gives a warm texture to the circular dining table, and the dark green color of the dining table is also matched with the color of the wooden doors and wall coverings. The iron art black dining chair perfectly echoes the black metal around the glass partition. White honeycomb curtains are used on the large windows, which are not cumbersome but refreshing. We choose semi shading products here, which can slightly reveal the light of the living balcony during the day.


▼蜂巢帘,窗帘,Honeycomb curtains, curtains


因为墙体拆除,被U形橱柜围绕的活动空间增大了两个墙体厚度,再加上贴砖厚度也节约下来,厨房宽度直接扩大了30cm,对于爱cooking的业主,这个点是她的心头好!推拉门尽可能做吊轨,不会有下方轨道滑槽,可以减少清洁盲区。
Due to the demolition of the wall, the activity space surrounded by U-shaped cabinets has increased by two wall thicknesses, and the thickness of the tiling has also been saved. The kitchen width has been directly expanded by 30cm, which is a good idea for the owner who loves cooking! Sliding doors should be equipped with hanging rails as much as possible, without any lower track chutes, which can reduce blind spots for cleaning.

功能:改造后的二楼是一个功能强大的套房。同时具备卧室+书房+衣帽间+主卫+化妆间。动线规划必须合理。原始楼梯间墙面拆除,地面固定好一整排45cm高的矮柜,既可以作为玻璃隔断的基层也可以存放大量杂物。通过楼梯间整面长虹玻璃强+长虹玻璃吊滑门的形式保证卧室的隐私性。
Function: The renovated second floor is a powerful suite. It also has a bedroom, study, cloakroom, master bathroom, and dressing room. The planning of the moving line must be reasonable. The original staircase wall was demolished, and a row of 45cm high low cabinets were fixed on the ground, which can serve as the base layer for glass partitions and store a large amount of debris. The privacy of the bedroom is ensured through the use of a staircase with a full face of long rainbow glass and a long rainbow glass hanging sliding door.
配色+材质:楼梯间的灯光透过长虹玻璃斑驳得非常好看,黑框作为玻璃的支撑也合理将一楼的元素延续到二楼。灰色墙布作为床头背景和黑色皮艺床头兼容。黑床对应书房黑色实木书桌椅以及黑色满墙书柜。地面使用的是一款木纹变幻非常自然的强化地板。
Color scheme+material: The lighting in the stairwell is beautifully mottled through the rainbow glass, and the black frame serves as a support for the glass, effectively extending the elements from the first floor to the second floor. The gray wallpaper serves as a bedside background and is compatible with the black leather art bedside. The black bed corresponds to the study's black solid wood desks and chairs, as well as a black wall filled bookshelf. The floor is made of a naturally changing wood grain reinforced floor.




▼窗帘,麻布,Curtains, linen

这个有趣的单头吊灯是业主为将来的宠物狗准备的,下面将会放一张mini狗床。这个灯被我们亲切地称为“狗灯”。
This interesting single headed chandelier is prepared by the owner for future pet dogs, and a mini dog bed will be placed below. This lamp is affectionately referred to as the "dog lamp".


功能:重新规划主卫门洞,书柜做到了满墙,业主有非常好的阅读纸质书籍的习惯,从一开始对书柜就有强烈的渴望。书房同时兼具工作学习和过道的功能,合理利用上了每一寸空间。
Function: Redesign the main guard door opening, make the bookshelf full of walls, and the owner has a very good habit of reading paper books. They have a strong desire for the bookshelf from the beginning. The study combines work, study, and aisle functions, making reasonable use of every inch of space.
配色+材质:稳重的黑色实木,给书房添加沉稳的气质,白色工作灯方便实用。斑驳的光线从楼梯间隐隐约约透进来。墨绿色实木谷仓门和一楼实木门相互呼应,配件也选用黑色铁艺。
Color Matching+Material: Stable black solid wood adds a calm temperament to the study, and the white work light is convenient and practical. A mottled light faintly penetrated through the stairwell. The dark green solid wood barn door and the first floor solid wood door complement each other, and the accessories are also made of black iron.



部分有柜门、部分开放式无柜门的定制衣帽间设计,适合爱整洁喜欢收拾的业主。墙面的大穿衣镜很实用。
Customized cloakroom designs with some cabinet doors and some open without cabinet doors are suitable for homeowners who love cleanliness and cleaning. The large dressing mirror on the wall is very practical.
▼卫生间,Toilet

功能:二楼打通阳台和主卫,拆除原来的窗户,重新规划门洞,利用原始阳台定制超长洗面台以及化妆间。通过干区直接进入主卫的湿区,为实际使用提供便利。
Function: On the second floor, connect the balcony and main bathroom, remove the original windows, redesign the door openings, and customize a super long vanity and dressing room using the original balcony. Directly enter the wet area of the main bathroom through the dry area, providing convenience for practical use.
配色+材质:延续一楼地面哑光水泥砖的地面铺贴,干区和淋浴间的部分墙面使用10*10灰粉色小方砖,点缀空间。
Color Matching+Material: Continuing the flooring of matte cement bricks on the first floor, some walls in the dry area and shower room are decorated with 10 * 10 gray pink small square bricks to embellish the space.



原始的现浇梯步非常牢固,但是左右两侧实体墙让空间显得太憋屈。最终打掉靠书房一侧墙壁改用长虹玻璃隔断,隐隐约约看得见书房的灯光。搭配业主最最满意的楼梯顶部水晶球吊灯,呈现出来的是一个blingbling的楼梯间。
The original cast-in-place ladder steps were very sturdy, but the solid walls on both sides made the space appear too cramped. Finally, the wall next to the study was knocked down and replaced with a rainbow glass partition, with the light of the study dimly visible. With the crystal ball chandelier on the top of the stairs that the owner is most satisfied with, it presents a blindbling staircase.

项目名称:墨绿+原木生态LOFT公寓--《白日梦》
设计公司:蔚木未来室内建筑设计
风格:北欧极简
空间:一居
面积:109平米
Project Name: Dark Green+Log Ecological LOFT Apartment - "Daydream"
Design company: NIMU Future Interior Architecture Design
Style: Nordic minimalism
Space: One bedroom
Area: 109 square meters














