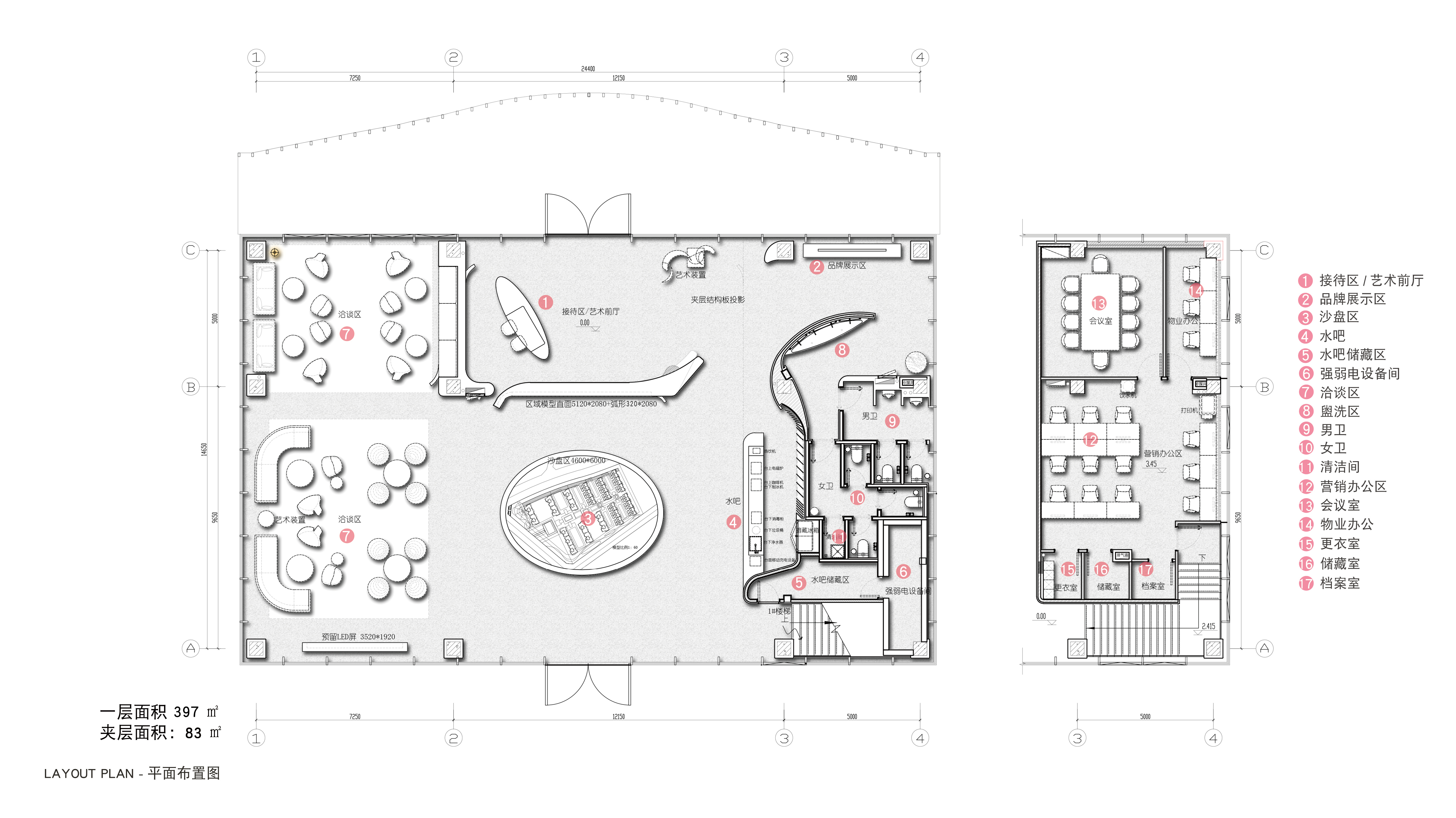
领地樾园售楼处,绵阳/室内

“领地·樾园”,作为领地在绵阳的首个TOP“樾系”产品,是品牌与城市的对话,承载着向往与追求。 “领地·樾园”—“樾”之第一重境,原意为树荫之盛,家族庇护;第二重境,引申为向上生长,生生不息。“园”则为心之归所。 我们潜心解读项目的定位,试图将喧嚣褪去,让所有感官在静谧中自由舒缓,为绵阳人民打造一个静谧纯粹的心之归所。
"Territory · Yue garden", as the first top "Yue series" product of the territory in Mianyang, is a dialogue between the brand and the city, carrying longing and pursuit. "Territory · Yue garden" – the most important place for "Yue", which originally meant the flourishing shade of trees and the protection of families; The second boundary is extended to upward growth and endless growth. "Garden" is the place of the heart. We concentrated on interpreting the positioning of the project, trying to remove the noise, let all senses relax freely in silence, and create a quiet and pure heart home for Mianyang people.

绵阳领地樾园楼盘位于绵阳涪城区园艺山创业大道,由具有国家一级房地产开发资质、百强房企领地集团精心打造。该项目是领地基于四大产品系之上,迭代创新产品系——TOP樾系——肇始之作,以墅境大平层+叠拼产品序列,从现代建筑审美出发,打造多元心界邻里共享空间,让人与居住空间和谐共生。
The Yueyuan real estate of Mianyang territory is located in yuanyuanshan Chuangye Avenue, Fucheng District, Mianyang. It is meticulously built by the territory group of top 100 real estate enterprises with national first-class real estate development qualification. Based on the four major product lines, the project is the first work of the territory to iterate and innovate the product line - Top Yue system. With the product sequence of large flat + overlapping in the villa, starting from the aesthetics of modern architecture, the project aims to create a multi-dimensional neighborhood shared space and make people live in harmony with the living space.

在对建筑、环境二者的衡量思考中,领地·樾园充分尊重自然,在以人为本的基础之上,从意大利米兰垂直森林中汲取设计灵感,打造领先未来的建筑,把环境与建筑的关系渗透到设计的每一寸空间中,为居者打造健康美好生活,引领未来生活模式。
In the consideration of the measurement of architecture and environment, the land · Yue garden fully respects nature. On the basis of people-oriented, it draws design inspiration from the vertical forest in Milan, Italy, to create a leading building in the future, infiltrates the relationship between environment and architecture into every inch of the design space, creates a healthy and beautiful life for residents, and leads the future life mode.

领地·樾园南向卧室均为套房,拥有良好的采光及通风,花园错位布置,无对视,绝对私密。横厅让厨房、餐厅、客厅、空中花园有效联动,且通过餐客厅等公区空间将卧室等私密空间分割,功能划分明确,让烟火与诗意完美相拥。
The south facing bedrooms of the territory · Yueyuan garden are suites, with good lighting and ventilation. The garden is arranged in a staggered manner, without looking at each other, and is absolutely private. The horizontal hall can effectively link the kitchen, dining room, living room and sky garden, and separate private spaces such as bedrooms through public areas such as dining room and living room. The functional division is clear, so that fireworks and poetry embrace each other perfectly.

海德格尔曾说,人生的本质是诗意的,人应诗意的栖居在大地上。置身繁华都市中,领地·樾园以具有未来理念及诗意景观的第四代建筑,展现健康美好的居住之美,进阶城市理想栖居。
Heidegger once said that the essence of life is poetic, and people should inhabit the earth poetically. In a prosperous city, the territory · Yue garden shows the beauty of healthy and beautiful living with the fourth generation architecture with future concept and poetic landscape, and is an ideal place to live in an advanced city.

项目信息
项目名称:领地樾园售楼处
文章分类:室内设计
设计公司:派尚设计
项目地址:绵阳市
项目规模:480㎡
获奖案例:金堂奖
项目年份:2021年
Project information
Project Name: Yueyuan Sales Office
Article category: Interior Design
Design company: Paishang design
Project address: Mianyang City
Project scale: 480 ㎡
Award case: Jintang Award
Project year: 2021














