2020 摩天住宅电影《INFINITE SPACE》,厦门/室内设计


以游艇+私人飞机理念引至室内设计概念,充分表达现代天际豪宅的全新生活理念,低奢的优雅居所为主调,满足一家七口功能,兼顾社交属性,彰显主人品味。 电影宽幕视野观赏到海洋的开阔感,转变为拥有双面宽海景天际会客厅及天际主卧会客与居住空间交叉,在生活起居社交中尽享天际奢华。
The concept of yacht + private aircraft is introduced into the interior design concept to fully express the brand-new life concept of the modern skyline luxury house. The low luxury and elegant residence is the main tone, meeting the functions of a family of seven, giving consideration to social attributes, and highlighting the owner's taste. The wide screen view of the film shows the open sense of the sea, which has been transformed into a double-sided wide sea view skyline reception hall and the intersection of skyline master bedroom reception and living space, so as to enjoy the skyline luxury in daily life and social intercourse.

- 斐波那契数列是什么?
- 通俗的说狭义的黄金分割比,数值里面的设计美学。
- What is the Fibonacci sequence?
- In layman’s terms the narrow golden ratio, the design aesthetics in the value.







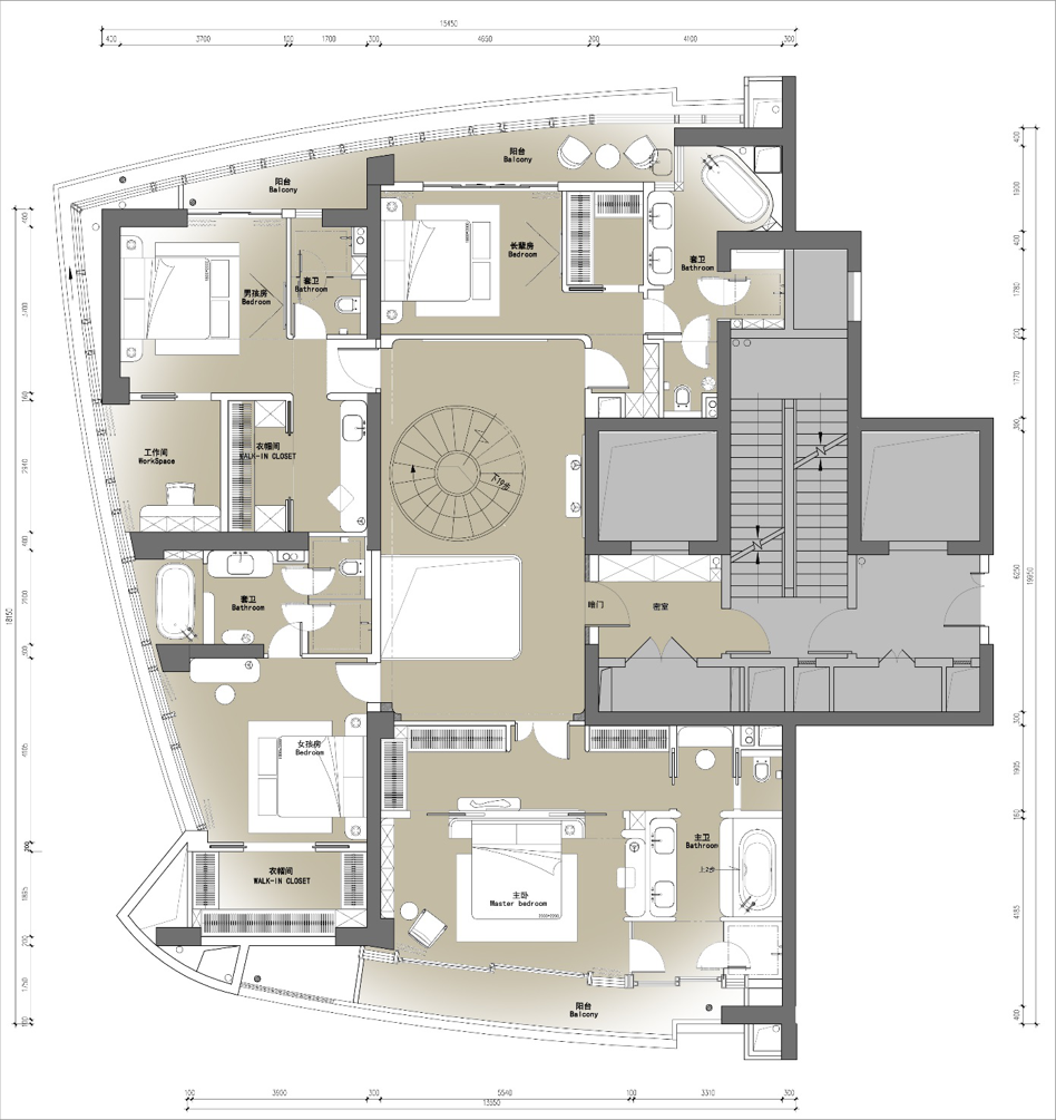
连接两层的的视觉核心-旋转楼梯,拥有华丽的外表和绚烂的灯光,被牢牢抓在地面,却能满足盘旋飞翔的愿望,它不仅是寄托童梦的旋转木马,还是让人目眩神晕的旋转楼梯,沁润出浪漫与悠扬的气息,是古典主义和现代艺术的平衡之美。
The visual core connecting the two floors, the spiral staircase, has a gorgeous appearance and gorgeous lights. It is firmly held on the ground, but it can meet the desire to fly. It is not only a merry go round to repose children's dreams, but also a dizzy spiral staircase, which gives a romantic and leisurely atmosphere. It is the beauty of the balance between classicism and modern art.





布局上充分利用‘电影屏幕’质感的窗户,围绕好风景、结合空间动线及功能区设计空间,在设计上从简去繁,去伪存真,简单到极致,追求感官上强调素净整洁,品味和思想上注重优雅与格调。在功能性与高颜值都得以兼顾的情况下,不哗众取宠,却时时刻刻吸引关注的目光。
In terms of layout, make full use of the windows with the texture of 'film screen', design the space around the good scenery and in combination with the spatial moving line and functional area, from simplicity to complexity in design, eliminate the false and preserve the true, from simplicity to the extreme, pursue the sense of simplicity and neatness, and pay attention to elegance and style in taste and thought. Under the condition that both functionality and high appearance can be taken into account, it does not make a fuss, but always attracts attention.



壁炉空间设计利用
甲板曲直的线条结构元素,
增添奢华雅致氛围。
The fireplace space design utilizes
the straight line structural elements of the deck,
to add a luxurious and elegant atmosphere.



好风景只是一步之遥。
夜幕降临,灯光都成为黑夜的精灵,
天空从黄变红再变紫变蓝,
站在阳台上,直观感受城市和时间的关系,
感受自己和高度的关系。
躺在沙发上仿佛躺在云上,坐看星空斑斓。
The good scenery is only a step away.
As night falls. the lights become the elves of the night,
The sky changes from yellow to red.then purple to blue,
Standing on the balcony.intuitively feel the relationship between,
The city and time, feel the relationship between yourself and the heieht.
Lying on the sofa is like lying on the clouds.sitting and watching the stars.







从简去繁,去伪存真,简单到极致,
追求感官上强调素净整洁,
品味和思想上注重优雅与格调。
在功能性与高颜值都得以兼顾的情况下,
不哗众取宠,却时时刻刻吸引关注的目光。
From simple to complex.from false to truesimple to the extreme,
The pursuit of senses emphasizes cleanliness and cleanliness,
Pay attention to elegance and style in taste and thought.
In the case of both functionality and good looks,
Not grandiose.but always attract attention.
好风景即为好时光,
在朋友小聚时刻就着时间的陪伴谈天说地,
在需要理清思绪的时刻为你提供静谧的氛围,
在需要灵感的时候,
看看窗外吧,可能就找到你想要的“东西”。
A good view is a good time,
At the moment of friends gatheringchat with the company oftime,
To provide you with a quiet atmosphere when you need to,
Sort out your thoughts.when youneedinspiration,
Look out the window. you may find the"thine"you want.



每个人对家的设想,
一定有一扇落地窗。
此刻的四季是明朗的,
此刻的温度是直接的,
仿佛伸手就能碰到云,
踮起脚就能摘到星星。
Everyone's vision of home,
There must be a floor-to-ceiling window.
The four seasons at this moment are clear,
The temperature at the moment is direct,
As if reaching out to touch the cloud,
You can catch the stars by tiptoe.







项目信息
项目名称:2020 摩天住宅电影《INFINITE SPACE》
文章分类:室内设计
设计公司:恩嘉设计
项目地址:厦门
项目规模:520㎡
获奖案例:金堂奖
项目年份:2020年
Project information
Project Name: 2020 skyscraper house film infinite space
Article category: Interior Design
Design company: Enjia design
Project address: Xiamen
Project scale: 520 ㎡
Award case: Jintang Award
Project year: 2020














