Chacarera住宅,阿根廷 / Tectum Arquitectura
这是一座位于Lago Los Molinos湖畔的房子,是设计者专为一个家庭设计的。这户家庭在新冠疫情隔离后,决定逃离城市,选择在水与山的环绕中生活。地块自湖边缓缓倾斜,可远眺西南部的Sierras Chicas山丘和湖面的对角景观。
A house on the shores of Lago Los Molinos for a family who, after the Covid quarantine, decided to escape the city and live in connection with water and mountains. The plot, with a gentle slope toward the lake, offers diagonal views of the water and the Sierras Chicas in the southwest of Córdoba.
▼项目概览,Overall view

▼鸟瞰,Bird’s eye view

▼外墙,Exterior wall

▼石墙近景,Exterior wall close view


▼住宅立面,Facade

尽管地块宽敞且狭长,项目的重点却集中在靠近街道的最高点。一堵坚固的石墙界定了建筑的最大边界,形成一个边长18米的正方形。石墙朝向街道和邻近物业几乎完全封闭,以保护住宅的隐私;而朝向湖的一面则完全开放,将自然景观纳入视野。从室内和入口庭院望去,视线越过石墙,将附近的山脊融入住宅的内部空间。庭院作为街道与住宅之间的过渡地带,提供了一个适合静思和聚会的场所。
▼轴测分析图,axon

Although the plot is spacious and elongated, the project focuses on the highest point of the lot, near the street. A solid stone wall defines the maximum construction perimeter, forming a square of 18 meters on each side. This wall is almost completely closed off toward the street and neighboring properties, protecting the privacy of the home, while opening toward the lake to frame views of the natural surroundings. From the interior and the access patio, views extend beyond the wall, integrating a nearby mountain ridge into the home’s interior space. This patio serves as a threshold between the street and the house, offering a space for contemplation and gathering.
▼入口处,Entrance


▼庭院,Coutyard

▼庭院近景,Close view of the courtyard

▼建筑立面,Facade

▼建筑体量,Building volume


住宅的剖面充分利用了地形的自然坡度,房屋内部动线随之缓缓向湖面下降。
The natural slope of the terrain is incorporated into the house’s section; moving through it involves a gradual descent toward the lake.
▼从室外看向起居空间,View from outside to living space

▼起居空间,Living space

▼餐厅,Dining area


▼厨房,Kitchen

▼望向窗外,Looking outside from the window


五个混凝土体块承担了功能性空间,同时支撑起由同材质构成的倾斜屋顶,为住宅遮阳挡雨。这些结构核心的布置组织了房屋的功能布局。夹在这些体块之间的空间交错展开,取消了走廊的设计,从而将更多空间用于家庭的公共活动区域。
Five concrete volumes, which house the utilitarian functions, support an inclined roof of the same material, shielding the house from the sun and rain. The arrangement of these cores organizes the program of the house. Compressed between the structural volumes, the spaces unfold and intertwine, eliminating the need for hallways and dedicating that surface to family gathering spaces.
▼厨房暗门,Kitchen hidden door

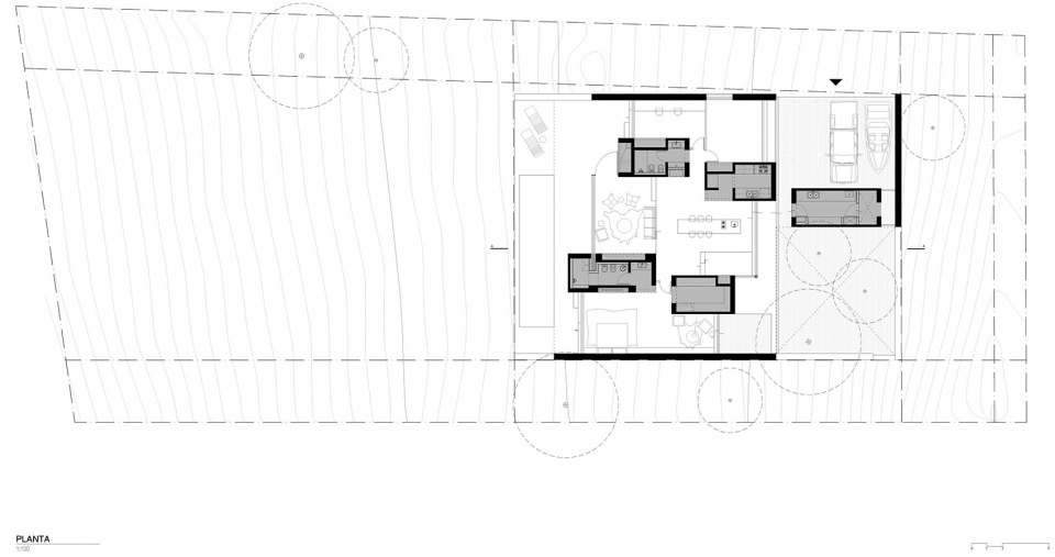
▼平面图,floor plan

▼立面图,elevation

▼剖面图,section

Technical Details
Project and Technical Management: Tectum Arquitectura
Project Team: Tomás Bressan, Guadalupe González, Manuel Gonzalez Veglia
Collaborators: Lucia Uribe, Nicolas Mercado
Photography: Federico Cairoli
Construction, Administration and Management: Tectum Ingeniería
Tectum Ingeniería Team: Nicolas Gordillo, Agostina Ramello, Felipe Gonzalez, Ignacio Dutto
Structural Engineering Project: Incorp
Marble and Granite: Kursaal and RS Marmolería
Metalwork: Brocca
Wood Carpentry: Tierra
Aluminum and Glass Carpentry: Anodal
Lighting: Luciana Borgatello and Mínimo Iluminación














