“从天花到地板”住宅,东京 / 河内建築設計事務所
该项目是为一个四口之家翻修的一栋典型的两层木屋。该地点位于东京的高密度住宅区。
This is a renovation of typical wooden two story house for a couple and two children. The site is located in high-density residential area in Tokyo.
▼室内概览,overview of the indoor space


▼各个空间相互联通,each space connects with each other

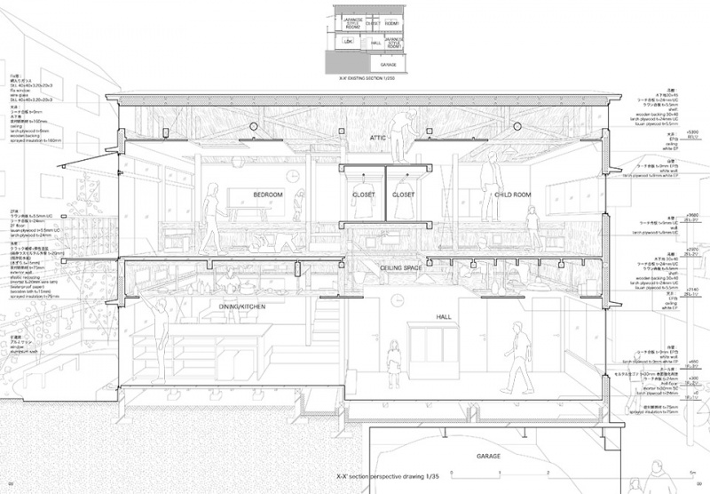
二层空间分隔开上下层,第一层原本是一个昏暗的空间。通过抬高和降低地面及天花板,并打通部分空间,设计在不减少居住面积的前提下引入光线,创造了一个连接房间的空间。
▼概念图,concept diagram

The upper and lower spaces were divided by the 2nd floor and the 1st floor was a dark place.By raising and lowering the floor and ceiling, and making holes, we incorporate light without reducing the floor area and create a space with room connections.
▼在不减少居住面积的前提下引入光线,incorporate light without reducing the floor area



▼通过抬高和降低地板及天花板来打通空间,connects the space by raising and lowering the floor and ceiling


房间整体被粉刷成白色,而天花板空间则保持原色。通过打开天花板空间,原本的两层空间变为四层,原本的两层楼高变为六层楼高,设计创造了一个多样化的空间,使人们可以在不同高度的空间中体验两层楼的住宅。这是对传统木屋“二层”的一种翻新尝试,旨在发现普通建筑中的空间可能性。
The room was painted white, and the ceiling plenum space was not colored. The space that was the 2 layers becomes 4 layers by opening the plenum space, and 2 floor levels increase to 6, wecreate a diverse place where you can experience 2 stories house with various heights. This is a trying to renovate “twostory” in usual wooden houses and to discover space in usual building.
▼多样化的空间,a diverse space

▼在不同高度的空间中体验两层楼的住宅,you can experience 2 stories house with various heights


▼住宅外观,exterior of the house

▼平面图,plan

▼剖透视,perspective section

Location:Tokyo
Program:residence
Scale:wooden house 2F
Site Area: 78.87m2
Building Area:45.55m2
Floor Area: 89.44m2
Completion: 2017.11
Design:Kazuyasu Kochi / KOCHI ARCHITECT’S STUDIO
Structural Engineering: Yukihiro Kato / MI+D architectural laboratory














