山岫·隐于泸州茶田乡野间的避世民宿 / 小隐建筑
项目坐落于四川泸州市叙永县红岩村,背靠巍峨俊秀的丹山,面朝悠然广阔的茶田。红岩村和丹山都因这里的山石均为红色而得名。
Located in Hongyan Village, Xuyong County, Luzhou City, Sichuan Province, the project is nestled against the majestic and picturesque Danshan Mountain, facing the serene and expansive tea fields. Both Hongyan Village (Red Rock Village) and Danshan Mountain derive their names from the red rocks that characterize the local landscape.
▼山岫鸟瞰,aerial view


▼山岫鸟瞰,aerial view


▼夜幕中茶田远望山岫,distant view at night

▼从大屋面裂缝中出挑的观景,view out from the large roof cracks

山岫是川南民居的现代演绎,汇集了传统川南民居的各种建筑特点,辅以红岩村当地红岩的点缀。低调内敛而又特立独行,适宜的融于环境之中,将东方建筑之美点缀在这片川南田野之中。山林、雨雾、霞光的浸润,赋予了山岫诗意与灵气,在朦胧间演绎隐逸之美。
Mountain Retreat is a modern interpretation of Southern Sichuan folk architecture, incorporating various traditional architectural features of the region, accentuated by the use of local red rock from Hongyan Village. Understated yet distinctive, the design seamlessly integrates into its surroundings, sprinkling the beauty of Eastern architecture across this Southern Sichuan countryside. Infused with the essence of mountain forests, rain, mist, and sunlight, the retreat exudes poetry and spiritual energy, subtly showcasing the beauty of seclusion.
▼大雾笼罩的茶田与山岫,Mountain Retreat and tea field in the fog

▼茶田里的山岫,Mountain Retreat in the tea field

▼山林掩映的山岫 ,Mountain Retreat hide in the trees

▼山岫前院,Mountain Retreat front yard

▼夜幕下山岫一角,Mountain Retreat at night


▼夜幕中茶田远望山岫,Mountain Retreat at night

屋面以传统小青瓦覆盖,并以红瓦点缀,此做法来自距离山岫50米的一户民居,瓦屋面由于漏水打了很多补丁。山岫户外的地面满铺当地红岩,暖白色的稻草漆外墙,木结构屋架……这些元素将传统川南建筑的神韵勾勒出来。从高处俯瞰,屋面盖瓦和沟瓦形成的峰谷,层层跌落,逐渐变幻成一条条翠绿的茶垄。红黑相间的瓦片构建起宽阔的瓦屋面,似两片茶叶的嫩芽分裂开来,裂缝中探出一个红色的悬挑观景台,赋予了山岫独特的形象识别性。大屋面掀开成窗的形式,已经成为小隐团队处理乡野建筑的一个重要的象源,在多个项目中都有应用。入口和后院伸展出的长廊,像是山岫张开的臂膀,强化了建筑横向扁平的延展趋势,将建筑更好的揽入自然之中。置身山岫,或是山林藏于屋后,亦或是屋舍藏于林中,一切都自然而然。
The roof is covered with traditional small blue tiles, accented with red tiles—a technique inspired by a nearby residence just 50 meters away, where the roof was patched due to leaks. The outdoor ground is paved with local red rock, while the warm white straw-painted exterior walls and wooden roof trusses outline the charm of traditional Southern Sichuan architecture. From above, the peaks and valleys formed by the roof tiles cascade layer by layer, gradually transforming into rows of lush green tea bushes. The broad roof, constructed with red and black tiles, resembles two tea leaves splitting apart, with a red cantilevered viewing platform emerging from the crack, giving the retreat a unique identity. The design of lifting the roof to form windows has become a significant motif for Archermit in their countryside projects, applied in multiple works. The corridors extending from the entrance and rear courtyard resemble the retreat’s open arms, enhancing the building’s horizontal extension and drawing it closer to nature. Whether the forest hides behind the house or the house hides within the forest, everything feels natural.
▼浓雾中的山岫,Mountain Retreat in the fog

▼川南民居在山岫中的现代演绎,modern interpretation of the Southern Sichuan Folk Houses


▼屋顶细部,roof detail

▼邻居的屋面,neighbor’s roof

▼二楼跑马廊俯瞰内院和外廊,overlook of the corridor

▼内院和外廊,inward courtyard and corridor

▼被掀开的木结构大屋面,revealed wood structure under the roof

▼山岫前院的长廊,the corridor in the front yard


▼山岫前院的长廊,the corridor in the front yard

▼客房阳台俯瞰活动草坪,overlook the yard

▼从屋面缝隙中出挑的观景台,A viewpoint that peeks out through a gap in the roof

▼类似叶芽裂开的大屋面,Large roofs that resemble cracked leaf buds

▼从屋面缝隙中出挑的观景台,A viewpoint that peeks out through a gap in the roof

▼观景台打卡的客人,visitor at the viewpoint

▼绿色的茶垄连接红灰相间的瓦,Green tea rows connected with red and grey tiles

山岫由前院、内院、后院三个具有心理围合感的空间组成。前院和后院以廊为媒介,借助周边山林树木,构建起心理上的院落形态。内院以建筑与廊的围合,形成一个“真实”的四合院,画出一小片宁静的天空。接待、多功能厅、厨房、客房、茶室等功能用房围绕内院,根据不同的外部景观视野有序穿插其中。入口处以狭窄低矮的连廊将客人导入,入院后的身心自然而松弛。看似随意的窗洞和隙口,都框着一幅幅如画山色,画随人动。竹林摇曳发出莎莎的声响,鸟语虫鸣穿透山林,萦绕在充满茶香的空气中,更透着些许山野禅意。连廊、巨石、天井、取景窗形成层层递进的空间感受,扑面而来的一幅幅大小画卷与入口处的隐蔽形成了强烈的反差,这种曲径通幽处的豁然开朗让人心旷神怡。
Mountain Retreat consists of three psychologically enclosed spaces: the front courtyard, inner courtyard, and rear courtyard. The front and rear courtyards, connected by corridors, use the surrounding trees and forests to create a sense of enclosure. The inner courtyard, enclosed by the building and corridors, forms a “true” quadrangle, framing a small patch of tranquil sky. Functions such as reception, multipurpose hall, kitchen, guest rooms, and tea rooms are arranged around the inner courtyard, interspersed according to different external views. The entrance, with its narrow and low corridor, gently guides guests inside, where both body and mind naturally relax. Seemingly casual window openings and gaps frame picturesque mountain views that shift as you move. The rustling of bamboo, the chirping of birds, and the hum of insects penetrate the forest, lingering in the tea-scented air, adding a touch of mountain Zen. The corridor, boulder, courtyard, and viewing windows create a layered spatial experience, with the expansive views contrasting sharply with the hidden entrance, evoking a sense of sudden openness that is refreshing and uplifting.
▼茶室看向入口的连廊,Tea room looking into the entrance gallery

▼林中望向入口连廊,Forest looking into the entrance gallery

▼林下的茶室,Tea room under the forest

▼山岫内院的一方天地,courtyard inside


▼山岫内院俯瞰,overlook the courtyard inside

山岫仅有六间客房,共三种房型,均配置了私汤泡池和不同形式的饮茶场景。公区配套一个多功能活动厅、一个独立茶室和一个望山看茶观日落的景观台,以满足不同客群的出行需求。室内整个空间延续了阴翳淡然的气质,淡雅柔和的色调与温润的木材结合,将度假感和自然感巧妙融合在了一起。一件家具、一扇窗、一缕光……通透的落地门窗将室外自然引入室内,没有过多复杂的装修,每一个角落却都散发出不动声色的东方之美。
Mountain Retreat offers only six guest rooms across three room types, each equipped with a private hot spring pool and various tea-drinking settings. The public areas include a multipurpose hall, an independent tea room, and a viewing platform for enjoying the mountains, tea fields, and sunset, catering to different travel needs. The interior space continues the subdued and serene aura, with soft, elegant tones combined with warm wood, skillfully blending a sense of vacation with nature. A piece of furniture, a window, a beam of light—without excessive decoration, every corner exudes the understated beauty of the East. Floor-to-ceiling windows and doors bring the outdoors inside, allowing nature to permeate the space.
▼入口连廊夜幕内景,entrance corridor at night

▼山岫多功能厅及外廊,multi-function hall and corridor

▼山岫接待厅窗景,view form the reception hall window

▼多功能厅内景和外廊 ,multi-function hall

▼山岫观景台的三角取景框,triangle viewpoint

▼一楼带庭院的客房,guest room with courtyard


▼山岫二楼客房阳台景观,view from the guest room balcony

▼茶室与内院,tea room and inward courtyard

▼二楼跑马廊俯瞰内院和外廊,overlook the inward courtyard and corridor

▼二楼客房内景,guest room on the upper floor



▼二楼客房内景,guest room on the upper floor



▼夜幕中茶田远望山岫 ,night view


山岫,以诗而名,入梦山野。在这方乡野的山林间,感受它独有的避世感,栖居在陶渊明田园仙境的诗中!
Mountain Retreat, named after poetry, invites you to dream in the wilderness. In this countryside mountain forest, experience its unique sense of seclusion, dwelling in the poetic idyllic paradise of Tao Yuanming.
▼夜幕中茶田远望山岫 ,Mountain Retreat at night

▼夜幕中茶田远望山岫 ,Mountain Retreat at night

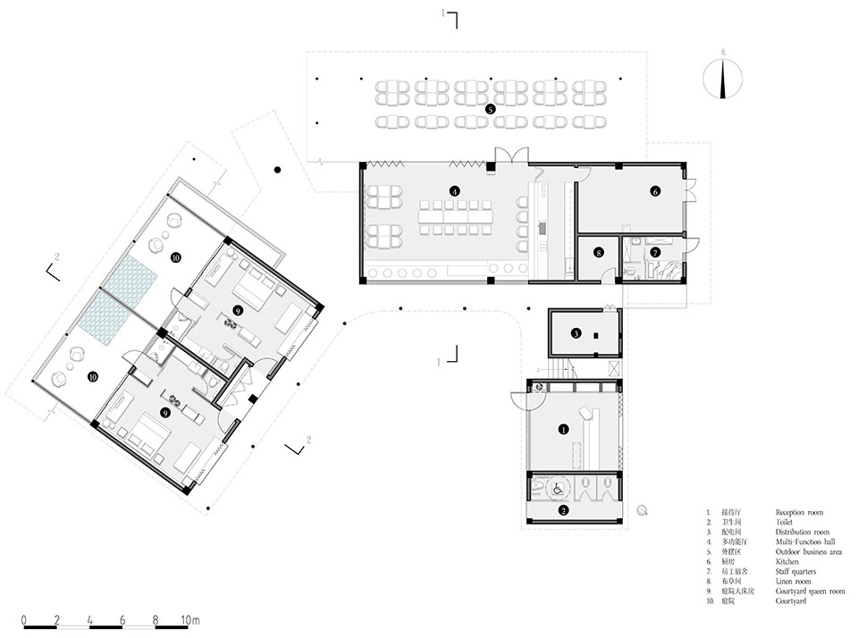
▼一层平面,ground floor plan

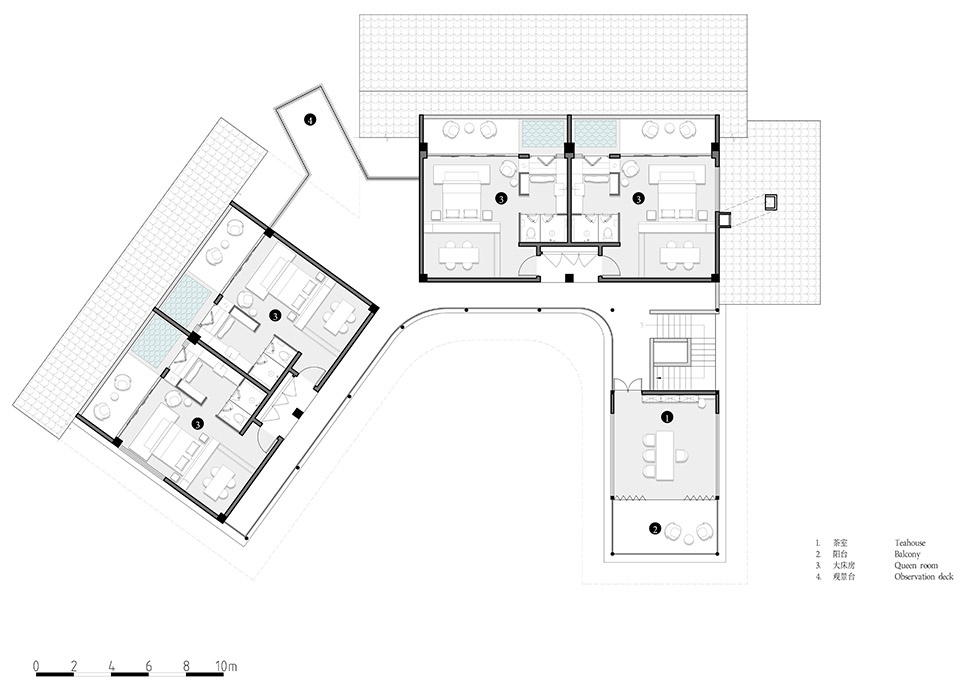
▼二层平面,first floor plan

▼剖面,section


Architectural Design Team: Archermit
Lead Architect: Youcai Pan
Design Director: Zhe Yang (Partner)
Technical Director: Renzhen Chen (Partner)
Design Team: Rui Yang, Qinmei Hu, Yaxian Zhao, Yuanjun Gou, Yuting Huang
Construction Drawing Team: Chengdu Meixia Architectural Design Co., Ltd.
Client: Xuyong Town People’s Government, Xuyong County
Construction Unit: Sichuan Chenghong Construction Investment Co., Ltd.
Photography: Arch-Exist , HereSpace
Copywriting: Youcai Pan, Xiangxin Ge
Project Location: Hongyan Village, Xuyong Town, Xuyong County, Luzhou City, Sichuan Province
Building Area: 693 square meters
Materials Used: Straw paint, copper-aluminum composite panels, ultra-clear insulated glass, wood grain paint, small blue tiles (mixed), lava panels, micro-cement, spruce wood panels
Completion Date: June 2024














