中山中研星园,广东 / 汉森伯盛
中研集团主要从事高端美妆产品的研发和生产,是广东省药监局首批认定的创新服务重点企业,积淀的科研实力奠定了中研尖端的行业地位。中研星园将作为总部核心工厂,与护肤品工厂、彩妆/香氛工厂、香水和气雾剂工厂一同构成中研的制造矩阵。为此,业主将星园定位为兼具效率和人性化的未来办公厂房形态。
Sinno Group is mainly engaged in the R&D and production of high-end cosmetic products, which is one of the first few of innovative service key enterprises recognised by the Guangdong Provincial Medical Products Administration, and its innovative strength has established the advanced industry position of Sinno. As the core factory, Sinno Park is forming the manufacturing matrix of the group, together with the skin-care product factory, cosmetics/fragrance factory, perfume and aerosol factory, which is positioned as a future office-factory form that balanced efficiency and humanisation.
▼园区内部日景, Day views of Sinno Park

▼园区中心鸟瞰, Aerial view

▼园区入口夜景, Night view of the entrance

01
底层逻辑
Underlying logic
在工艺生产属性的指引下,工业建筑始终在追求秩序与效率的空间理性。回归空间组织的根本,即内在的组织和人的行为本身推导的创作原点。根据规划,星园除了是办公与生产空间,还承担了展示、研发、检测、物流仓储、员工生活等功能。制造中心从原料运输到加工,再到测试,以及成品的存储,不同的工艺流程间均遵循严格的规范。除了具备物流与人流分离外,同时需为人工智能设备预留空间的可能性。
▼项目区位, Location

Guided by the production attributes, industrial architecture always pursues spatial rationality of order and efficiency. Returning to the fundamental of organising a space – the origin of creation derived from internal organisation and human behaviours. According to the plan, Sinno Park not only serves as an office and production unit, but also undertakes functions such as exhibition, R&D, testing, logistics and warehousing, as well as staff welfare. The manufacturing centre follows strict standards for a series of process flows, from raw material transportation to processing, testing, and the storage of finished products. In addition to separating logistics and pedestrian flow, reserving the possibility of space for artificial intelligence devices application in the future is crucial.
▼体量生成分析, Planning Generation Diagram

▼总图, Master Plan

▼功能分析图, Diagram

传统的工业规划策略无法解决工厂在工艺物流和办公人流上的矛盾,因此亟待创造一种既能保持各技术生产单元独立性,又能促进不同工艺技术人员效率最大化、聚集研讨、社会交往的新型工业空间形态。
Traditional industrial planning strategies are impossible to solve the contradiction between process logistics and personnel flow simultaneously. Therefore, it is urgent to create a new form of industrial space that can maintain the independence of each technical production unit while encouraging efficiency maximisation, gathering and discussing, as well as social interaction of different process technicians.
▼夜景鸟瞰, Aerial night view

▼建筑外观, Exterior views


在经过多种空间布局的可能性后,我们将不同功能单元相互分离:在垂直方向上根据工艺流程效率最大化的原则往立体化发展;水平向上则通过为人与机器人共事的未来厂区模式预留的环状轨道无缝连接,构建组团式的功能结构。不同功能单元的排布达到必要活动距离最短化这一效率本位目标,作为连接体的廊道就势营造大量大尺度的灰空间,为实际使用中的弹性处理。
After exploring various spatial layout possibilities, we separated different functional units. Then, those volumes were further developed based on the efficient maximisation principle in the vertical direction, while horizontally connected seamlessly through a circular track reserved for the future factory mode where humans and robots work together, constructing a clustered multi-functional complex. The layout of different functional units achieves the efficiency-oriented goal by minimising the necessary distance, and the corridors as the connector creates a number of large-scale grey spaces for flexible application in practical use.
▼办公空间立面, Façade of the office building

▼生产车间立面, Façade of the manufacturing space

▼立面局部, Details of facade

▼连接廊道, corridors and tracks

▼为机器人预留的连续环道, Corridors and tracks reserved for man and robots

02
新园筑关系
Neo archi-scenery relationships
在满足工艺要求的同时,中研星园从低碳策略、功能复合、可持续发展上探索。五个巨型体量在释放大量内部景观的同时,创造了与环境的生态资源相呼应的可能性,这是基于城市尺度下绿色能源和人体舒适性双向发展的可续工厂概念。
▼建造过程, Construction progress

While meeting the process requirements, Sinno Park explores low-carbon strategies, functional composites, and sustainable development. The five mega-structures release a large amount of internal landscape; meanwhile, they create the possibility of responding to the ecological resources of the surroundings, which is a sustainable factory concept based on the dual development of green energy and human comfort at the urban scale.
▼园区内界面, The interface within Sinno Park

掩埋在地下的4500m³水蓄冷工程,除作消防用途,更是错峰用电的必要设施,这与太阳能光伏板、智能楼宇控制系统协同,保持了建筑与生俱来的技术性与生态性。与其说本项目把绿色带进办公场景,不如说把办公与生活置于大自然。
The 4500m³ water storage and cooling project buried underground is not only for fire-fighting purposes, but also the essential facility for off-peak electricity consumption. This, in conjunction with solar photovoltaic panels and intelligent building control systems, maintains the inherent technicality and ecological nature of architecture. Rather than bringing greenery into the office, this project chooses to place both work and life in the nature.
▼建筑界面, Interface

▼水库边的星园, Sinno Park by the reservoir

03
逻辑的重整
Reorganisation of logic
随着产业细分与技术升级,包含商务办公、实验研发、生产加工、智能仓储在内的多种功能已可在一个复合形体内实现。本项目试图将办公、科研、品控、检测等产业链上的不同环节并置于一座工业建筑的垂直叠层中。根据不同职能需求,完成从模块到片区,从独立到共享的空间重组。穿插其间有不同尺度与私密性的会议空间,构成精细化的交际场所。
▼生产及物流效率最大化的建筑空间, Architectural space designed for efficiency

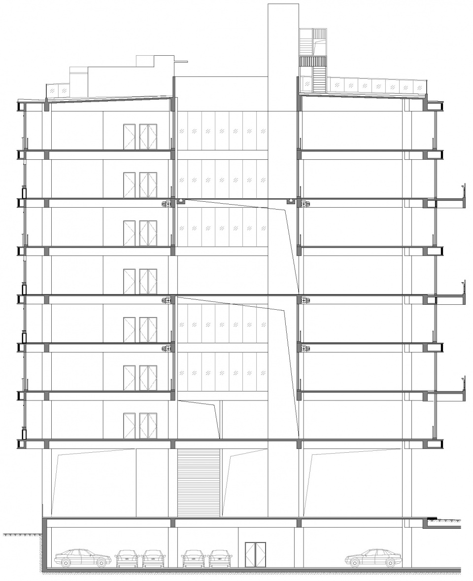
▼办公楼剖面图, Section of the office building

With the subdivision of industries and technological upgrading, various functions including office, experimentation, and production & processing, as well as intelligent warehousing can be realised in a composite form. This project attempts to juxtapose different segments in the industrial chain such as business, R&D, quality control, and testing into a vertical stack of industrial buildings. According to different functional requirements, the spatial reorganisation is completed from modules to zones, from individual to sharing. Meeting spaces of different scales and levels of privacy are interspersed in between, forming a refined intersection space.
▼垂直式仓储, Vertical Warehousing

▼办公区室内, Office interiors

从工艺流程、功能形态、能耗闭环、可续发展等多方综合利益最大化的原则下,中山中研星园在运营中将逐渐构成一个再生长、自循环的拟生命体状态。在汉森伯盛的长期愿景中,这种建筑-生命的同构关系可映射于更宏观、更宽泛、更复杂的建筑/城市对象,与现存的城市肌理叠加,实现城市系统的迭代模式。
Under the principle of optimising comprehensive benefits from multiple stakeholders such as process flow, functional form, energy recycling, and sustainable development, Sinno Park will gradually form a quasi-living organism status of regrowth and looping in operation. In Shing & Partners’ long-term vision, such isomorphic relationship between architecture and life can be mapped to larger, broader, and more complex architectural/urban objects, overlapping with existing urban textures to achieve an iterative model of urban systems.
▼从园区远眺, Views from Sinno Park

▼夜景鸟瞰, Aerial view at night

Project Name: Sinno Park
Architectural Design: Shing & Partners Design Group
Lead Designer Team: Shing & Partners Industrial Park Division
Technical Drawings: Guangzhou Hansen Architectural Design Co., Ltd.
Category: Architectural design
Interior Design: SQFT
Main Functions: Corporate, Factory, Mixed-use
Owner: Sinno Group
Gross Building Area: 181,126㎡
Design/Completion Year: 2020/2024
Project Address: No.1 Linhu Road, Nanlang Town, Zhongshan, Guangdong Province, China
Photography Copyright: Zhi Yi, Shing & Partners, Sinno Group














