新Lindengarten公寓楼,瑞士 / Volpatohatz AG
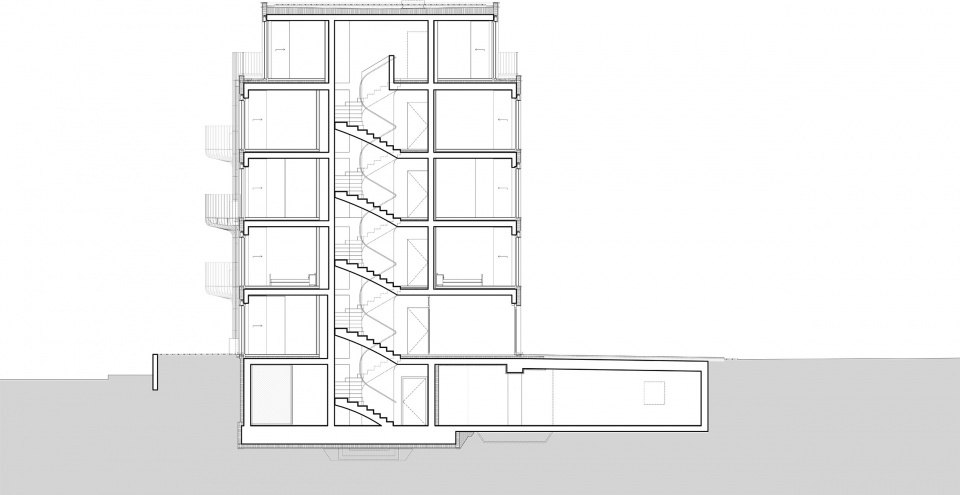
VOLPATOHATZ 受委托在瑞士比尔斯费尔登(Birsfelden) 设计一座 低层公寓建筑,名为 “The New Lindengarten Development”。该项目位于巴塞尔(Basel)附近,共五层,其中前四层包含 8 套公寓,第五层设有顶层公寓(penthouse)。地下区域设有9个停车位,并配备自行车存放区、储藏室和设备机房。
VOLPATOHATZ was commissioned to design a new low-rise apartment building in Birsfelden, Switzerland, called “The New Lindengarten Development.” The development, located near Basel, consists of eight apartments over four levels, plus a penthouse on the fifth level. The underground space includes parking for nine cars, along with bicycle storage, a storage room, and a plant room.
▼建筑立面,Architectural Facade


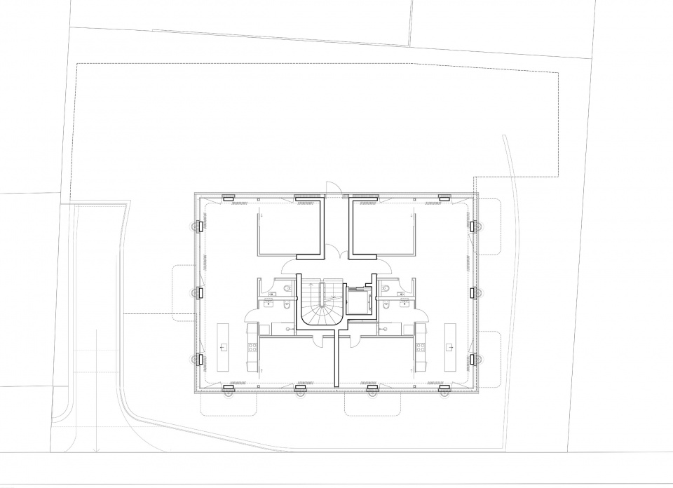
借鉴 Palazzina(小型公寓楼) 的设计概念,该建筑在所有立面上均设有阳台,但采用交错布局,使住户可以从客厅、餐厅、厨房或卧室直接进入阳台。建筑平面布局同样遵循 Palazzina 经典模式,即起居空间和卧室沿建筑外围布置,而卫生间、楼梯、电梯及管道井则集中于核心区,确保动线合理。设计概念旨在创造建筑外围的连续流线,同时通过共用墙(party wall)将公寓单元进行合理分隔,以确保住户的私密性。
▼总平,Masterplan

Similar to a classic Italian Palazzina, balconies are integrated into all facades but are staggered in an alternating pattern, allowing each apartment to access a balcony from either the living room, dining area, kitchen, or bedroom. The floor plan follows the Palazzina typology, with living areas and bedrooms positioned along the building’s perimeter, while bathrooms, staircases, elevators, and service ducts are concentrated within a central core. The concept was to allow circulation around the perimeter of the building and separated by a party wall between apartments.
▼街景,Street View of the Building


▼交错布局的阳台,staggered balconies

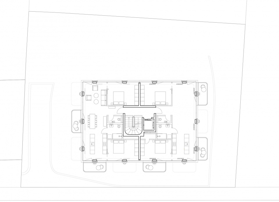
这一概念在顶层公寓(penthouse)中尤为明显,住户可在起居、卧室和浴室间 360° 自由流动,空间无任何隔断阻碍。每套公寓均设有长达 13 米的开放式起居空间,沿建筑平面两侧展开。三面窗户确保厨房(位于一端)、餐厅(中央)和起居区(另一端)均可享受充足的自然光照。所有窗户均由固定玻璃面板和玻璃门组成,并配备电动纱窗和可调节百叶窗,以优化通风和隐私保护。卧室可通过滑动门从起居空间两端进入,滑动门紧贴建筑外墙,进一步增强空间的通透性。
This becomes more evident with the penthouse apartment, one can freely circulate 360 degrees through the living, bedrooms and bathrooms with no walls to interrupt the flow. A 13-meter-long and uninterrupted living space, which flanks either side of the building floor plan, has windows on all three sides providing plenty of light to the kitchen on one end, dining in the center and living area on the opposite end. All windows comprise of a fixed panel and a glass door plus electric fly screens and louvers. Bedrooms are accessible from either end of the living space via sliding doors which butt onto the perimeter wall.
▼家庭办公区,Home Office in the Living Room

▼客厅,Living area

▼卫生间, Bathroom

这些阳台的生产过程十分特殊。采用了Katia(CATIA)程序、最先进的生产设备以及制造汽车的专业技术来打造这些阳台。从设计、开发到生产,整个过程耗时两年,但安装却只需几小时,大大加快了施工进度。每个阳台都配备了独立的地面排水系统,并设有检修口以便检查。外露的雨水管从顶层露台一路贯穿每个阳台,在下落过程中收集雨水,同时其设计也确保了维护的便捷性。
The production of the balconies was a special process. Katia programs and latest production facilities and knowhow for making cars was applied to these balconies. It took two years to design, develop and produce these balconies and requiring only a few hours to install which sped up the construction process. Each balcony has its own floor drainage system incorporated with an access panel for inspections. The exposed rainwater pipe runs from the penthouse terrace through each balcony collecting water on its way down is easily accessible for maintenance.
▼预制钢框架阳台模块,Prefabricated Steel Frame Balcony Module

每个阳台尺寸为1.5米 × 3米,可容纳多人使用,例如在小桌前饮茶、用餐或阅读。该设计概念希望通过钢结构框架的延伸,使不同住户的阳台在垂直方向上产生联系与互动,从而增强邻里之间的社交关系。每个阳台均配备专门设计的种植系统,植物可沿钢制格栅框架攀爬生长,形成天然绿化屏障。这些植物不仅提供视觉上的隐私性,也鼓励住户共同养护植物,进一步促进邻里联系。
Balconies are 1.5 x 3 meter in dimension making it generous for several people to sit on a small table and enjoy a coffee or simply read a book. The concept was to connect tenants by extending the steel frame from one apartment to enclose the neighbor’s balcony above. There are specially designed pots on each balcony which hold plants that climb up along steel slated frames. Leaves, which adorn each balcony, will provide visual privacy and motivate and a connection between tenants to be co-care over of these plants.
▼金属框架的延伸,Extension of the Metal Structural Frame


此外,每个阳台均整合了定制排水系统,并配备检修面板,以确保长期耐用性。暴露式雨水管从顶层露台一直延伸到底层,在各个阳台之间依次收集并输送雨水,同时便于维护。
Each balcony has its own floor drainage system incorporated with an access panel for inspections. The exposed rainwater pipe runs from the penthouse terrace through each balcony collecting water on its way down is easily accessible for maintenance.
▼阳台雨水收集系统,Balcony Rainwater Harvesting System


▼地下层平面, basement floor plan

▼首层平面, ground floor plan

▼二层平面, first floor plan

▼顶层平面, top floor plan

▼立面, elevations


▼剖面, sections


Project name: New Lindengarten Building
Project type: Residential Apartments Cat.V
Design: Volpatohatz AG
Website: https://www.volpatohatz.com/
Contact e-mail: t.li@volpatohatz.com
Design year: 2018-2021
Completion Year: 2021
Leader designer & Team: Volpatohatz AG
Project location: Muttenzerstrasse 17, 4127 Birsfelden , Basel landschaft, switzerland
Gross built area: 834 ㎡
Photo credit: Niklaus Spoerri
Partner:Structural Engineer: Ernst & Eitel GmbH
Landscape Architect: Grand Paysage GmbH
Clients:Privat














