快易名商静安科技中心,上海 / 阿科米星建筑设计事务所
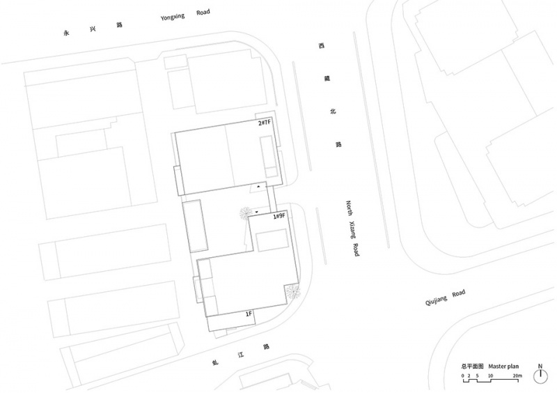
原贝尔厂房改造项目位于上海市原闸北区西藏北路525号,南临虬江路。基地内现存两栋工业建筑,分别为9层和7层,小园区内还有设备房和变电站。业主希望改造后将其转型为新一代高端租赁办公空间,打造区域内稀缺的准甲A级租赁产品。
The former Bell factory was located at No. 525 North Xizang Road, Shanghai,to south is Qiujiang Road. There are two major structures, one 9-storey and the other 7-storey, as well as a device room and a transformer substation. The client wants to renovate it into a high-end office for rental to meet the market demanding in this region.
▼ 建筑外立面,The exterior of building

▼建筑立面日景,Building facade in the daylight

▼建筑北立面,Building north elevation

▼建筑立面夜景,Building facade in the nightscape

然而,2019年办公租赁市场呈现出低迷的态势。在这样的市场环境下,仅仅凭借空间内部的品质以及所提供的服务,已难以对客户产生足够的吸引力。因此,建筑形象的重要性愈发凸显出来。同时,从周边整体城市环境看,该地段城市界面形象较为老旧。场地东侧主入口紧邻城市主干道,车流、人流密集,而现有的围墙封闭,使街道上的行人体验感较差,限制了该场地的开放性。综合考虑各种因素,设计师与业主一致认为较有效的解决方式是让这个旧厂房建筑彻底地改头换面。
▼改造前的贝尔厂房,The former Bell factory building

However, the office rental market was already challenging in 2019. To attract potential clients, it would be insufficient to only improve the interior spatial quality and office services. The building’s appearance would have notable significance. Additionally, the surrounding urban environment and buildings are outdated. The main entrance is at the east side of the site, close to the main road with dense flow of people and traffic. But with walled boundary, the site is not open enough and the pedestrian experience is poor. Taking all these factors into consideration, the designer and the client both agree that completely refreshing the old factory would be the most effective approach.
▼街角望向建筑,building view from the street corner

▼临街界面,Street frontage

▼内庭的建筑外立面,Building facade of The inner garden


▼临街外立面细节,details of facade with street

设计团队提出了“闪亮、突出、高调的形象设计”这一直白策略——立面就是广告。通过银色铝板幕墙体系的建构,建筑既延续了工业感的金属基因,又以具有时尚感的材料质感形成视觉焦点。这种策略不仅实现了业主期望的”彻底蜕变”效果,创造了商业价值,更通过建筑立面的重构激活了城市活力。
▼改造后立面图,elevation after renovation


The design team proposed a straightforward strategy of creating a “shiny, prominent, and high-profile image ” – turning the façade into advertising. Through covering a silver aluminum panel curtain wall, the building not only maintains its industrial metallic gene but also becomes eye-catching with fashionable textures. The façade renovation has successfully achieved the fully refreshing effect. The client is satisfied for the renovation has promote both the commercial value and the urban vitality.
▼主入口,main entrance

▼临街外立面细节,details of facade with street



▼外立面与窗户,details of facade and window

立面构造时,沿街立面保留了现有楼层及结构,在满足消防要求的基础上,采用落地窗系统填充框架。同时在局部增设穿孔板作为侧面开启扇的装饰,保证了立面的大片玻璃窗的整体效果。金属铝板外墙在主体窗间墙部分设计成有韵律、交错节奏的凹凸形式;在大面积山墙部分设计成整体平整,局部变化形式。在阳光的照耀下,主体的银色幕墙仿佛为建筑披上了一层流动的金属外衣,使其在周边环境中脱颖而出。
We have preserved the existing floors and structures for the street elevation. When guaranteeing the fire safety, floor-to-ceiling window systems were used to fill the framework. The large glass façade is mostly kept integrity, only covering the side openings with perforated panels. The aluminum curtain wall features rhythmic concave-convex patterns on main window piers, while adopting smooth surface on the large gable walls, with limited variations. Bathing in the sunlight, this silver curtain wall looks like a flowing metallic cloak, distinguishing the building from its surroundings.
▼夜景中的临街界面, Street frontage in the nightscape

内院立面构造则在保留现有格局的基础上进行了细节优化。采用了节约造价的玻璃窗和金属饰面,以简约的手法确保建筑各立面风格一致。同时,也为内院中的主体车库设计了轻巧、雅致的外观镂空金属装饰幕墙表皮。
The courtyard façades have been largely preserved, with only detailed refinements. We have only applied economical glass windows and metal finishes to ensure the consistency. Meanwhile, a lightweight and elegant perforated metal decorative curtain wall was designed for the main garage in the courtyard.
▼夜景中的建筑,Building in the nightscape


▼场地平面,site plan

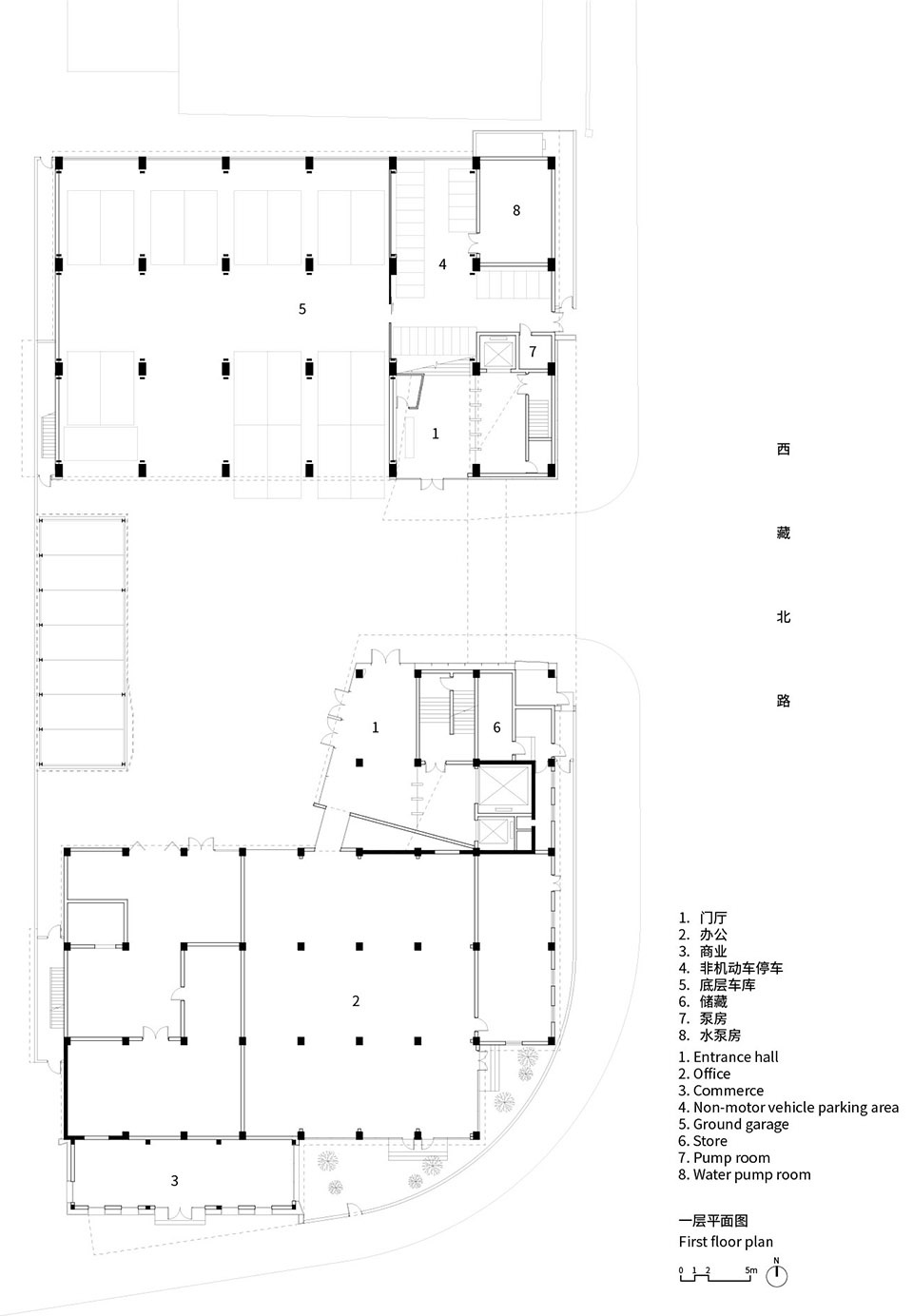
▼一层平面图,ground floor plan

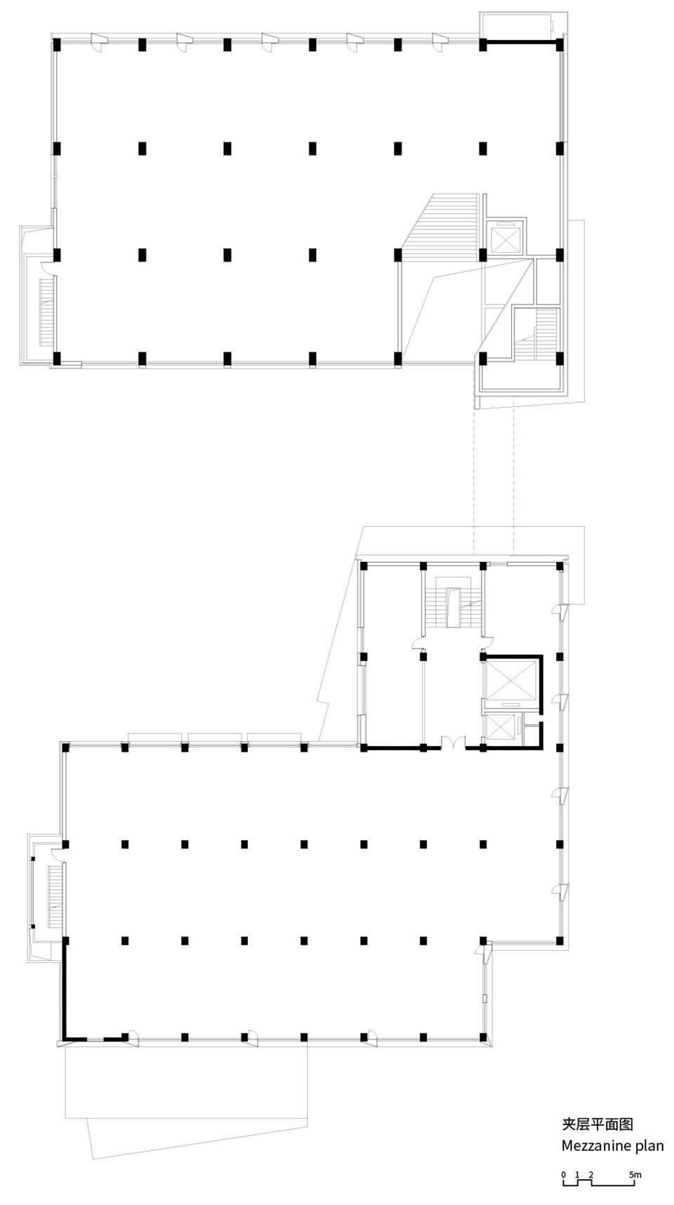
▼夹层平面图,mezzanine floor plan

▼改造后立面图,elevation after renovation

Project name:Project: KYMS Technology Centre
Project type:Office Building
Design:Atelier Archmixing / Zhuang Shen, Ren Hao, Tang Yu, Zhu Jie
Website:http://www.archmixing.com/home
Contact e-mail:archmixing@126.com
Design year:2019
Completion Year:2020
Leader designer & Team:Zhuang Shen, Zhu Jie,Zhang Haochen, Deng Jian, Xu Fan, Ye Zi, Arong Gaowa
Project location:No. 525, Xizang North Road, Jingan District, Shanghai
Gross built area: 15187.99 ㎡
Photo credit: Tang Yu, Chen Pingnan
Clients:Shanghai kuaiqin Enterprise Management Co., Ltd
Structure: Jiangsu UrbanConstruction College Architectural Planning and Design Institution CO., LTO
Construction: Shanghai Dimon Curtain Wall Engineering Technology Co., Ltd
Materials:Aluminum plate and glass














