考文特花园公寓,伦敦 / Carmody Groarke
在一座十九世纪被列为二级保护建筑(Grade II Listed)的原商人宅邸中,一套全新的复式顶层公寓通过新增一座屋顶铝制亭阁,获得了独特的身份标识。
A new duplex penthouse apartment in a nineteenth-century Grade II Listed merchant’s house is given a uniqueidentity with the addition of a new rooftop aluminium pavilion.
▼项目鸟瞰,aerial view of the project


现有建筑的顶部两层经过全面翻新与重塑,以契合居住者定制化的家庭生活模式。下层空间中,入口门厅与卧室均以胡桃木镶板细部包裹,营造出温暖而亲切的氛围;与之形成对比的是,上层则采用了开敞的起居布局,充分利用了阁楼原有的挑高空间及其俯瞰考文特花园市场的全景视野。设计在原有屋架之间引入了大型天窗,将自然光与新鲜空气深度引入室内空间。
The top two floors of the existing building have been extensively renovated and remodelled to accommodate bespokepatterns of family life. On the lower level, the entrance lobby and bedrooms are lined throughout with walnut-panelledjoinery to give a warm and welcoming atmosphere. In contrast, the upper floor’s generous open-plan living takes fulladvantage of the loft space’s high ceilings and panoramic views over Covent Garden Market. Large new skylights havebeen introduced in between the original roof trusses, bringing daylight and fresh air deep into the plan.
▼项目近景,closer view of the project

▼项目近景,closer view of the project


在场地后方,新增的屋顶亭阁进一步延展了阁楼空间,内部设置了新的厨房,外部则形成了一个带遮蔽的屋顶露台。亭阁形式回应了传统坡屋顶扩建的建筑语言,开窗尺度慷慨,体量轻巧地叠置于既有的伦敦老砖附楼之上。不同于传统建筑沉重的构造感,亭阁采用了25毫米厚的实心打磨铝板作为墙体与屋面材料,令整体形态在视觉上抽离出沉重感。大面积金属板块相互倚靠,以一种结构平衡的姿态呈现,仿佛金属自身达成了完美的稳定。
To the rear of the landlocked site, the new rooftop pavilion extends the loft space, housing a new kitchen inside and a sheltered roof terrace outside. It takes the familiar form of a pitched roof extension with generous openings and isdesigned to balance lightly on top of the existing London stock-brick annexe. However, the use of 25mm-thick solid-plate sanded aluminium for walls and roof, abstracts the pavilion’s form from the weighty appearance of traditionalconstruction. Instead, its monolithic sheet metal plates appear to lean against one another in a state of structural equilibrium where solid metal plates achieve perfect balance.
▼带遮蔽的屋顶露台,a sheltered roof terrace

这一策略赋予亭阁一种原质性、雕塑般的存在感,成为城市天际线上鲜明而大胆的新轮廓,与周围传统屋顶加建形成了强烈对比。亭阁沿建筑后立面延伸约14米,其板块比例暗示呼应了下方原有开窗的节奏与序列。
This gives the pavilion a distinctive, elemental presence—a bold new silhouette on the city skyline that contrasts with the surrounding roof extensions. The pavilion extends 14 metresacross the rear of the building, with the proportions of its plates subtly referencing the window patterns below.
▼城市天际线上鲜明而大胆的新轮廓,a bold new silhouette on the city skyline

铝材之所以被选用,既基于其物理上的轻质特性,也因其能在视觉上营造轻盈感。外部,明亮金属表面与深邃阴影形成鲜明对比;内部,则通过反射光线,创造出流动而明亮的空间氛围。铝板经过打磨处理,以获得统一而精致的表面质感。
Aluminium was chosen both for its physical lightness and its ability to create a sense of visual levity. Externally, itestablishes a striking contrast between the bright metal and deep shadows, while internally, it reflects light to create aluminous atmosphere. The aluminum has been sanded to achieve a consistent, refined finish.
▼内部流动而明亮的空间氛围,created fluid and bright atmosphere



新厨房内部则选用了磨砂不锈钢材质,内外在材料语言上建立了连续性,进一步强化了项目中室内与室外空间的联系。
Inside the new kitchen, crafted from sanded stainless steel, a material dialogue is established with the aluminium exterior.This continuity in materiality links the interior and exterior elements of the project.
▼磨砂不锈钢材质厨房,kitchen crafted from sanded stainless steel



室内空间,包括家具陈设,均与工匠团队密切合作完成,确保每一处细节都为考文特花园公寓量身打造。项目整体以精湛的工艺与精心考量的材料组合为特征。
The interiors, including the furniture, were crafted in collaboration with a team of makers and craftspeople, ensuring thatevery detail is tailored to Covent Garden Apartment. The project is defined by this craftsmanship and a carefully considered material palette.
▼卧室,bedroom

▼浴室,bathroom

所选用的材料包括黑胡桃木、心材白蜡木以及银色洞石。银色洞石石材精选自意大利采石场的整块荒料,经干挂排版后挑选,用以界定厨房、浴室及露台等关键区域。银色洞石与无缝铝板形成鲜明对比,同时与胡桃木的深沉色调实现了质感与色彩上的和谐统一。
The materials include black American walnut, heartwood ash, and silver travertine. Handpicked from quarried Italian silvertravertine blocks, each stone slab was dry- laid and selected to define key areas such as the kitchen, bathrooms, andterraces. The travertine creates a striking contrast with the seamless aluminium while harmonizing with the rich tones ofthe walnut.
▼模型,model

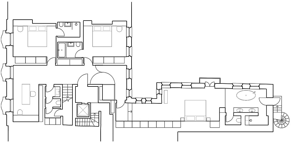
▼三层平面,third floor plan

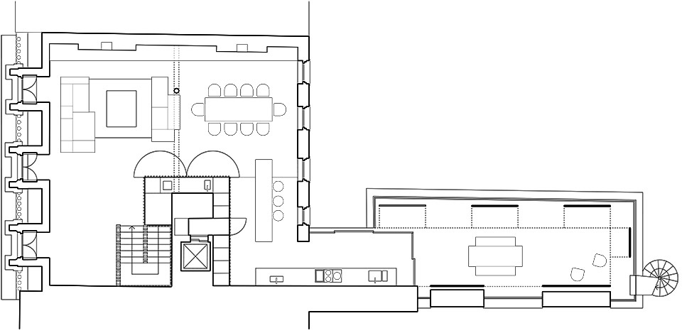
▼四层平面,fourth floor plan

▼剖面,section

▼剖面,section

Project team
Architect: Carmody Groarke
Main Contractor: London Projects
Structural Engineer: Price & Myers
MEP Engineer: P3R
Cost Consultant/CA: Brendan Hennessy Associates Acoustic Engineer: Sandy Brown
Pavilion Fabrication/Engineer: Littlehampton Welding/Format Joinery: Young & Norgate
Lighting Design: Antumbra
Planning Consultant: Gerald Eve
Heritage Consultant: Donald Insall Associates Fire Engineer: Fire Dynamics
Photography: Johan Dehlin and James Retief


![[荒野之家 #115#]-长颈鹿之家,武汉 / 个个世界 + 先进建筑实验室](https://www.iecwww.com/uploads/images/20250409002/20250409002001.jpg)











