郊区住宅,捷克 / ORA
该项目旨在改造一栋建于20世纪50年代的半独立式住宅,以满足一个大家庭的现代生活需求。如今,家庭生活方式已不同于房屋建造时的设定,不再受限于传统的房间划分。住户的核心诉求是创造一个宽敞的共享空间,但原有的房屋布局由多个相似的房间组成,过于零碎,与这一需求不兼容。因此,空间和功能必须被彻底重塑——首先是打开底层空间,同时阁楼的使用也变得必要。
The project deals with the adaptation of half of a semi-detached house from the 50s for the needs of a large family. The life of the family today is different than at the time of construction. Today life is not confined to strictly defined rooms. The main requirement of the residents was to create a large space for living together. This was not compatible with the complicated layout of the house made up of many identical rooms. The house had to be radically transformed from the inside, spatially and operationally – the ground floor had to be opened up. This made it necessary to occupy the attic.
▼项目概览,overall of the project

我们用一个带壁炉的开放式共享空间取代了原先封闭的房间结构。为了营造更具层次感的空间体验,我们移除了部分客厅上方的楼板,将起居区与楼上的游戏室相连,以加强家庭成员之间的互动与联系。一楼的儿童房围绕着游戏室布置,使其成为家庭活动的核心。
Instead of a labyrinth of chambers and rooms, we create a large common space with a fireplace in the middle. In order to make the space not only large but also have a quality of height, we move the ceiling above part of the living space and connect the lounge area with the playroom upstairs. This in turn reinforces family togetherness. On the first floor, the children’s rooms are situated around the playroom.
▼带壁炉的开放式共享空间,the large common space with a fireplace

▼工作室,studio


▼玄关,entrance

▼走廊,hallway

▼楼梯,staircase


室内设计追求温馨的氛围,而非过度复杂的结构和材质。木材在不同的加工工艺下呈现出丰富的肌理,手工刷涂的涂料则保留了匠人的工艺痕迹。此外,我们大胆运用色彩,使空间更具活力和个性。
The interior wants to be welcoming. It overwhelms its inhabitants with an excess of structures and textures. Wood in various finishes, squeegees, and paint where the workmanship of the human hand is evident. Yet we don’t shy away from colour.
▼二层走廊,hallway of the upper floor

▼游戏室,play room

▼二层共享空间,upper floor sharing space

▼浴室,bathroom

▼浴室,bathroom


▼细部,details



▼材料细部,details of material




从内向外的转变Direction From the Inside Out
正如房屋内部的布局发生变化,房屋与外部环境的关系也被重新定义。庭院不再是一个被房屋背弃的实用空间,而是成为家庭生活的一部分——新的玻璃房让主要起居空间向庭院延展,使后院在温暖的季节成为起居空间的自然延伸。
Just as the relationships within the layout have changed, so too has the relationship to the exterior. The courtyard is no longer a utilitarian space from which the house turns away, since it is not anymore used for production. Rather, it is a space for recreation – the main living space spreads its influence through the new glass room. In the warmer months, the backyard is a natural extension of the living space.
▼厨房与餐厅位于后部加建的玻璃房中,the kitchen and dining room are housed in a glazed addition to the rear


从外向内的转变Direction From Outside to Inside
房屋面向街道和庭院的姿态各不相同。面对街道,我们选择保留房屋原有的体量感,并复刻了原始窗户,以维护其历史氛围。尽管内部功能发生了根本性变革,我们仍希望延续建筑原有的形象与气质。其中,朝向街道的老虎窗不仅容纳了游戏室,也成为房屋的新标志性元素。
The house faces the street differently and the yard differently. It does not change or open much to the street. Although the house is being radically transformed operationally, we did not want to completely erase its original image and atmosphere, which certainly had qualities. We have kept the original massing legible, including the openings with replicas of the original windows. The dormer facing the street, which houses the playroom, creates a new landmark of the house.
▼街道一侧立面,facade along the street


而在庭院一侧,策略完全相反——房屋尽可能地向外敞开。一个玻璃房被附加至建筑主体,并在一楼延续这一设计,使住宅在最大程度上与庭院建立联系。
From the courtyard, the strategy is different – the house opens up as much as possible. A glass room is attached to the house and its motif is repeated on the first floor.
▼庭院一侧立面,facade facing the courtyard

▼总平面图,master plan

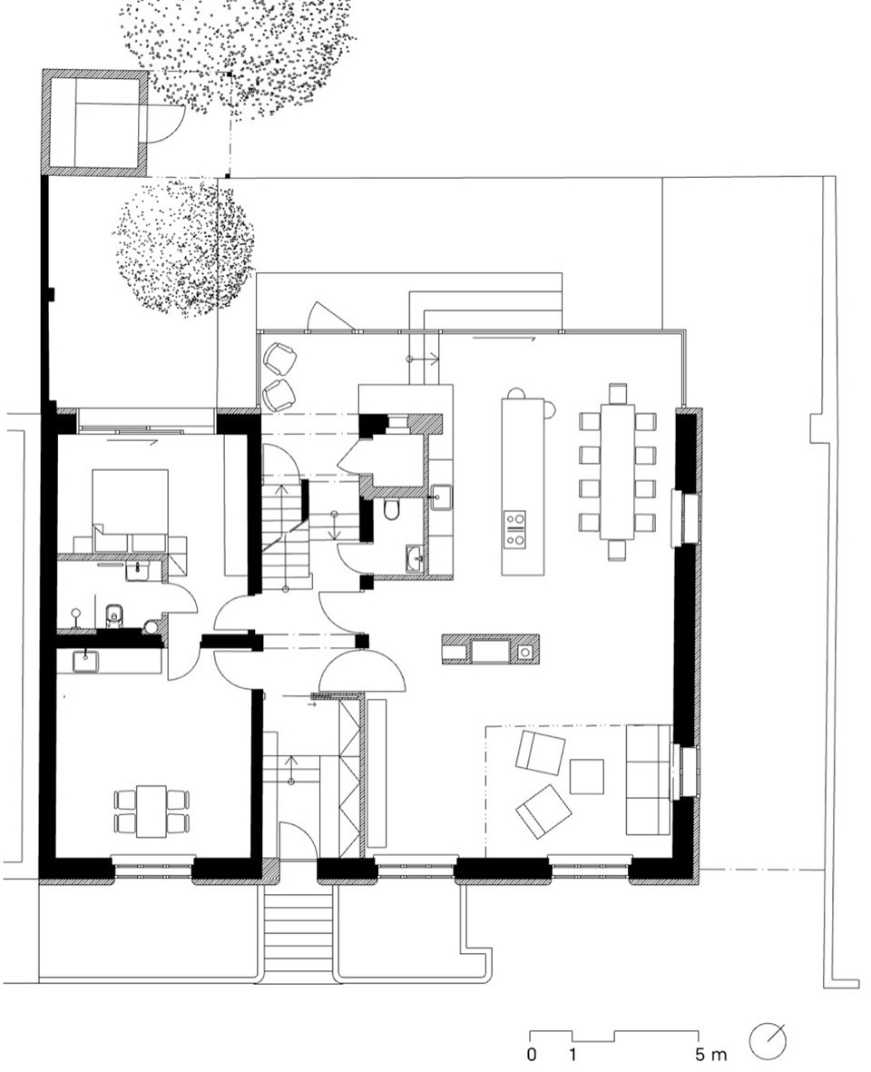
▼一层平面图,ground floor plan

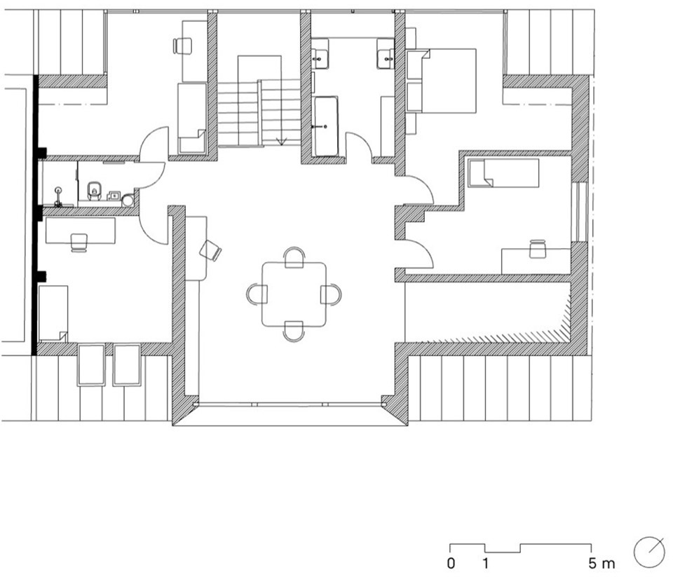
▼二层平面图,upper floor plan

▼立面图,elevations



Studio: ORA
Author: Jan Veisser
Jan Hora
Barbora Hora
Contact E-mail: dohromady@o-r-a.cz
Website: http://www.o-r-a.cz/
Social media: http://www.instagram.com/originalregionalarchitecture
http://www.facebook.com/originalniregionalniarchitektura
Studio address: Rooseveltova 836/6, 669 02 Znojmo, Czech Republic
Co-author: Karolína Cebová
Project location: Nová 220/12, 664 49 Ostopovice
Project country: Czech Republic
Project year: 2015
Completion year: 2022
Built-up area: 195 m²
Usable floor area: 390 m²
Plot size: 693 m²
Photographer : Jiří Alexander Bednář,
http://www.jiribednar.com/, studio@jiribednar.com
Collaborators and suppliers:
Landscape architect: Vlasta Hábová, http://www.slowgardens.com/
Construction project: Projekce 21, http://www.projekce21.cz/
Interior contractor: ACER WOODWAY, http://www.acerww.cz
Exterior faceted concrete: Rebus, http://www.schody-rebus.cz/
Modern windows: Slavona, http://www.slavona.cz/
Mullioned windows: Truhlářství Brtník, http://www.brtnik-truhlarstvi.cz/
Materials
cement tiles – bathroom floor
screeds – floors, fireplace
oak parquet – floors
colored birch plywood – custom furniture design
Products and Brands
custom interior lighting — ATEH lighting\ http://www.ateh.cz/














