Gambit总部,捷克 / KWK Promes
Gambit是一家专营管道分销的公司,委托建筑师设计一座集办公与仓储于一体的新总部建筑。项目既需体现企业特色,又被要求以尽可能低的成本完成。建筑师提出以Gambit主营的管道作为建筑材料,不仅能够以成本价获取,还能强化品牌识别。同时,他们希望办公与仓储构成统一整体,因此将建筑设计为一组“管道堆叠”的形式,清晰传达出企业的核心业务。
Gambit, a specialist pipe distribution company, commissioned us to design an office-warehouse building that would serve as its unique showcase. Yet we were asked to do it at the lowest possible cost. So we came up with the idea of using the material they trade in, which they could also acquire at cost. At the same time, we wanted the office and warehouse sections to form a unified whole. As a result, we designed the building to look like a stack of pipes, immediately communicating what the company does.
▼周边环境,surrounding environment

▼远观,distant view

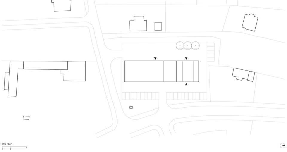
项目场地原为一座矩形厂房,周边则以坡屋顶住宅为主,常配有修长的立方体附属建筑。这种地域特征启发了建筑的最终体量构成。建筑的三大功能——仓库、订单准备车间和办公区,分别通过体量的高低与形状加以区分。办公区位于一座带有斜面墙体的两层结构中;中部较低的部分设为车间;最高的立方体则为无采暖的仓库。
A rectangular production hall once stood on this site, but the immediate surroundings consist of residential houses with steep roofs, often accompanied by long, cubic outbuildings. This inspired the final form of the building. The three main functions of the building—a warehouse, a workshop for preparing orders, and an office area—are reflected in its form. A two-storey section with sloping walls houses the offices, a lower section serves as the workshop, and the higher cuboid is an unheated warehouse.
▼外观,exterior view

▼体量的高低与形状代表了三大功能,the height and shape of the volume represent the three functions

屋顶的坡度由管道的排布方式自然决定。斜向布置的管道限定了唯一可能的倾角,也由此生成了办公区屋顶的形态。为满足当地城市规划对高度的限制,建筑师在二层处削平了办公体量,避免不必要的空间浪费。有趣的是,几年后艺术家克里斯托(Christo)在《伦敦马斯塔巴》中,也通过对桶的唯一排列方式,形成了相似的几何形体。
The way the pipes were laid out determined the pitch of the roof. The angled layout of the pipes creates the only possible inclination angle, which defines the shape of this part of the building.The office section with the sloping roof was trimmed at the second floor level to stay within the height limit set by the local zoning plan, and the additional volume would have been unnecessary. The office section with the sloping roof was trimmed at the second floor to comply with the local zoning height limit, and to avoid generating unnecessary volume. Interestingly, a few years later, Christo presented The London Mastaba, in which he achieved a similar form—this time resulting from the only possible arrangement of barrels.
▼近景,closer view

▼设计以Gambit主营的管道作为建筑材料,the design uses Gambit’s main pipeline as the building material


▼立面,facade

从街道一侧望去,这座建筑构成了明确的城市界面;而从住宅区方向望去,其体量被打散,有机地融入周围松散的建筑语境中。尽管初期计划使用Gambit的管道材料作为立面,但由于其为地下专用,不耐紫外线且不符合防火规范,最终被替换为原色铝板。这种材料不仅成本更低,也在建筑师以往项目中获得良好验证(如 OUTrial House、Unikato 和 Konieczny’s Ark)。铝板随时间氧化后会形成包浆,呈现出如混凝土般的哑光质感,朴素且富有原始韵味。此外,这种材料坚固耐久、几乎无需维护,符合建筑师一贯倡导的可持续策略——在建筑生命周期中,运行阶段往往占据高达30%的碳排放,因此他们始终倾向于选择低维护、低影响的建造方案。
The Gambit building forms a frontage from the street, while, when viewed from the residential district, its fragmented volume blends into the dispersed context. The façade was ultimately not made from Gambit pipes—designed for underground use—as we found that they oxidised under UV light and did not meet fire safety requirements. Instead, we reached for inexpensive, raw aluminium sheeting, which was not only cheaper but also proven in our previous projects such as the OUTrial House, Unikato, and Konieczny’s Ark. This material develops a patina over time, taking on a matte, raw character reminiscent of concrete. Importantly, the sheet is incredibly durable and virtually indestructible, making it easy to maintain. This is crucial for us because the operation of buildings generates up to 30% of CO₂ emissions, so we always seek simple, low-maintenance solutions.
▼侧立面,side facade

▼细部,details

建筑边缘的管道端口被封闭,以防风中发出啸声。尽管业主起初担心这座建筑会吸引动物栖息,建筑师依然决定不加装防鸟网。他们逐渐倾向于让这座建筑具备生态友好性——若鸟类愿意在此栖居,也是一种额外的功能价值。最终他们成功说服了业主,虽然不确定究竟是出于生态理念还是节省投资的现实考量——毕竟取消防护网大幅降低了成本。
The pipes at the edges of the building have been capped to prevent them from whistling in the wind. Although the investors initially feared that the building might become a shelter for various animals, we ultimately decided against installing bird nets. The protection had been planned in the design, but the more we thought about it, the more we leaned towards the idea that it would be beneficial if birds liked the building and it gained an additional function. We began to convince the investors—and in the end, we succeeded, although we are not sure whether it was the ecological or financial arguments that convinced them, as skipping the nets significantly reduced investment costs.
▼立面近景,closer view of the facade



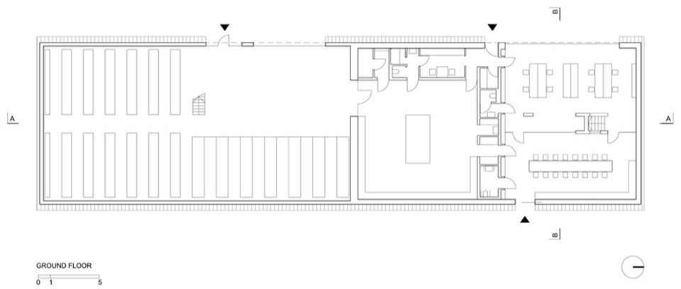
建筑内部的采光通过传统窗户与天窗共同实现。一层的办公区设有落地玻璃,可望向停车场中开辟出的花园庭院;楼上的储藏与辅助空间则通过天窗获得自然光线,确保空间灵活可变。由于建筑以工业用途为主,周边主要为卡车与汽车的停车场。因此,建筑师在最低体量的屋顶上设置了一个员工休憩露台,为这座功能导向的工业建筑注入一份温暖的人文关怀。
The interiors are well-lit by traditional windows and skylights. In the office spaces on the ground floor, designed for regular occupancy, employees have classic glazing with a view of a small garden carved out of the parking area. The storage area and auxiliary rooms on the upper floor, which require flexible space along the external walls, are illuminated by skylights. The building serves a strictly industrial function and is primarily surrounded by parking forcars and trucks. Therefore, on the roof of the lowest part, we have designed a relaxation terrace for the employees.
▼办公区,office area

▼楼梯间,staircase


▼仓储部分,warehouse area

▼分析图,analysis diagram

▼场地平面图,site plan

▼底层平面图,ground floor plan

▼二层平面图,first floor plan

▼剖面图,section

▼立面图,elevations
















