堂屋,南京 / 内建筑设计事务所 + Studio Hu,南京大学建筑与城市规划学院
堂屋位于南京江北老山脚下的响堂村,是一座多功能公共建筑,承担村里较为正式的公共活动,如会务、展览、接待、展示等。建筑坐落在村庄西南角的一处谷地。北边紧邻山坡,南边是泄洪的河沟,东边为开阔的绿地。场地上有一座两层坡顶建筑需要保留。总建筑规模约1370㎡。
Located in the village of Xiangtang at the foot of the Old Mountain in the northern part of Nanjing, the village hall is a multi-function public building that undertakes formal public activities, such as meetings, exhibitions, receptions, and displays. The building is located in a valley in the southwest corner of the village. It is bordered by a hillside to the north, a flood-discharging river gorge to the south, and open green space to the east. There is a two-story existing building on the site that needs to be preserved. The total building size is about 1,370㎡.
▼项目概览,overall of the project

▼建筑外观,exterior of the building

▼街景,street view

设计概念Design Concept
在中国传统民居中,堂屋是大家庭最重要的公共空间,是日常起居、会客议事的空间,也是举行家庭祭祀和重大礼仪的场所。堂屋多为高大的半开放空间,象征和展现大家庭的身份和地位。
In traditional Chinese residential architecture, where a big family living together, the main hall called ‘Tang Wu’ is the most important domestic family space. It is a space not only for daily living, meeting, holding rituals and ceremonies, but also a place to show the wealth and status of the family, usually with a formal architectural gesture and tall, dark and semi open space.
▼远景,distant view

▼漂浮的大屋顶,floating canopy

▼屋顶之下,under the canopy

▼近景,closer view

作为村里公共集会中心的建筑,自然也就成为乡村这个大家庭的“堂屋”。它有两种状态,并在其间自由切换:一种是一本正经的模样,容纳各种礼仪性、正式性活动,延续传统堂屋的庄重与仪式感;另一种是松弛而随性的状态,通过各种灰度的柔性空间,满足非正式交往的需求。
As the center of public gatherings in the village, the building naturally becomes the “Tang Wu” of the extended family of the village. It has a tall and big interior space that accommodate formal activities, such as conference, ceremonies. At the same time, it provides lots of open public spaces for villagers and tourists to encourage social interaction. A big floating roof unifies the formal and informal spaces and activities in a simple and easy way.
▼建筑与环境,architecture and environment

▼建筑提供了各种灰度的柔性空间,the building provides flexible gray spaces

▼远观,distant view

▼建筑外观,exterior of the building

▼入口,entrance

设计方案没有直接采取“乡土”的设计语言,而是选择现代材料和结构形式,探索乡土意向的呈现。从远处眺望堂屋,穿过茂密的树梢,堂屋犹如一把撑开的伞,或是一顶漂浮的斗笠,若隐若现地掩映在绿意盎然的自然中。其起伏的屋脊和深色线条构成的质感,与周边错落的农房倒也和谐共存。
The village hall intentionally avoids the vernacular architectural style, and applies modern materials and structure with certain visual and spiritual representation of the tradition architecture. To some extend, it is like an open umbrella or a floating bamboo hat, faintly hidden in the lush greenery of nature. The undulating ridges and dark lines of the roof coexists harmoniously with the surrounding scattered farmhouses.
▼堂屋犹如一把撑开的伞,the building is like an open umbrella

▼屋顶宛如漂浮的斗笠,the roof is like a floating bamboo hat

▼屋顶之下,under the roof

▼二层露台,terrace

▼细部,details

结构创新Structural Innovation
为了实现黑色大屋顶的漂浮感,建筑在结构上进行了创新。屋顶作为整体受力体系,不仅要克服大悬挑大跨度的困难,还要让每根杆件尽可能纤细,最大限度地塑造杆件结构的轻盈感和构成感。
In order to achieve the sense of floating, a structurally innovation of the big steel roof is carried out. The roof structure not only needs to overcome the large cantilevers and spans, but also needs to make each member as slender as possible, so as to better present the sense of the lightness and composition of the rod structure.
▼屋顶之间的关系,relationship between the roofs

▼仰视屋顶,looking up to the roof

▼灰空间,gray space

▼细部,details

▼室内展览空间,interior exhibition area


借助Rhino中的Grasshopper插件扩展工具,基于Karamba3D受力分析与找形技术(form finding),探索适合建筑师在方案阶段进行结构形态设计的工作流,顺利完成屋顶非对称复杂造型的结构形态设计。
▼屋顶结构分析图,roof structure analysis

▼屋顶结构软件分析图,roof structure analysis software

With the help of Grasshopper plug-in tool in Rhino, based on Karamba3D force analysis and form finding technology, we explored a workflow suitable for architects to carry out structural form design in the proposal stage, and successfully completed the structural form design of the asymmetric and complex shape of the roof.
▼夜景顶视图,top view at night

▼内部夜景,interior view at night

▼村落肌理图,Village texture

▼结构拆解分析图,analysis diagram

▼结构概念图解,conception of structure

▼总平面图,site plan

▼一层平面图,ground floor plan

▼二层平面图,upper floor plan

▼立面图,elevations

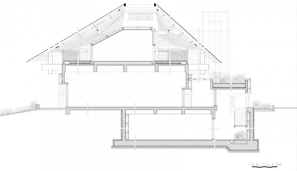
▼剖面图,sections

▼大样图,details

Project name: Village Hall
Project type: Rural Architecture
Design: Interior Architecture Studio;Studio Hu,School of Architecture and Urban Planning
Contact e-mail: youpei.hu@nju.edu.cn
Design year: 2021
Completion Year: 2023
Leader designer & Team: Youpei Hu;Lei Shen; Qingpeng Li; Qi Wang;Shufan Wu; Yuanyuan Rui; Jingwen Yang;Guangtong Lv
Project location: Xiangtang Village, Pukou District, Nanjing City, Jiangsu Province
Gross built area: 1458 ㎡
Photo credit: Bo Zhou;Jian Sun;Jie Pan;Studio Hu
Partner: NORTH CHINA MUNICIPAL ENGINEERING DESIGN & RESEARCH INSTITUTE CO.,LTD.
Clients: Nanjing Pukou Culture and Tourism Group
Materials: Weathering steel plate;Steel;Concrete














