家具城上的运动社交场-超级光合运动空间 / 普罗建筑
1 “家具之城”如何再生? How to regenerate the “Furniture City”?
城外诚家具城是北京南城最大规模的家具售卖市场之一。曾经,如集美,城外诚,居然之家,红星美凯龙等巨型的家具城,其巨大的体量与人流,形成了北京城中的巨大的城市节点,塑造了曾经的环线上诸如“十里河”,“丽泽桥”,“玉泉营”,“五棵松”,“大红门”等“家具之城”的城市图腾,而其巨大的体量和繁杂的人流也总被诟病为影响区域品质的“城市问题”。
Chengwaicheng Furniture City is one of the largest furniture sales markets in the southern city of Beijing. Once upon a time, giant furniture cities such as Jimei, Chengwaicheng, actually home, Red Star Macalline, and so on, with their huge volume and flow of people, formed huge urban nodes in the city of Beijing, shaping the once ‘Shilihe’, ‘Lize Bridge’, ‘Yuquanying’, ‘Wukesong’, “Dahongmen”, and other ‘furniture’ markets on the ring road. ‘Yuquanying’, ‘Wukesong’, “Dahongmen” and other ‘furniture city’ totems on the former ring road. Its huge volume and heavy flow of people are always criticized as ‘urban problems’ that affect the quality of the region.
▼项目概览,overall of the project

▼南四环边巨大的城外诚家具市场,The huge Chengwaicheng Furniture Market by the South Fourth Ring Road

▼城外诚家具市场的往日喧嚣与今时萧条,The past hustle and bustle of Cheng Wai Cheng Furniture Market and its present depression

20多年来,随着互联网和家居工业化的发展,以及内城重新更新开发,“家具之城”开始渐渐没落,曾经熙熙攘攘的巨大空间,如今人可罗雀,萧条冷清,失去了往日的辉煌,成为了被遗忘的巨大的“城市遗迹”。当年这些城乡结合部的区域,成为了这些巨大的,人流物流混杂的,充满各种变更和不确定性的“市场空间”的绝佳选择。而当这些区域渐渐发展成为城市核心区,这些“市场空间”却仍然保持着二三十年前的状态,无法衔接城市的发展。如大红门等市场随着这些年的整体搬迁,已经不复存在。但是,大部分的市场由于产权的原因,很难再次整体开发,而家具市场显然已经无法支撑这些巨大空间的继续运作。 作为城市策划研究者,通过新功能与设计的策划与植入,能否重新激活这些空间业态?成为我们一个兴趣重点。
Over the past 20 years, with the development of the Internet and home furnishing industrialization, as well as the renewal and development of the inner city, the ‘Furniture City’ began to gradually decline, and the once bustling huge space is now crowded with people, depressed and cold, losing its former glory, and becoming a huge forgotten ‘urban relic’. The city has lost its former glory and has become a huge forgotten ‘urban relic’. Back then, these urban and rural areas became the perfect choice for these huge, mixed flows of people and goods, full of changes and uncertainty of the ‘market space’. But when these areas gradually developed into urban core areas, these ‘market spaces’ remained in the same state as 20 or 30 years ago, unable to connect to the development of the city. Markets such as Dahongmen have ceased to exist with the relocation of the entire market over the years. However, most of the markets are difficult to redevelop due to property rights, and it is clear that the furniture market can no longer support the continued operation of these huge spaces.As urban planning researchers, can these spaces be reactivated through the planning and implantation of new functions and designs? This has become a focus of our interest.
▼北京几个类似的家具市场成为亟待解决与更新的“巨型城市废弃空间”问题,Several similar furniture markets in Beijing have become ‘giant abandoned urban spaces’ that need to be addressed and renewed

2 运动负形矩阵,让城市观看”运动的痕迹” The Urban Concave Matrix, a movement neighborhood that becomes a “museum of sites in the everyday city”
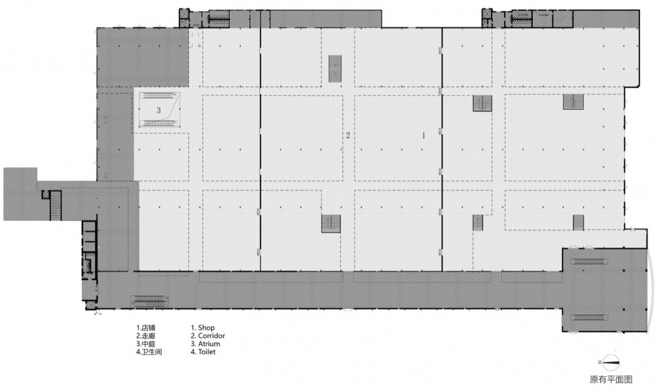
家具城是一种典型的“矩阵空间”,通过顾客的条形走道与店铺的矩形空间共同组成一个巨大的水平网格城市。南城最大的家具城-1995年开业的城外诚也不例外,其顶层是一个几万平米的高达8米的大跨度斜坡屋顶矩阵家具售卖空间。这些家居店铺内部营造出的样板间“生活场景”,像一个个居所,而整个空间如同一座不断更新并活了30年的水平矩阵城市。
Furniture city is a typical ‘matrix space’, where the strip of customer aisles and the rectangular space of the shops form a huge horizontal grid city. The largest furniture mall in south Beijing, Chengwaicheng, which opened in 1995, is no exception, with a tens of thousands of square metres of eight-metre-high, large-span, sloped-roofed, matrix furniture sales space on its top floor. The ‘living scenes’ created inside these shops are like dwellings, and the whole space is like a horizontal matrix city that has been constantly renewed and living for 30 years.
▼家具城展示的是多样的“生活场景模型”,如同一座微缩的城市,在这样的“生活的遗址”上再叠加一座新的体育城,The Furniture City displays a variety of ‘life scene models’, like a miniature city, and a new sports city is superimposed on this ‘life ruin’

▼负形矩阵-一座“遗址博物馆”式运动空间的模型,The Negative Matrix – a model for a ‘museum of ruins’ type of movement space

我们接到的任务,是将这座“城市”整个拆除变为一种新型运动社区。这就如同在一座城市的“遗址”上再造一个新的城市。这种再造,我们不希望是传统商业化暴力的推翻重来。新的空间如果能继承与回应之前的“生活的痕迹”,那么城市人文生活的活力就能得到延续。保留家具城的矩阵形式痕迹,也反向促进形成了一个全新的体育空间模式-负形矩阵。
We were given the task of dismantling this ‘city’ and turning it into a new kind of sports community. This is like recreating a new city on the site of a city. We don’t want this kind of reconstruction to be a violent overthrow of traditional commercialization. If the new space can inherit and respond to the previous ‘traces of life’, then the vitality of the city’s humanistic life can be continued. Preserving the traces of the matrix form of the Furniture City also contributes to the formation of a new model of sports space – the Concave Matrix.
▼一座“向下建”的“负体育馆”, A ‘negative stadium’ built ‘downwards’

“负形矩阵”不同于传统体育馆“往上建”的思路,我们将遗址博物馆的流线模式引入到体育馆,从城市电梯直接进入到上层自由街区,然后在这个自由的平面上,将运动空间全部设置下沉,形成“运动展示坑”。两个高度的空间,使观众对运动的参与,就如同在观看“发掘现场”般的沉浸感。上层是自由的不用买票的城市空间,成为“离场”的空间。而下到运动场的过程使运动员们迅速感到“在场”,成为舞台表演的中心。“负形矩阵”不但创造了运动身体空间新的感知模式,其可控的商业经营模式,满足其成为城市街区空间延申的客观条件,使运动能真正融入城市生活。只有这样,才能真正对这类“家具之城”再次注入不断更新的城市活力。
The ‘ Concave Matrix’ is different from the traditional stadium idea of ‘building upwards’, we introduced the flow pattern of the heritage museum into the stadium, from the city lift directly into the upper level of the free block, and then in this free plane, all the sports space will be set up. Then, on this free plane, the sports space is all set down to form a ‘sports exhibition pit’. The two heights of the space allow the audience to participate in the sport as if they were watching the immersion of the ‘excavation site’. The upper level is a free urban space that does not require a ticket, and becomes a space for “leaving the field”. The descent into the stadium allows the athletes to quickly feel “present” and at the centre of the performance. The ‘ Concave Matrix’ not only creates a new mode of perception of the physical space of sports, but also a controllable business model that meets the objective conditions for it to become a spatial extension of the urban neighbourhood, so that sports can be truly integrated into urban life. Only in this way can this kind of ‘Furniture City’ once again be injected with renewed urban vitality.
▼“栈道”与运动“遗址坑”, ‘Stacks’ and sport ’ruin Pits’

3 “微地形”漫游栈道,可分合的“运动坑室”与悬浮的“运动叠墅”——运动社区成为立体的空间互动装置 Urban trestles, sports pits and suspended boxes – the stadium becomes a huge spatial interactive installation
在这个负形矩阵中,上层的平台系统通过电梯直达,与城市无缝链接,将现存商场及城市周边各个方向的人流自然汇入这个自由街区。我们将其称之为“城市栈道”。在城市栈道的中央通道上,一方面,我们刻意拓宽了尺度,让这条贯穿全场的通道,不仅仅是一个快速交通,同时还可以是一个大展场、交流场所、咖啡休憩区,甚至可以是一条秀场。
▼将不城市同方向人流交织汇合的自由城市栈道,Free urban stacks that intertwine the flow of people from different cities in the same direction

▼四通八达的巨大城市栈道编织了整个运动场域,Huge urban trestles weave throughout the playing field

In this Concave Matrix, the upper level of the podium system is directly accessible via lifts and seamlessly linked to the city, naturally bringing people from the existing malls and the city’s periphery in all directions into this free neighbourhood. We call this the ‘City Trestle’. In the central passageway of the City Trestle, on the one hand, we have deliberately widened the scale, so that this passageway, which runs through the whole site, is not only a fast traffic, but also a big exhibition hall, a place for communication, a coffee sitting area, and even a showroom.
▼中央栈道的“微地形”创造观众与运动之间的互动, The ‘micro-terrain’ of the centre stack creates interaction between the spectator and the movement

▼中央栈道区-篮球,儿童篮球,足球,壁球,共享办公区 Central stack area – basketball, kids basketball, football, squash, shared office area

另一方面,栈道不是一个平面,其具有很多起伏的“微地形”。这些“微地形”使城市栈道与运动场地之间的视觉高差关系,通过地面垂直的起伏与墙壁水平的翻折,不断连续变化,将下沉的场地自然地“暴露”出来。使栈道上的观众或沉浸,或旁观,或俯视。观众与运动员,运动员与观众之间的主被动关系不断转化,使运动场与观众席都变成交流的舞台。在变化间,人的视线一会高一会低,羽毛球,足球,篮球会不断跃动飞过护栏的高度挑起你的注意,仿佛一不小心羽球就会飞入你的眼睛里。另外这些起伏的地形自然演变成可以站立,坐下,倚靠或工作的“观众家具”,给不参加运动的人们带来休闲与乐趣。这些起伏变化的栈道系统最终形成了整个社区的垂直与水平交通体系。
▼“微地形”折纸模型研究动态图,Dynamic diagrams for the study of the origami model ‘Microterrain’

On the other hand, the trestle is not a flat surface, but has a lot of undulating ‘micro-topography’. These ‘micro-topographies’ make the visual height difference between the urban stack and the sports ground change continuously through the vertical undulation of the ground and the horizontal folding of the wall, naturally ‘exposing’ the sunken ground. The spectators on the stacks are immersed in, or watching, or looking down. The passive relationship between the spectators and the athletes, and between the athletes and the spectators is constantly transformed, turning the sports field and the spectator stand into a stage for communication. Between the changes, one’s line of sight will be higher and lower, badminton, football and basketball will constantly leap over the height of the guardrail to provoke your attention, as if the ball will fly into your eyes if you are not careful. In addition, the undulating terrain naturally evolves into ‘spectator furniture’ that can be used for standing, sitting, leaning or working, bringing relaxation and enjoyment to those who do not participate in sports. The undulating system of trestles ultimately forms the vertical and horizontal transport system for the entire neighbourhood.
▼可以“倚靠”的微地形,Microtopography that can be ‘leaned on’

▼不同高度观看比赛场景,Viewing the game scene from different heights

▼“微地形”栈道下沉成为观赛座椅,‘Micro-terrain’ trestle sinks to become spectator seating

▼VIP运动区-可灵活组合运动空间的升降门以及环绕的厚墙系统内的服务设施,VIP sports area – lift doors for flexible combinations of sports spaces and service facilities within the surrounded thick-wall system

几个巨大的“运动之坑”之间,因为不同的功能需求设计了不同的互动关系,有的是上部联通,但是底部分成不同的区域,由门来隔开管理。在服务空间的区域则采用可视线穿透的拉网,让服务区的属性更好的被识别使用。有的区域则是相通或近似的功能,在适当的时候可以变成一体的大空间,这样使得整体运动场地摇身一变,成为了可以展销汽车,可以进行更大的活动场地。有的区域为了强调连通性,还采用了卷帘门的形式,进一步强调互动性。
The interaction between the several huge ‘sports pits’ is designed in a different way according to the different functional needs, with the upper part connected, but the bottom part divided into different zones, which are managed by doors to separate them. In the area of the service space, a mesh is used to allow the service area to be better recognised and used. Some areas are connected or have similar functions and can be turned into one large space when appropriate, thus transforming the overall sports ground into a venue where cars can be displayed and sold and larger events can take place. Some areas have been designed to emphasise connectivity, and further emphasise interactivity in the form of roll-up doors.
▼下沉的运动光盒与昏暗的城市栈道形成对比,Sinking motion lightboxes contrast with dimly lit city stacks

▼“厚墙系统”内的辅助交通空间,Para-transit space in the ‘thick wall system’

▼“厚墙系统”内集成服务,零售,品牌等辅助功能,Integrated services, retail, branding and other ancillary functions within the ‘Thick Wall System’

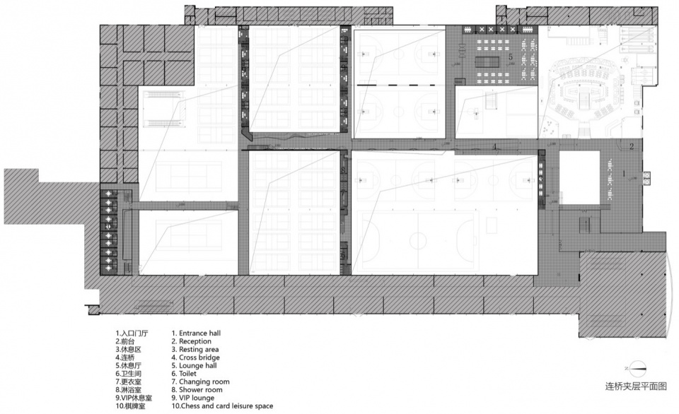
城市栈道并不只是一个交通系统,它同样是一个“厚墙式服务系统”,集成了服务于运动场地的“后勤空间”,如商店,储藏柜,等候区,VIP包间,办公区等。其中,国内首创的“私人羽球空间”模式从厚墙系统延申成为空中“运动叠墅”的形式。人们从城市栈道上进入私属“运动叠墅”休息室,再由内部的私人楼梯下到专属球场。休息室中设置了淋浴,更衣,卫生间,洽谈等功能,其整体的玻璃箱体设计使休息区与运动区保持视线连接,形成私人观赛包厢。同时,隐私雾化玻璃的设计在洽谈时可保证空间的隐私性。
The City Stack is not just a transport system, it is also a ‘thick-wall service system’ that integrates ‘logistic spaces’ serving the sports venues, such as shops, storage lockers, waiting areas, VIP rooms, offices, etc. The first ‘private space’ model in China has been extended from the thick-wall system into the form of ‘sports villas’ in the sky. Among them, the first ‘private badminton space’ model in China is extended from the thick wall system into the form of ‘sports villa’ in the air. People enter the private ‘sports villa’ lounge from the city stack, and then go down to the exclusive court by the internal private staircase. The lounge is equipped with showers, changing facilities, toilets and meeting rooms, and the glass box design of the lounge connects the lounge area to the sports area, creating a private viewing box. At the same time, the design of the privacy fogging glass can ensure the privacy of the space when negotiating.
▼悬浮在羽毛球场上的巨大的VIP“运动叠墅”,A huge VIP ‘sports villa’ suspended over a badminton court

▼首创的集休憩,洽谈,淋浴,洗手间一体的LOFT式私人运动运动会所模式,The first LOFT-style private sports club model with sitting, negotiation, shower and toilet

▼VIP羽球场与“运动叠墅”包厢的互动链接,Interactive link between the VIP badminton court and the ‘Sports Villa’ box

▼VIP网羽球区,VIP Badminton, Tennis Area

▼“运动叠墅”包厢,‘Sports Villa’ box

▼由包厢内部观看私属羽球场,View of private badminton court from inside the box

4 超越运动,“矩阵”上的“奥德赛之旅” Beyond Sport, “Journey to Odyssey” on the Matrix
篮球,足球,羽毛球,网球,乒乓球,壁球,陆冲,餐吧,路演等不同功能均匀分布在整个“矩阵”中。一个巨大的,混合的超越运动本身的社区场所被构建出来。不被定义的行为也可以随处发生,整个区域不同的场景,气味,声音混杂在一起,使人的肾上腺激素飙升。运动员,家长,网红,周边居民混杂在一起,形成了一个小的生态圈,一个新的“社区”.
Basketball, Football, Badminton, Tennis, Table Tennis, Squash, Land Rush, Café, Roadshow, etc. are evenly distributed throughout the ‘Matrix’. A huge, hybrid community place is created that goes beyond the sport itself. Undefined behaviours can take place everywhere, and the adrenaline rush of the different scenes, smells and sounds throughout the area. Athletes, parents, internet celebrities and neighbourhood residents mix together to form a small ecosystem, a new ‘community’.
▼不同的运动场景与不同身份的人通过负形矩阵交织在一起,Different movement scenarios with different identities are intertwined through a matrix of negative shapes

流线除了中轴这个非常清晰的主干道,走入每个球场又各有不同,有的通过一条镶嵌的坡道,有的是一二层组合的自带单独旋转楼梯的复合单元体,有的是一条看似平常的双跑楼梯,跑到一半会突然看到展开的柳暗花明的开阔场地。有些流线被精心设计成一个蛇形体系,第一次参观时会不自觉地从一个方向进入,从另外一头传出,宛如误入的博物馆,进入方式本身也成了调动感官的重要一环。
In addition to the central axis, which is a very clear main road, the flow lines are different for each court, some of them are through an inlaid ramp, some of them are composite units with individual rotating staircases combined on one or two floors, and some of them are a seemingly normal double running staircase, which halfway through the run, you will suddenly see the unfolding of the dark and bright open space. Some of the flows are carefully designed into a serpentine system, so that when visiting for the first time, you will unconsciously enter from one direction and exit from the other, just like a museum that you have mistakenly entered, and the mode of entry itself becomes an important part of mobilising the senses.
▼让体育培训空间成为一个社区交流的场所,Making a sports training space a place for community communication

在这些不同场景间的穿梭,带来感官上不同速度与触觉上的碰撞,不断的打开现象学意义上的身体知觉,形成一场超越运动的“奥德赛之旅”。最终,这里不仅仅只是一个体育馆,而成为城市中一个新的市民公共空间,一个年轻人的交流场所,一个人文体验的城市目的地。
The shuttle between these different scenes brings different speeds and tactile collisions to the senses, constantly opening up the body’s perception in a phenomenological sense, forming an ‘odyssey’ that goes beyond sports. In the end, it will become not only a stadium, but also a new public space for citizens, a place for young people to communicate, and an urban destination for humanistic experience.
▼运动员们成为“舞台”中的舞者,观众成为“舞台”外的舞者,Athletes become dancers on the ‘stage’ and spectators become dancers off the ‘stage’

5 运动环境,设备整合,结构叠加—–基础设施都市主义的美学 Motion environments, equipment integration, structural superimposition —– The Aesthetics of infrastructure Urbanism
家具城是一种大跨度现存结构的空间,在这种空间上进行新的承载结构加建,不仅仅只是空间与功能的问题,更是结构系统与设备体系的问题。首先,负形矩阵实际上也是一个结构与设备体系。利用这种线性矩阵均布体量的方式,首先最大程度上分散了整体荷载的增加。其次,所有加建结构均落位于原有建筑二层柱梁之上。少量无法落位原结构的,通过新增钢结构地梁进行结构转换,使地梁落位于原结构梁上。通过这些谨慎的加建结构处理,我们可以保证新增的空间可以长时间承载运动的荷载与冲击。
Furniture City is a space of large-span existing structures, and a new load-bearing structural addition to such a space is not just a matter of space and function, but also a matter of structural systems and equipment systems. Firstly, the concave matrix is actually a structure and equipment system. By using this linear matrix to spread the volume evenly, the overall load increase is firstly dispersed to the greatest extent possible. Second, all of the additions landed on top of the first floor columns and beams of the original building. The few that could not be located in the original structure were structurally converted by adding new steel floor beams, so that the floor beams were located on top of the original structural beams. Through this careful structural treatment of the additions, we were able to ensure that the new space could carry the loads and impacts of movement for a long period of time.
▼加建结构的技术设计图解,Illustration of the technical design of an addition structure

▼空间剖面图,原始的管线与交通体与新的空间共同混合成新的社区,Spatial profiles, where the original pipelines and traffic bodies are co-mingled with the new spaces to form a new neighbourhood

家具城原顶层售卖空间具有较为完善的整体空调系统,新的体育空间基本保留利用了原空调系统。通过整体空间的打开,这些墙壁及屋顶上的密布的设备被整体暴露出来,既控制了造价,也让场馆被真实的环绕在一种赛博朋克的未来科技风格之中,管线虽然被低调的刷成了灰色系,但是这种消隐恰恰也是另一种形式的走上前台,忠实的暴露着所有管线的走线和功能指代,成为最鲜活的建筑学意义上的管线综合“示范课”。不同的设施被集成在高起的、凸出的、凹痕里,等等最适合位置上,最大化的秉承着结构与设备的原真主义。当运动的大人和孩子们累了休息时偶尔凝视远方,这时管线管井会静静地诉说着属于它们自己的故事。
The original top floor sales space of the Furniture City had a complete air-conditioning system, and the new sports space basically retains the use of the original air-conditioning system. Through the opening of the overall space, these walls and the roof of the dense equipment is exposed as a whole, not only to control the cost, but also to allow the venue to be real around a kind of cyberpunk future technology style, although the pipeline was low-key painted grey, but this hidden precisely is another form of the front, faithfully exposing all the pipeline alignment and functional designation, becoming the most vivid architecture! It becomes the most vivid architectural ‘demonstration class’ of pipeline synthesis. Different facilities are integrated in raised, protruding, indented, and so on in the most suitable locations, maximising the originalism of the structure and equipment. When adults and children take a break from sports and occasionally gaze into the distance, the pipelines and wells quietly tell their own stories.
▼密布的设备管线下忙碌与激情的运动都市,Busy and passionate sports city under the dense equipment pipeline

▼赛博都市的运动空间,CyberCity’s Movement Space

▼新建空间与旧空间原始结构的刻意交错保留了一种赛博城市的混杂感,The deliberate interplay of the new space with the original structure of the old space retains a sense of cybercity hybridity

同时,除了之前打开的顶棚和墙面这些要素被暴露出来外,我们在中间的中枢通道体系里同样暴露着各种设备元素,这里面有用于展示的屏幕、明装吊起的消火栓、用于引导和氛围的灯带,还有入口被作为框景支架的门式钢架等等。这些管线本身成为了这个场馆的底色,复古又透着未来感。在暴露的管线之间,球场反而都保持着最纯粹干净的令人愉悦的轻快状态,高饱和的颜色在灯光的衬托下,和跃动的青春气息和欢声笑语混在一起.
At the same time, in addition to the previously opened ceiling and wall elements that were exposed, we also exposed various equipment elements in the centre pivot passage system, which includes screens for display, fire hydrants suspended in the open, light strips for guidance and ambience, as well as portal steel frames that were used as framing supports for the entrance, and so on. The pipes themselves become the base colour of the venue, retro and futuristic. Between the exposed pipes, the pitch is kept in its purest and cleanest state of delightful lightness, with highly saturated colours under the lights, mixing with the vibrant youthfulness and the sound of laughter.
▼集成在中央通道的消防,广播展示,屋顶排水等设施系统,Integration of fire fighting, broadcasting display, roof drainage and other facility systems in the centre channel

6 产品衍生-从超级光合到“超级光盒” Product Derivation – From “HYPER OXGEN” to ‘HYPER LIGHT BOX’
我们希望,负形矩阵的设计概念,不仅仅只局限于建筑空间的层面,将其尺度缩小,能否也能形成我们生活中可以使用与把玩的物品呢?由这个思路,我们开发了衍生产品-“超级光盒”制冰盒。将负形矩阵变成制冰盒,就可以享受将矩阵中不同的运动场做成喝威士忌酒需要的不同形状的冰块。通过这样的衍生品的开发,设计可以进一步增强空间产品的IP体验感。使设计能够扩展成全域的生产力。
We hope that the design concept of concave matrix is not only limited to the architectural space level, but also can it be scaled down to form objects that we can use and play with in our daily life. From this idea, we developed a derivative product, the ‘Super Lightbox’ ice box. By turning the negative matrix into an ice box, we can enjoy making ice cubes of different shapes for drinking whiskey from different sports fields in the matrix. Through the development of such derivatives, design can further enhance the IP experience of spatial products. Enabling design to expand into full domain productivity.
▼超级光盒限量冰盒产品,Frozen Matrix product


7 参与:运动是一场city walk Participation-Sport is a city-walk
在《癫狂的纽约》一书中,雷姆·库哈斯生动地讨论了“市中心体育俱乐部”,这是一个引人注目的例子,在摩天大楼的统一外立面内,一个私人运动俱乐部提供了多种设施 — 拳击馆、生蚝酒吧、游泳池、室内高尔夫球场等等。这些设施虽然相互隔离,却极为便利,这种功能机器”独立于外部城市,作为一个孤立生态系统运作,体现了对“混杂”“拥挤”的垂直大都市作为一种生产力的认可。运动负形矩阵不但表达了这种垂直的混杂,也展示了其水平扩张的潜力,将一种巨大无限延展的室内空间外部化,并融入家具城这种异托邦的都市中。
In the book “Delirious New York”, Rem Koolhaas vividly discusses the ‘downtown sports club’, a striking example of a private sports club offering a variety of facilities — a boxing gym, an oyster bar, a swimming pool, an indoor golf course, and so on — within the unified facade of a skyscraper. These facilities are isolated but extremely accessible, a functional machine that ‘operates as an isolated ecosystem separate from the outside city, recognizing the “mixed” and “crowded” vertical metropolis as a productive force. The negative matrix of movement not only expresses The Negative Matrix of Movement not only expresses this vertical hybrid, but also demonstrates its potential for horizontal expansion, externalizing a vast and infinitely expandable interior space and integrating it into the heterotopian metropolis of Furniture City.
▼无限水平扩张的混合都市, Mixed metropolis with unlimited horizontal expansion

曾几何时,在中国,体育仍然作为功利性的举国体制,一种纯粹竞技性与政治性的当代客体,成为人们生活的附属品。如今,随着社区体育,校园体育,街头体育的理念发展,体育更加成为生活本身,不再仅仅是身体的锻炼,而是精神的愉悦以及社交的平台。抛开地域的限制,场合的限制,身份的限制,我们希望未来的运动空间没有太多束缚,它就是城市空间的一部分。体育不应该是少数人的权力,而是所有人的参与。通过在家具城的顶层创造这样一个自由的“运动负形矩阵”,我们解构了传统的“运动员与观众”的二元对立关系,最终是希望创造一种平权化的运动空间模式。
如今,超级光合已成为北京最潮流化的网红“运动社交场”,很多人来此拍照打卡,通过社交媒体将“运动”变成社交生活的一部分,这是媒体时代新型的空间设计创造的另一个平权化“虚拟社区”的载体,也是体育产业未来发展的新方向。在体育产业化商业化的整个背景与前景下,商业模式一定需要和公众价值结合起来,才能形成对城市空间深度的发掘与打通。这样的社会性设计探索,如同运动本身,应该是是一场令人兴奋与长久的CITY WALK!
Once upon a time, sports in China remained an accessory to people’s lives as a utilitarian national system, a contemporary object of purely competitive and political nature. Nowadays, with the development of the concepts of community sports, school sports, and street sports, sports have become more of a life in itself, no longer just a physical exercise, but a spiritual pleasure and a platform for socializing. Leaving aside the limitations of geography, occasions and status, we hope that the future of sports space is not bound by too many constraints, it is part of the urban space. Sports should not be the power of a few, but the participation of all. By creating such a free ‘sports negative matrix’ on the top floor of Furniture City, we deconstruct the traditional dichotomy of ‘athlete and spectator’ and ultimately hope to create an affirmative sports space model.
Nowadays, Super Photosynthesis has become the most trendy net red ‘sports social field’ in Beijing, and many people come here to take photos and make cards, and turn ‘sports’ into part of their social life through social media, which is another vehicle of ‘virtual community’ created by the new spatial design in the media era and a new direction for the future development of sports industry. This is another carrier of ‘virtual community’ created by the new space design in the media era, which is also a new direction for the future development of the sports industry. In the context of the commercialization of the sports industry, the business model must be combined with public values in order to develop a deeper understanding of the urban space. This kind of social design exploration, just like the sport itself, should be an exciting and long-lasting CITY WALK!
▼改造前顶层建筑平面,Top floor plan before conversion

▼改造后夹层建筑平面,Mezzanine floor plan after conversion

▼改造后一层建筑平面,Floor plan after conversion

Full Project Information
Project Name: HYPER OXGEN SPACE CENTER
Programme Designer: officePROJECT
Lead Architect/Project Creator: Chang Ke, Li Wen Han
Design Team: Cai Tian, Jiang Honghui, Zhao Jianwei, Zou Wenrong, Feng Beyond
Interior Deepening Design: Wine God Architecture
Client: HYPER OXGEN
Location: Chaoyang District, Beijing
Size: 20,000 square metres
Design Period: 2022-202














